Property
Account |
| Property ID: | 24391 | Abbreviated Legal Description: | HARRISON-SAGE ADD LT 6 BLK 8 |
| Parcel Number: | 300812560806 | Agent Code: | |
| Type: | Real | | |
| Tax Area: | 331 - 400-M-5-W4 | Land Use Code | 11 |
| Open Space: | N | DFL | N |
| Historic Property: | N | Remodel Property: | N |
| Multi-Family Redevelopment: | N | | |
| Township: | 8 | Section: | 12 |
| Range: | 30 |
Location |
| Address: | 60 SAGE RD WA 99323 | Mapsco: | |
| Neighborhood: | Burbank A MH | Map ID: | |
| Neighborhood CD: | 213761 |
Owner |
| Name: | ALLEN ANTHONY JUSTIN & LAURA EPPERSON | Owner ID: | 68485 |
| Mailing Address: | 60 SAGE RD BURBANK, WA 99323 | % Ownership: | 100.0000000000% |
| | | Exemptions: | |
Taxes and Assessment Details
Property Tax Information as of
02/21/2026
Click on "Statement Details" to expand or collapse a tax statement.
* Please enter a valid date ** Please enter a valid date *
Statement Details |
| | TOTAL: | $0.00 | $0.00 | $0.00 | $0.00 | $0.00 | $0.00 |
|
| | $0.00 | $0.00 | $0.00 | $0.00 | $0.00 | $0.00 |
Values
| (+) Improvement Homesite Value: | + | $0 | |
| (+) Improvement Non-Homesite Value: | + | $255,260 | |
| (+) Land Homesite Value: | + | $0 | |
| (+) Land Non-Homesite Value: | + | $66,990 | |
| (+) Curr Use (HS): | + | $0 | $0 |
| (+) Curr Use (NHS): | + | $0 | $0 |
| | | -------------------------- | |
| (=) Market Value: | = | $322,250 | |
| (–) Productivity Loss: | – | $0 | |
| | | -------------------------- | |
| (=) Subtotal: | = | $322,250 | |
| (+) Senior Appraised Value: | + | $0 | |
| (+) Non-Senior Appraised Value: | + | $322,250 | |
| | | -------------------------- | |
| (=) Total Appraised Value: | = | $322,250 | |
| (–) Senior Exemption Loss: | – | $0 | |
| (–) Exemption Loss: | – | $0 | |
| | | -------------------------- | |
| (=) Taxable Value: | = | $322,250 | |
Taxing Jurisdiction
| Owner: | ALLEN ANTHONY JUSTIN & LAURA EPPERSON | | |
| % Ownership: | 100.0000000000% | | |
| Total Value: | $322,250 | | |
| Tax Area: | 331 - 400-M-5-W4 |
| CERFD | CURRENT EXPENSE REFUND 010 | 0.0000000000 | $322,250 | $322,250 | $0.00 | | |
| CURREXP | CURRENT EXPENSE 010 | 1.0175366760 | $322,250 | $322,250 | $327.90 | | |
| HUMNSERV | HUMAN SERVICES 119 | 0.0250000000 | $322,250 | $322,250 | $8.06 | | |
| SLDREL | SOLDIERS RELIEF 121 | 0.0155990005 | $322,250 | $322,250 | $5.03 | | |
| EMERGSER | EMS 147 | 0.3792580840 | $322,250 | $322,250 | $122.22 | | |
| EMSRFD | EMS REFUND 147 | 0.0000000000 | $322,250 | $322,250 | $0.00 | | |
| FD5EXP | FD #5 EXPENSE 689 | 1.2045331840 | $322,250 | $322,250 | $388.16 | | |
| RLBRFD | RURAL LIBRARY REFUND 623 | 0.0000000000 | $322,250 | $322,250 | $0.00 | | |
| RURALLIB | RURAL LIBRARY 623 | 0.3710609029 | $322,250 | $322,250 | $119.57 | | |
| PORTRFD | PORT REFUND 640 | 0.0000000000 | $322,250 | $322,250 | $0.00 | | |
| PORTWWGEN | PORT OF WW 640 | 0.2460186015 | $322,250 | $322,250 | $79.28 | | |
| SD400BOND | SD #400 BOND 793 | 0.0000000000 | $322,250 | $322,250 | $0.00 | | |
| SD400CAP | SD #400 CP 792 | 0.3443722657 | $322,250 | $322,250 | $110.97 | | |
| SD400GEN | SD #400 GENERAL 790 | 1.9278469916 | $322,250 | $322,250 | $621.25 | | |
| ST2 | STATE SCHOOL PART 2 600 | 0.8131451643 | $322,250 | $322,250 | $262.04 | | |
| STATESCHL | STATE SCHOOL 600 | 1.5158548041 | $322,250 | $322,250 | $488.48 | | |
| STREFUND | STATE REFUND LEVY 603 | 0.0000000000 | $322,250 | $322,250 | $0.00 | | |
| COROAD | COUNTY ROAD 115 | 1.6549953990 | $322,250 | $322,250 | $533.32 | | |
| CRPRD | COUNTY ROAD REFUND 115 | 0.0000000000 | $322,250 | $322,250 | $0.00 | | |
| | Total Tax Rate: | 9.5152210736 | | | | | |
| | | | | Taxes w/Current Exemptions: | $3,066.28 | | |
| | | | | Taxes w/o Exemptions: | $3,066.28 | | |
Improvement / Building
| Improvement #1: | MANUFACTURED HOME | State Code: | 11 | 1404.0 sqft | Value: | $255,260 |
| Exterior Wall: | HARDBOARD | Foundation: | MH BLOCK | | Heating/Cooling: | WARM & COOLED AIR | Number of Bathrooms: | 2 | | Number of Bedrooms: | 3 | Plumbing: | 8 | | Roof Covering: | COMP SHINGLE |   |   |
|
| | Type | Description | Class CD | Sub Class CD | Year Built | Area |
| | MOBHOME | MANUFACTURD HOMES | 1 | 30 | 1998 | 1404.0 |
| | MI1 | MH SET-UP COSTS | 1 | 30 | 1998 | 1.0 |
| | POL3 | POLE BUILDING-CON,ELEC,INSU | 1 | 30 | 2017 | 1440.0 |
| | TOOL | TOOL SHED | 1 | 30 | 1998 | 120.0 |
| | WOD | Wood Deck | 1 | 30 | 1998 | 108.0 |
Sketch
Property Image
Land
| 1 | RES 1 | Converted: Residential | 0.7887 | 34354.00 | 0.00 | 0.00 | 1.00 | $66,990 | $0 |
Roll Value History
| 2026 | N/A | N/A | N/A | N/A | N/A |
| 2025 | $268,030 | $66,990 | $0 | $335,020 | $335,020 |
| 2024 | $255,260 | $66,990 | $0 | $322,250 | $322,250 |
| 2023 | $255,260 | $66,990 | $0 | $322,250 | $322,250 |
| 2022 | $232,060 | $66,990 | $0 | $299,050 | $299,050 |
| 2021 | $210,960 | $66,990 | $0 | $277,950 | $277,950 |
| 2020 | $117,220 | $33,700 | $0 | $150,920 | $150,920 |
| 2019 | $117,220 | $33,700 | $0 | $150,920 | $150,920 |
| 2018 | $101,930 | $33,700 | $0 | $135,630 | $135,630 |
| 2017 | $97,080 | $33,700 | $0 | $130,780 | $130,780 |
| 2016 | $81,900 | $33,700 | $0 | $115,600 | $115,600 |
| 2015 | $81,900 | $33,700 | $0 | $115,600 | $115,600 |
| 2014 | $81,900 | $33,700 | $0 | $115,600 | $115,600 |
| 2013 | $81,900 | $33,700 | $0 | $115,600 | $115,600 |
| 2012 | $71,400 | $33,700 | $0 | $0 | $0 |
| 2011 | $71,400 | $33,700 | $0 | $0 | $0 |
| 2010 | $71,400 | $33,700 | $0 | $0 | $0 |
| 2009 | $86,500 | $35,000 | $0 | $0 | $0 |
| 2008 | $48,800 | $35,000 | $0 | $0 | $0 |
| 2007 | $48,800 | $35,000 | $0 | $0 | $0 |
Deed and Sales History
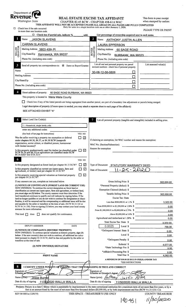
| 1 | 11/30/2020 | SWD | STATUTORY WARRANTY DEED | SLAVENS JASON & CARINN | ALLEN ANTHONY JUSTIN & LAURA EPPERSON | | | $302,000.00 | 140451 | 2020-12632 |
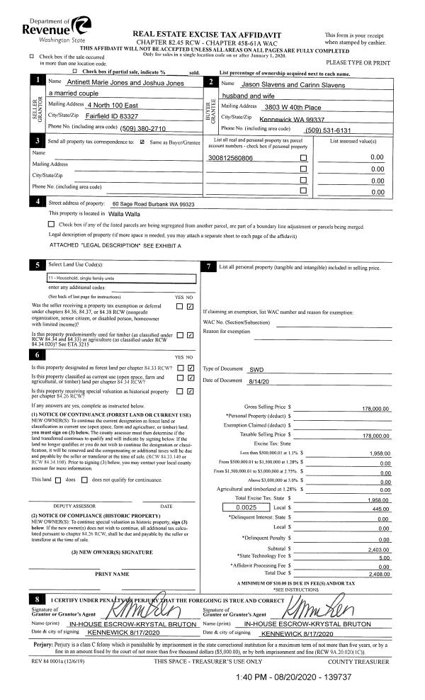
| 2 | 08/20/2020 | SWD | STATUTORY WARRANTY DEED | MUELLER ANTINETT M | SLAVENS JASON & CARINN | | | $178,000.00 | 139737 | 2020-08297 |
| 3 | 09/15/2009 | QCD | QUIT CLAIM DEED | MUELLER, TRAVIS E JR | MUELLER, ANTINETT M | | | | 117332 | 2009-09284 |
| 4 | 03/06/2003 | WARRANTY D | WARRANTY DEED | PORTER, ADAM | MUELLER, TRAVIS E JR | | | $84,500.00 | 101529 | 2003-02993 |
| 5 | 10/01/1997 | WARRANTY D | WARRANTY DEED | | | | | $19,500.00 | 89259 | 2589-710628 |
Payout Agreement
| No payout information available.. |