Property
Account |
| Property ID: | 24360 | Abbreviated Legal Description: | HARRISON SAGE SUBD LOT 1 BLK 3 |
| Parcel Number: | 300812560301 | Agent Code: | |
| Type: | Real | | |
| Tax Area: | 331 - 400-M-5-W4 | Land Use Code | 11 |
| Open Space: | N | DFL | N |
| Historic Property: | N | Remodel Property: | N |
| Multi-Family Redevelopment: | N | | |
| Township: | 8 | Section: | 12 |
| Range: | 30 |
Location |
| Address: | 83 REINKEN BLVD WA 99323 | Mapsco: | |
| Neighborhood: | Burbank A MH | Map ID: | |
| Neighborhood CD: | 213761 |
Owner |
| Name: | LUTZ DAVID | Owner ID: | 60523 |
| Mailing Address: | 83 REINKEN BLVD BURBANK, WA 99323 | % Ownership: | 100.0000000000% |
| | | Exemptions: | SNR/DSBL |
Taxes and Assessment Details
Values
| (+) Improvement Homesite Value: | + | $138,560 | |
| (+) Improvement Non-Homesite Value: | + | $0 | |
| (+) Land Homesite Value: | + | $60,130 | |
| (+) Land Non-Homesite Value: | + | $0 | |
| (+) Curr Use (HS): | + | $0 | $0 |
| (+) Curr Use (NHS): | + | $0 | $0 |
| | | -------------------------- | |
| (=) Market Value: | = | $198,690 | |
| (–) Productivity Loss: | – | $0 | |
| | | -------------------------- | |
| (=) Subtotal: | = | $198,690 | |
| (+) Senior Appraised Value: | + | $130,050 | |
| (+) Non-Senior Appraised Value: | + | $0 | |
| | | -------------------------- | |
| (=) Total Appraised Value: | = | $130,050 | |
| (–) Senior Exemption Loss: | – | $78,030 | |
| (–) Exemption Loss: | – | $0 | |
| | | -------------------------- | |
| (=) Taxable Value: | = | $52,020 | |
Taxing Jurisdiction
| Owner: | LUTZ DAVID | | |
| % Ownership: | 100.0000000000% | | |
| Total Value: | $198,690 | | |
| Tax Area: | 331 - 400-M-5-W4 |
| CERFD | CURRENT EXPENSE REFUND 010 | 0.0000000000 | $198,690 | $52,020 | $0.00 | | |
| CURREXP | CURRENT EXPENSE 010 | 1.0175366760 | $198,690 | $52,020 | $52.93 | | |
| HUMNSERV | HUMAN SERVICES 119 | 0.0250000000 | $198,690 | $52,020 | $1.30 | | |
| SLDREL | SOLDIERS RELIEF 121 | 0.0155990005 | $198,690 | $52,020 | $0.81 | | |
| EMERGSER | EMS 147 | 0.3792580840 | $198,690 | $52,020 | $19.73 | | |
| EMSRFD | EMS REFUND 147 | 0.0000000000 | $198,690 | $52,020 | $0.00 | | |
| FD5EXP | FD #5 EXPENSE 689 | 1.2045331840 | $198,690 | $52,020 | $62.66 | | |
| RLBRFD | RURAL LIBRARY REFUND 623 | 0.0000000000 | $198,690 | $52,020 | $0.00 | | |
| RURALLIB | RURAL LIBRARY 623 | 0.3710609029 | $198,690 | $52,020 | $19.30 | | |
| PORTRFD | PORT REFUND 640 | 0.0000000000 | $198,690 | $52,020 | $0.00 | | |
| PORTWWGEN | PORT OF WW 640 | 0.2460186015 | $198,690 | $52,020 | $12.80 | | |
| SD400BOND | SD #400 BOND 793 | 0.0000000000 | $198,690 | $0 | $0.00 | | |
| SD400CAP | SD #400 CP 792 | 0.0000000000 | $198,690 | $0 | $0.00 | | |
| SD400GEN | SD #400 GENERAL 790 | 0.0000000000 | $198,690 | $0 | $0.00 | | |
| ST2 | STATE SCHOOL PART 2 600 | 0.0000000000 | $198,690 | $0 | $0.00 | | |
| STATESCHL | STATE SCHOOL 600 | 1.5158548041 | $198,690 | $52,020 | $78.85 | | |
| STREFUND | STATE REFUND LEVY 603 | 0.0000000000 | $198,690 | $52,020 | $0.00 | | |
| COROAD | COUNTY ROAD 115 | 1.6549953990 | $198,690 | $52,020 | $86.09 | | |
| CRPRD | COUNTY ROAD REFUND 115 | 0.0000000000 | $198,690 | $52,020 | $0.00 | | |
| | Total Tax Rate: | 6.4298566520 | | | | | |
| | | | | Taxes w/Current Exemptions: | $334.47 | | |
| | | | | Taxes w/o Exemptions: | $1,890.57 | | |
Improvement / Building
| Improvement #1: | MANUFACTURED HOME | State Code: | 11 | 2032.0 sqft | Value: | $138,560 |
| Exterior Wall: | METAL/STEEL | Heating/Cooling: | WARM & COOLED AIR | | Number of Bathrooms: | 2 | Number of Bedrooms: | 3 | | Plumbing: | 8 | Roof Covering: | COMP SHINGLE |
|
| | Type | Description | Class CD | Sub Class CD | Year Built | Area |
| | MOBHOME | MANUFACTURD HOMES | 1 | 20 | 1975 | 2032.0 |
| | MI1 | MH SET-UP COSTS | 1 | 20 | 1975 | 1.0 |
| | POL2 | POLE BUILDING-CONCRETE | 1 | 20 | 1975 | 576.0 |
| | GSTO | GARAGE STORAGE-NO VALUE | 1 | 20 | 1975 | 100.0 |
| | TOOL | TOOL SHED | 1 | 20 | 1975 | 96.0 |
| | WOD | Wood Deck | 1 | 20 | 1975 | 84.0 |
| | CPC | COVERED CARPORT/PATIO | 1 | 20 | 1975 | 228.0 |
Sketch
Property Image
Land
| 1 | RES 1 | Converted: Residential | 0.3196 | 13920.00 | 0.00 | 0.00 | 1.00 | $60,130 | $0 |
Roll Value History
| 2026 | N/A | N/A | N/A | N/A | N/A |
| 2025 | $187,050 | $60,130 | $0 | $247,180 | $52,020 |
| 2024 | $138,560 | $60,130 | $0 | $198,690 | $52,020 |
| 2023 | $138,560 | $60,130 | $0 | $198,690 | $52,020 |
| 2022 | $138,560 | $60,130 | $0 | $198,690 | $52,020 |
| 2021 | $92,370 | $60,130 | $0 | $152,500 | $52,020 |
| 2020 | $106,550 | $23,500 | $0 | $130,050 | $52,020 |
| 2019 | $106,550 | $23,500 | $0 | $130,050 | $52,020 |
| 2018 | $101,480 | $23,500 | $0 | $124,980 | $124,980 |
| 2017 | $101,480 | $23,500 | $0 | $124,980 | $124,980 |
| 2016 | $67,650 | $23,500 | $0 | $91,150 | $91,150 |
| 2015 | $67,650 | $23,500 | $0 | $91,150 | $91,150 |
| 2014 | $61,500 | $23,500 | $0 | $85,000 | $85,000 |
| 2013 | $61,500 | $23,500 | $0 | $85,000 | $85,000 |
| 2012 | $61,500 | $23,500 | $0 | $0 | $0 |
| 2011 | $61,500 | $23,500 | $0 | $0 | $0 |
| 2010 | $61,500 | $23,500 | $0 | $0 | $0 |
| 2009 | $63,900 | $19,600 | $0 | $0 | $0 |
| 2008 | $63,900 | $19,600 | $0 | $0 | $0 |
| 2007 | $63,900 | $19,600 | $0 | $0 | $0 |
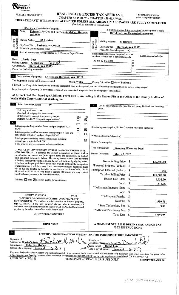
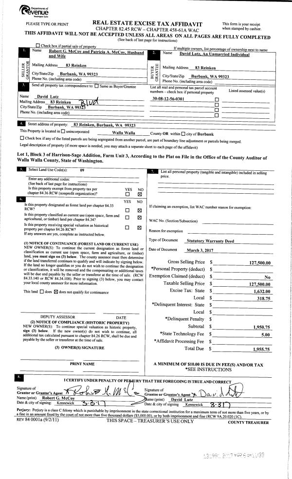
Deed and Sales History
| 1 | 03/06/2017 | MH AFFIDAV | MOBILE HOME AFFIDAVIT | MCCOY ROBERT G & PATRICIA A | LUTZ DAVID | | | | 131981 | MHAFF-131981 |
| 2 | 03/06/2017 | SWD | STATUTORY WARRANTY DEED | MC COY ROBERT G | LUTZ DAVID | | | $127,500.00 | 131981 | 2017-01735 |
Payout Agreement
| No payout information available.. |