Property
Account |
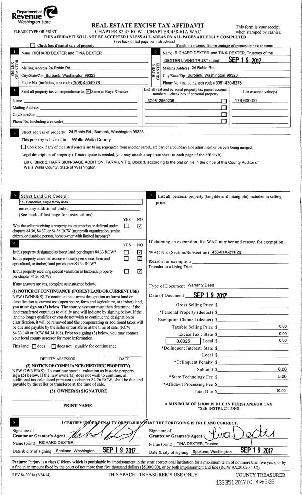
| Property ID: | 24358 | Abbreviated Legal Description: | HARRISON SAGE SUBD. LOT 6 BLK 2 |
| Parcel Number: | 300812560206 | Agent Code: | |
| Type: | Real | | |
| Tax Area: | 331 - 400-M-5-W4 | Land Use Code | 11 |
| Open Space: | N | DFL | N |
| Historic Property: | N | Remodel Property: | N |
| Multi-Family Redevelopment: | N | | |
| Township: | 8 | Section: | 12 |
| Range: | 30 |
Location |
| Address: | 24 ROBIN RD WA 99323 | Mapsco: | |
| Neighborhood: | Burbank A MH | Map ID: | |
| Neighborhood CD: | 213761 |
Owner |
| Name: | DEXTER LIVING TRUST | Owner ID: | 61866 |
| Mailing Address: | 24 ROBIN RD BURBANK, WA 99323 | % Ownership: | 100.0000000000% |
| | | Exemptions: | |
Taxes and Assessment Details
Property Tax Information as of
02/21/2026
Click on "Statement Details" to expand or collapse a tax statement.
* Please enter a valid date ** Please enter a valid date *
Statement Details |
| | TOTAL: | $0.00 | $0.00 | $0.00 | $0.00 | $0.00 | $0.00 |
|
| | $0.00 | $0.00 | $0.00 | $0.00 | $0.00 | $0.00 |
Values
| (+) Improvement Homesite Value: | + | $0 | |
| (+) Improvement Non-Homesite Value: | + | $314,240 | |
| (+) Land Homesite Value: | + | $0 | |
| (+) Land Non-Homesite Value: | + | $59,720 | |
| (+) Curr Use (HS): | + | $0 | $0 |
| (+) Curr Use (NHS): | + | $0 | $0 |
| | | -------------------------- | |
| (=) Market Value: | = | $373,960 | |
| (–) Productivity Loss: | – | $0 | |
| | | -------------------------- | |
| (=) Subtotal: | = | $373,960 | |
| (+) Senior Appraised Value: | + | $0 | |
| (+) Non-Senior Appraised Value: | + | $373,960 | |
| | | -------------------------- | |
| (=) Total Appraised Value: | = | $373,960 | |
| (–) Senior Exemption Loss: | – | $0 | |
| (–) Exemption Loss: | – | $0 | |
| | | -------------------------- | |
| (=) Taxable Value: | = | $373,960 | |
Taxing Jurisdiction
| Owner: | DEXTER LIVING TRUST | | |
| % Ownership: | 100.0000000000% | | |
| Total Value: | $373,960 | | |
| Tax Area: | 331 - 400-M-5-W4 |
| CERFD | CURRENT EXPENSE REFUND 010 | 0.0000000000 | $373,960 | $373,960 | $0.00 | | |
| CURREXP | CURRENT EXPENSE 010 | 1.0175366760 | $373,960 | $373,960 | $380.52 | | |
| HUMNSERV | HUMAN SERVICES 119 | 0.0250000000 | $373,960 | $373,960 | $9.35 | | |
| SLDREL | SOLDIERS RELIEF 121 | 0.0155990005 | $373,960 | $373,960 | $5.83 | | |
| EMERGSER | EMS 147 | 0.3792580840 | $373,960 | $373,960 | $141.83 | | |
| EMSRFD | EMS REFUND 147 | 0.0000000000 | $373,960 | $373,960 | $0.00 | | |
| FD5EXP | FD #5 EXPENSE 689 | 1.2045331840 | $373,960 | $373,960 | $450.45 | | |
| RLBRFD | RURAL LIBRARY REFUND 623 | 0.0000000000 | $373,960 | $373,960 | $0.00 | | |
| RURALLIB | RURAL LIBRARY 623 | 0.3710609029 | $373,960 | $373,960 | $138.76 | | |
| PORTRFD | PORT REFUND 640 | 0.0000000000 | $373,960 | $373,960 | $0.00 | | |
| PORTWWGEN | PORT OF WW 640 | 0.2460186015 | $373,960 | $373,960 | $92.00 | | |
| SD400BOND | SD #400 BOND 793 | 0.0000000000 | $373,960 | $373,960 | $0.00 | | |
| SD400CAP | SD #400 CP 792 | 0.3443722657 | $373,960 | $373,960 | $128.78 | | |
| SD400GEN | SD #400 GENERAL 790 | 1.9278469916 | $373,960 | $373,960 | $720.94 | | |
| ST2 | STATE SCHOOL PART 2 600 | 0.8131451643 | $373,960 | $373,960 | $304.08 | | |
| STATESCHL | STATE SCHOOL 600 | 1.5158548041 | $373,960 | $373,960 | $566.87 | | |
| STREFUND | STATE REFUND LEVY 603 | 0.0000000000 | $373,960 | $373,960 | $0.00 | | |
| COROAD | COUNTY ROAD 115 | 1.6549953990 | $373,960 | $373,960 | $618.90 | | |
| CRPRD | COUNTY ROAD REFUND 115 | 0.0000000000 | $373,960 | $373,960 | $0.00 | | |
| | Total Tax Rate: | 9.5152210736 | | | | | |
| | | | | Taxes w/Current Exemptions: | $3,558.31 | | |
| | | | | Taxes w/o Exemptions: | $3,558.31 | | |
Improvement / Building
| Improvement #1: | MANUFACTURED HOME | State Code: | 11 | 2239.0 sqft | Value: | $314,240 |
| Exterior Wall: | HARDBOARD | Heating/Cooling: | WARM & COOLED AIR | | Number of Bathrooms: | 3 | Number of Bedrooms: | 4 | | Plumbing: | 12 | Roof Covering: | COMP SHINGLE |
|
| | Type | Description | Class CD | Sub Class CD | Year Built | Area |
| | MOBHOME | MANUFACTURD HOMES | 1 | 50 | 2001 | 2239.0 |
| | MI1 | MH SET-UP COSTS | 1 | 50 | 2001 | 1.0 |
| | DTG | Detached Garage | 1 | 50 | 2001 | 640.0 |
| | CPC | COVERED CARPORT/PATIO | 1 | 50 | 2001 | 360.0 |
| | SOLR | SOLAR POWER PANELS | 1 | 50 | 2017 | 32.0 |
Sketch
Property Image
Land
| 1 | RES 1 | Converted: Residential | 0.2893 | 12600.00 | 0.00 | 0.00 | 1.00 | $59,720 | $0 |
Roll Value History
| 2026 | N/A | N/A | N/A | N/A | N/A |
| 2025 | $329,950 | $59,720 | $0 | $389,670 | $389,670 |
| 2024 | $329,950 | $59,720 | $0 | $389,670 | $389,670 |
| 2023 | $314,240 | $59,720 | $0 | $373,960 | $373,960 |
| 2022 | $273,250 | $59,720 | $0 | $332,970 | $332,970 |
| 2021 | $260,240 | $59,720 | $0 | $319,960 | $319,960 |
| 2020 | $186,100 | $22,800 | $0 | $208,900 | $208,900 |
| 2019 | $186,100 | $22,800 | $0 | $208,900 | $208,900 |
| 2018 | $186,100 | $22,800 | $0 | $208,900 | $208,900 |
| 2017 | $169,180 | $22,800 | $0 | $191,980 | $191,980 |
| 2016 | $153,800 | $22,800 | $0 | $176,600 | $176,600 |
| 2015 | $153,800 | $22,800 | $0 | $176,600 | $176,600 |
| 2014 | $153,800 | $22,800 | $0 | $176,600 | $176,600 |
| 2013 | $153,800 | $22,800 | $0 | $176,600 | $176,600 |
| 2012 | $145,400 | $22,800 | $0 | $0 | $0 |
| 2011 | $145,400 | $22,800 | $0 | $0 | $0 |
| 2010 | $145,400 | $22,800 | $0 | $0 | $0 |
| 2009 | $142,600 | $18,500 | $0 | $0 | $0 |
| 2008 | $121,600 | $18,500 | $0 | $0 | $0 |
| 2007 | $121,600 | $18,500 | $0 | $0 | $0 |
Deed and Sales History
| 1 | 09/19/2017 | WARRANTY D | WARRANTY DEED | DEXTER RICHARD J & TINA M | DEXTER LIVING TRUST | | | $0.00 | 133351 | 2017-07897 |
Payout Agreement
| No payout information available.. |