Property
Account |
| Property ID: | 24326 | Abbreviated Legal Description: | COLUMBIA VIEW #4 LOT 7 BLK 6 |
| Parcel Number: | 300812520607 | Agent Code: | |
| Type: | Real | | |
| Tax Area: | 328 - 400-M-5 | Land Use Code | 11 |
| Open Space: | N | DFL | N |
| Historic Property: | N | Remodel Property: | N |
| Multi-Family Redevelopment: | N | | |
| Township: | 8 | Section: | 12 |
| Range: | 30 |
Location |
| Address: | 313 HARRISON RD WA 99323 | Mapsco: | |
| Neighborhood: | Burbank A MH | Map ID: | |
| Neighborhood CD: | 213761 |
Owner |
| Name: | WILLIAMSON CLINT | Owner ID: | 71840 |
| Mailing Address: | 313 HARRISON RD BURBANK, WA 99323 | % Ownership: | 100.0000000000% |
| | | Exemptions: | |
Taxes and Assessment Details
Property Tax Information as of
02/21/2026
Click on "Statement Details" to expand or collapse a tax statement.
* Please enter a valid date ** Please enter a valid date *
Statement Details |
| | TOTAL: | $0.00 | $0.00 | $0.00 | $0.00 | $0.00 | $0.00 |
|
| | $0.00 | $0.00 | $0.00 | $0.00 | $0.00 | $0.00 |
Values
| (+) Improvement Homesite Value: | + | $0 | |
| (+) Improvement Non-Homesite Value: | + | $231,290 | |
| (+) Land Homesite Value: | + | $0 | |
| (+) Land Non-Homesite Value: | + | $66,640 | |
| (+) Curr Use (HS): | + | $0 | $0 |
| (+) Curr Use (NHS): | + | $0 | $0 |
| | | -------------------------- | |
| (=) Market Value: | = | $297,930 | |
| (–) Productivity Loss: | – | $0 | |
| | | -------------------------- | |
| (=) Subtotal: | = | $297,930 | |
| (+) Senior Appraised Value: | + | $0 | |
| (+) Non-Senior Appraised Value: | + | $297,930 | |
| | | -------------------------- | |
| (=) Total Appraised Value: | = | $297,930 | |
| (–) Senior Exemption Loss: | – | $0 | |
| (–) Exemption Loss: | – | $0 | |
| | | -------------------------- | |
| (=) Taxable Value: | = | $297,930 | |
Taxing Jurisdiction
| Owner: | WILLIAMSON CLINT | | |
| % Ownership: | 100.0000000000% | | |
| Total Value: | $297,930 | | |
| Tax Area: | 328 - 400-M-5 |
| CERFD | CURRENT EXPENSE REFUND 010 | 0.0000000000 | $297,930 | $297,930 | $0.00 | | |
| CURREXP | CURRENT EXPENSE 010 | 1.0175366760 | $297,930 | $297,930 | $303.15 | | |
| HUMNSERV | HUMAN SERVICES 119 | 0.0250000000 | $297,930 | $297,930 | $7.45 | | |
| SLDREL | SOLDIERS RELIEF 121 | 0.0155990005 | $297,930 | $297,930 | $4.65 | | |
| EMERGSER | EMS 147 | 0.3792580840 | $297,930 | $297,930 | $112.99 | | |
| EMSRFD | EMS REFUND 147 | 0.0000000000 | $297,930 | $297,930 | $0.00 | | |
| FD5EXP | FD #5 EXPENSE 689 | 1.2045331840 | $297,930 | $297,930 | $358.87 | | |
| RLBRFD | RURAL LIBRARY REFUND 623 | 0.0000000000 | $297,930 | $297,930 | $0.00 | | |
| RURALLIB | RURAL LIBRARY 623 | 0.3710609029 | $297,930 | $297,930 | $110.55 | | |
| PORTRFD | PORT REFUND 640 | 0.0000000000 | $297,930 | $297,930 | $0.00 | | |
| PORTWWGEN | PORT OF WW 640 | 0.2460186015 | $297,930 | $297,930 | $73.30 | | |
| SD400BOND | SD #400 BOND 793 | 0.0000000000 | $297,930 | $297,930 | $0.00 | | |
| SD400CAP | SD #400 CP 792 | 0.3443722657 | $297,930 | $297,930 | $102.60 | | |
| SD400GEN | SD #400 GENERAL 790 | 1.9278469916 | $297,930 | $297,930 | $574.36 | | |
| ST2 | STATE SCHOOL PART 2 600 | 0.8131451643 | $297,930 | $297,930 | $242.26 | | |
| STATESCHL | STATE SCHOOL 600 | 1.5158548041 | $297,930 | $297,930 | $451.62 | | |
| STREFUND | STATE REFUND LEVY 603 | 0.0000000000 | $297,930 | $297,930 | $0.00 | | |
| COROAD | COUNTY ROAD 115 | 1.6549953990 | $297,930 | $297,930 | $493.07 | | |
| CRPRD | COUNTY ROAD REFUND 115 | 0.0000000000 | $297,930 | $297,930 | $0.00 | | |
| | Total Tax Rate: | 9.5152210736 | | | | | |
| | | | | Taxes w/Current Exemptions: | $2,834.87 | | |
| | | | | Taxes w/o Exemptions: | $2,834.87 | | |
Improvement / Building
| Improvement #1: | MANUFACTURED HOME | State Code: | 11 | 1586.0 sqft | Value: | $231,290 |
| Exterior Wall: | VINYL | Heating/Cooling: | REV-HEAT-PUMP-W/DUCT | | Number of Bathrooms: | 2 | Number of Bedrooms: | 3 | | Plumbing: | 8 | Roof Covering: | COMP SHINGLE |
|
| | Type | Description | Class CD | Sub Class CD | Year Built | Area |
| | MOBHOME | MANUFACTURD HOMES | 1 | 30 | 1991 | 1586.0 |
| | MI1 | MH SET-UP COSTS | 1 | 30 | 1991 | 1.0 |
| | POL3 | POLE BUILDING-CON,ELEC,INSU | 1 | 30 | 1991 | 1120.0 |
| | WOD | Wood Deck | 1 | 30 | 1991 | 190.0 |
| | CPC | COVERED CARPORT/PATIO | 1 | 30 | 1991 | 120.0 |
| | CPC | COVERED CARPORT/PATIO | 1 | 30 | 1991 | 270.0 |
| | CPCD | CARPORT/DIRT FLOOR | 1 | 30 | 1991 | 480.0 |
Sketch
Property Image
Land
| 1 | RES 1 | Converted: Residential | 0.7649 | 33320.00 | 0.00 | 0.00 | 1.00 | $66,640 | $0 |
Roll Value History
| 2026 | N/A | N/A | N/A | N/A | N/A |
| 2025 | $279,280 | $66,640 | $0 | $345,920 | $345,920 |
| 2024 | $265,980 | $66,640 | $0 | $332,620 | $332,620 |
| 2023 | $231,290 | $66,640 | $0 | $297,930 | $297,930 |
| 2022 | $201,120 | $66,640 | $0 | $267,760 | $267,760 |
| 2021 | $134,080 | $66,640 | $0 | $200,720 | $200,720 |
| 2020 | $135,020 | $35,000 | $0 | $170,020 | $170,020 |
| 2019 | $135,020 | $35,000 | $0 | $170,020 | $170,020 |
| 2018 | $135,020 | $35,000 | $0 | $170,020 | $170,020 |
| 2017 | $135,020 | $35,000 | $0 | $170,020 | $170,020 |
| 2016 | $128,590 | $35,000 | $0 | $163,590 | $163,590 |
| 2015 | $116,900 | $35,000 | $0 | $151,900 | $151,900 |
| 2014 | $116,900 | $35,000 | $0 | $151,900 | $151,900 |
| 2013 | $116,900 | $35,000 | $0 | $151,900 | $151,900 |
| 2012 | $103,100 | $35,000 | $0 | $0 | $0 |
| 2011 | $103,100 | $35,000 | $0 | $0 | $0 |
| 2010 | $103,100 | $35,000 | $0 | $0 | $0 |
| 2009 | $104,300 | $35,000 | $0 | $0 | $0 |
| 2008 | $61,100 | $35,000 | $0 | $0 | $0 |
| 2007 | $61,100 | $35,000 | $0 | $0 | $0 |
Deed and Sales History
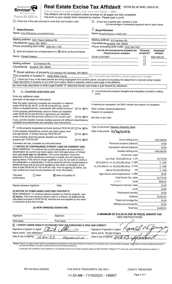
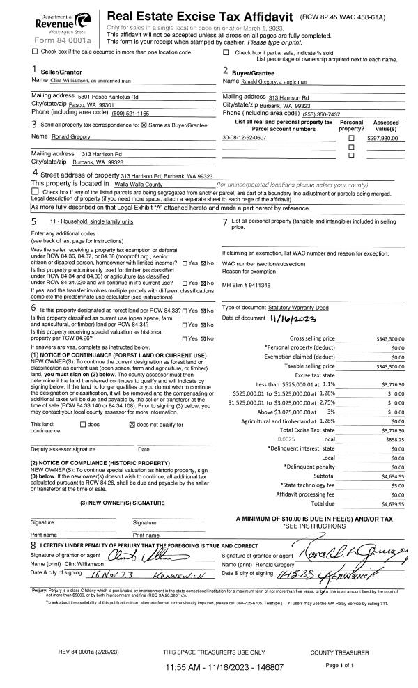
| 1 | 11/16/2023 | SWD | STATUTORY WARRANTY DEED | WILLIAMSON CLINT | GREGORY RONALD | | | $343,300.00 | 146807 | 2023-06720 |
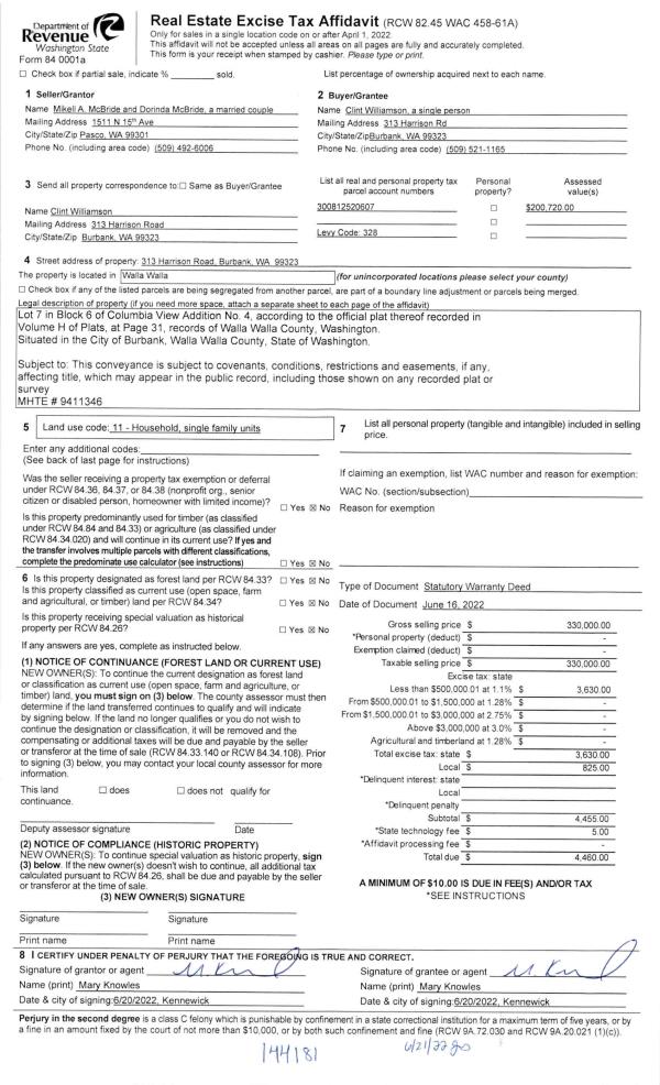
| 2 | 06/21/2022 | SWD | STATUTORY WARRANTY DEED | MC BRIDE MIKELL A | WILLIAMSON CLINT | | | $330,000.00 | 144181 | 2022-05225 |
| 3 | 08/10/2015 | QCD | QUIT CLAIM DEED | MC BRIDE DORINDA D | MC BRIDE MIKELL A | | | | 128576 | 2015-06906 |
| 4 | 08/10/2015 | SWD | STATUTORY WARRANTY DEED | LEAHY CHRIS & CHRISTINE | MC BRIDE MIKELL A | | | $174,900.00 | 128577 | 2015-06905 |
| 5 | 03/13/2007 | WARRANTY D | WARRANTY DEED | STOLTZ, MICHAEL L & GRETCHEN L | LEAHY, CHRIS & CHRISTINE | | | $149,000.00 | 112389 | 2007-02796 |
Payout Agreement
| No payout information available.. |