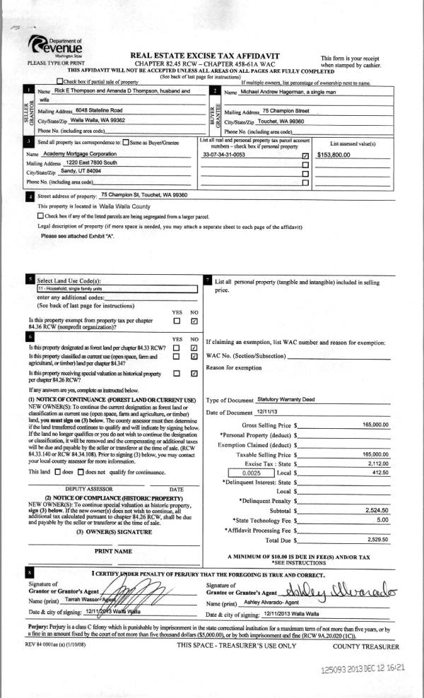
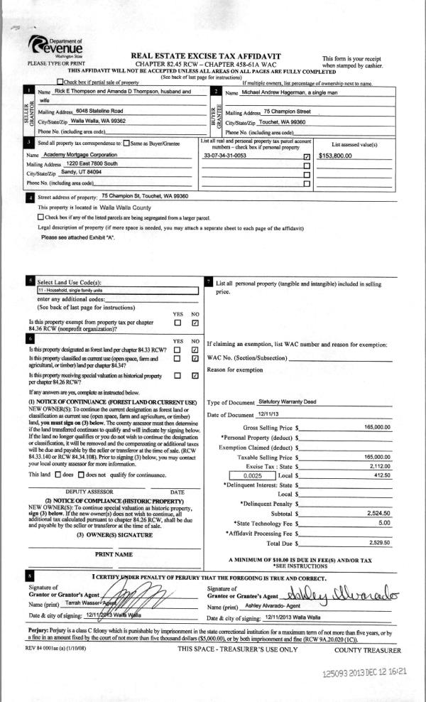
Property
Account |
| Property ID: | 2432 | Abbreviated Legal Description: | SEC 34 TWN 7 RNG 33 TAX 61 |
| Parcel Number: | 330734310053 | Agent Code: | |
| Type: | Real | | |
| Tax Area: | 323 - 300-6-TM | Land Use Code | 11 |
| Open Space: | N | DFL | N |
| Historic Property: | N | Remodel Property: | N |
| Multi-Family Redevelopment: | N | | |
| Township: | 7 | Section: | 34 |
| Range: | 33 |
Location |
| Address: | 75 CHAMPION ST WA 99360 | Mapsco: | |
| Neighborhood: | A Touchet/Lowden SFR | Map ID: | |
| Neighborhood CD: | 213611 |
Owner |
| Name: | MARTINEZ J JESUS & CARMEN F | Owner ID: | 63337 |
| Mailing Address: | 75 CHAMPION ST TOUCHET, WA 99360 | % Ownership: | 100.0000000000% |
| | | Exemptions: | |
Taxes and Assessment Details
Property Tax Information as of
02/21/2026
Click on "Statement Details" to expand or collapse a tax statement.
* Please enter a valid date ** Please enter a valid date *
Statement Details |
| | TOTAL: | $0.00 | $0.00 | $0.00 | $0.00 | $0.00 | $0.00 |
|
| | $0.00 | $0.00 | $0.00 | $0.00 | $0.00 | $0.00 |
Values
| (+) Improvement Homesite Value: | + | $0 | |
| (+) Improvement Non-Homesite Value: | + | $300,620 | |
| (+) Land Homesite Value: | + | $0 | |
| (+) Land Non-Homesite Value: | + | $45,240 | |
| (+) Curr Use (HS): | + | $0 | $0 |
| (+) Curr Use (NHS): | + | $0 | $0 |
| | | -------------------------- | |
| (=) Market Value: | = | $345,860 | |
| (–) Productivity Loss: | – | $0 | |
| | | -------------------------- | |
| (=) Subtotal: | = | $345,860 | |
| (+) Senior Appraised Value: | + | $0 | |
| (+) Non-Senior Appraised Value: | + | $345,860 | |
| | | -------------------------- | |
| (=) Total Appraised Value: | = | $345,860 | |
| (–) Senior Exemption Loss: | – | $0 | |
| (–) Exemption Loss: | – | $0 | |
| | | -------------------------- | |
| (=) Taxable Value: | = | $345,860 | |
Taxing Jurisdiction
| Owner: | MARTINEZ J JESUS & CARMEN F | | |
| % Ownership: | 100.0000000000% | | |
| Total Value: | $345,860 | | |
| Tax Area: | 323 - 300-6-TM |
| CERFD | CURRENT EXPENSE REFUND 010 | 0.0000000000 | $345,860 | $345,860 | $0.00 | | |
| CURREXP | CURRENT EXPENSE 010 | 1.0175366760 | $345,860 | $345,860 | $351.93 | | |
| HUMNSERV | HUMAN SERVICES 119 | 0.0250000000 | $345,860 | $345,860 | $8.65 | | |
| SLDREL | SOLDIERS RELIEF 121 | 0.0155990005 | $345,860 | $345,860 | $5.40 | | |
| EMERGSER | EMS 147 | 0.3792580840 | $345,860 | $345,860 | $131.17 | | |
| EMSRFD | EMS REFUND 147 | 0.0000000000 | $345,860 | $345,860 | $0.00 | | |
| FD6EXP | FD #6 EXPENSE 693 | 0.6692985746 | $345,860 | $345,860 | $231.48 | | |
| RLBRFD | RURAL LIBRARY REFUND 623 | 0.0000000000 | $345,860 | $345,860 | $0.00 | | |
| RURALLIB | RURAL LIBRARY 623 | 0.3710609029 | $345,860 | $345,860 | $128.34 | | |
| PORTRFD | PORT REFUND 640 | 0.0000000000 | $345,860 | $345,860 | $0.00 | | |
| PORTWWGEN | PORT OF WW 640 | 0.2460186015 | $345,860 | $345,860 | $85.09 | | |
| SD300BOND | SD #300 BOND 783 | 1.8964951620 | $345,860 | $345,860 | $655.92 | | |
| SD300GEN | SD #300 GENERAL 780 | 2.1198322866 | $345,860 | $345,860 | $733.17 | | |
| ST2 | STATE SCHOOL PART 2 600 | 0.8131451643 | $345,860 | $345,860 | $281.23 | | |
| STATESCHL | STATE SCHOOL 600 | 1.5158548041 | $345,860 | $345,860 | $524.27 | | |
| STREFUND | STATE REFUND LEVY 603 | 0.0000000000 | $345,860 | $345,860 | $0.00 | | |
| COROAD | COUNTY ROAD 115 | 1.6549953990 | $345,860 | $345,860 | $572.40 | | |
| CRPRD | COUNTY ROAD REFUND 115 | 0.0000000000 | $345,860 | $345,860 | $0.00 | | |
| | Total Tax Rate: | 10.7240946555 | | | | | |
| | | | | Taxes w/Current Exemptions: | $3,709.05 | | |
| | | | | Taxes w/o Exemptions: | $3,709.05 | | |
Improvement / Building
| Improvement #1: | RESIDENTIAL | State Code: | 11 | 1946.0 sqft | Value: | $300,620 |
| Exterior Wall: | SIDING | Heating/Cooling: | BASEBOARD ELECTRIC | | Number of Bathrooms: | 2 | Number of Bedrooms: | 3 | | Plumbing: | 10 | Roof Covering: | WOOD SHAKE |
|
| | Type | Description | Class CD | Sub Class CD | Year Built | Area |
| | MA | Main Area | 1 | 30 | 1955 | 1946.0 |
| | GFP | GAS FIREPLACE | 1 | 30 | 0 | 1.0 |
| | SI1 | SITE IMPROVEMENT | 1 | 30 | 0 | 1.5 |
| | ATG | Attached Garage | 1 | 30 | 1955 | 676.0 |
| | WOD | Wood Deck | 1 | 30 | 1955 | 978.0 |
| | RPO | OPEN PORCH W/ROOF | 1 | 30 | 1955 | 80.0 |
Sketch
Property Image
Land
| 1 | RES 1 | Converted: Residential | 0.3100 | 13503.00 | 0.00 | 0.00 | 1.00 | $45,240 | $0 |
Roll Value History
| 2026 | N/A | N/A | N/A | N/A | N/A |
| 2025 | $300,620 | $45,240 | $0 | $345,860 | $345,860 |
| 2024 | $300,620 | $45,240 | $0 | $345,860 | $345,860 |
| 2023 | $300,620 | $45,240 | $0 | $345,860 | $345,860 |
| 2022 | $261,410 | $45,240 | $0 | $306,650 | $306,650 |
| 2021 | $174,270 | $45,240 | $0 | $219,510 | $219,510 |
| 2020 | $184,650 | $33,900 | $0 | $218,550 | $218,550 |
| 2019 | $184,650 | $33,900 | $0 | $218,550 | $218,550 |
| 2018 | $131,890 | $33,900 | $0 | $165,790 | $165,790 |
| 2017 | $119,900 | $33,900 | $0 | $153,800 | $153,800 |
| 2016 | $119,900 | $33,900 | $0 | $153,800 | $153,800 |
| 2015 | $119,900 | $33,900 | $0 | $153,800 | $153,800 |
| 2014 | $119,900 | $33,900 | $0 | $153,800 | $153,800 |
| 2013 | $119,900 | $33,900 | $0 | $153,800 | $153,800 |
| 2012 | $119,900 | $33,900 | $0 | $0 | $0 |
| 2011 | $119,900 | $33,900 | $0 | $0 | $0 |
| 2010 | $119,900 | $33,900 | $0 | $0 | $0 |
| 2009 | $142,400 | $19,000 | $0 | $0 | $0 |
| 2008 | $142,400 | $19,000 | $0 | $0 | $0 |
| 2007 | $142,400 | $19,000 | $0 | $0 | $0 |
Deed and Sales History
| 1 | 06/11/2018 | SWD | STATUTORY WARRANTY DEED | HAGERMAN MICHAEL ANDREW | MARTINEZ J JESUS & CARMEN F | | | $222,500.00 | 134892 | 2018-04674 |
| 2 | 12/12/2013 | WARRANTY D | WARRANTY DEED | THOMPSON RICK E & AMANDA D | HAGERMAN MICHAEL ANDREW | | | $165,000.00 | 125093 | 2013-11910 |
| 3 | 08/01/2000 | WARRANTY D | WARRANTY DEED | | | | | $145,000.00 | 95730 | 3020-008341 |
Payout Agreement
| No payout information available.. |