Property
Account |
| Property ID: | 24304 | Abbreviated Legal Description: | BURBANK LOTS 15 THRU 18 BLK 13 |
| Parcel Number: | 300802531315 | Agent Code: | |
| Type: | Real | | |
| Tax Area: | 328 - 400-M-5 | Land Use Code | 11 |
| Open Space: | N | DFL | N |
| Historic Property: | N | Remodel Property: | N |
| Multi-Family Redevelopment: | N | | |
| Township: | 8 | Section: | 2 |
| Range: | 30 |
Location |
| Address: | 381 MAIN ST WA 99323 | Mapsco: | |
| Neighborhood: | Burbank F MH | Map ID: | |
| Neighborhood CD: | 212761 |
Owner |
| Name: | MARROQUIN ALBERTO | Owner ID: | 72898 |
| Mailing Address: | 4221 RIVERHAVEN ST PASCO, WA 99301 | % Ownership: | 100.0000000000% |
| | | Exemptions: | |
Taxes and Assessment Details
Values
| (+) Improvement Homesite Value: | + | $0 | |
| (+) Improvement Non-Homesite Value: | + | $27,720 | |
| (+) Land Homesite Value: | + | $0 | |
| (+) Land Non-Homesite Value: | + | $48,190 | |
| (+) Curr Use (HS): | + | $0 | $0 |
| (+) Curr Use (NHS): | + | $0 | $0 |
| | | -------------------------- | |
| (=) Market Value: | = | $75,910 | |
| (–) Productivity Loss: | – | $0 | |
| | | -------------------------- | |
| (=) Subtotal: | = | $75,910 | |
| (+) Senior Appraised Value: | + | $0 | |
| (+) Non-Senior Appraised Value: | + | $75,910 | |
| | | -------------------------- | |
| (=) Total Appraised Value: | = | $75,910 | |
| (–) Senior Exemption Loss: | – | $0 | |
| (–) Exemption Loss: | – | $0 | |
| | | -------------------------- | |
| (=) Taxable Value: | = | $75,910 | |
Taxing Jurisdiction
| Owner: | MARROQUIN ALBERTO | | |
| % Ownership: | 100.0000000000% | | |
| Total Value: | $75,910 | | |
| Tax Area: | 328 - 400-M-5 |
| CERFD | CURRENT EXPENSE REFUND 010 | 0.0000000000 | $75,910 | $75,910 | $0.00 | | |
| CURREXP | CURRENT EXPENSE 010 | 1.0175366760 | $75,910 | $75,910 | $77.24 | | |
| HUMNSERV | HUMAN SERVICES 119 | 0.0250000000 | $75,910 | $75,910 | $1.90 | | |
| SLDREL | SOLDIERS RELIEF 121 | 0.0155990005 | $75,910 | $75,910 | $1.18 | | |
| EMERGSER | EMS 147 | 0.3792580840 | $75,910 | $75,910 | $28.79 | | |
| EMSRFD | EMS REFUND 147 | 0.0000000000 | $75,910 | $75,910 | $0.00 | | |
| FD5EXP | FD #5 EXPENSE 689 | 1.2045331840 | $75,910 | $75,910 | $91.44 | | |
| RLBRFD | RURAL LIBRARY REFUND 623 | 0.0000000000 | $75,910 | $75,910 | $0.00 | | |
| RURALLIB | RURAL LIBRARY 623 | 0.3710609029 | $75,910 | $75,910 | $28.17 | | |
| PORTRFD | PORT REFUND 640 | 0.0000000000 | $75,910 | $75,910 | $0.00 | | |
| PORTWWGEN | PORT OF WW 640 | 0.2460186015 | $75,910 | $75,910 | $18.68 | | |
| SD400BOND | SD #400 BOND 793 | 0.0000000000 | $75,910 | $75,910 | $0.00 | | |
| SD400CAP | SD #400 CP 792 | 0.3443722657 | $75,910 | $75,910 | $26.14 | | |
| SD400GEN | SD #400 GENERAL 790 | 1.9278469916 | $75,910 | $75,910 | $146.34 | | |
| ST2 | STATE SCHOOL PART 2 600 | 0.8131451643 | $75,910 | $75,910 | $61.73 | | |
| STATESCHL | STATE SCHOOL 600 | 1.5158548041 | $75,910 | $75,910 | $115.07 | | |
| STREFUND | STATE REFUND LEVY 603 | 0.0000000000 | $75,910 | $75,910 | $0.00 | | |
| COROAD | COUNTY ROAD 115 | 1.6549953990 | $75,910 | $75,910 | $125.63 | | |
| CRPRD | COUNTY ROAD REFUND 115 | 0.0000000000 | $75,910 | $75,910 | $0.00 | | |
| | Total Tax Rate: | 9.5152210736 | | | | | |
| | | | | Taxes w/Current Exemptions: | $722.31 | | |
| | | | | Taxes w/o Exemptions: | $722.31 | | |
Improvement / Building
| Improvement #1: | MANUFACTURED HOME | State Code: | 11 | 576.0 sqft | Value: | $27,720 |
| Exterior Wall: | RIBBED ALUMINUM | Heating/Cooling: | WARM & COOLED AIR | | Number of Bathrooms: | 1 | Number of Bedrooms: | 2 | | Plumbing: | 5 | Roof Covering: | GALVANIZED METAL |
|
| | Type | Description | Class CD | Sub Class CD | Year Built | Area |
| | MOBHOME | MANUFACTURD HOMES | 1 | 20 | 1970 | 576.0 |
| | MPC | MH Park Low | 1 | 20 | 1970 | 5.0 |
| | WOD | Wood Deck | 1 | 20 | 1970 | 144.0 |
Sketch
Property Image
Land
| 1 | RES 1 | Converted: Residential | 0.2640 | 11500.00 | 0.00 | 0.00 | 1.00 | $48,190 | $0 |
Roll Value History
| 2026 | N/A | N/A | N/A | N/A | N/A |
| 2025 | $27,720 | $48,190 | $0 | $75,910 | $75,910 |
| 2024 | $27,720 | $48,190 | $0 | $75,910 | $75,910 |
| 2023 | $27,720 | $48,190 | $0 | $75,910 | $75,910 |
| 2022 | $15,840 | $48,190 | $0 | $64,030 | $64,030 |
| 2021 | $7,920 | $48,190 | $0 | $56,110 | $56,110 |
| 2020 | $7,920 | $22,300 | $0 | $30,220 | $30,220 |
| 2019 | $7,920 | $22,300 | $0 | $30,220 | $30,220 |
| 2018 | $7,920 | $22,300 | $0 | $30,220 | $30,220 |
| 2017 | $7,920 | $22,300 | $0 | $30,220 | $30,220 |
| 2016 | $7,200 | $22,300 | $0 | $29,500 | $29,500 |
| 2015 | $7,200 | $22,300 | $0 | $29,500 | $29,500 |
| 2014 | $7,200 | $22,300 | $0 | $29,500 | $29,500 |
| 2013 | $7,200 | $22,300 | $0 | $29,500 | $29,500 |
| 2012 | $7,200 | $22,300 | $0 | $0 | $0 |
| 2011 | $7,200 | $22,300 | $0 | $0 | $0 |
| 2010 | $7,200 | $22,300 | $0 | $0 | $0 |
| 2009 | $12,200 | $17,300 | $0 | $0 | $0 |
| 2008 | $10,800 | $17,300 | $0 | $0 | $0 |
| 2007 | $10,800 | $17,300 | $0 | $0 | $0 |
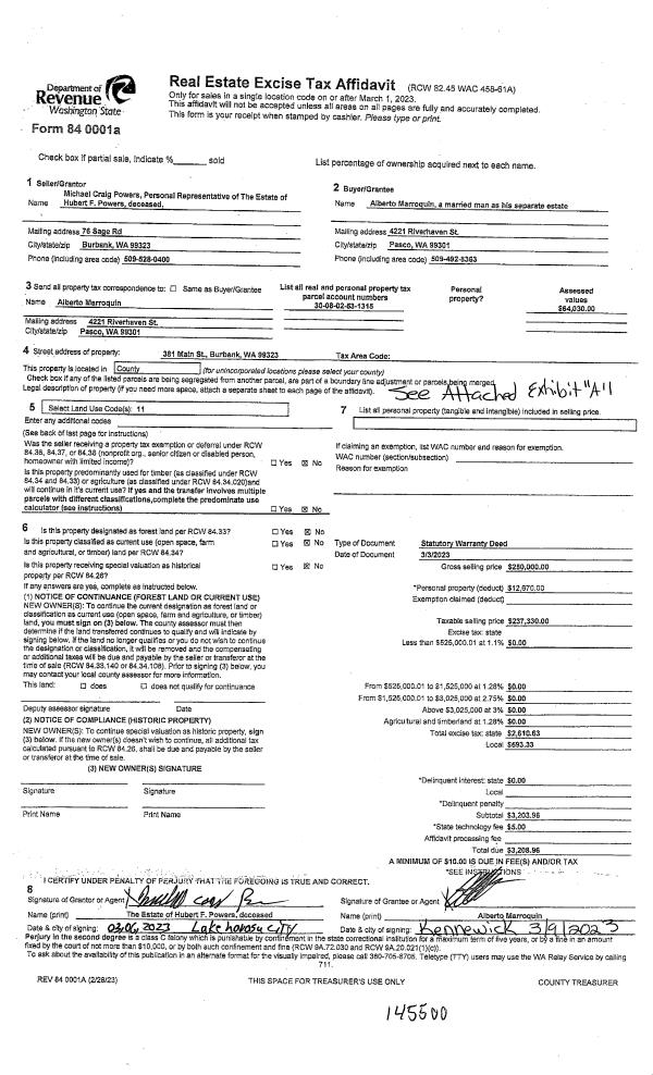
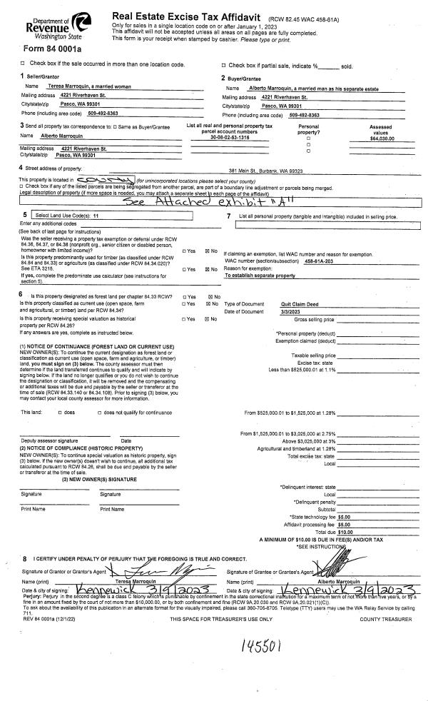
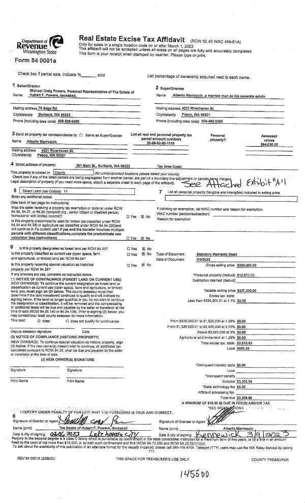
Deed and Sales History
| 1 | 03/10/2023 | QCD | QUIT CLAIM DEED | MARROQUIN TERESA | MARROQUIN ALBERTO | | | | 145501 | 2023-01251 |
| 2 | 03/10/2023 | SWD | STATUTORY WARRANTY DEED | POWERS HUBERT F ESTATE OF | MARROQUIN ALBERTO | | | $237,330.00 | 145500 | 2023-01250 |
| 3 | 03/10/2023 | MH AFFIDAV | MOBILE HOME AFFIDAVIT | POWERS HUBERT F ESTATE OF | MARROQUIN ALBERTO | | | $9,870.00 | 145503 | MHAFF-145503 |
| 4 | 12/16/1988 | WARRANTY D | WARRANTY DEED | | | | | $9,000.00 | 0 | 1748-808369 |
Payout Agreement
| No payout information available.. |