Property
Account |
| Property ID: | 24277 | Abbreviated Legal Description: | BLALOCK ORCHARDS LOT 3 BLK 3 LESS WLY 16' & LESS SLY 165' |
| Parcel Number: | 350723520415 | Agent Code: | |
| Type: | Real | | |
| Tax Area: | 311 - 250-4 | Land Use Code | 11 |
| Open Space: | N | DFL | N |
| Historic Property: | N | Remodel Property: | N |
| Multi-Family Redevelopment: | N | | |
| Township: | 7 | Section: | 23 |
| Range: | 35 |
Location |
| Address: | 647 BALDWIN RD WA 99324 | Mapsco: | |
| Neighborhood: | MH A Rural/City Infl | Map ID: | |
| Neighborhood CD: | 313062 |
Owner |
| Name: | PHILLIPS PATRICK | Owner ID: | 49664 |
| Mailing Address: | ELENA FOX 647 BALDWIN RD WALLA WALLA, WA 99362 | % Ownership: | 100.0000000000% |
| | | Exemptions: | |
Taxes and Assessment Details
Property Tax Information as of
02/21/2026
Click on "Statement Details" to expand or collapse a tax statement.
* Please enter a valid date ** Please enter a valid date *
Statement Details |
| | TOTAL: | $0.00 | $0.00 | $0.00 | $0.00 | $0.00 | $0.00 |
|
| | $0.00 | $0.00 | $0.00 | $0.00 | $0.00 | $0.00 |
Values
| (+) Improvement Homesite Value: | + | $0 | |
| (+) Improvement Non-Homesite Value: | + | $246,810 | |
| (+) Land Homesite Value: | + | $0 | |
| (+) Land Non-Homesite Value: | + | $133,230 | |
| (+) Curr Use (HS): | + | $0 | $0 |
| (+) Curr Use (NHS): | + | $0 | $0 |
| | | -------------------------- | |
| (=) Market Value: | = | $380,040 | |
| (–) Productivity Loss: | – | $0 | |
| | | -------------------------- | |
| (=) Subtotal: | = | $380,040 | |
| (+) Senior Appraised Value: | + | $0 | |
| (+) Non-Senior Appraised Value: | + | $380,040 | |
| | | -------------------------- | |
| (=) Total Appraised Value: | = | $380,040 | |
| (–) Senior Exemption Loss: | – | $0 | |
| (–) Exemption Loss: | – | $0 | |
| | | -------------------------- | |
| (=) Taxable Value: | = | $380,040 | |
Taxing Jurisdiction
| Owner: | PHILLIPS PATRICK | | |
| % Ownership: | 100.0000000000% | | |
| Total Value: | $380,040 | | |
| Tax Area: | 311 - 250-4 |
| CERFD | CURRENT EXPENSE REFUND 010 | 0.0000000000 | $380,040 | $380,040 | $0.00 | | |
| CURREXP | CURRENT EXPENSE 010 | 1.0175366760 | $380,040 | $380,040 | $386.70 | | |
| HUMNSERV | HUMAN SERVICES 119 | 0.0250000000 | $380,040 | $380,040 | $9.50 | | |
| SLDREL | SOLDIERS RELIEF 121 | 0.0155990005 | $380,040 | $380,040 | $5.93 | | |
| EMERGSER | EMS 147 | 0.3792580840 | $380,040 | $380,040 | $144.13 | | |
| EMSRFD | EMS REFUND 147 | 0.0000000000 | $380,040 | $380,040 | $0.00 | | |
| FD4EXP | FD #4 EXPENSE 686 | 0.8836993059 | $380,040 | $380,040 | $335.84 | | |
| RLBRFD | RURAL LIBRARY REFUND 623 | 0.0000000000 | $380,040 | $380,040 | $0.00 | | |
| RURALLIB | RURAL LIBRARY 623 | 0.3710609029 | $380,040 | $380,040 | $141.02 | | |
| PORTRFD | PORT REFUND 640 | 0.0000000000 | $380,040 | $380,040 | $0.00 | | |
| PORTWWGEN | PORT OF WW 640 | 0.2460186015 | $380,040 | $380,040 | $93.50 | | |
| SD250BOND | SD #250 BOND 773 | 1.4560608159 | $380,040 | $380,040 | $553.36 | | |
| SD250GEN | SD #250 GENERAL 770 | 2.3880724087 | $380,040 | $380,040 | $907.56 | | |
| ST2 | STATE SCHOOL PART 2 600 | 0.8131451643 | $380,040 | $380,040 | $309.03 | | |
| STATESCHL | STATE SCHOOL 600 | 1.5158548041 | $380,040 | $380,040 | $576.09 | | |
| STREFUND | STATE REFUND LEVY 603 | 0.0000000000 | $380,040 | $380,040 | $0.00 | | |
| COROAD | COUNTY ROAD 115 | 1.6549953990 | $380,040 | $380,040 | $628.96 | | |
| CRPRD | COUNTY ROAD REFUND 115 | 0.0000000000 | $380,040 | $380,040 | $0.00 | | |
| | Total Tax Rate: | 10.7663011628 | | | | | |
| | | | | Taxes w/Current Exemptions: | $4,091.62 | | |
| | | | | Taxes w/o Exemptions: | $4,091.62 | | |
Improvement / Building
| Improvement #1: | MANUFACTURED HOME | State Code: | 11 | 1620.0 sqft | Value: | $180,530 |
| Exterior Wall: | HARDBOARD | Heating/Cooling: | HEAT PUMP | | Number of Bathrooms: | 2 | Number of Bedrooms: | 1 | | Plumbing: | 9 | Roof Covering: | COMP SHINGLE |
|
| | Type | Description | Class CD | Sub Class CD | Year Built | Area |
| | MOBHOME | MANUFACTURD HOMES | 1 | 30 | 1999 | 1620.0 |
| | GIF | GARAGE INTERIOR FINISH | 1 | 30 | 0 | 255.0 |
| | GIF | GARAGE INTERIOR FINISH | 1 | 30 | 0 | 255.0 |
| | MI1 | MH SET-UP COSTS | 1 | 30 | 0 | 1.0 |
| | POL3 | POLE BUILDING-CON,ELEC,INSU | 1 | 30 | 2003 | 1600.0 |
| | WDR | WOOD DECK W/ROOF | 1 | 30 | 0 | 240.0 |
| | LOFT | Loft Area | 1 | | 1999 | 144.0 |
| | UTILITY | UTILITY BUILDING | 1 | | 1999 | 120.0 |
| | WOD | Wood Deck | 1 | 30 | 1999 | 100.0 |
| | WOD | Wood Deck | 1 | 30 | 1999 | 144.0 |
| | GIF | GARAGE INTERIOR FINISH | 1 | 30 | 1999 | 288.0 |
| Improvement #2: | MANUFACTURED HOME | State Code: | 11 | 720.0 sqft | Value: | $66,280 |
| Exterior Wall: | HARDBOARD | Heating/Cooling: | HEAT PUMP | | Number of Bathrooms: | 1 | Number of Bedrooms: | 2 | | Plumbing: | 6 | Roof Covering: | METAL ROOFING |
|
| | Type | Description | Class CD | Sub Class CD | Year Built | Area |
| | MOBHOME | MANUFACTURD HOMES | 1 | 30 | 2020 | 720.0 |
| | MI1 | MH SET-UP COSTS | 1 | 30 | 2020 | 1.0 |
| | RCD | WOOD DECK W/ROOF, CEILED | 1 | 30 | 2020 | 90.0 |
| | WOD | Wood Deck | 1 | 30 | 2020 | 64.0 |
| | TOOL | TOOL SHED | 1 | 30 | 2020 | 160.0 |
Sketch
Property Image
Land
| 1 | RES 1 | Converted: Residential | 1.5500 | 0.00 | 0.00 | 0.00 | 1.00 | $133,230 | $0 |
Roll Value History
| 2026 | N/A | N/A | N/A | N/A | N/A |
| 2025 | $394,900 | $133,230 | $0 | $528,130 | $528,130 |
| 2024 | $246,810 | $133,230 | $0 | $380,040 | $380,040 |
| 2023 | $246,810 | $133,230 | $0 | $380,040 | $380,040 |
| 2022 | $246,810 | $133,230 | $0 | $380,040 | $380,040 |
| 2021 | $224,800 | $79,400 | $0 | $304,200 | $304,200 |
| 2020 | $224,800 | $79,400 | $0 | $304,200 | $304,200 |
| 2019 | $158,560 | $79,400 | $0 | $237,960 | $237,960 |
| 2018 | $158,560 | $79,400 | $0 | $237,960 | $237,960 |
| 2017 | $132,130 | $79,400 | $0 | $211,530 | $211,530 |
| 2016 | $132,130 | $79,400 | $0 | $211,530 | $211,530 |
| 2015 | $131,800 | $79,400 | $0 | $211,200 | $211,200 |
| 2014 | $131,800 | $79,400 | $0 | $211,200 | $211,200 |
| 2013 | $131,800 | $79,400 | $0 | $211,200 | $211,200 |
| 2012 | $112,600 | $79,400 | $0 | $0 | $0 |
| 2011 | $112,600 | $79,400 | $0 | $0 | $0 |
| 2010 | $73,800 | $79,400 | $0 | $0 | $0 |
| 2009 | $123,000 | $47,200 | $0 | $0 | $0 |
| 2008 | $78,900 | $47,200 | $0 | $0 | $0 |
| 2007 | $78,900 | $47,200 | $0 | $0 | $0 |
Deed and Sales History
| 1 | 07/29/2024 | SWD | STATUTORY WARRANTY DEED | PHILLIPS PATRICK | MACKENZIE JILL & RICHARD | | | $550,000.00 | 147945 | 2024-04122 |
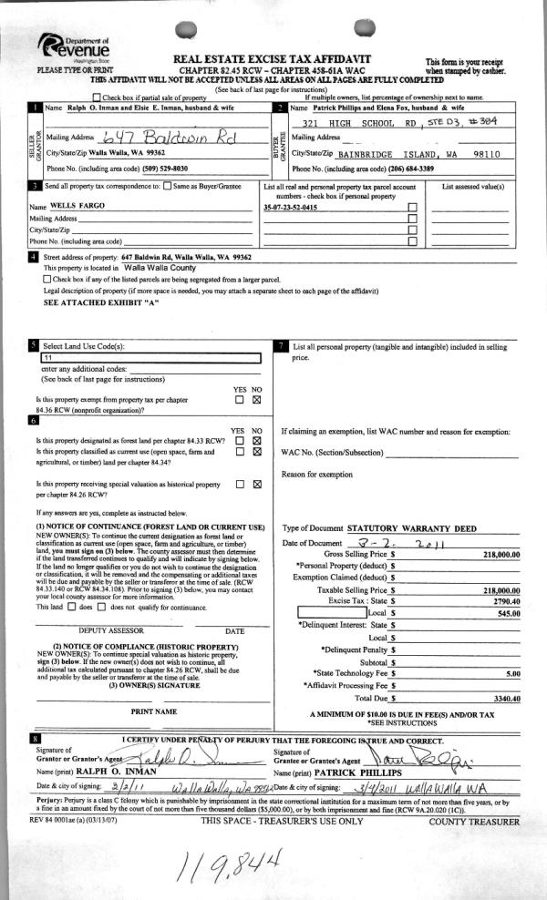
| 2 | 03/04/2011 | WARRANTY D | WARRANTY DEED | INMAN, RALPH O & ELSIE E | PHILLIPS, PATRICK | | | $218,000.00 | 119844 | 2011-02046 |
| 3 | 10/08/2004 | WARRANTY D | WARRANTY DEED | JOHNSON, BRYAN | INMAN, RALPH O & ELSIE E | | | $163,500.00 | 105912 | 2004-11647 |
| 4 | 04/04/2002 | WARRANTY D | WARRANTY DEED | | | | | $44,000.00 | 99267 | 2002-0005008 |
Payout Agreement
| No payout information available.. |