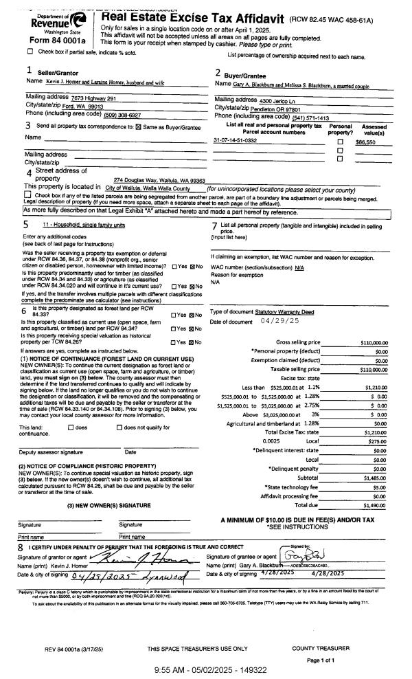
Property
Account |
| Property ID: | 24265 | Abbreviated Legal Description: | WALLULA TOWNSITE LOTS 1 THRU 4 BLK 3 PARCEL #32 |
| Parcel Number: | 310714510332 | Agent Code: | |
| Type: | Real | | |
| Tax Area: | 327 - 400-5-WI-C-M | Land Use Code | 11 |
| Open Space: | N | DFL | N |
| Historic Property: | N | Remodel Property: | N |
| Multi-Family Redevelopment: | N | | |
| Township: | 7 | Section: | 14 |
| Range: | 31 |
Location |
| Address: | 274 DOUGLAS WAY WA 99323 | Mapsco: | |
| Neighborhood: | Wallula A MH | Map ID: | |
| Neighborhood CD: | 213861 |
Owner |
| Name: | HOMER KEVIN J & LARAINE | Owner ID: | 743 |
| Mailing Address: | 7673 HIGHWAY 291 FORD, WA 99013 | % Ownership: | 100.0000000000% |
| | | Exemptions: | |
Taxes and Assessment Details
Property Tax Information as of
02/21/2026
Click on "Statement Details" to expand or collapse a tax statement.
* Please enter a valid date ** Please enter a valid date *
Statement Details |
| | TOTAL: | $0.00 | $0.00 | $0.00 | $0.00 | $0.00 | $0.00 |
|
| | $0.00 | $0.00 | $0.00 | $0.00 | $0.00 | $0.00 |
Values
| (+) Improvement Homesite Value: | + | $0 | |
| (+) Improvement Non-Homesite Value: | + | $50,120 | |
| (+) Land Homesite Value: | + | $0 | |
| (+) Land Non-Homesite Value: | + | $36,430 | |
| (+) Curr Use (HS): | + | $0 | $0 |
| (+) Curr Use (NHS): | + | $0 | $0 |
| | | -------------------------- | |
| (=) Market Value: | = | $86,550 | |
| (–) Productivity Loss: | – | $0 | |
| | | -------------------------- | |
| (=) Subtotal: | = | $86,550 | |
| (+) Senior Appraised Value: | + | $0 | |
| (+) Non-Senior Appraised Value: | + | $86,550 | |
| | | -------------------------- | |
| (=) Total Appraised Value: | = | $86,550 | |
| (–) Senior Exemption Loss: | – | $0 | |
| (–) Exemption Loss: | – | $0 | |
| | | -------------------------- | |
| (=) Taxable Value: | = | $86,550 | |
Taxing Jurisdiction
| Owner: | HOMER KEVIN J & LARAINE | | |
| % Ownership: | 100.0000000000% | | |
| Total Value: | $86,550 | | |
| Tax Area: | 327 - 400-5-WI-C-M |
| CERFD | CURRENT EXPENSE REFUND 010 | 0.0000000000 | $86,550 | $86,550 | $0.00 | | |
| CURREXP | CURRENT EXPENSE 010 | 1.0175366760 | $86,550 | $86,550 | $88.07 | | |
| HUMNSERV | HUMAN SERVICES 119 | 0.0250000000 | $86,550 | $86,550 | $2.16 | | |
| SLDREL | SOLDIERS RELIEF 121 | 0.0155990005 | $86,550 | $86,550 | $1.35 | | |
| EMERGSER | EMS 147 | 0.3792580840 | $86,550 | $86,550 | $32.82 | | |
| EMSRFD | EMS REFUND 147 | 0.0000000000 | $86,550 | $86,550 | $0.00 | | |
| FD5EXP | FD #5 EXPENSE 689 | 1.2045331840 | $86,550 | $86,550 | $104.25 | | |
| RLBRFD | RURAL LIBRARY REFUND 623 | 0.0000000000 | $86,550 | $86,550 | $0.00 | | |
| RURALLIB | RURAL LIBRARY 623 | 0.3710609029 | $86,550 | $86,550 | $32.12 | | |
| PORTRFD | PORT REFUND 640 | 0.0000000000 | $86,550 | $86,550 | $0.00 | | |
| PORTWWGEN | PORT OF WW 640 | 0.2460186015 | $86,550 | $86,550 | $21.29 | | |
| SD400BOND | SD #400 BOND 793 | 0.0000000000 | $86,550 | $86,550 | $0.00 | | |
| SD400CAP | SD #400 CP 792 | 0.3443722657 | $86,550 | $86,550 | $29.81 | | |
| SD400GEN | SD #400 GENERAL 790 | 1.9278469916 | $86,550 | $86,550 | $166.86 | | |
| ST2 | STATE SCHOOL PART 2 600 | 0.8131451643 | $86,550 | $86,550 | $70.38 | | |
| STATESCHL | STATE SCHOOL 600 | 1.5158548041 | $86,550 | $86,550 | $131.20 | | |
| STREFUND | STATE REFUND LEVY 603 | 0.0000000000 | $86,550 | $86,550 | $0.00 | | |
| COROAD | COUNTY ROAD 115 | 1.6549953990 | $86,550 | $86,550 | $143.24 | | |
| CRPRD | COUNTY ROAD REFUND 115 | 0.0000000000 | $86,550 | $86,550 | $0.00 | | |
| | Total Tax Rate: | 9.5152210736 | | | | | |
| | | | | Taxes w/Current Exemptions: | $823.55 | | |
| | | | | Taxes w/o Exemptions: | $823.55 | | |
Improvement / Building
| Improvement #1: | MANUFACTURED HOME | State Code: | 11 | 1440.0 sqft | Value: | $50,120 |
| Exterior Wall: | METAL/STEEL | Heating/Cooling: | WARM & COOLED AIR | | Number of Bathrooms: | 2 | Number of Bedrooms: | 3 | | Plumbing: | 8 | Roof Covering: | COMP SHINGLE |
|
| | Type | Description | Class CD | Sub Class CD | Year Built | Area |
| | MOBHOME | MANUFACTURD HOMES | 1 | 20 | 1975 | 1440.0 |
| | MI1 | MH SET-UP COSTS | 1 | 20 | 1975 | 1.0 |
| | WOD | Wood Deck | 1 | 20 | 1975 | 424.0 |
Sketch
Property Image
Land
| 1 | RES 1 | Converted: Residential | 0.4752 | 20700.00 | 0.00 | 0.00 | 1.00 | $36,430 | $0 |
Roll Value History
| 2026 | N/A | N/A | N/A | N/A | N/A |
| 2025 | $65,150 | $36,430 | $0 | $101,580 | $101,580 |
| 2024 | $50,120 | $36,430 | $0 | $86,550 | $86,550 |
| 2023 | $50,120 | $36,430 | $0 | $86,550 | $86,550 |
| 2022 | $50,120 | $36,430 | $0 | $86,550 | $86,550 |
| 2021 | $33,410 | $36,430 | $0 | $69,840 | $69,840 |
| 2020 | $35,440 | $13,000 | $0 | $48,440 | $48,440 |
| 2019 | $35,440 | $13,000 | $0 | $48,440 | $48,440 |
| 2018 | $23,630 | $13,000 | $0 | $36,630 | $36,630 |
| 2017 | $22,500 | $13,000 | $0 | $35,500 | $35,500 |
| 2016 | $22,500 | $13,000 | $0 | $35,500 | $35,500 |
| 2015 | $22,500 | $13,000 | $0 | $35,500 | $35,500 |
| 2014 | $22,500 | $13,000 | $0 | $35,500 | $35,500 |
| 2013 | $22,500 | $13,000 | $0 | $35,500 | $35,500 |
| 2012 | $22,500 | $13,000 | $0 | $0 | $0 |
| 2011 | $22,500 | $13,000 | $0 | $0 | $0 |
| 2010 | $22,500 | $13,000 | $0 | $0 | $0 |
| 2009 | $27,600 | $10,800 | $0 | $0 | $0 |
| 2008 | $27,600 | $10,800 | $0 | $0 | $0 |
| 2007 | $27,600 | $10,800 | $0 | $0 | $0 |
Deed and Sales History
| 1 | 05/02/2025 | SWD | STATUTORY WARRANTY DEED | HOMER KEVIN J & LARAINE | BLACKBURN GARY A & MELISSA S | | | $110,000.00 | 149322 | 2025-02382 |
Payout Agreement
| No payout information available.. |