Property
Account |
| Property ID: | 24242 | Abbreviated Legal Description: | HARRISON SAGE SUBD LOT 3 BLK 6 |
| Parcel Number: | 300812560603 | Agent Code: | |
| Type: | Real | | |
| Tax Area: | 331 - 400-M-5-W4 | Land Use Code | 11 |
| Open Space: | N | DFL | N |
| Historic Property: | N | Remodel Property: | N |
| Multi-Family Redevelopment: | N | | |
| Township: | 8 | Section: | 12 |
| Range: | 30 |
Location |
| Address: | 211 RAY BLVD WA 99323 | Mapsco: | |
| Neighborhood: | Burbank A MH | Map ID: | |
| Neighborhood CD: | 213761 |
Owner |
| Name: | HUNSAKER TREVOR L & DEBORAH L | Owner ID: | 68625 |
| Mailing Address: | 211 RAY BLVD BURBANK, WA 99323 | % Ownership: | 100.0000000000% |
| | | Exemptions: | |
Taxes and Assessment Details
Property Tax Information as of
04/19/2026
Click on "Statement Details" to expand or collapse a tax statement.
* Please enter a valid date ** Please enter a valid date *
Statement Details |
| | TOTAL: | $0.00 | $0.00 | $0.00 | $0.00 | $0.00 | $0.00 |
|
| | $0.00 | $0.00 | $0.00 | $0.00 | $0.00 | $0.00 |
Values
| (+) Improvement Homesite Value: | + | $0 | |
| (+) Improvement Non-Homesite Value: | + | $267,640 | |
| (+) Land Homesite Value: | + | $0 | |
| (+) Land Non-Homesite Value: | + | $67,160 | |
| (+) Curr Use (HS): | + | $0 | $0 |
| (+) Curr Use (NHS): | + | $0 | $0 |
| | | -------------------------- | |
| (=) Market Value: | = | $334,800 | |
| (–) Productivity Loss: | – | $0 | |
| | | -------------------------- | |
| (=) Subtotal: | = | $334,800 | |
| (+) Senior Appraised Value: | + | $0 | |
| (+) Non-Senior Appraised Value: | + | $334,800 | |
| | | -------------------------- | |
| (=) Total Appraised Value: | = | $334,800 | |
| (–) Senior Exemption Loss: | – | $0 | |
| (–) Exemption Loss: | – | $0 | |
| | | -------------------------- | |
| (=) Taxable Value: | = | $334,800 | |
Taxing Jurisdiction
| Owner: | HUNSAKER TREVOR L & DEBORAH L | | |
| % Ownership: | 100.0000000000% | | |
| Total Value: | $334,800 | | |
| Tax Area: | 331 - 400-M-5-W4 |
| CERFD | CURRENT EXPENSE REFUND 010 | 0.0000000000 | $334,800 | $334,800 | $0.00 | | |
| CURREXP | CURRENT EXPENSE 010 | 1.0175366760 | $334,800 | $334,800 | $340.67 | | |
| HUMNSERV | HUMAN SERVICES 119 | 0.0250000000 | $334,800 | $334,800 | $8.37 | | |
| SLDREL | SOLDIERS RELIEF 121 | 0.0155990005 | $334,800 | $334,800 | $5.22 | | |
| EMERGSER | EMS 147 | 0.3792580840 | $334,800 | $334,800 | $126.98 | | |
| EMSRFD | EMS REFUND 147 | 0.0000000000 | $334,800 | $334,800 | $0.00 | | |
| FD5EXP | FD #5 EXPENSE 689 | 1.2045331840 | $334,800 | $334,800 | $403.28 | | |
| RLBRFD | RURAL LIBRARY REFUND 623 | 0.0000000000 | $334,800 | $334,800 | $0.00 | | |
| RURALLIB | RURAL LIBRARY 623 | 0.3710609029 | $334,800 | $334,800 | $124.23 | | |
| PORTRFD | PORT REFUND 640 | 0.0000000000 | $334,800 | $334,800 | $0.00 | | |
| PORTWWGEN | PORT OF WW 640 | 0.2460186015 | $334,800 | $334,800 | $82.37 | | |
| SD400BOND | SD #400 BOND 793 | 0.0000000000 | $334,800 | $334,800 | $0.00 | | |
| SD400CAP | SD #400 CP 792 | 0.3443722657 | $334,800 | $334,800 | $115.30 | | |
| SD400GEN | SD #400 GENERAL 790 | 1.9278469916 | $334,800 | $334,800 | $645.44 | | |
| ST2 | STATE SCHOOL PART 2 600 | 0.8131451643 | $334,800 | $334,800 | $272.24 | | |
| STATESCHL | STATE SCHOOL 600 | 1.5158548041 | $334,800 | $334,800 | $507.51 | | |
| STREFUND | STATE REFUND LEVY 603 | 0.0000000000 | $334,800 | $334,800 | $0.00 | | |
| COROAD | COUNTY ROAD 115 | 1.6549953990 | $334,800 | $334,800 | $554.09 | | |
| CRPRD | COUNTY ROAD REFUND 115 | 0.0000000000 | $334,800 | $334,800 | $0.00 | | |
| | Total Tax Rate: | 9.5152210736 | | | | | |
| | | | | Taxes w/Current Exemptions: | $3,185.70 | | |
| | | | | Taxes w/o Exemptions: | $3,185.70 | | |
Improvement / Building
| Improvement #1: | MANUFACTURED HOME | State Code: | 11 | 1460.0 sqft | Value: | $267,640 |
| Exterior Wall: | HARDBOARD | Heating/Cooling: | WARM & COOLED AIR | | Number of Bathrooms: | 2 | Number of Bedrooms: | 3 | | Plumbing: | 8 | Roof Covering: | COMP SHINGLE |
|
| | Type | Description | Class CD | Sub Class CD | Year Built | Area |
| | MOBHOME | MANUFACTURD HOMES | 1 | 40 | 1995 | 1460.0 |
| | MI1 | MH SET-UP COSTS | 1 | 40 | 1995 | 1.0 |
| | POL3 | POLE BUILDING-CON,ELEC,INSU | 1 | 40 | 1995 | 1728.0 |
| | TOOL | TOOL SHED | 1 | 40 | 1995 | 208.0 |
| | RCD | WOOD DECK W/ROOF, CEILED | 1 | 40 | 1995 | 1052.0 |
Sketch
Property Image
Land
| 1 | RES 1 | Converted: Residential | 0.7989 | 34800.00 | 0.00 | 0.00 | 1.00 | $67,160 | $0 |
Roll Value History
| 2026 | N/A | N/A | N/A | N/A | N/A |
| 2025 | $281,020 | $67,160 | $0 | $348,180 | $348,180 |
| 2024 | $267,640 | $67,160 | $0 | $334,800 | $334,800 |
| 2023 | $267,640 | $67,160 | $0 | $334,800 | $334,800 |
| 2022 | $243,310 | $67,160 | $0 | $310,470 | $310,470 |
| 2021 | $243,310 | $67,160 | $0 | $310,470 | $310,470 |
| 2020 | $145,640 | $33,900 | $0 | $179,540 | $179,540 |
| 2019 | $145,640 | $33,900 | $0 | $179,540 | $179,540 |
| 2018 | $145,640 | $33,900 | $0 | $179,540 | $179,540 |
| 2017 | $145,640 | $33,900 | $0 | $179,540 | $179,540 |
| 2016 | $132,400 | $33,900 | $0 | $166,300 | $166,300 |
| 2015 | $132,400 | $33,900 | $0 | $166,300 | $166,300 |
| 2014 | $132,400 | $33,900 | $0 | $166,300 | $166,300 |
| 2013 | $132,400 | $33,900 | $0 | $166,300 | $166,300 |
| 2012 | $132,400 | $33,900 | $0 | $0 | $0 |
| 2011 | $104,700 | $33,900 | $0 | $0 | $0 |
| 2010 | $104,700 | $33,900 | $0 | $0 | $0 |
| 2009 | $104,700 | $35,000 | $0 | $0 | $0 |
| 2008 | $104,700 | $35,000 | $0 | $0 | $0 |
| 2007 | $104,700 | $35,000 | $0 | $0 | $0 |
Deed and Sales History
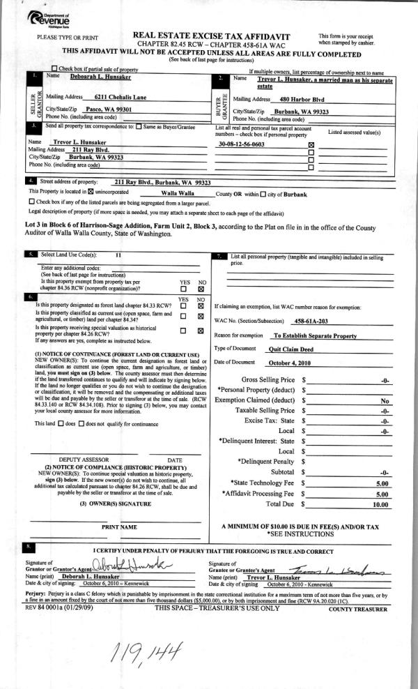
| 1 | 12/28/2020 | QCD | QUIT CLAIM DEED | HUNSAKER TREVOR L | HUNSAKER TREVOR L & DEBORAH L | | | $0.00 | 140659 | 2021-00023 |
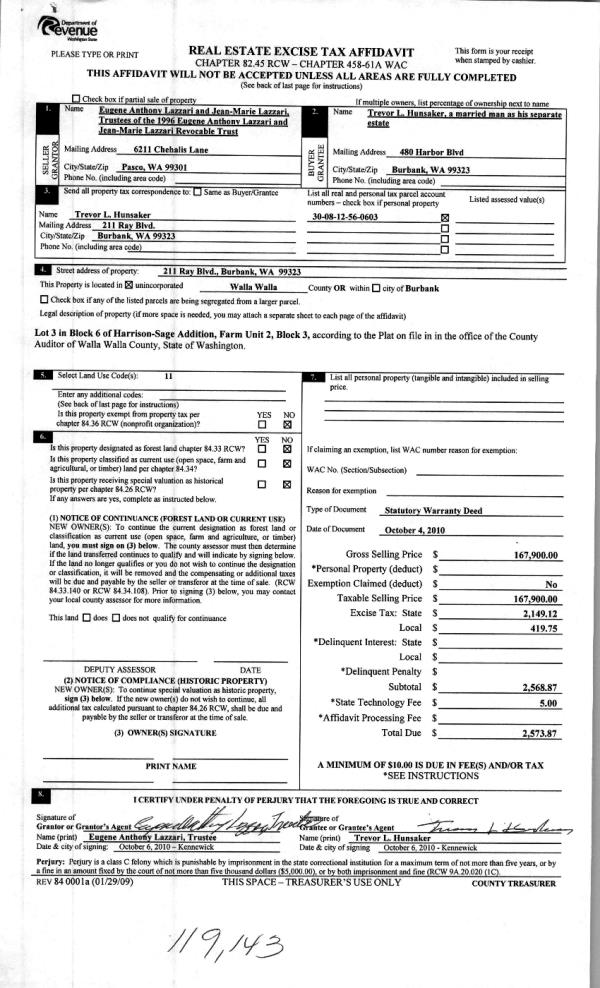
| 2 | 10/07/2010 | WARRANTY D | WARRANTY DEED | LAZZARI, EUGENE ANTHONY & JEAN | HUNSAKER, TREVOR L | | | $167,900.00 | 119143 | 2010-08042 |
| 3 | 08/13/2004 | WARRANTY D | WARRANTY DEED | WILSON, B FRED & CHERYL I | LAZZARI, EUGENE ANTHONY & JEAN | | | $158,000.00 | 105478 | 2004-09243 |
Payout Agreement
| No payout information available.. |