Property
Account |
| Property ID: | 24236 | Abbreviated Legal Description: | WALLULA TOWNSITE LTS 29 THRU 32 BLK 10 |
| Parcel Number: | 310714511029 | Agent Code: | |
| Type: | Real | | |
| Tax Area: | 327 - 400-5-WI-C-M | Land Use Code | 11 |
| Open Space: | N | DFL | N |
| Historic Property: | N | Remodel Property: | N |
| Multi-Family Redevelopment: | N | | |
| Township: | 7 | Section: | 14 |
| Range: | 31 |
Location |
| Address: | 29 DOUGLAS WAY WA 99363 | Mapsco: | |
| Neighborhood: | Wallula A MH | Map ID: | |
| Neighborhood CD: | 213861 |
Owner |
| Name: | HUTCHINS CHAS B & TEIJA M & | Owner ID: | 75307 |
| Mailing Address: | MANDY CROWTHER PO BOX 191 WALLULA, WA 99363 | % Ownership: | 100.0000000000% |
| | | Exemptions: | |
Taxes and Assessment Details
Values
| (+) Improvement Homesite Value: | + | N/A | |
| (+) Improvement Non-Homesite Value: | + | N/A | |
| (+) Land Homesite Value: | + | N/A | |
| (+) Land Non-Homesite Value: | + | N/A | Ag / Timber Use Value |
| (+) Curr Use (HS): | + | N/A | N/A |
| (+) Curr Use (NHS): | + | N/A | N/A |
| | | -------------------------- | |
| (=) Market Value: | = | N/A | |
| (–) Productivity Loss: | – | N/A | |
| | | -------------------------- | |
| (=) Subtotal: | = | N/A | |
| (+) Senior Appraised Value: | + | N/A | |
| (+) Non-Senior Appraised Value: | + | N/A | |
| | | -------------------------- | |
| (=) Total Appraised Value: | = | N/A | |
| (–) Senior Exemption Loss: | – | N/A | |
| (–) Exemption Loss: | – | N/A | |
| | | -------------------------- | |
| (=) Taxable Value: | = | N/A | |
Taxing Jurisdiction
| Owner: | HUTCHINS CHAS B & TEIJA M & | | |
| % Ownership: | 100.0000000000% | | |
| Total Value: | N/A | | |
| Tax Area: | 327 - 400-5-WI-C-M |
| CERFD | CURRENT EXPENSE REFUND 010 | N/A | N/A | N/A | N/A | | |
| CURREXP | CURRENT EXPENSE 010 | N/A | N/A | N/A | N/A | | |
| HUMNSERV | HUMAN SERVICES 119 | N/A | N/A | N/A | N/A | | |
| SLDREL | SOLDIERS RELIEF 121 | N/A | N/A | N/A | N/A | | |
| EMERGSER | EMS 147 | N/A | N/A | N/A | N/A | | |
| EMSRFD | EMS REFUND 147 | N/A | N/A | N/A | N/A | | |
| FD5EXP | FD #5 EXPENSE 689 | N/A | N/A | N/A | N/A | | |
| RLBRFD | RURAL LIBRARY REFUND 623 | N/A | N/A | N/A | N/A | | |
| RURALLIB | RURAL LIBRARY 623 | N/A | N/A | N/A | N/A | | |
| PORTRFD | PORT REFUND 640 | N/A | N/A | N/A | N/A | | |
| PORTWWGEN | PORT OF WW 640 | N/A | N/A | N/A | N/A | | |
| SD400BOND | SD #400 BOND 793 | N/A | N/A | N/A | N/A | | |
| SD400CAP | SD #400 CP 792 | N/A | N/A | N/A | N/A | | |
| SD400GEN | SD #400 GENERAL 790 | N/A | N/A | N/A | N/A | | |
| ST2 | STATE SCHOOL PART 2 600 | N/A | N/A | N/A | N/A | | |
| STATESCHL | STATE SCHOOL 600 | N/A | N/A | N/A | N/A | | |
| STREFUND | STATE REFUND LEVY 603 | N/A | N/A | N/A | N/A | | |
| COROAD | COUNTY ROAD 115 | N/A | N/A | N/A | N/A | | |
| CRPRD | COUNTY ROAD REFUND 115 | N/A | N/A | N/A | N/A | | |
| | Total Tax Rate: | N/A | | | | | |
| | | | | Taxes w/Current Exemptions: | N/A | | |
| | | | | Taxes w/o Exemptions: | N/A | | |
Improvement / Building
| Improvement #1: | MANUFACTURED HOME | State Code: | 11 | 1487.0 sqft | Value: | N/A |
| Exterior Wall: | SIDING | Heating/Cooling: | WARM & COOLED AIR | | Number of Bathrooms: | 2 | Number of Bedrooms: | 3 | | Plumbing: | 12 | Roof Covering: | COMP SHINGLE |
|
| | Type | Description | Class CD | Sub Class CD | Year Built | Area |
| | MOBHOME | MANUFACTURD HOMES | 1 | 40 | 2003 | 1487.0 |
| | MI1 | MH SET-UP COSTS | 1 | 40 | 2003 | 1.0 |
| | POL3 | POLE BUILDING-CON,ELEC,INSU | 1 | 40 | 2004 | 864.0 |
| | RCD | WOOD DECK W/ROOF, CEILED | 1 | 40 | 2003 | 241.0 |
Sketch
Property Image
Land
| 1 | RES 1 | Converted: Residential | 0.4752 | 20700.00 | 0.00 | 0.00 | 1.00 | N/A | N/A |
Roll Value History
| 2026 | N/A | N/A | N/A | N/A | N/A |
| 2025 | $320,330 | $36,430 | $0 | $356,760 | $356,760 |
| 2024 | $200,210 | $36,430 | $0 | $236,640 | $236,640 |
| 2023 | $200,210 | $36,430 | $0 | $236,640 | $236,640 |
| 2022 | $200,210 | $36,430 | $0 | $236,640 | $236,640 |
| 2021 | $133,470 | $36,430 | $0 | $169,900 | $169,900 |
| 2020 | $127,200 | $13,000 | $0 | $140,200 | $140,200 |
| 2019 | $127,200 | $13,000 | $0 | $140,200 | $140,200 |
| 2018 | $84,800 | $13,000 | $0 | $97,800 | $97,800 |
| 2017 | $84,800 | $13,000 | $0 | $97,800 | $97,800 |
| 2016 | $84,800 | $13,000 | $0 | $97,800 | $97,800 |
| 2015 | $84,800 | $13,000 | $0 | $97,800 | $97,800 |
| 2014 | $84,800 | $13,000 | $0 | $97,800 | $97,800 |
| 2013 | $84,800 | $13,000 | $0 | $97,800 | $97,800 |
| 2012 | $84,800 | $13,000 | $0 | $0 | $0 |
| 2011 | $84,800 | $13,000 | $0 | $0 | $0 |
| 2010 | $84,800 | $13,000 | $0 | $0 | $0 |
| 2009 | $87,200 | $10,800 | $0 | $0 | $0 |
| 2008 | $87,200 | $10,800 | $0 | $0 | $0 |
| 2007 | $87,200 | $10,800 | $0 | $0 | $0 |
Deed and Sales History
| 1 | 05/15/2024 | SWD | STATUTORY WARRANTY DEED | CARDENAS ERNESTO | HUTCHINS CHAS B & TEIJA M & | | | $367,500.00 | 147565 | 2024-02584 |
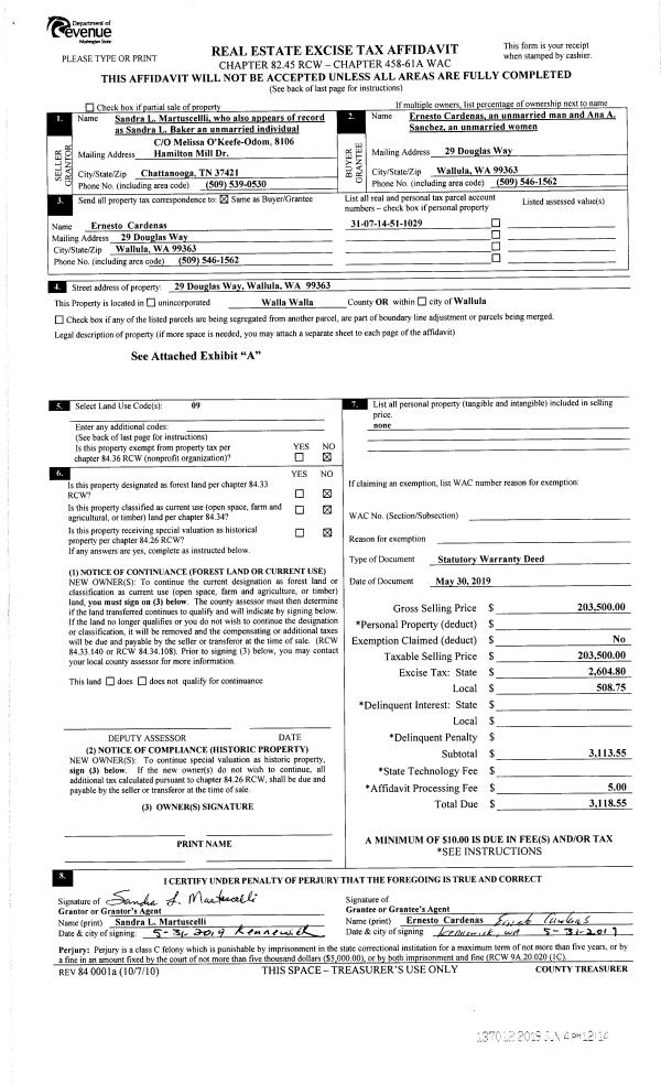
| 2 | 06/04/2019 | SWD | STATUTORY WARRANTY DEED | MARTUSCELLI SANDRA L | CARDENAS ERNESTO | | | $203,500.00 | 137012 | 2019-03833 |
| 3 | 07/17/2008 | QCD | QUIT CLAIM DEED | BAKER, SANDRA L | MARTUSCELLI, SANDRA L | | | | 115346 | 2008-07309 |
| 4 | 02/19/2004 | QCD | QUIT CLAIM DEED | BAKER, ROBERT T III | BAKER, SANDRA L | | | | 104094 | 2004-01769 |
| 5 | 12/23/2002 | WARRANTY D | WARRANTY DEED | BISHOP, DOUG M | BAKER, SANDRA L | | | $12,000.00 | 101065 | 2002-14743 |
| 6 | 08/21/1995 | WARRANTY D | WARRANTY DEED | | | | | $13,700.00 | 84588 | 2339-507953 |
|   | |
Payout Agreement
| No payout information available.. |