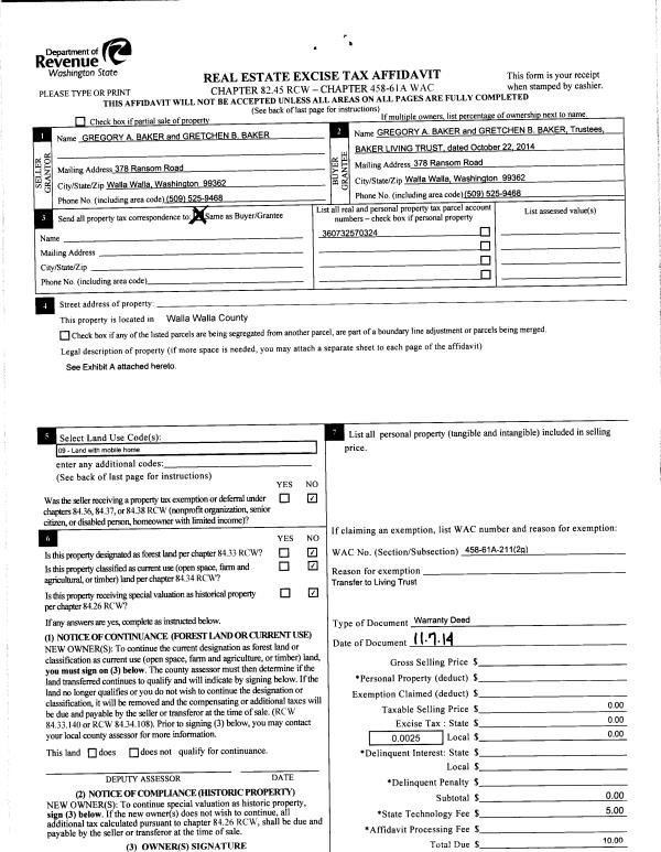
Property
Account |
| Property ID: | 24234 | Abbreviated Legal Description: | PROSPECT HEIGHTS (TRACT A OF SURVEY) LOT 17; LOT 18, LESS SELY PTNBLK 3 |
| Parcel Number: | 360732570324 | Agent Code: | |
| Type: | Real | | |
| Tax Area: | 105 - 140-F-4 | Land Use Code | 11 |
| Open Space: | N | DFL | N |
| Historic Property: | N | Remodel Property: | N |
| Multi-Family Redevelopment: | N | | |
| Township: | 7 | Section: | 32 |
| Range: | 36 |
Location |
| Address: | 378 RANSOM RD WA 99362 | Mapsco: | |
| Neighborhood: | G MH Rural/City Inf | Map ID: | |
| Neighborhood CD: | 614062 |
Owner |
| Name: | BAKER LIVING TRUST | Owner ID: | 56066 |
| Mailing Address: | 378 RANSOM RD WALLA WALLA, WA 99362 | % Ownership: | 100.0000000000% |
| | | Exemptions: | |
Taxes and Assessment Details
Values
| (+) Improvement Homesite Value: | + | $0 | |
| (+) Improvement Non-Homesite Value: | + | $125,880 | |
| (+) Land Homesite Value: | + | $0 | |
| (+) Land Non-Homesite Value: | + | $152,510 | |
| (+) Curr Use (HS): | + | $0 | $0 |
| (+) Curr Use (NHS): | + | $0 | $0 |
| | | -------------------------- | |
| (=) Market Value: | = | $278,390 | |
| (–) Productivity Loss: | – | $0 | |
| | | -------------------------- | |
| (=) Subtotal: | = | $278,390 | |
| (+) Senior Appraised Value: | + | $0 | |
| (+) Non-Senior Appraised Value: | + | $278,390 | |
| | | -------------------------- | |
| (=) Total Appraised Value: | = | $278,390 | |
| (–) Senior Exemption Loss: | – | $0 | |
| (–) Exemption Loss: | – | $0 | |
| | | -------------------------- | |
| (=) Taxable Value: | = | $278,390 | |
Taxing Jurisdiction
| Owner: | BAKER LIVING TRUST | | |
| % Ownership: | 100.0000000000% | | |
| Total Value: | $278,390 | | |
| Tax Area: | 105 - 140-F-4 |
| CERFD | CURRENT EXPENSE REFUND 010 | 0.0000000000 | $278,390 | $278,390 | $0.00 | | |
| CURREXP | CURRENT EXPENSE 010 | 1.0175366760 | $278,390 | $278,390 | $283.27 | | |
| HUMNSERV | HUMAN SERVICES 119 | 0.0250000000 | $278,390 | $278,390 | $6.96 | | |
| SLDREL | SOLDIERS RELIEF 121 | 0.0155990005 | $278,390 | $278,390 | $4.34 | | |
| EMERGSER | EMS 147 | 0.3792580840 | $278,390 | $278,390 | $105.58 | | |
| EMSRFD | EMS REFUND 147 | 0.0000000000 | $278,390 | $278,390 | $0.00 | | |
| FD4EXP | FD #4 EXPENSE 686 | 0.8836993059 | $278,390 | $278,390 | $246.01 | | |
| RLBRFD | RURAL LIBRARY REFUND 623 | 0.0000000000 | $278,390 | $278,390 | $0.00 | | |
| RURALLIB | RURAL LIBRARY 623 | 0.3710609029 | $278,390 | $278,390 | $103.30 | | |
| PORTRFD | PORT REFUND 640 | 0.0000000000 | $278,390 | $278,390 | $0.00 | | |
| PORTWWGEN | PORT OF WW 640 | 0.2460186015 | $278,390 | $278,390 | $68.49 | | |
| SD140BOND | SD #140 BOND 764 | 0.8342371393 | $278,390 | $278,390 | $232.24 | | |
| SD140GEN | SD #140 GENERAL 760 | 2.0646500647 | $278,390 | $278,390 | $574.78 | | |
| ST2 | STATE SCHOOL PART 2 600 | 0.8131451643 | $278,390 | $278,390 | $226.37 | | |
| STATESCHL | STATE SCHOOL 600 | 1.5158548041 | $278,390 | $278,390 | $422.00 | | |
| STREFUND | STATE REFUND LEVY 603 | 0.0000000000 | $278,390 | $278,390 | $0.00 | | |
| COROAD | COUNTY ROAD 115 | 1.6549953990 | $278,390 | $278,390 | $460.73 | | |
| CRPRD | COUNTY ROAD REFUND 115 | 0.0000000000 | $278,390 | $278,390 | $0.00 | | |
| | Total Tax Rate: | 9.8210551422 | | | | | |
| | | | | Taxes w/Current Exemptions: | $2,734.07 | | |
| | | | | Taxes w/o Exemptions: | $2,734.07 | | |
Improvement / Building
| Improvement #1: | MANUFACTURED HOME | State Code: | 11 | 1876.0 sqft | Value: | $125,880 |
| Exterior Wall: | PLYWOOD | Heating/Cooling: | WARM & COOLED AIR | | Number of Bathrooms: | 2 | Number of Bedrooms: | 3 | | Plumbing: | 9 | Roof Covering: | COMP SHINGLE |
|
| | Type | Description | Class CD | Sub Class CD | Year Built | Area |
| | MOBHOME | MANUFACTURD HOMES | 1 | 30 | 1979 | 1876.0 |
| | DTG | Detached Garage | 1 | 30 | 1979 | 1040.0 |
| | MI1 | MH SET-UP COSTS | 1 | 30 | 1979 | 1.0 |
| | LOFT | Loft Area | 1 | 30 | 1979 | 1040.0 |
| | WDR | WOOD DECK W/ROOF | 1 | 30 | 1979 | 80.0 |
| | POLE | POLE UTILITY BUILDING | 1 | 30 | 1979 | 324.0 |
| | UTST | Utility Storage Shed | 1 | 20 | 1979 | 520.0 |
| | UTST | Utility Storage Shed | 1 | 20 | 1979 | 280.0 |
| | RESUTST | RESIDENTIAL UTILITY STORAGE | 1 | 20 | 1979 | 384.0 |
Sketch
Property Image
Land
| 1 | RES 1 | Converted: Residential | 1.0900 | 0.00 | 0.00 | 0.00 | 1.00 | $152,510 | $0 |
Roll Value History
| 2026 | N/A | N/A | N/A | N/A | N/A |
| 2025 | $130,800 | $172,740 | $0 | $303,540 | $303,540 |
| 2024 | $125,880 | $152,510 | $0 | $278,390 | $278,390 |
| 2023 | $125,880 | $152,510 | $0 | $278,390 | $278,390 |
| 2022 | $123,220 | $90,450 | $0 | $213,670 | $213,670 |
| 2021 | $117,350 | $90,450 | $0 | $207,800 | $207,800 |
| 2020 | $90,270 | $90,450 | $0 | $180,720 | $180,720 |
| 2019 | $90,270 | $90,450 | $0 | $180,720 | $180,720 |
| 2018 | $99,930 | $75,700 | $0 | $175,630 | $175,630 |
| 2017 | $95,170 | $75,700 | $0 | $170,870 | $170,870 |
| 2016 | $90,640 | $75,700 | $0 | $166,340 | $166,340 |
| 2015 | $82,400 | $75,700 | $0 | $158,100 | $158,100 |
| 2014 | $82,400 | $75,700 | $0 | $158,100 | $158,100 |
| 2013 | $82,400 | $75,700 | $0 | $158,100 | $158,100 |
| 2012 | $82,400 | $75,700 | $0 | $0 | $0 |
| 2011 | $82,400 | $75,700 | $0 | $0 | $0 |
| 2010 | $82,400 | $75,700 | $0 | $0 | $0 |
| 2009 | $100,000 | $75,700 | $0 | $0 | $0 |
| 2008 | $100,000 | $75,700 | $0 | $0 | $0 |
| 2007 | $75,200 | $44,500 | $0 | $0 | $0 |
Deed and Sales History
| 1 | 11/07/2014 | WARRANTY D | WARRANTY DEED | BAKER GREGORY A | BAKER LIVING TRUST | | | $0.00 | 127382 | 2015-01002 |
Payout Agreement
| No payout information available.. |