Property
Account |
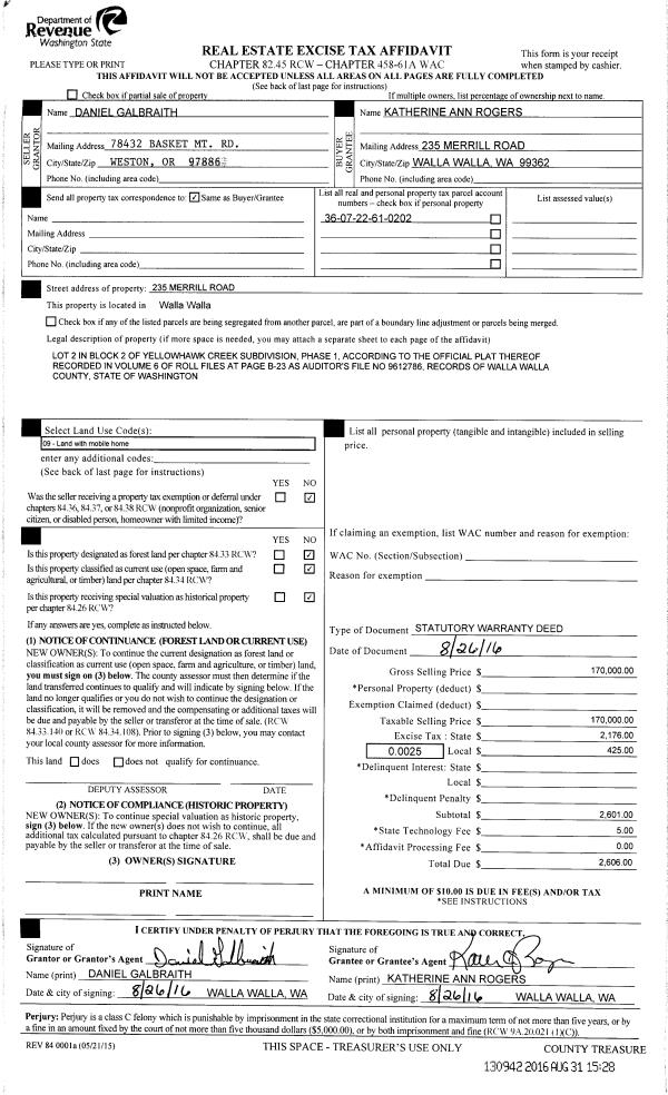
| Property ID: | 24221 | Abbreviated Legal Description: | YELLOWHAWK CREEK SUBD PHASE 1 LOT 2 BLK 2 |
| Parcel Number: | 360722610202 | Agent Code: | |
| Type: | Real | | |
| Tax Area: | 1 - OL-140-F | Land Use Code | 11 |
| Open Space: | N | DFL | N |
| Historic Property: | N | Remodel Property: | N |
| Multi-Family Redevelopment: | N | | |
| Township: | 7 | Section: | 22 |
| Range: | 36 |
Location |
| Address: | 235 MERRILL RD WA 99362 | Mapsco: | |
| Neighborhood: | A Superior MH | Map ID: | |
| Neighborhood CD: | 413261 |
Owner |
| Name: | ROGERS KATHERINE ANN | Owner ID: | 59538 |
| Mailing Address: | 235 MERRILL RD WALLA WALLA, WA 99362 | % Ownership: | 100.0000000000% |
| | | Exemptions: | |
Taxes and Assessment Details
Property Tax Information as of
02/21/2026
Click on "Statement Details" to expand or collapse a tax statement.
* Please enter a valid date ** Please enter a valid date *
Statement Details |
| | TOTAL: | $0.00 | $0.00 | $0.00 | $0.00 | $0.00 | $0.00 |
|
| | $0.00 | $0.00 | $0.00 | $0.00 | $0.00 | $0.00 |
Values
| (+) Improvement Homesite Value: | + | $0 | |
| (+) Improvement Non-Homesite Value: | + | $167,000 | |
| (+) Land Homesite Value: | + | $0 | |
| (+) Land Non-Homesite Value: | + | $80,000 | |
| (+) Curr Use (HS): | + | $0 | $0 |
| (+) Curr Use (NHS): | + | $0 | $0 |
| | | -------------------------- | |
| (=) Market Value: | = | $247,000 | |
| (–) Productivity Loss: | – | $0 | |
| | | -------------------------- | |
| (=) Subtotal: | = | $247,000 | |
| (+) Senior Appraised Value: | + | $0 | |
| (+) Non-Senior Appraised Value: | + | $247,000 | |
| | | -------------------------- | |
| (=) Total Appraised Value: | = | $247,000 | |
| (–) Senior Exemption Loss: | – | $0 | |
| (–) Exemption Loss: | – | $0 | |
| | | -------------------------- | |
| (=) Taxable Value: | = | $247,000 | |
Taxing Jurisdiction
| Owner: | ROGERS KATHERINE ANN | | |
| % Ownership: | 100.0000000000% | | |
| Total Value: | $247,000 | | |
| Tax Area: | 1 - OL-140-F |
| CERFD | CURRENT EXPENSE REFUND 010 | 0.0000000000 | $247,000 | $247,000 | $0.00 | | |
| CURREXP | CURRENT EXPENSE 010 | 1.0175366760 | $247,000 | $247,000 | $251.33 | | |
| HUMNSERV | HUMAN SERVICES 119 | 0.0250000000 | $247,000 | $247,000 | $6.18 | | |
| SLDREL | SOLDIERS RELIEF 121 | 0.0155990005 | $247,000 | $247,000 | $3.85 | | |
| EMERGSER | EMS 147 | 0.3792580840 | $247,000 | $247,000 | $93.68 | | |
| EMSRFD | EMS REFUND 147 | 0.0000000000 | $247,000 | $247,000 | $0.00 | | |
| PORTRFD | PORT REFUND 640 | 0.0000000000 | $247,000 | $247,000 | $0.00 | | |
| PORTWWGEN | PORT OF WW 640 | 0.2460186015 | $247,000 | $247,000 | $60.77 | | |
| SD140BOND | SD #140 BOND 764 | 0.8342371393 | $247,000 | $247,000 | $206.06 | | |
| SD140GEN | SD #140 GENERAL 760 | 2.0646500647 | $247,000 | $247,000 | $509.97 | | |
| ST2 | STATE SCHOOL PART 2 600 | 0.8131451643 | $247,000 | $247,000 | $200.85 | | |
| STATESCHL | STATE SCHOOL 600 | 1.5158548041 | $247,000 | $247,000 | $374.42 | | |
| STREFUND | STATE REFUND LEVY 603 | 0.0000000000 | $247,000 | $247,000 | $0.00 | | |
| CWWBOND | C OF WW BOND 643 | 0.2760494372 | $247,000 | $247,000 | $68.18 | | |
| CWWGEN | CITY OF WW 631 | 1.6100204973 | $247,000 | $247,000 | $397.68 | | |
| CWWRFD | CITY OF WALLA WALLA REFUND 631 | 0.0000000000 | $247,000 | $247,000 | $0.00 | | |
| | Total Tax Rate: | 8.7973694689 | | | | | |
| | | | | Taxes w/Current Exemptions: | $2,172.97 | | |
| | | | | Taxes w/o Exemptions: | $2,172.97 | | |
Improvement / Building
| Improvement #1: | MANUFACTURED HOME | State Code: | 11 | 1302.0 sqft | Value: | $167,000 |
| Exterior Wall: | HARDBOARD | Heating/Cooling: | WARM & COOLED AIR | | Number of Bathrooms: | 2 | Number of Bedrooms: | 3 | | Plumbing: | 9 | Roof Covering: | COMP SHINGLE |
|
| | Type | Description | Class CD | Sub Class CD | Year Built | Area |
| | MOBHOME | MANUFACTURD HOMES | 1 | 40 | 1998 | 1302.0 |
| | MI1 | MH SET-UP COSTS | 1 | 40 | 0 | 1.0 |
| | WDR | WOOD DECK W/ROOF | 1 | 40 | 0 | 56.0 |
| | ATG | Attached Garage | 1 | 40 | 1998 | 460.0 |
Sketch
Property Image
Land
| 1 | RES 1 | Converted: Residential | 0.1688 | 7355.00 | 0.00 | 0.00 | 1.00 | $80,000 | $0 |
Roll Value History
| 2026 | N/A | N/A | N/A | N/A | N/A |
| 2025 | $233,800 | $80,000 | $0 | $313,800 | $247,000 |
| 2024 | $167,000 | $80,000 | $0 | $247,000 | $247,000 |
| 2023 | $167,000 | $80,000 | $0 | $247,000 | $247,000 |
| 2022 | $190,230 | $50,000 | $0 | $240,230 | $240,230 |
| 2021 | $165,420 | $50,000 | $0 | $215,420 | $215,420 |
| 2020 | $106,720 | $50,000 | $0 | $156,720 | $156,720 |
| 2019 | $106,720 | $50,000 | $0 | $156,720 | $156,720 |
| 2018 | $101,640 | $50,000 | $0 | $151,640 | $151,640 |
| 2017 | $101,640 | $50,000 | $0 | $151,640 | $151,640 |
| 2016 | $101,640 | $40,000 | $0 | $141,640 | $141,640 |
| 2015 | $101,640 | $40,000 | $0 | $141,640 | $141,640 |
| 2014 | $92,400 | $40,000 | $0 | $132,400 | $132,400 |
| 2013 | $92,400 | $40,000 | $0 | $132,400 | $132,400 |
| 2012 | $99,400 | $40,000 | $0 | $0 | $0 |
| 2011 | $106,700 | $40,000 | $0 | $0 | $0 |
| 2010 | $106,700 | $40,000 | $0 | $0 | $0 |
| 2009 | $123,000 | $40,000 | $0 | $0 | $0 |
| 2008 | $90,400 | $40,000 | $0 | $0 | $0 |
| 2007 | $90,400 | $40,000 | $0 | $0 | $0 |
Deed and Sales History
| 1 | 08/31/2016 | SWD | STATUTORY WARRANTY DEED | GALBRAITH DANIEL DR | ROGERS KATHERINE ANN | | | $170,000.00 | 130942 | 2016-07072 |
| 2 | 07/29/2004 | QCD | QUIT CLAIM DEED | MOBLEY, DEBRA S | GALBRAITH, DANIEL DR | | | | 105363 | 2004-08626 |
Payout Agreement
| No payout information available.. |