Property
Account |
| Property ID: | 24214 | Abbreviated Legal Description: | WESTDALE FIRST LOT 7 BLK 4 |
| Parcel Number: | 360730560407 | Agent Code: | |
| Type: | Real | | |
| Tax Area: | 1 - OL-140-F | Land Use Code | 11 |
| Open Space: | N | DFL | N |
| Historic Property: | N | Remodel Property: | N |
| Multi-Family Redevelopment: | N | | |
| Township: | 7 | Section: | 30 |
| Range: | 36 |
Location |
| Address: | 1355 CALLANAN DR WA 99362 | Mapsco: | |
| Neighborhood: | A MH | Map ID: | |
| Neighborhood CD: | 113061 |
Owner |
| Name: | ARIAS CRUZ | Owner ID: | 65171 |
| Mailing Address: | ISELA ARIAS 1355 CALLANAN DR WALLA WALLA, WA 99362 | % Ownership: | 100.0000000000% |
| | | Exemptions: | |
Taxes and Assessment Details
Property Tax Information as of
02/21/2026
Click on "Statement Details" to expand or collapse a tax statement.
* Please enter a valid date ** Please enter a valid date *
Statement Details |
| | TOTAL: | $0.00 | $0.00 | $0.00 | $0.00 | $0.00 | $0.00 |
|
| | $0.00 | $0.00 | $0.00 | $0.00 | $0.00 | $0.00 |
Values
| (+) Improvement Homesite Value: | + | $0 | |
| (+) Improvement Non-Homesite Value: | + | $243,140 | |
| (+) Land Homesite Value: | + | $0 | |
| (+) Land Non-Homesite Value: | + | $55,000 | |
| (+) Curr Use (HS): | + | $0 | $0 |
| (+) Curr Use (NHS): | + | $0 | $0 |
| | | -------------------------- | |
| (=) Market Value: | = | $298,140 | |
| (–) Productivity Loss: | – | $0 | |
| | | -------------------------- | |
| (=) Subtotal: | = | $298,140 | |
| (+) Senior Appraised Value: | + | $0 | |
| (+) Non-Senior Appraised Value: | + | $298,140 | |
| | | -------------------------- | |
| (=) Total Appraised Value: | = | $298,140 | |
| (–) Senior Exemption Loss: | – | $0 | |
| (–) Exemption Loss: | – | $0 | |
| | | -------------------------- | |
| (=) Taxable Value: | = | $298,140 | |
Taxing Jurisdiction
| Owner: | ARIAS CRUZ | | |
| % Ownership: | 100.0000000000% | | |
| Total Value: | $298,140 | | |
| Tax Area: | 1 - OL-140-F |
| CERFD | CURRENT EXPENSE REFUND 010 | 0.0000000000 | $298,140 | $298,140 | $0.00 | | |
| CURREXP | CURRENT EXPENSE 010 | 1.0175366760 | $298,140 | $298,140 | $303.37 | | |
| HUMNSERV | HUMAN SERVICES 119 | 0.0250000000 | $298,140 | $298,140 | $7.45 | | |
| SLDREL | SOLDIERS RELIEF 121 | 0.0155990005 | $298,140 | $298,140 | $4.65 | | |
| EMERGSER | EMS 147 | 0.3792580840 | $298,140 | $298,140 | $113.07 | | |
| EMSRFD | EMS REFUND 147 | 0.0000000000 | $298,140 | $298,140 | $0.00 | | |
| PORTRFD | PORT REFUND 640 | 0.0000000000 | $298,140 | $298,140 | $0.00 | | |
| PORTWWGEN | PORT OF WW 640 | 0.2460186015 | $298,140 | $298,140 | $73.35 | | |
| SD140BOND | SD #140 BOND 764 | 0.8342371393 | $298,140 | $298,140 | $248.72 | | |
| SD140GEN | SD #140 GENERAL 760 | 2.0646500647 | $298,140 | $298,140 | $615.55 | | |
| ST2 | STATE SCHOOL PART 2 600 | 0.8131451643 | $298,140 | $298,140 | $242.43 | | |
| STATESCHL | STATE SCHOOL 600 | 1.5158548041 | $298,140 | $298,140 | $451.94 | | |
| STREFUND | STATE REFUND LEVY 603 | 0.0000000000 | $298,140 | $298,140 | $0.00 | | |
| CWWBOND | C OF WW BOND 643 | 0.2760494372 | $298,140 | $298,140 | $82.30 | | |
| CWWGEN | CITY OF WW 631 | 1.6100204973 | $298,140 | $298,140 | $480.01 | | |
| CWWRFD | CITY OF WALLA WALLA REFUND 631 | 0.0000000000 | $298,140 | $298,140 | $0.00 | | |
| | Total Tax Rate: | 8.7973694689 | | | | | |
| | | | | Taxes w/Current Exemptions: | $2,622.84 | | |
| | | | | Taxes w/o Exemptions: | $2,622.84 | | |
Improvement / Building
| Improvement #1: | MANUFACTURED HOME | State Code: | 11 | 2412.0 sqft | Value: | $243,140 |
| Exterior Wall: | PLYWOOD | Fireplace: | PRE FAB | | Foundation: | MH BLOCK | Heating/Cooling: | BASEBOARD ELECTRIC | | Number of Bathrooms: | 2 | Number of Bedrooms: | 3 | | Plumbing: | 9 | Roof Covering: | COMP SHINGLE |
|
| | Type | Description | Class CD | Sub Class CD | Year Built | Area |
| | MOBHOME | MANUFACTURD HOMES | 1 | 40 | 1996 | 2412.0 |
| | MI1 | MH SET-UP COSTS | 1 | 40 | 0 | 1.0 |
| | ATG | Attached Garage | 1 | 40 | 0 | 576.0 |
| | WDR | WOOD DECK W/ROOF | 1 | 40 | 0 | 96.0 |
| | S1F | Single One Story Fireplace | 1 | 40 | 0 | 1.0 |
Sketch
Property Image
Land
| 1 | RES 1 | Converted: Residential | 0.1956 | 8520.00 | 0.00 | 0.00 | 1.00 | $55,000 | $0 |
Roll Value History
| 2026 | N/A | N/A | N/A | N/A | N/A |
| 2025 | $243,140 | $55,000 | $0 | $298,140 | $298,140 |
| 2024 | $243,140 | $55,000 | $0 | $298,140 | $298,140 |
| 2023 | $243,140 | $55,000 | $0 | $298,140 | $298,140 |
| 2022 | $211,430 | $55,000 | $0 | $266,430 | $266,430 |
| 2021 | $211,430 | $55,000 | $0 | $266,430 | $266,430 |
| 2020 | $151,020 | $55,000 | $0 | $206,020 | $206,020 |
| 2019 | $160,120 | $45,900 | $0 | $206,020 | $206,020 |
| 2018 | $133,430 | $45,900 | $0 | $179,330 | $179,330 |
| 2017 | $127,080 | $45,900 | $0 | $172,980 | $172,980 |
| 2016 | $105,900 | $45,900 | $0 | $151,800 | $151,800 |
| 2015 | $105,900 | $45,900 | $0 | $151,800 | $151,800 |
| 2014 | $105,900 | $45,900 | $0 | $151,800 | $151,800 |
| 2013 | $105,900 | $45,900 | $0 | $151,800 | $151,800 |
| 2012 | $105,900 | $45,900 | $0 | $0 | $0 |
| 2011 | $105,900 | $45,900 | $0 | $0 | $0 |
| 2010 | $105,900 | $45,900 | $0 | $0 | $0 |
| 2009 | $122,800 | $45,900 | $0 | $0 | $0 |
| 2008 | $97,500 | $13,300 | $0 | $0 | $0 |
| 2007 | $97,500 | $13,300 | $0 | $0 | $0 |
Deed and Sales History
| 1 | 05/24/2019 | QCD | QUIT CLAIM DEED | ARIAS CRUZ ORTIZ DE | ARIAS CRUZ | | | $0.00 | 136995 | 2019-03737 |
| 2 | 05/24/2019 | QCD | QUIT CLAIM DEED | ARIAS ARTURO C | ARIAS CRUZ ORTIZ DE | | | $0.00 | 136994 | 2019-03736 |
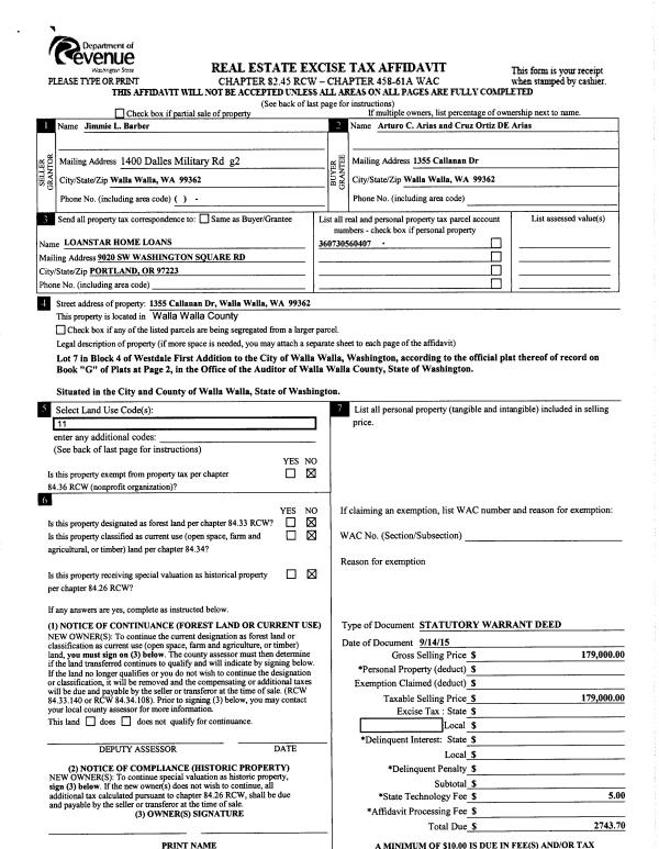
| 3 | 09/15/2015 | SWD | STATUTORY WARRANTY DEED | BARBER JIMMIE & MARY | ARIAS ARTURO C | | | $179,000.00 | 128814 | 2015-08066 |
| 4 | 08/07/2015 | DEATH CERT | DEATH CERTIFICATE | BARBER MARYBELLE | | | | | 0 | 2015-06825 |
| 5 | 03/10/2011 | WARRANTY D | WARRANTY DEED | JONES, ARNOLD E | BARBER, JIMMIE & MARY | | | | 90303 | 2011-02190 |
| 6 | 04/02/2004 | WARRANTY D | WARRANTY DEED | JONES, ARNOLD E | BARBER, JIMMIE & MARY | | | | 104416 | 2004-03489 |
| 7 | 04/28/1998 | WARRANTY D | WARRANTY DEED | | | | | $95,000.00 | 90303 | 2669-804600 |
Payout Agreement
| No payout information available.. |