Property
Account |
| Property ID: | 24198 | Abbreviated Legal Description: | PLEASANT ST LOT 17 BLK 2 |
| Parcel Number: | 360727570217 | Agent Code: | |
| Type: | Real | | |
| Tax Area: | 105 - 140-F-4 | Land Use Code | 11 |
| Open Space: | N | DFL | N |
| Historic Property: | N | Remodel Property: | N |
| Multi-Family Redevelopment: | N | | |
| Township: | 7 | Section: | 27 |
| Range: | 36 |
Location |
| Address: | 1421 GRANT ST WA 99362 | Mapsco: | |
| Neighborhood: | A Res MH | Map ID: | |
| Neighborhood CD: | 613061 |
Owner |
| Name: | WILKINSON ESTATES LLC | Owner ID: | 70466 |
| Mailing Address: | PO BOX 1425 WALLA WALLA, WA 99362 | % Ownership: | 100.0000000000% |
| | | Exemptions: | |
Taxes and Assessment Details
Values
| (+) Improvement Homesite Value: | + | $0 | |
| (+) Improvement Non-Homesite Value: | + | $41,080 | |
| (+) Land Homesite Value: | + | $0 | |
| (+) Land Non-Homesite Value: | + | $57,150 | |
| (+) Curr Use (HS): | + | $0 | $0 |
| (+) Curr Use (NHS): | + | $0 | $0 |
| | | -------------------------- | |
| (=) Market Value: | = | $98,230 | |
| (–) Productivity Loss: | – | $0 | |
| | | -------------------------- | |
| (=) Subtotal: | = | $98,230 | |
| (+) Senior Appraised Value: | + | $0 | |
| (+) Non-Senior Appraised Value: | + | $98,230 | |
| | | -------------------------- | |
| (=) Total Appraised Value: | = | $98,230 | |
| (–) Senior Exemption Loss: | – | $0 | |
| (–) Exemption Loss: | – | $0 | |
| | | -------------------------- | |
| (=) Taxable Value: | = | $98,230 | |
Taxing Jurisdiction
| Owner: | WILKINSON ESTATES LLC | | |
| % Ownership: | 100.0000000000% | | |
| Total Value: | $98,230 | | |
| Tax Area: | 105 - 140-F-4 |
| CERFD | CURRENT EXPENSE REFUND 010 | 0.0000000000 | $98,230 | $98,230 | $0.00 | | |
| CURREXP | CURRENT EXPENSE 010 | 1.0175366760 | $98,230 | $98,230 | $99.95 | | |
| HUMNSERV | HUMAN SERVICES 119 | 0.0250000000 | $98,230 | $98,230 | $2.46 | | |
| SLDREL | SOLDIERS RELIEF 121 | 0.0155990005 | $98,230 | $98,230 | $1.53 | | |
| EMERGSER | EMS 147 | 0.3792580840 | $98,230 | $98,230 | $37.25 | | |
| EMSRFD | EMS REFUND 147 | 0.0000000000 | $98,230 | $98,230 | $0.00 | | |
| FD4EXP | FD #4 EXPENSE 686 | 0.8836993059 | $98,230 | $98,230 | $86.81 | | |
| RLBRFD | RURAL LIBRARY REFUND 623 | 0.0000000000 | $98,230 | $98,230 | $0.00 | | |
| RURALLIB | RURAL LIBRARY 623 | 0.3710609029 | $98,230 | $98,230 | $36.45 | | |
| PORTRFD | PORT REFUND 640 | 0.0000000000 | $98,230 | $98,230 | $0.00 | | |
| PORTWWGEN | PORT OF WW 640 | 0.2460186015 | $98,230 | $98,230 | $24.17 | | |
| SD140BOND | SD #140 BOND 764 | 0.8342371393 | $98,230 | $98,230 | $81.95 | | |
| SD140GEN | SD #140 GENERAL 760 | 2.0646500647 | $98,230 | $98,230 | $202.81 | | |
| ST2 | STATE SCHOOL PART 2 600 | 0.8131451643 | $98,230 | $98,230 | $79.88 | | |
| STATESCHL | STATE SCHOOL 600 | 1.5158548041 | $98,230 | $98,230 | $148.90 | | |
| STREFUND | STATE REFUND LEVY 603 | 0.0000000000 | $98,230 | $98,230 | $0.00 | | |
| COROAD | COUNTY ROAD 115 | 1.6549953990 | $98,230 | $98,230 | $162.57 | | |
| CRPRD | COUNTY ROAD REFUND 115 | 0.0000000000 | $98,230 | $98,230 | $0.00 | | |
| | Total Tax Rate: | 9.8210551422 | | | | | |
| | | | | Taxes w/Current Exemptions: | $964.73 | | |
| | | | | Taxes w/o Exemptions: | $964.73 | | |
Improvement / Building
| Improvement #1: | MANUFACTURED HOME | State Code: | 11 | 840.0 sqft | Value: | $41,080 |
| Exterior Wall: | PLYWOOD | Heating/Cooling: | WARM & COOLED AIR | | Number of Bathrooms: | 1 | Number of Bedrooms: | 2 | | Plumbing: | 5 | Roof Covering: | COMP SHINGLE |
|
| | Type | Description | Class CD | Sub Class CD | Year Built | Area |
| | MOBHOME | MANUFACTURD HOMES | 1 | 20 | 1972 | 840.0 |
| | MI1 | MH SET-UP COSTS | 1 | 20 | 1972 | 1.0 |
| | RPO | OPEN PORCH W/ROOF | 1 | 20 | 1972 | 36.0 |
| | WOD | Wood Deck | 1 | 20 | 1972 | 120.0 |
| | DTG | Detached Garage | 1 | 20 | 1972 | 624.0 |
Sketch
Property Image
Land
| 1 | RES 1 | Converted: Residential | 0.1458 | 6350.00 | 0.00 | 0.00 | 1.00 | $57,150 | $0 |
Roll Value History
| 2026 | N/A | N/A | N/A | N/A | N/A |
| 2025 | $84,600 | $69,850 | $0 | $154,450 | $154,450 |
| 2024 | $41,080 | $57,150 | $0 | $98,230 | $98,230 |
| 2023 | $41,080 | $57,150 | $0 | $98,230 | $98,230 |
| 2022 | $41,080 | $46,040 | $0 | $87,120 | $87,120 |
| 2021 | $35,720 | $46,040 | $0 | $81,760 | $81,760 |
| 2020 | $35,720 | $46,040 | $0 | $81,760 | $81,760 |
| 2019 | $35,720 | $46,040 | $0 | $81,760 | $81,760 |
| 2018 | $27,020 | $38,100 | $0 | $65,120 | $65,120 |
| 2017 | $27,020 | $38,100 | $0 | $65,120 | $65,120 |
| 2016 | $24,570 | $38,100 | $0 | $62,670 | $62,670 |
| 2015 | $24,570 | $38,100 | $0 | $62,670 | $62,670 |
| 2014 | $28,900 | $38,100 | $0 | $67,000 | $67,000 |
| 2013 | $28,900 | $38,100 | $0 | $67,000 | $67,000 |
| 2012 | $28,900 | $38,100 | $0 | $0 | $0 |
| 2011 | $28,900 | $38,100 | $0 | $0 | $0 |
| 2010 | $74,100 | $38,100 | $0 | $0 | $0 |
| 2009 | $74,100 | $38,100 | $0 | $0 | $0 |
| 2008 | $74,100 | $38,100 | $0 | $0 | $0 |
| 2007 | $57,600 | $19,100 | $0 | $0 | $0 |
Deed and Sales History
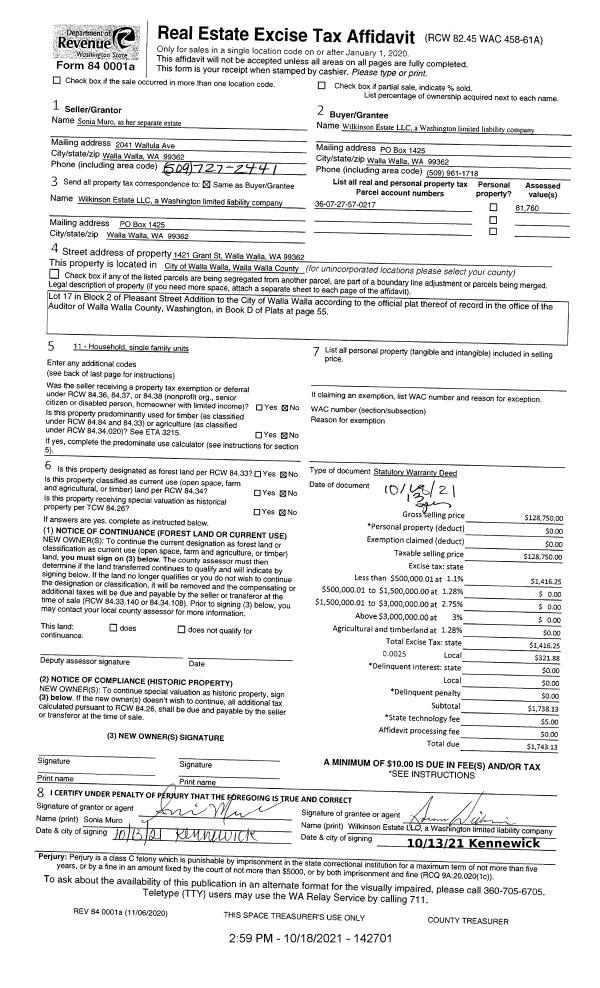
| 1 | 10/18/2021 | SWD | STATUTORY WARRANTY DEED | MURO SONIA | WILKINSON ESTATES LLC | | | $128,750.00 | 142701 | 2021-12643 |
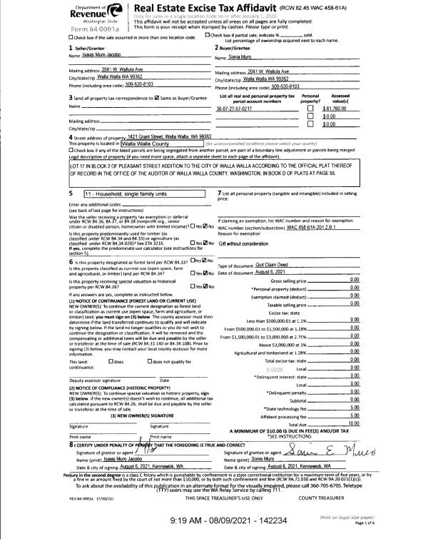
| 2 | 08/06/2021 | QCD | QUIT CLAIM DEED | JACOBO ISAIAS MURO | MURO SONIA | | | $0.00 | 142234 | 2021-09631 |
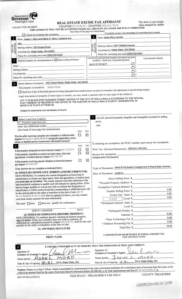
| 3 | 10/28/2014 | REAL ESTAT | REAL ESTATE CONTRACT | MURO ASAEL J & MARIA G | JACOBO ISAIAS MURO | | | $0.00 | 126895 | 2014-08091 |
| 4 | 08/06/2018 | FUL | FULFILLMENT DEED | TRI-WATTS PROPERTIES LLC | JACOBO ISAIAS MURO | | | | 0 | 2018-06426 |
| 5 | 05/16/2014 | SWD | STATUTORY WARRANTY DEED | TRI-WATTS PROPERTIES INC | MURO ASAEL J & MARIA G | | | $60,000.00 | 125897 | 2014-03316 |
| 6 | 04/10/1980 | WARRANTY D | WARRANTY DEED | | | | | $16,500.00 | 0 | 1218-002927 |
Payout Agreement
| No payout information available.. |