Property
Account |
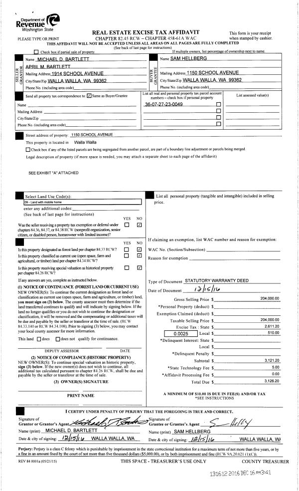
| Property ID: | 24194 | Abbreviated Legal Description: | 27-7-36 TRACT B OF S/P (ELY PTN TAX 32A WITHIN SE1/4SW1/4NW1/4) |
| Parcel Number: | 360727230049 | Agent Code: | |
| Type: | Real | | |
| Tax Area: | 105 - 140-F-4 | Land Use Code | 11 |
| Open Space: | N | DFL | N |
| Historic Property: | N | Remodel Property: | N |
| Multi-Family Redevelopment: | N | | |
| Township: | 7 | Section: | 27 |
| Range: | 36 |
Location |
| Address: | 1150 SCHOOL AVE WA 99362 | Mapsco: | |
| Neighborhood: | A Res MH | Map ID: | |
| Neighborhood CD: | 613061 |
Owner |
| Name: | HELLBERG SAM | Owner ID: | 44527 |
| Mailing Address: | 1150 SCHOOL AVE WALLA WALLA, WA 99362 | % Ownership: | 100.0000000000% |
| | | Exemptions: | |
Taxes and Assessment Details
Property Tax Information as of
02/21/2026
Click on "Statement Details" to expand or collapse a tax statement.
* Please enter a valid date ** Please enter a valid date *
Statement Details |
| | TOTAL: | $0.00 | $0.00 | $0.00 | $0.00 | $0.00 | $0.00 |
|
| | $0.00 | $0.00 | $0.00 | $0.00 | $0.00 | $0.00 |
Values
| (+) Improvement Homesite Value: | + | $0 | |
| (+) Improvement Non-Homesite Value: | + | $154,100 | |
| (+) Land Homesite Value: | + | $0 | |
| (+) Land Non-Homesite Value: | + | $92,290 | |
| (+) Curr Use (HS): | + | $0 | $0 |
| (+) Curr Use (NHS): | + | $0 | $0 |
| | | -------------------------- | |
| (=) Market Value: | = | $246,390 | |
| (–) Productivity Loss: | – | $0 | |
| | | -------------------------- | |
| (=) Subtotal: | = | $246,390 | |
| (+) Senior Appraised Value: | + | $0 | |
| (+) Non-Senior Appraised Value: | + | $246,390 | |
| | | -------------------------- | |
| (=) Total Appraised Value: | = | $246,390 | |
| (–) Senior Exemption Loss: | – | $0 | |
| (–) Exemption Loss: | – | $0 | |
| | | -------------------------- | |
| (=) Taxable Value: | = | $246,390 | |
Taxing Jurisdiction
| Owner: | HELLBERG SAM | | |
| % Ownership: | 100.0000000000% | | |
| Total Value: | $246,390 | | |
| Tax Area: | 105 - 140-F-4 |
| CERFD | CURRENT EXPENSE REFUND 010 | 0.0000000000 | $246,390 | $246,390 | $0.00 | | |
| CURREXP | CURRENT EXPENSE 010 | 1.0175366760 | $246,390 | $246,390 | $250.71 | | |
| HUMNSERV | HUMAN SERVICES 119 | 0.0250000000 | $246,390 | $246,390 | $6.16 | | |
| SLDREL | SOLDIERS RELIEF 121 | 0.0155990005 | $246,390 | $246,390 | $3.84 | | |
| EMERGSER | EMS 147 | 0.3792580840 | $246,390 | $246,390 | $93.45 | | |
| EMSRFD | EMS REFUND 147 | 0.0000000000 | $246,390 | $246,390 | $0.00 | | |
| FD4EXP | FD #4 EXPENSE 686 | 0.8836993059 | $246,390 | $246,390 | $217.73 | | |
| RLBRFD | RURAL LIBRARY REFUND 623 | 0.0000000000 | $246,390 | $246,390 | $0.00 | | |
| RURALLIB | RURAL LIBRARY 623 | 0.3710609029 | $246,390 | $246,390 | $91.43 | | |
| PORTRFD | PORT REFUND 640 | 0.0000000000 | $246,390 | $246,390 | $0.00 | | |
| PORTWWGEN | PORT OF WW 640 | 0.2460186015 | $246,390 | $246,390 | $60.62 | | |
| SD140BOND | SD #140 BOND 764 | 0.8342371393 | $246,390 | $246,390 | $205.55 | | |
| SD140GEN | SD #140 GENERAL 760 | 2.0646500647 | $246,390 | $246,390 | $508.71 | | |
| ST2 | STATE SCHOOL PART 2 600 | 0.8131451643 | $246,390 | $246,390 | $200.35 | | |
| STATESCHL | STATE SCHOOL 600 | 1.5158548041 | $246,390 | $246,390 | $373.49 | | |
| STREFUND | STATE REFUND LEVY 603 | 0.0000000000 | $246,390 | $246,390 | $0.00 | | |
| COROAD | COUNTY ROAD 115 | 1.6549953990 | $246,390 | $246,390 | $407.77 | | |
| CRPRD | COUNTY ROAD REFUND 115 | 0.0000000000 | $246,390 | $246,390 | $0.00 | | |
| | Total Tax Rate: | 9.8210551422 | | | | | |
| | | | | Taxes w/Current Exemptions: | $2,419.81 | | |
| | | | | Taxes w/o Exemptions: | $2,419.81 | | |
Improvement / Building
| Improvement #1: | MANUFACTURED HOME | State Code: | 11 | 1568.0 sqft | Value: | $154,100 |
| Exterior Wall: | PLYWOOD | Heating/Cooling: | HEAT PUMP | | Number of Bathrooms: | 2 | Number of Bedrooms: | 3 | | Plumbing: | 9 | Roof Covering: | COMP SHINGLE |
|
| | Type | Description | Class CD | Sub Class CD | Year Built | Area |
| | MOBHOME | MANUFACTURD HOMES | 1 | 30 | 1986 | 1568.0 |
| | MI1 | MH SET-UP COSTS | 1 | 30 | 1986 | 1.5 |
| | RPO | OPEN PORCH W/ROOF | 1 | 30 | 1986 | 40.0 |
| | SWP | Solid Wall Porch | 1 | 30 | 1986 | 144.0 |
| | CPC | COVERED CARPORT/PATIO | 1 | 30 | 0 | 400.0 |
| | POL3 | POLE BUILDING-CON,ELEC,INSU | 1 | 30 | 2014 | 1296.0 |
Sketch
Property Image
Land
| 1 | RES 1 | Converted: Residential | 0.3022 | 13165.00 | 0.00 | 0.00 | 1.00 | $92,290 | $0 |
Roll Value History
| 2026 | N/A | N/A | N/A | N/A | N/A |
| 2025 | $135,690 | $112,820 | $0 | $248,510 | $248,510 |
| 2024 | $154,100 | $92,290 | $0 | $246,390 | $246,390 |
| 2023 | $154,100 | $92,290 | $0 | $246,390 | $246,390 |
| 2022 | $181,290 | $74,250 | $0 | $255,540 | $255,540 |
| 2021 | $157,650 | $74,250 | $0 | $231,900 | $231,900 |
| 2020 | $150,140 | $74,250 | $0 | $224,390 | $224,390 |
| 2019 | $150,140 | $74,250 | $0 | $224,390 | $224,390 |
| 2018 | $127,910 | $49,800 | $0 | $177,710 | $177,710 |
| 2017 | $106,590 | $49,800 | $0 | $156,390 | $156,390 |
| 2016 | $96,900 | $49,800 | $0 | $146,700 | $146,700 |
| 2015 | $96,900 | $49,800 | $0 | $146,700 | $146,700 |
| 2014 | $102,000 | $49,800 | $0 | $151,800 | $151,800 |
| 2013 | $87,000 | $49,800 | $0 | $136,800 | $136,800 |
| 2012 | $80,900 | $49,800 | $0 | $0 | $0 |
| 2011 | $80,900 | $49,800 | $0 | $0 | $0 |
| 2010 | $80,900 | $49,800 | $0 | $0 | $0 |
| 2009 | $95,400 | $49,800 | $0 | $0 | $0 |
| 2008 | $95,400 | $49,800 | $0 | $0 | $0 |
| 2007 | $60,600 | $27,300 | $0 | $0 | $0 |
Deed and Sales History
| 1 | 12/16/2016 | SWD | STATUTORY WARRANTY DEED | BARTLETT MICHAEL D & APRIL M | HELLBERG SAM | | | $204,000.00 | 131612 | 2016-10382 |
| 2 | 02/22/2008 | WARRANTY D | WARRANTY DEED | MARTIN, GERROD A | BARTLETT, MICHAEL D & APRIL M | | | $153,000.00 | 114566 | 2008-01615 |
| 3 | 10/07/2005 | WARRANTY D | WARRANTY DEED | HARDIN, ELLNA TRUST | MARTIN, GERROD A | | | $141,500.00 | 108713 | 2005-12591 |
| 4 | 01/19/1993 | WARRANTY D | WARRANTY DEED | | | | | $63,000.00 | 0 | 2039-300571 |
Payout Agreement
| No payout information available.. |