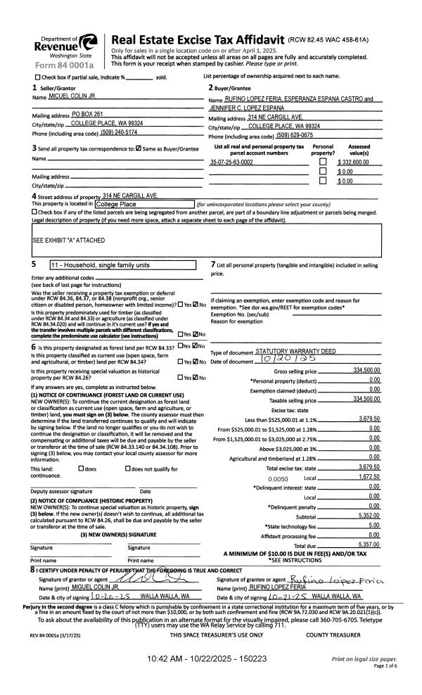
Property
Account |
| Property ID: | 24165 | Abbreviated Legal Description: | DAMSON GARDEN ESTATES LOT 2 |
| Parcel Number: | 350725630002 | Agent Code: | |
| Type: | Real | | |
| Tax Area: | 75 - CP 250 | Land Use Code | 11 |
| Open Space: | N | DFL | N |
| Historic Property: | N | Remodel Property: | N |
| Multi-Family Redevelopment: | N | | |
| Township: | 7 | Section: | 25 |
| Range: | 35 |
Location |
| Address: | 314 NE CARGILL AVE WA 99324 | Mapsco: | |
| Neighborhood: | A MH | Map ID: | |
| Neighborhood CD: | 113061 |
Owner |
| Name: | LEE MICHAEL D | Owner ID: | 71295 |
| Mailing Address: | 314 NE CARGILL AVE COLLEGE PLACE, WA 99324 | % Ownership: | 100.0000000000% |
| | | Exemptions: | |
Taxes and Assessment Details
Property Tax Information as of
02/21/2026
Click on "Statement Details" to expand or collapse a tax statement.
* Please enter a valid date ** Please enter a valid date *
Statement Details |
| | TOTAL: | $0.00 | $0.00 | $0.00 | $0.00 | $0.00 | $0.00 |
|
| | $0.00 | $0.00 | $0.00 | $0.00 | $0.00 | $0.00 |
Values
| (+) Improvement Homesite Value: | + | $0 | |
| (+) Improvement Non-Homesite Value: | + | $230,670 | |
| (+) Land Homesite Value: | + | $0 | |
| (+) Land Non-Homesite Value: | + | $55,000 | |
| (+) Curr Use (HS): | + | $0 | $0 |
| (+) Curr Use (NHS): | + | $0 | $0 |
| | | -------------------------- | |
| (=) Market Value: | = | $285,670 | |
| (–) Productivity Loss: | – | $0 | |
| | | -------------------------- | |
| (=) Subtotal: | = | $285,670 | |
| (+) Senior Appraised Value: | + | $0 | |
| (+) Non-Senior Appraised Value: | + | $285,670 | |
| | | -------------------------- | |
| (=) Total Appraised Value: | = | $285,670 | |
| (–) Senior Exemption Loss: | – | $0 | |
| (–) Exemption Loss: | – | $0 | |
| | | -------------------------- | |
| (=) Taxable Value: | = | $285,670 | |
Taxing Jurisdiction
| Owner: | LEE MICHAEL D | | |
| % Ownership: | 100.0000000000% | | |
| Total Value: | $285,670 | | |
| Tax Area: | 75 - CP 250 |
| CERFD | CURRENT EXPENSE REFUND 010 | 0.0000000000 | $285,670 | $285,670 | $0.00 | | |
| CURREXP | CURRENT EXPENSE 010 | 1.0175366760 | $285,670 | $285,670 | $290.68 | | |
| HUMNSERV | HUMAN SERVICES 119 | 0.0250000000 | $285,670 | $285,670 | $7.14 | | |
| SLDREL | SOLDIERS RELIEF 121 | 0.0155990005 | $285,670 | $285,670 | $4.46 | | |
| COLLPLBOND | C OF CP BOND 644 | 0.4374241808 | $285,670 | $285,670 | $124.96 | | |
| COLLPLGEN | CITY OF CP 632 | 1.4453819216 | $285,670 | $285,670 | $412.90 | | |
| EMERGSER | EMS 147 | 0.3792580840 | $285,670 | $285,670 | $108.34 | | |
| EMSRFD | EMS REFUND 147 | 0.0000000000 | $285,670 | $285,670 | $0.00 | | |
| RURALLIB | RURAL LIBRARY 623 | 0.3710609029 | $285,670 | $285,670 | $106.00 | | |
| PORTRFD | PORT REFUND 640 | 0.0000000000 | $285,670 | $285,670 | $0.00 | | |
| PORTWWGEN | PORT OF WW 640 | 0.2460186015 | $285,670 | $285,670 | $70.28 | | |
| SD250BOND | SD #250 BOND 773 | 1.4560608159 | $285,670 | $285,670 | $415.95 | | |
| SD250GEN | SD #250 GENERAL 770 | 2.3880724087 | $285,670 | $285,670 | $682.20 | | |
| ST2 | STATE SCHOOL PART 2 600 | 0.8131451643 | $285,670 | $285,670 | $232.29 | | |
| STATESCHL | STATE SCHOOL 600 | 1.5158548041 | $285,670 | $285,670 | $433.03 | | |
| STREFUND | STATE REFUND LEVY 603 | 0.0000000000 | $285,670 | $285,670 | $0.00 | | |
| | Total Tax Rate: | 10.1104125603 | | | | | |
| | | | | Taxes w/Current Exemptions: | $2,888.23 | | |
| | | | | Taxes w/o Exemptions: | $2,888.23 | | |
Improvement / Building
| Improvement #1: | MANUFACTURED HOME | State Code: | 11 | 1778.0 sqft | Value: | $230,670 |
| Exterior Wall: | PLYWOOD | Heating/Cooling: | WARM & COOLED AIR | | Number of Bathrooms: | 2 | Number of Bedrooms: | 3 | | Plumbing: | 8 | Roof Covering: | COMP SHINGLE |
|
| | Type | Description | Class CD | Sub Class CD | Year Built | Area |
| | MOBHOME | MANUFACTURD HOMES | 1 | 40 | 1995 | 1778.0 |
| | MI1 | MH SET-UP COSTS | 1 | 40 | 1995 | 1.0 |
| | DTG | Detached Garage | 1 | 40 | 1995 | 506.0 |
Sketch
Property Image
Land
| 1 | RES 1 | Converted: Residential | 0.1653 | 7202.00 | 0.00 | 0.00 | 1.00 | $55,000 | $0 |
Roll Value History
| 2026 | N/A | N/A | N/A | N/A | N/A |
| 2025 | $207,600 | $125,000 | $0 | $332,600 | $332,600 |
| 2024 | $230,670 | $55,000 | $0 | $285,670 | $285,670 |
| 2023 | $230,670 | $55,000 | $0 | $285,670 | $285,670 |
| 2022 | $200,580 | $55,000 | $0 | $255,580 | $255,580 |
| 2021 | $200,580 | $55,000 | $0 | $255,580 | $255,580 |
| 2020 | $117,990 | $55,000 | $0 | $172,990 | $172,990 |
| 2019 | $129,790 | $43,200 | $0 | $172,990 | $172,990 |
| 2018 | $103,840 | $43,200 | $0 | $147,040 | $147,040 |
| 2017 | $98,890 | $43,200 | $0 | $142,090 | $142,090 |
| 2016 | $89,900 | $43,200 | $0 | $133,100 | $133,100 |
| 2015 | $89,900 | $43,200 | $0 | $133,100 | $133,100 |
| 2014 | $89,900 | $43,200 | $0 | $133,100 | $133,100 |
| 2013 | $89,900 | $43,200 | $0 | $133,100 | $133,100 |
| 2012 | $89,900 | $43,200 | $0 | $0 | $0 |
| 2011 | $89,900 | $43,200 | $0 | $0 | $0 |
| 2010 | $89,900 | $43,200 | $0 | $0 | $0 |
| 2009 | $96,900 | $43,200 | $0 | $0 | $0 |
| 2008 | $85,000 | $21,600 | $0 | $0 | $0 |
| 2007 | $85,000 | $21,600 | $0 | $0 | $0 |
Deed and Sales History
| 1 | 10/22/2025 | SWD | STATUTORY WARRANTY DEED | COLIN MIGUEL JR | FERIA RUFINO LOPEZ & ESPERANZA ESPANA CASTRO & | | | $334,500.00 | 150223 | 2025-06512 |
| 2 | 10/23/2023 | SWD | STATUTORY WARRANTY DEED | LEE MICHAEL D | COLIN MIGUEL JR | | | $230,000.00 | 146673 | 2023-06211 |
| 3 | 03/11/2022 | DPR | DEED OF PERSONAL REPRESENTATIVE | LEE MARY C | LEE MICHAEL D | | | $0.00 | 143548 | 2022-02143 |
| 4 | 09/29/1995 | WARRANTY D | WARRANTY DEED | | | | | $29,000.00 | 84830 | 2349-509413 |
Payout Agreement
| No payout information available.. |