Property
Account |
| Property ID: | 24139 | Abbreviated Legal Description: | CEDAR BEND SUBD LOT 33 |
| Parcel Number: | 350601530033 | Agent Code: | |
| Type: | Real | | |
| Tax Area: | 75 - CP 250 | Land Use Code | 11 |
| Open Space: | N | DFL | N |
| Historic Property: | N | Remodel Property: | N |
| Multi-Family Redevelopment: | N | | |
| Township: | 6 | Section: | 1 |
| Range: | 35 |
Location |
| Address: | 1624 SE RED OAK AVE WA 99324 | Mapsco: | |
| Neighborhood: | A MH | Map ID: | |
| Neighborhood CD: | 113061 |
Owner |
| Name: | ZUNIGA RAMIRO & JULIA E | Owner ID: | 55052 |
| Mailing Address: | 1624 SE RED OAK AVE COLLEGE PLACE, WA 99324 | % Ownership: | 100.0000000000% |
| | | Exemptions: | |
Taxes and Assessment Details
Values
| (+) Improvement Homesite Value: | + | $0 | |
| (+) Improvement Non-Homesite Value: | + | $192,620 | |
| (+) Land Homesite Value: | + | $0 | |
| (+) Land Non-Homesite Value: | + | $55,000 | |
| (+) Curr Use (HS): | + | $0 | $0 |
| (+) Curr Use (NHS): | + | $0 | $0 |
| | | -------------------------- | |
| (=) Market Value: | = | $247,620 | |
| (–) Productivity Loss: | – | $0 | |
| | | -------------------------- | |
| (=) Subtotal: | = | $247,620 | |
| (+) Senior Appraised Value: | + | $0 | |
| (+) Non-Senior Appraised Value: | + | $247,620 | |
| | | -------------------------- | |
| (=) Total Appraised Value: | = | $247,620 | |
| (–) Senior Exemption Loss: | – | $0 | |
| (–) Exemption Loss: | – | $0 | |
| | | -------------------------- | |
| (=) Taxable Value: | = | $247,620 | |
Taxing Jurisdiction
| Owner: | ZUNIGA RAMIRO & JULIA E | | |
| % Ownership: | 100.0000000000% | | |
| Total Value: | $247,620 | | |
| Tax Area: | 75 - CP 250 |
| CERFD | CURRENT EXPENSE REFUND 010 | 0.0000000000 | $247,620 | $247,620 | $0.00 | | |
| CURREXP | CURRENT EXPENSE 010 | 1.0175366760 | $247,620 | $247,620 | $251.96 | | |
| HUMNSERV | HUMAN SERVICES 119 | 0.0250000000 | $247,620 | $247,620 | $6.19 | | |
| SLDREL | SOLDIERS RELIEF 121 | 0.0155990005 | $247,620 | $247,620 | $3.86 | | |
| COLLPLBOND | C OF CP BOND 644 | 0.4374241808 | $247,620 | $247,620 | $108.31 | | |
| COLLPLGEN | CITY OF CP 632 | 1.4453819216 | $247,620 | $247,620 | $357.91 | | |
| EMERGSER | EMS 147 | 0.3792580840 | $247,620 | $247,620 | $93.91 | | |
| EMSRFD | EMS REFUND 147 | 0.0000000000 | $247,620 | $247,620 | $0.00 | | |
| RURALLIB | RURAL LIBRARY 623 | 0.3710609029 | $247,620 | $247,620 | $91.88 | | |
| PORTRFD | PORT REFUND 640 | 0.0000000000 | $247,620 | $247,620 | $0.00 | | |
| PORTWWGEN | PORT OF WW 640 | 0.2460186015 | $247,620 | $247,620 | $60.92 | | |
| SD250BOND | SD #250 BOND 773 | 1.4560608159 | $247,620 | $247,620 | $360.55 | | |
| SD250GEN | SD #250 GENERAL 770 | 2.3880724087 | $247,620 | $247,620 | $591.33 | | |
| ST2 | STATE SCHOOL PART 2 600 | 0.8131451643 | $247,620 | $247,620 | $201.35 | | |
| STATESCHL | STATE SCHOOL 600 | 1.5158548041 | $247,620 | $247,620 | $375.36 | | |
| STREFUND | STATE REFUND LEVY 603 | 0.0000000000 | $247,620 | $247,620 | $0.00 | | |
| | Total Tax Rate: | 10.1104125603 | | | | | |
| | | | | Taxes w/Current Exemptions: | $2,503.53 | | |
| | | | | Taxes w/o Exemptions: | $2,503.53 | | |
Improvement / Building
| Improvement #1: | MANUFACTURED HOME | State Code: | 11 | 1278.0 sqft | Value: | $192,620 |
| Exterior Wall: | HARDBOARD | Heating/Cooling: | WARM & COOLED AIR | | Number of Bathrooms: | 2 | Number of Bedrooms: | 3 | | Plumbing: | 9 | Roof Covering: | COMP SHINGLE |
|
| | Type | Description | Class CD | Sub Class CD | Year Built | Area |
| | MOBHOME | MANUFACTURD HOMES | 1 | 30 | 1998 | 1278.0 |
| | MI1 | MH SET-UP COSTS | 1 | 30 | 1998 | 1.0 |
| | WDR | WOOD DECK W/ROOF | 1 | 30 | 1998 | 48.0 |
| | DTG | Detached Garage | 1 | 30 | 1998 | 418.0 |
| | SI1 | SITE IMPROVEMENT | 1 | 30 | 1998 | 1.0 |
Sketch
Property Image
Land
| 1 | RES 1 | Converted: Residential | 0.1875 | 8167.00 | 0.00 | 0.00 | 1.00 | $55,000 | $0 |
Roll Value History
| 2026 | N/A | N/A | N/A | N/A | N/A |
| 2025 | $182,990 | $70,000 | $0 | $252,990 | $252,990 |
| 2024 | $192,620 | $55,000 | $0 | $247,620 | $247,620 |
| 2023 | $192,620 | $55,000 | $0 | $247,620 | $247,620 |
| 2022 | $167,490 | $55,000 | $0 | $222,490 | $222,490 |
| 2021 | $167,490 | $55,000 | $0 | $222,490 | $222,490 |
| 2020 | $95,710 | $55,000 | $0 | $150,710 | $150,710 |
| 2019 | $95,710 | $55,000 | $0 | $150,710 | $150,710 |
| 2018 | $79,760 | $55,000 | $0 | $134,760 | $134,760 |
| 2017 | $75,960 | $55,000 | $0 | $130,960 | $130,960 |
| 2016 | $75,960 | $55,000 | $0 | $130,960 | $130,960 |
| 2015 | $75,960 | $55,000 | $0 | $130,960 | $130,960 |
| 2014 | $63,300 | $55,000 | $0 | $118,300 | $118,300 |
| 2013 | $63,300 | $55,000 | $0 | $118,300 | $118,300 |
| 2012 | $69,500 | $55,000 | $0 | $0 | $0 |
| 2011 | $76,100 | $55,000 | $0 | $0 | $0 |
| 2010 | $76,100 | $55,000 | $0 | $0 | $0 |
| 2009 | $83,000 | $55,000 | $0 | $0 | $0 |
| 2008 | $73,900 | $25,000 | $0 | $0 | $0 |
| 2007 | $73,900 | $25,000 | $0 | $0 | $0 |
Deed and Sales History
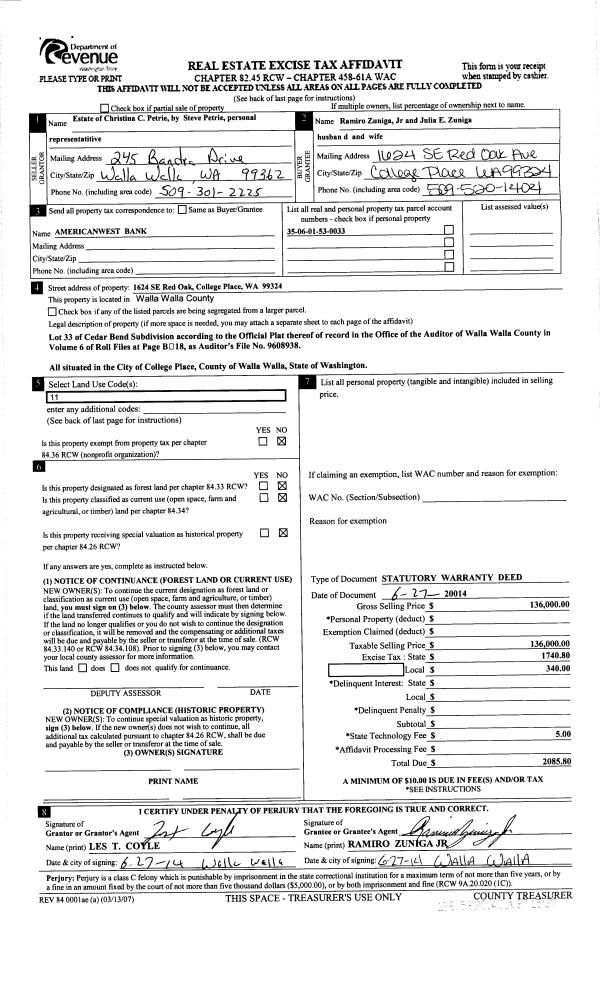
| 1 | 06/27/2014 | SWD | STATUTORY WARRANTY DEED | PETRIE CHRISTINA C ESTATE OF | ZUNIGA RAMIRO & JULIA E | | | $136,000.00 | 126152 | 2014-04469 |
| 2 | 09/30/1998 | WARRANTY D | WARRANTY DEED | | | | | | 91357 | 2739-811261 |
Payout Agreement
| No payout information available.. |