Property
Account |
| Property ID: | 24128 | Abbreviated Legal Description: | BLALOCK ORCHARDS LESS N 10' LOT 3 BLK 7 |
| Parcel Number: | 350723520716 | Agent Code: | |
| Type: | Real | | |
| Tax Area: | 311 - 250-4 | Land Use Code | 11 |
| Open Space: | N | DFL | N |
| Historic Property: | N | Remodel Property: | N |
| Multi-Family Redevelopment: | N | | |
| Township: | 7 | Section: | 23 |
| Range: | 35 |
Location |
| Address: | 2765 HERITAGE RD WA 99362 | Mapsco: | |
| Neighborhood: | MH A Rural/City Infl | Map ID: | |
| Neighborhood CD: | 313062 |
Owner |
| Name: | WATSON WILLIAM H | Owner ID: | 16098 |
| Mailing Address: | SHERRI OBRIEN WATSON 2765 HERITAGE RD WALLA WALLA, WA 99362 | % Ownership: | 100.0000000000% |
| | | Exemptions: | |
Taxes and Assessment Details
Values
| (+) Improvement Homesite Value: | + | $0 | |
| (+) Improvement Non-Homesite Value: | + | $248,770 | |
| (+) Land Homesite Value: | + | $0 | |
| (+) Land Non-Homesite Value: | + | $135,330 | |
| (+) Curr Use (HS): | + | $0 | $0 |
| (+) Curr Use (NHS): | + | $0 | $0 |
| | | -------------------------- | |
| (=) Market Value: | = | $384,100 | |
| (–) Productivity Loss: | – | $0 | |
| | | -------------------------- | |
| (=) Subtotal: | = | $384,100 | |
| (+) Senior Appraised Value: | + | $0 | |
| (+) Non-Senior Appraised Value: | + | $384,100 | |
| | | -------------------------- | |
| (=) Total Appraised Value: | = | $384,100 | |
| (–) Senior Exemption Loss: | – | $0 | |
| (–) Exemption Loss: | – | $0 | |
| | | -------------------------- | |
| (=) Taxable Value: | = | $384,100 | |
Taxing Jurisdiction
| Owner: | WATSON WILLIAM H | | |
| % Ownership: | 100.0000000000% | | |
| Total Value: | $384,100 | | |
| Tax Area: | 311 - 250-4 |
| CERFD | CURRENT EXPENSE REFUND 010 | 0.0000000000 | $384,100 | $384,100 | $0.00 | | |
| CURREXP | CURRENT EXPENSE 010 | 1.0175366760 | $384,100 | $384,100 | $390.84 | | |
| HUMNSERV | HUMAN SERVICES 119 | 0.0250000000 | $384,100 | $384,100 | $9.60 | | |
| SLDREL | SOLDIERS RELIEF 121 | 0.0155990005 | $384,100 | $384,100 | $5.99 | | |
| EMERGSER | EMS 147 | 0.3792580840 | $384,100 | $384,100 | $145.67 | | |
| EMSRFD | EMS REFUND 147 | 0.0000000000 | $384,100 | $384,100 | $0.00 | | |
| FD4EXP | FD #4 EXPENSE 686 | 0.8836993059 | $384,100 | $384,100 | $339.43 | | |
| RLBRFD | RURAL LIBRARY REFUND 623 | 0.0000000000 | $384,100 | $384,100 | $0.00 | | |
| RURALLIB | RURAL LIBRARY 623 | 0.3710609029 | $384,100 | $384,100 | $142.52 | | |
| PORTRFD | PORT REFUND 640 | 0.0000000000 | $384,100 | $384,100 | $0.00 | | |
| PORTWWGEN | PORT OF WW 640 | 0.2460186015 | $384,100 | $384,100 | $94.50 | | |
| SD250BOND | SD #250 BOND 773 | 1.4560608159 | $384,100 | $384,100 | $559.27 | | |
| SD250GEN | SD #250 GENERAL 770 | 2.3880724087 | $384,100 | $384,100 | $917.26 | | |
| ST2 | STATE SCHOOL PART 2 600 | 0.8131451643 | $384,100 | $384,100 | $312.33 | | |
| STATESCHL | STATE SCHOOL 600 | 1.5158548041 | $384,100 | $384,100 | $582.24 | | |
| STREFUND | STATE REFUND LEVY 603 | 0.0000000000 | $384,100 | $384,100 | $0.00 | | |
| COROAD | COUNTY ROAD 115 | 1.6549953990 | $384,100 | $384,100 | $635.68 | | |
| CRPRD | COUNTY ROAD REFUND 115 | 0.0000000000 | $384,100 | $384,100 | $0.00 | | |
| | Total Tax Rate: | 10.7663011628 | | | | | |
| | | | | Taxes w/Current Exemptions: | $4,135.33 | | |
| | | | | Taxes w/o Exemptions: | $4,135.33 | | |
Improvement / Building
| Improvement #1: | MANUFACTURED HOME | State Code: | 11 | 1782.0 sqft | Value: | $248,770 |
| Exterior Wall: | HARDBOARD | Heating/Cooling: | WARM & COOLED AIR | | Number of Bathrooms: | 2 | Number of Bedrooms: | 3 | | Plumbing: | 10 | Roof Covering: | COMP SHINGLE |
|
| | Type | Description | Class CD | Sub Class CD | Year Built | Area |
| | MOBHOME | MANUFACTURD HOMES | 1 | 30 | 1998 | 1782.0 |
| | CPC | COVERED CARPORT/PATIO | 1 | 30 | 0 | 500.0 |
| | MI1 | MH SET-UP COSTS | 1 | 30 | 0 | 1.0 |
| | POL3 | POLE BUILDING-CON,ELEC,INSU | 1 | 30 | 0 | 1620.0 |
| | TOOL | TOOL SHED | 1 | 20 | 1998 | 96.0 |
| | ATG | Attached Garage | 1 | 30 | 1998 | 598.0 |
| | UTST | Utility Storage Shed | 1 | 30 | 1998 | 120.0 |
| | CPC | COVERED CARPORT/PATIO | 1 | 30 | 1998 | 120.0 |
Sketch
Property Image
Land
| 1 | RES 1 | Converted: Residential | 2.0300 | 0.00 | 0.00 | 0.00 | 1.00 | $135,330 | $0 |
Roll Value History
| 2026 | N/A | N/A | N/A | N/A | N/A |
| 2025 | $373,160 | $135,330 | $0 | $508,490 | $508,490 |
| 2024 | $373,160 | $135,330 | $0 | $508,490 | $508,490 |
| 2023 | $248,770 | $135,330 | $0 | $384,100 | $384,100 |
| 2022 | $207,310 | $135,330 | $0 | $342,640 | $342,640 |
| 2021 | $208,480 | $83,200 | $0 | $291,680 | $291,680 |
| 2020 | $173,740 | $83,200 | $0 | $256,940 | $256,940 |
| 2019 | $173,740 | $83,200 | $0 | $256,940 | $256,940 |
| 2018 | $173,740 | $83,200 | $0 | $256,940 | $256,940 |
| 2017 | $151,070 | $83,200 | $0 | $234,270 | $234,270 |
| 2016 | $137,340 | $83,200 | $0 | $220,540 | $220,540 |
| 2015 | $136,300 | $83,200 | $0 | $219,500 | $219,500 |
| 2014 | $136,300 | $83,200 | $0 | $219,500 | $219,500 |
| 2013 | $136,300 | $83,200 | $0 | $219,500 | $219,500 |
| 2012 | $116,300 | $83,200 | $0 | $0 | $0 |
| 2011 | $116,300 | $83,200 | $0 | $0 | $0 |
| 2010 | $97,900 | $83,200 | $0 | $0 | $0 |
| 2009 | $152,100 | $49,100 | $0 | $0 | $0 |
| 2008 | $99,900 | $49,100 | $0 | $0 | $0 |
| 2007 | $99,900 | $49,100 | $0 | $0 | $0 |
Deed and Sales History
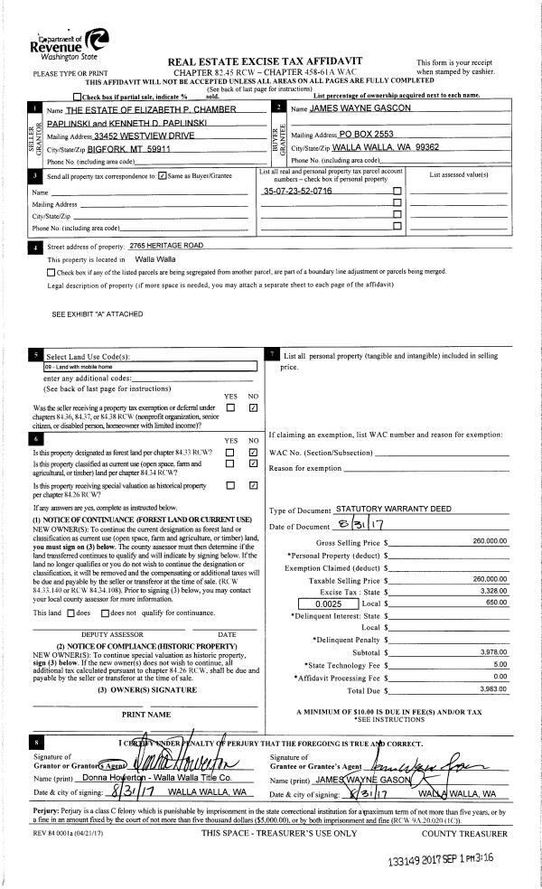
| 1 | 08/01/2022 | SWD | STATUTORY WARRANTY DEED | GASCON JAMES WAYNE | WATSON WILLIAM H | | | $507,000.00 | 144410 | 2022-06414 |
| 2 | 09/01/2017 | SWD | STATUTORY WARRANTY DEED | PAPLINSKI KENNETH & ELIZABETH | GASCON JAMES WAYNE | | | $0.00 | 133149 | 2017-06904 |
| 3 | 09/05/1997 | WARRANTY D | WARRANTY DEED | | | | | $27,000.00 | 88843 | 2569-708425 |
Payout Agreement
| No payout information available.. |