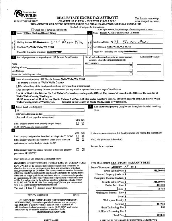
Property
Account |
| Property ID: | 24093 | Abbreviated Legal Description: | BLALOCK ORCHARDS LOT 11 BLOCK 19 |
| Parcel Number: | 350725521943 | Agent Code: | |
| Type: | Real | | |
| Tax Area: | 313 - 250-F-4 | Land Use Code | 11 |
| Open Space: | N | DFL | N |
| Historic Property: | N | Remodel Property: | N |
| Multi-Family Redevelopment: | N | | |
| Township: | 7 | Section: | 25 |
| Range: | 35 |
Location |
| Address: | 523 ELECTRIC AVE WA 99324 | Mapsco: | |
| Neighborhood: | MH A Rural/City Infl | Map ID: | |
| Neighborhood CD: | 313062 |
Owner |
| Name: | MILLER RONALD ALLEN & MARILYN A | Owner ID: | 45906 |
| Mailing Address: | 523 ELECTRIC AVE WALLA WALLA, WA 99362 | % Ownership: | 100.0000000000% |
| | | Exemptions: | |
Taxes and Assessment Details
Property Tax Information as of
02/21/2026
Click on "Statement Details" to expand or collapse a tax statement.
* Please enter a valid date ** Please enter a valid date *
Statement Details |
| | TOTAL: | $0.00 | $0.00 | $0.00 | $0.00 | $0.00 | $0.00 |
|
| | $0.00 | $0.00 | $0.00 | $0.00 | $0.00 | $0.00 |
Values
| (+) Improvement Homesite Value: | + | $295,910 | |
| (+) Improvement Non-Homesite Value: | + | $0 | |
| (+) Land Homesite Value: | + | $133,000 | |
| (+) Land Non-Homesite Value: | + | $0 | |
| (+) Curr Use (HS): | + | $0 | $0 |
| (+) Curr Use (NHS): | + | $0 | $0 |
| | | -------------------------- | |
| (=) Market Value: | = | $428,910 | |
| (–) Productivity Loss: | – | $0 | |
| | | -------------------------- | |
| (=) Subtotal: | = | $428,910 | |
| (+) Senior Appraised Value: | + | $0 | |
| (+) Non-Senior Appraised Value: | + | $428,910 | |
| | | -------------------------- | |
| (=) Total Appraised Value: | = | $428,910 | |
| (–) Senior Exemption Loss: | – | $0 | |
| (–) Exemption Loss: | – | $0 | |
| | | -------------------------- | |
| (=) Taxable Value: | = | $428,910 | |
Taxing Jurisdiction
| Owner: | MILLER RONALD ALLEN & MARILYN A | | |
| % Ownership: | 100.0000000000% | | |
| Total Value: | $428,910 | | |
| Tax Area: | 313 - 250-F-4 |
| CERFD | CURRENT EXPENSE REFUND 010 | 0.0000000000 | $428,910 | $428,910 | $0.00 | | |
| CURREXP | CURRENT EXPENSE 010 | 1.0175366760 | $428,910 | $428,910 | $436.43 | | |
| HUMNSERV | HUMAN SERVICES 119 | 0.0250000000 | $428,910 | $428,910 | $10.72 | | |
| SLDREL | SOLDIERS RELIEF 121 | 0.0155990005 | $428,910 | $428,910 | $6.69 | | |
| EMERGSER | EMS 147 | 0.3792580840 | $428,910 | $428,910 | $162.67 | | |
| EMSRFD | EMS REFUND 147 | 0.0000000000 | $428,910 | $428,910 | $0.00 | | |
| FD4EXP | FD #4 EXPENSE 686 | 0.8836993059 | $428,910 | $428,910 | $379.03 | | |
| RLBRFD | RURAL LIBRARY REFUND 623 | 0.0000000000 | $428,910 | $428,910 | $0.00 | | |
| RURALLIB | RURAL LIBRARY 623 | 0.3710609029 | $428,910 | $428,910 | $159.15 | | |
| PORTRFD | PORT REFUND 640 | 0.0000000000 | $428,910 | $428,910 | $0.00 | | |
| PORTWWGEN | PORT OF WW 640 | 0.2460186015 | $428,910 | $428,910 | $105.52 | | |
| SD250BOND | SD #250 BOND 773 | 1.4560608159 | $428,910 | $428,910 | $624.52 | | |
| SD250GEN | SD #250 GENERAL 770 | 2.3880724087 | $428,910 | $428,910 | $1,024.27 | | |
| ST2 | STATE SCHOOL PART 2 600 | 0.8131451643 | $428,910 | $428,910 | $348.77 | | |
| STATESCHL | STATE SCHOOL 600 | 1.5158548041 | $428,910 | $428,910 | $650.17 | | |
| STREFUND | STATE REFUND LEVY 603 | 0.0000000000 | $428,910 | $428,910 | $0.00 | | |
| COROAD | COUNTY ROAD 115 | 1.6549953990 | $428,910 | $428,910 | $709.84 | | |
| CRPRD | COUNTY ROAD REFUND 115 | 0.0000000000 | $428,910 | $428,910 | $0.00 | | |
| | Total Tax Rate: | 10.7663011628 | | | | | |
| | | | | Taxes w/Current Exemptions: | $4,617.78 | | |
| | | | | Taxes w/o Exemptions: | $4,617.78 | | |
Improvement / Building
| Improvement #1: | MANUFACTURED HOME | State Code: | 11 | 2701.0 sqft | Value: | $295,910 |
| Exterior Wall: | HARDBOARD | Heating/Cooling: | HEAT PUMP | | Number of Bathrooms: | 2 | Number of Bedrooms: | 3 | | Plumbing: | 9 | Roof Covering: | COMP SHINGLE |
|
| | Type | Description | Class CD | Sub Class CD | Year Built | Area |
| | MOBHOME | MANUFACTURD HOMES | 1 | 50 | 2004 | 2701.0 |
| | MI1 | MH SET-UP COSTS | 1 | 50 | 0 | 1.0 |
| | OPS | OPEN PORCH W/STEPS | 1 | 50 | 2004 | 15.0 |
| | GFP | GAS FIREPLACE | 1 | 50 | 2004 | 1.0 |
| | ATG | Attached Garage | 1 | 50 | 2004 | 2057.0 |
| | UTST | Utility Storage Shed | 1 | 50 | 2004 | 192.0 |
Sketch
Property Image
Land
| 1 | RES 1 | Converted: Residential | 1.4000 | 0.00 | 0.00 | 0.00 | 1.00 | $133,000 | $0 |
Roll Value History
| 2026 | N/A | N/A | N/A | N/A | N/A |
| 2025 | $423,150 | $133,000 | $0 | $556,150 | $556,150 |
| 2024 | $384,680 | $133,000 | $0 | $517,680 | $517,680 |
| 2023 | $295,910 | $133,000 | $0 | $428,910 | $428,910 |
| 2022 | $269,010 | $133,000 | $0 | $402,010 | $402,010 |
| 2021 | $302,150 | $78,200 | $0 | $380,350 | $380,350 |
| 2020 | $274,680 | $78,200 | $0 | $352,880 | $352,880 |
| 2019 | $274,680 | $78,200 | $0 | $352,880 | $352,880 |
| 2018 | $261,600 | $78,200 | $0 | $339,800 | $339,800 |
| 2017 | $227,480 | $78,200 | $0 | $305,680 | $305,680 |
| 2016 | $227,480 | $78,200 | $0 | $305,680 | $305,680 |
| 2015 | $241,400 | $58,700 | $0 | $300,100 | $300,100 |
| 2014 | $241,400 | $58,700 | $0 | $300,100 | $300,100 |
| 2013 | $241,400 | $58,700 | $0 | $300,100 | $300,100 |
| 2012 | $227,100 | $58,700 | $0 | $0 | $0 |
| 2011 | $227,100 | $58,700 | $0 | $0 | $0 |
| 2010 | $182,500 | $78,200 | $0 | $0 | $0 |
| 2009 | $243,100 | $46,600 | $0 | $0 | $0 |
| 2008 | $168,000 | $46,600 | $0 | $0 | $0 |
| 2007 | $168,000 | $46,600 | $0 | $0 | $0 |
Deed and Sales History
| 1 | 09/10/2015 | SWD | STATUTORY WARRANTY DEED | GLUCK WILLIAM & BEVERLY | MILLER RONALD ALLEN & MARILYN A | | | $315,000.00 | 128794 | 2015-07942 |
| 2 | 03/29/2005 | WARRANTY D | WARRANTY DEED | CURCIO, JOSEPH J | GLUCK, WILLIAM & BEVERLY | | | | 106600 | 2005-03515 |
| 3 | 01/14/2005 | WARRANTY D | WARRANTY DEED | CURCIO, JOSEPH J & PATRICIA | GLUCK, WILLIAM & BEVERLY | | | $70,000.00 | 106600 | 2005-00545 |
Payout Agreement
| No payout information available.. |