Property
Account |
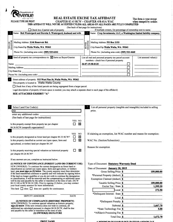
| Property ID: | 24083 | Abbreviated Legal Description: | HEADLEY ADDN W 66' OF LOTS 19 & 20 BLOCK 1 & TRACT |
| Parcel Number: | 360719580125 | Agent Code: | |
| Type: | Real | | |
| Tax Area: | 1 - OL-140-F | Land Use Code | 11 |
| Open Space: | N | DFL | N |
| Historic Property: | N | Remodel Property: | N |
| Multi-Family Redevelopment: | N | | |
| Township: | 7 | Section: | 19 |
| Range: | 36 |
Location |
| Address: | 915 W PINE ST WA 99362 | Mapsco: | |
| Neighborhood: | COMMERCIAL | Map ID: | |
| Neighborhood CD: | 3302 |
Owner |
| Name: | CROP INVESTMENTS LLC | Owner ID: | 51978 |
| Mailing Address: | PO BOX 2153 WALLA WALLA, WA 99362 | % Ownership: | 100.0000000000% |
| | | Exemptions: | |
Taxes and Assessment Details
Property Tax Information as of
04/19/2026
Click on "Statement Details" to expand or collapse a tax statement.
* Please enter a valid date ** Please enter a valid date *
Statement Details |
| | TOTAL: | $0.00 | $0.00 | $0.00 | $0.00 | $0.00 | $0.00 |
|
| | $0.00 | $0.00 | $0.00 | $0.00 | $0.00 | $0.00 |
Values
| (+) Improvement Homesite Value: | + | $0 | |
| (+) Improvement Non-Homesite Value: | + | $60,100 | |
| (+) Land Homesite Value: | + | $0 | |
| (+) Land Non-Homesite Value: | + | $49,000 | |
| (+) Curr Use (HS): | + | $0 | $0 |
| (+) Curr Use (NHS): | + | $0 | $0 |
| | | -------------------------- | |
| (=) Market Value: | = | $109,100 | |
| (–) Productivity Loss: | – | $0 | |
| | | -------------------------- | |
| (=) Subtotal: | = | $109,100 | |
| (+) Senior Appraised Value: | + | $0 | |
| (+) Non-Senior Appraised Value: | + | $109,100 | |
| | | -------------------------- | |
| (=) Total Appraised Value: | = | $109,100 | |
| (–) Senior Exemption Loss: | – | $0 | |
| (–) Exemption Loss: | – | $0 | |
| | | -------------------------- | |
| (=) Taxable Value: | = | $109,100 | |
Taxing Jurisdiction
| Owner: | CROP INVESTMENTS LLC | | |
| % Ownership: | 100.0000000000% | | |
| Total Value: | $109,100 | | |
| Tax Area: | 1 - OL-140-F |
| CERFD | CURRENT EXPENSE REFUND 010 | 0.0000000000 | $109,100 | $109,100 | $0.00 | | |
| CURREXP | CURRENT EXPENSE 010 | 1.0175366760 | $109,100 | $109,100 | $111.01 | | |
| HUMNSERV | HUMAN SERVICES 119 | 0.0250000000 | $109,100 | $109,100 | $2.73 | | |
| SLDREL | SOLDIERS RELIEF 121 | 0.0155990005 | $109,100 | $109,100 | $1.70 | | |
| EMERGSER | EMS 147 | 0.3792580840 | $109,100 | $109,100 | $41.38 | | |
| EMSRFD | EMS REFUND 147 | 0.0000000000 | $109,100 | $109,100 | $0.00 | | |
| PORTRFD | PORT REFUND 640 | 0.0000000000 | $109,100 | $109,100 | $0.00 | | |
| PORTWWGEN | PORT OF WW 640 | 0.2460186015 | $109,100 | $109,100 | $26.84 | | |
| SD140BOND | SD #140 BOND 764 | 0.8342371393 | $109,100 | $109,100 | $91.02 | | |
| SD140GEN | SD #140 GENERAL 760 | 2.0646500647 | $109,100 | $109,100 | $225.25 | | |
| ST2 | STATE SCHOOL PART 2 600 | 0.8131451643 | $109,100 | $109,100 | $88.71 | | |
| STATESCHL | STATE SCHOOL 600 | 1.5158548041 | $109,100 | $109,100 | $165.38 | | |
| STREFUND | STATE REFUND LEVY 603 | 0.0000000000 | $109,100 | $109,100 | $0.00 | | |
| CWWBOND | C OF WW BOND 643 | 0.2760494372 | $109,100 | $109,100 | $30.12 | | |
| CWWGEN | CITY OF WW 631 | 1.6100204973 | $109,100 | $109,100 | $175.65 | | |
| CWWRFD | CITY OF WALLA WALLA REFUND 631 | 0.0000000000 | $109,100 | $109,100 | $0.00 | | |
| | Total Tax Rate: | 8.7973694689 | | | | | |
| | | | | Taxes w/Current Exemptions: | $959.79 | | |
| | | | | Taxes w/o Exemptions: | $959.79 | | |
Improvement / Building
| Improvement #1: | MANUFACTURED HOME | State Code: | 11 | 800.0 sqft | Value: | $15,800 |
| Exterior Wall: | VINYL | Heating/Cooling: | WARM & COOLED AIR | | Number of Bathrooms: | 1 | Number of Bedrooms: | 2 | | Plumbing: | 5 | Roof Covering: | GALVANIZED METAL |
|
| | Type | Description | Class CD | Sub Class CD | Year Built | Area |
| | MOBHOME | MANUFACTURD HOMES | 1 | 20 | 1966 | 800.0 |
| | MI1 | MH SET-UP COSTS | 1 | 20 | 0 | 1.0 |
| | S1F | Single One Story Fireplace | 1 | 20 | 1966 | 1.0 |
| Improvement #2: | COMMERCIAL | State Code: | 11 | 1400.0 sqft | Value: | $44,300 |
Sketch
Property Image
Land
| 1 | RES 1 | Converted: Residential | 0.1364 | 5940.00 | 0.00 | 0.00 | 1.00 | $49,000 | $0 |
Roll Value History
| 2026 | N/A | N/A | N/A | N/A | N/A |
| 2025 | $60,100 | $49,000 | $0 | $109,100 | $109,100 |
| 2024 | $60,100 | $49,000 | $0 | $109,100 | $109,100 |
| 2023 | $60,100 | $49,000 | $0 | $109,100 | $109,100 |
| 2022 | $60,100 | $49,000 | $0 | $109,100 | $109,100 |
| 2021 | $52,700 | $29,700 | $0 | $82,400 | $82,400 |
| 2020 | $52,700 | $29,700 | $0 | $82,400 | $82,400 |
| 2019 | $52,700 | $29,700 | $0 | $82,400 | $82,400 |
| 2018 | $52,700 | $29,700 | $0 | $82,400 | $82,400 |
| 2017 | $52,700 | $29,700 | $0 | $82,400 | $82,400 |
| 2016 | $52,700 | $29,700 | $0 | $82,400 | $82,400 |
| 2015 | $37,100 | $7,300 | $0 | $44,400 | $44,400 |
| 2014 | $37,100 | $7,300 | $0 | $44,400 | $44,400 |
| 2013 | $37,100 | $7,300 | $0 | $44,400 | $44,400 |
| 2012 | $37,100 | $7,300 | $0 | $0 | $0 |
| 2011 | $37,100 | $7,300 | $0 | $0 | $0 |
| 2010 | $37,400 | $7,300 | $0 | $0 | $0 |
| 2009 | $51,700 | $3,100 | $0 | $0 | $0 |
| 2008 | $37,000 | $17,800 | $0 | $0 | $0 |
| 2007 | $37,000 | $17,800 | $0 | $0 | $0 |
Deed and Sales History
| 1 | 02/02/2015 | SWD | STATUTORY WARRANTY DEED | WESTERGARD BOB & DORETTA | CROP INVESTMENTS LLC | | | $109,000.00 | 127375 | 2015-00974 |
| 2 | 04/22/2014 | QCD | QUIT CLAIM DEED | APPLEBEE TIMOTHY & RHONDA | WESTERGARD BOB & DORETTA | | | $44,400.00 | 125748 | 2014-02715 |
| 3 | 11/02/2006 | WARRANTY D | WARRANTY DEED | GILLIAM, DAN B | HARDIN, RUSSELL E & VALERIE S | | | | 87003 | 2006-13207 |
| 4 | 10/19/2006 | WARRANTY D | WARRANTY DEED | HARDIN RUSSELL E & VALERIE S | APPLEBEE TIMOTHY & RHONDA | | | $35,000.00 | 111492 | 2006-12611 |
| 5 | 09/15/1986 | WARRANTY D | WARRANTY DEED | | | | | $34,000.00 | 0 | 1869-008999 |
Payout Agreement
| No payout information available.. |