Property
Account |
| Property ID: | 2407 | Abbreviated Legal Description: | SEC 33 TWN 7 RGN 33 TAX 11 & 14 |
| Parcel Number: | 330733440017 | Agent Code: | |
| Type: | Real | | |
| Tax Area: | 318 - 300-6-TM | Land Use Code | 11 |
| Open Space: | N | DFL | N |
| Historic Property: | N | Remodel Property: | N |
| Multi-Family Redevelopment: | N | | |
| Township: | 7 | Section: | 33 |
| Range: | 33 |
Location |
| Address: | 42 WILLOW ST WA 99360 | Mapsco: | |
| Neighborhood: | 0 Farm | Map ID: | |
| Neighborhood CD: | 2220 |
Owner |
| Name: | C & H CATTLE COMPANY LLC | Owner ID: | 58902 |
| Mailing Address: | 168 JEANNES RD TOUCHET, WA 99360 | % Ownership: | 100.0000000000% |
| | | Exemptions: | |
Taxes and Assessment Details
Property Tax Information as of
02/21/2026
Click on "Statement Details" to expand or collapse a tax statement.
* Please enter a valid date ** Please enter a valid date *
Statement Details |
| | TOTAL: | $0.00 | $0.00 | $0.00 | $0.00 | $0.00 | $0.00 |
|
| | $0.00 | $0.00 | $0.00 | $0.00 | $0.00 | $0.00 |
Values
| (+) Improvement Homesite Value: | + | $0 | |
| (+) Improvement Non-Homesite Value: | + | $1,200 | |
| (+) Land Homesite Value: | + | $0 | |
| (+) Land Non-Homesite Value: | + | $127,600 | |
| (+) Curr Use (HS): | + | $0 | $0 |
| (+) Curr Use (NHS): | + | $0 | $0 |
| | | -------------------------- | |
| (=) Market Value: | = | $128,800 | |
| (–) Productivity Loss: | – | $0 | |
| | | -------------------------- | |
| (=) Subtotal: | = | $128,800 | |
| (+) Senior Appraised Value: | + | $0 | |
| (+) Non-Senior Appraised Value: | + | $128,800 | |
| | | -------------------------- | |
| (=) Total Appraised Value: | = | $128,800 | |
| (–) Senior Exemption Loss: | – | $0 | |
| (–) Exemption Loss: | – | $0 | |
| | | -------------------------- | |
| (=) Taxable Value: | = | $128,800 | |
Taxing Jurisdiction
| Owner: | C & H CATTLE COMPANY LLC | | |
| % Ownership: | 100.0000000000% | | |
| Total Value: | $128,800 | | |
| Tax Area: | 318 - 300-6-TM |
| CERFD | CURRENT EXPENSE REFUND 010 | 0.0000000000 | $128,800 | $128,800 | $0.00 | | |
| CURREXP | CURRENT EXPENSE 010 | 0.9851088983 | $128,800 | $128,800 | $126.88 | | |
| HUMNSERV | HUMAN SERVICES 119 | 0.0250000000 | $128,800 | $128,800 | $3.22 | | |
| SLDREL | SOLDIERS RELIEF 121 | 0.0155990000 | $128,800 | $128,800 | $2.01 | | |
| EMERGSER | EMS 147 | 0.3676811629 | $128,800 | $128,800 | $47.36 | | |
| EMSRFD | EMS REFUND 147 | 0.0000000000 | $128,800 | $128,800 | $0.00 | | |
| FD6EXP | FD #6 EXPENSE 693 | 0.6637564225 | $128,800 | $128,800 | $85.49 | | |
| RLBRFD | RURAL LIBRARY REFUND 623 | 0.0000000000 | $128,800 | $128,800 | $0.00 | | |
| RURALLIB | RURAL LIBRARY 623 | 0.3601547782 | $128,800 | $128,800 | $46.39 | | |
| PORTRFD | PORT REFUND 640 | 0.0000000000 | $128,800 | $128,800 | $0.00 | | |
| PORTWWGEN | PORT OF WW 640 | 0.2344301070 | $128,800 | $128,800 | $30.19 | | |
| SD300BOND | SD #300 BOND 783 | 1.9432820025 | $128,800 | $128,800 | $250.29 | | |
| SD300GEN | SD #300 GENERAL 780 | 2.2641297109 | $128,800 | $128,800 | $291.62 | | |
| ST2 | STATE SCHOOL PART 2 600 | 0.8853714103 | $128,800 | $128,800 | $114.04 | | |
| STATESCHL | STATE SCHOOL 600 | 1.6424571473 | $128,800 | $128,800 | $211.55 | | |
| STREFUND | STATE REFUND LEVY 603 | 0.0000000000 | $128,800 | $128,800 | $0.00 | | |
| COROAD | COUNTY ROAD 115 | 1.6137667997 | $128,800 | $128,800 | $207.85 | | |
| CRPRD | COUNTY ROAD REFUND 115 | 0.0000000000 | $128,800 | $128,800 | $0.00 | | |
| | Total Tax Rate: | 11.0007374396 | | | | | |
| | | | | Taxes w/Current Exemptions: | $1,416.89 | | |
| | | | | Taxes w/o Exemptions: | $1,416.89 | | |
Improvement / Building
| Improvement #1: | RESIDENTIAL | State Code: | 11 | 756.0 sqft | Value: | $1,200 |
| Exterior Wall: | SIDING | Heating/Cooling: | STOVE-NO HEAT | | Number of Bathrooms: | 1 | Number of Bedrooms: | 2 | | Plumbing: | 6 | Roof Covering: | COMP SHINGLE |
|
Sketch
Property Image
Land
| 1 | C2-I | Class 2 Irrigated | 22.0000 | 0.00 | 0.00 | 0.00 | 1.00 | $127,600 | $0 |
| 2 | WASTE | Waste | 1.0600 | 0.00 | 0.00 | 0.00 | 1.00 | $0 | $0 |
Roll Value History
| 2026 | N/A | N/A | N/A | N/A | N/A |
| 2025 | $1,200 | $127,600 | $0 | $128,800 | $128,800 |
| 2024 | $1,200 | $123,200 | $0 | $124,400 | $124,400 |
| 2023 | $1,200 | $118,800 | $0 | $120,000 | $120,000 |
| 2022 | $1,200 | $110,000 | $0 | $111,200 | $111,200 |
| 2021 | $1,200 | $99,000 | $0 | $100,200 | $100,200 |
| 2020 | $1,200 | $79,200 | $0 | $80,400 | $80,400 |
| 2019 | $1,200 | $70,400 | $0 | $71,600 | $71,600 |
| 2018 | $1,200 | $68,200 | $0 | $69,400 | $69,400 |
| 2017 | $1,200 | $68,200 | $0 | $69,400 | $69,400 |
| 2016 | $1,200 | $68,200 | $0 | $69,400 | $69,400 |
| 2015 | $1,200 | $59,400 | $0 | $60,600 | $60,600 |
| 2014 | $1,200 | $59,400 | $0 | $60,600 | $60,600 |
| 2013 | $1,200 | $57,200 | $57,200 | $58,400 | $58,400 |
| 2012 | $1,200 | $50,600 | $0 | $0 | $0 |
| 2011 | $1,200 | $50,600 | $0 | $0 | $0 |
| 2010 | $1,200 | $50,600 | $0 | $0 | $0 |
| 2009 | $1,200 | $50,600 | $0 | $0 | $0 |
| 2008 | $2,800 | $52,800 | $0 | $0 | $0 |
| 2007 | $2,800 | $52,800 | $0 | $0 | $0 |
Deed and Sales History
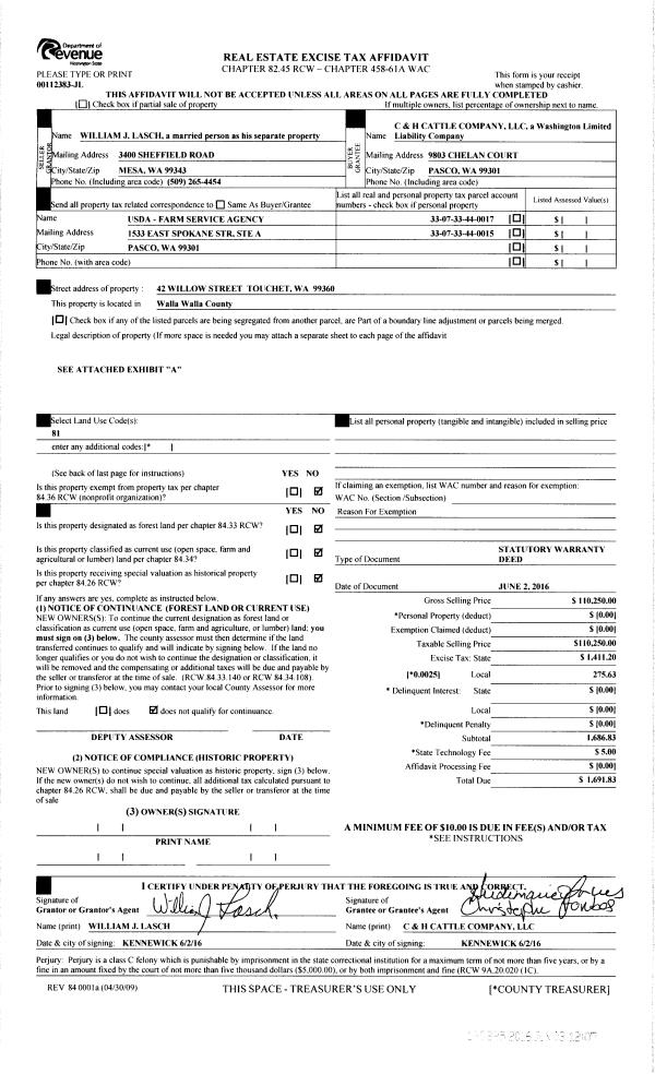
| 1 | 06/03/2016 | SWD | STATUTORY WARRANTY DEED | LASCH WILLIAM J | C & H CATTLE COMPANY LLC | | 2-PARCELS | $110,250.00 | 130335 | 2016-04157 |
|   | |
| 2 | 01/01/1963 | WARRANTY D | WARRANTY DEED | | | | | $7,500.00 | 0 | 3050-445118 |
Payout Agreement
| No payout information available.. |