Property
Account |
| Property ID: | 24067 | Abbreviated Legal Description: | FRANKLAND W 112' OF LOT 8 BLK 6 PLUS VAC ALLEY |
| Parcel Number: | 360716500608 | Agent Code: | |
| Type: | Real | | |
| Tax Area: | 5 - OL-140 | Land Use Code | 11 |
| Open Space: | N | DFL | N |
| Historic Property: | N | Remodel Property: | N |
| Multi-Family Redevelopment: | N | | |
| Township: | 7 | Section: | 16 |
| Range: | 36 |
Location |
| Address: | 708 HART LN WA 99362 | Mapsco: | |
| Neighborhood: | A Mobile Home | Map ID: | |
| Neighborhood CD: | 513061 |
Owner |
| Name: | 708 HART LANE LLC | Owner ID: | 70998 |
| Mailing Address: | 4291 ELTOPIA WEST RD ELTOPIA, WA 99330 | % Ownership: | 100.0000000000% |
| | | Exemptions: | |
Taxes and Assessment Details
Property Tax Information as of
04/19/2026
Click on "Statement Details" to expand or collapse a tax statement.
* Please enter a valid date ** Please enter a valid date *
Statement Details |
| | TOTAL: | $0.00 | $0.00 | $0.00 | $0.00 | $0.00 | $0.00 |
|
| | $0.00 | $0.00 | $0.00 | $0.00 | $0.00 | $0.00 |
Values
| (+) Improvement Homesite Value: | + | $0 | |
| (+) Improvement Non-Homesite Value: | + | $24,400 | |
| (+) Land Homesite Value: | + | $0 | |
| (+) Land Non-Homesite Value: | + | $39,690 | |
| (+) Curr Use (HS): | + | $0 | $0 |
| (+) Curr Use (NHS): | + | $0 | $0 |
| | | -------------------------- | |
| (=) Market Value: | = | $64,090 | |
| (–) Productivity Loss: | – | $0 | |
| | | -------------------------- | |
| (=) Subtotal: | = | $64,090 | |
| (+) Senior Appraised Value: | + | $0 | |
| (+) Non-Senior Appraised Value: | + | $64,090 | |
| | | -------------------------- | |
| (=) Total Appraised Value: | = | $64,090 | |
| (–) Senior Exemption Loss: | – | $0 | |
| (–) Exemption Loss: | – | $0 | |
| | | -------------------------- | |
| (=) Taxable Value: | = | $64,090 | |
Taxing Jurisdiction
| Owner: | 708 HART LANE LLC | | |
| % Ownership: | 100.0000000000% | | |
| Total Value: | $64,090 | | |
| Tax Area: | 5 - OL-140 |
| CERFD | CURRENT EXPENSE REFUND 010 | 0.0000000000 | $64,090 | $64,090 | $0.00 | | |
| CURREXP | CURRENT EXPENSE 010 | 1.0175366760 | $64,090 | $64,090 | $65.21 | | |
| HUMNSERV | HUMAN SERVICES 119 | 0.0250000000 | $64,090 | $64,090 | $1.60 | | |
| SLDREL | SOLDIERS RELIEF 121 | 0.0155990005 | $64,090 | $64,090 | $1.00 | | |
| EMERGSER | EMS 147 | 0.3792580840 | $64,090 | $64,090 | $24.31 | | |
| EMSRFD | EMS REFUND 147 | 0.0000000000 | $64,090 | $64,090 | $0.00 | | |
| PORTRFD | PORT REFUND 640 | 0.0000000000 | $64,090 | $64,090 | $0.00 | | |
| PORTWWGEN | PORT OF WW 640 | 0.2460186015 | $64,090 | $64,090 | $15.77 | | |
| SD140BOND | SD #140 BOND 764 | 0.8342371393 | $64,090 | $64,090 | $53.47 | | |
| SD140GEN | SD #140 GENERAL 760 | 2.0646500647 | $64,090 | $64,090 | $132.32 | | |
| ST2 | STATE SCHOOL PART 2 600 | 0.8131451643 | $64,090 | $64,090 | $52.11 | | |
| STATESCHL | STATE SCHOOL 600 | 1.5158548041 | $64,090 | $64,090 | $97.15 | | |
| STREFUND | STATE REFUND LEVY 603 | 0.0000000000 | $64,090 | $64,090 | $0.00 | | |
| CWWBOND | C OF WW BOND 643 | 0.2760494372 | $64,090 | $64,090 | $17.69 | | |
| CWWGEN | CITY OF WW 631 | 1.6100204973 | $64,090 | $64,090 | $103.19 | | |
| CWWRFD | CITY OF WALLA WALLA REFUND 631 | 0.0000000000 | $64,090 | $64,090 | $0.00 | | |
| | Total Tax Rate: | 8.7973694689 | | | | | |
| | | | | Taxes w/Current Exemptions: | $563.82 | | |
| | | | | Taxes w/o Exemptions: | $563.82 | | |
Improvement / Building
| Improvement #1: | MANUFACTURED HOME | State Code: | 11 | 924.0 sqft | Value: | $24,400 |
| Exterior Wall: | RIBBED ALUMINUM | Heating/Cooling: | WARM & COOLED AIR | | Number of Bathrooms: | 1 | Number of Bedrooms: | 3 | | Plumbing: | 5 | Roof Covering: | GALVANIZED METAL |
|
| | Type | Description | Class CD | Sub Class CD | Year Built | Area |
| | MOBHOME | MANUFACTURD HOMES | 1 | 20 | 1972 | 924.0 |
| | CPC | COVERED CARPORT/PATIO | 1 | 20 | 0 | 228.0 |
| | WDR | WOOD DECK W/ROOF | 1 | 20 | 0 | 128.0 |
| | MI1 | MH SET-UP COSTS | 1 | 20 | 1972 | 1.0 |
Sketch
Property Image
Land
| 1 | RES 1 | Converted: Residential | 0.1458 | 6350.00 | 0.00 | 0.00 | 1.00 | $39,690 | $0 |
Roll Value History
| 2026 | N/A | N/A | N/A | N/A | N/A |
| 2025 | $1,170 | $63,500 | $0 | $64,670 | $64,670 |
| 2024 | $1,170 | $63,500 | $0 | $64,670 | $64,670 |
| 2023 | $24,400 | $39,690 | $0 | $64,090 | $64,090 |
| 2022 | $24,400 | $39,690 | $0 | $64,090 | $64,090 |
| 2021 | $24,400 | $39,690 | $0 | $64,090 | $64,090 |
| 2020 | $12,200 | $39,690 | $0 | $51,890 | $51,890 |
| 2019 | $12,200 | $39,690 | $0 | $51,890 | $51,890 |
| 2018 | $6,100 | $39,690 | $0 | $45,790 | $45,790 |
| 2017 | $9,700 | $25,400 | $0 | $35,100 | $35,100 |
| 2016 | $9,700 | $25,400 | $0 | $35,100 | $35,100 |
| 2015 | $9,700 | $25,400 | $0 | $35,100 | $35,100 |
| 2014 | $9,700 | $25,400 | $0 | $35,100 | $35,100 |
| 2013 | $9,700 | $25,400 | $0 | $35,100 | $35,100 |
| 2012 | $12,300 | $25,400 | $0 | $0 | $0 |
| 2011 | $12,300 | $25,400 | $0 | $0 | $0 |
| 2010 | $10,500 | $25,400 | $0 | $0 | $0 |
| 2009 | $14,500 | $25,400 | $0 | $0 | $0 |
| 2008 | $14,500 | $25,400 | $0 | $0 | $0 |
| 2007 | $14,500 | $25,400 | $0 | $0 | $0 |
Deed and Sales History
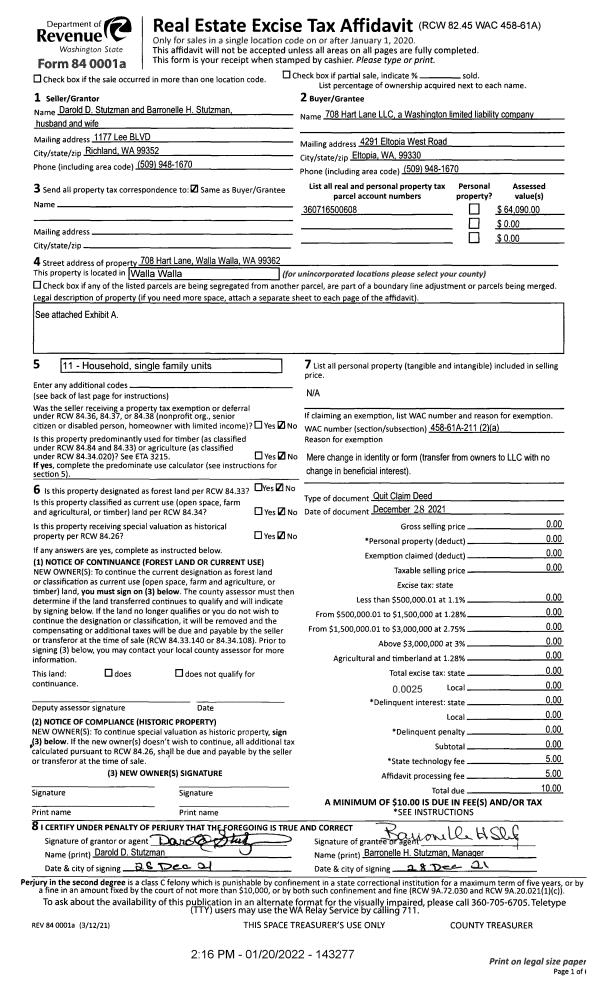
| 1 | 12/28/2021 | QCD | QUIT CLAIM DEED | STUTZMAN DAROLD D & BARRONELLE H | 708 HART LANE LLC | | | $0.00 | 143277 | 2022-00623 |
| 2 | 12/28/2021 | QCD | QUIT CLAIM DEED | STUTZMAN DAROLD D | STUTZMAN DAROLD D & BARRONELLE H | | | $0.00 | 143269 | 2022-00593 |
Payout Agreement
| No payout information available.. |