Property
Account |
| Property ID: | 24059 | Abbreviated Legal Description: | 10-6-35 NLY 170' OF WLY 246' OF SE1/4SE1/4 (PARCEL I OF S/P) |
| Parcel Number: | 350610440026 | Agent Code: | |
| Type: | Real | | |
| Tax Area: | 311 - 250-4 | Land Use Code | 11 |
| Open Space: | N | DFL | N |
| Historic Property: | N | Remodel Property: | N |
| Multi-Family Redevelopment: | N | | |
| Township: | 6 | Section: | 10 |
| Range: | 35 |
Location |
| Address: | 1183 BEET RD WA 99324 | Mapsco: | |
| Neighborhood: | VG SFR RURAL | Map ID: | |
| Neighborhood CD: | 215013 |
Owner |
| Name: | SUTHERLAND DAN & RACHEL | Owner ID: | 59411 |
| Mailing Address: | 1183 BEET RD WALLA WALLA, WA 99362 | % Ownership: | 100.0000000000% |
| | | Exemptions: | SNR/DSBL |
Taxes and Assessment Details
Property Tax Information as of
04/19/2026
Click on "Statement Details" to expand or collapse a tax statement.
* Please enter a valid date ** Please enter a valid date *
Statement Details |
| | TOTAL: | $0.00 | $0.00 | $0.00 | $0.00 | $0.00 | $0.00 |
|
| | $0.00 | $0.00 | $0.00 | $0.00 | $0.00 | $0.00 |
Values
| (+) Improvement Homesite Value: | + | $329,500 | |
| (+) Improvement Non-Homesite Value: | + | $0 | |
| (+) Land Homesite Value: | + | $144,000 | |
| (+) Land Non-Homesite Value: | + | $0 | |
| (+) Curr Use (HS): | + | $0 | $0 |
| (+) Curr Use (NHS): | + | $0 | $0 |
| | | -------------------------- | |
| (=) Market Value: | = | $473,500 | |
| (–) Productivity Loss: | – | $0 | |
| | | -------------------------- | |
| (=) Subtotal: | = | $473,500 | |
| (+) Senior Appraised Value: | + | $379,540 | |
| (+) Non-Senior Appraised Value: | + | $0 | |
| | | -------------------------- | |
| (=) Total Appraised Value: | = | $379,540 | |
| (–) Senior Exemption Loss: | – | $227,724 | |
| (–) Exemption Loss: | – | $0 | |
| | | -------------------------- | |
| (=) Taxable Value: | = | $151,816 | |
Taxing Jurisdiction
| Owner: | SUTHERLAND DAN & RACHEL | | |
| % Ownership: | 100.0000000000% | | |
| Total Value: | $473,500 | | |
| Tax Area: | 311 - 250-4 |
| CERFD | CURRENT EXPENSE REFUND 010 | 0.0000000000 | $473,500 | $151,816 | $0.00 | | |
| CURREXP | CURRENT EXPENSE 010 | 1.0175366760 | $473,500 | $151,816 | $154.48 | | |
| HUMNSERV | HUMAN SERVICES 119 | 0.0250000000 | $473,500 | $151,816 | $3.80 | | |
| SLDREL | SOLDIERS RELIEF 121 | 0.0155990005 | $473,500 | $151,816 | $2.37 | | |
| EMERGSER | EMS 147 | 0.3792580840 | $473,500 | $151,816 | $57.58 | | |
| EMSRFD | EMS REFUND 147 | 0.0000000000 | $473,500 | $151,816 | $0.00 | | |
| FD4EXP | FD #4 EXPENSE 686 | 0.8836993059 | $473,500 | $151,816 | $134.16 | | |
| RLBRFD | RURAL LIBRARY REFUND 623 | 0.0000000000 | $473,500 | $151,816 | $0.00 | | |
| RURALLIB | RURAL LIBRARY 623 | 0.3710609029 | $473,500 | $151,816 | $56.33 | | |
| PORTRFD | PORT REFUND 640 | 0.0000000000 | $473,500 | $151,816 | $0.00 | | |
| PORTWWGEN | PORT OF WW 640 | 0.2460186015 | $473,500 | $151,816 | $37.35 | | |
| SD250BOND | SD #250 BOND 773 | 0.0000000000 | $473,500 | $0 | $0.00 | | |
| SD250GEN | SD #250 GENERAL 770 | 0.0000000000 | $473,500 | $0 | $0.00 | | |
| ST2 | STATE SCHOOL PART 2 600 | 0.0000000000 | $473,500 | $0 | $0.00 | | |
| STATESCHL | STATE SCHOOL 600 | 1.5158548041 | $473,500 | $151,816 | $230.13 | | |
| STREFUND | STATE REFUND LEVY 603 | 0.0000000000 | $473,500 | $151,816 | $0.00 | | |
| COROAD | COUNTY ROAD 115 | 1.6549953990 | $473,500 | $151,816 | $251.25 | | |
| CRPRD | COUNTY ROAD REFUND 115 | 0.0000000000 | $473,500 | $151,816 | $0.00 | | |
| | Total Tax Rate: | 6.1090227739 | | | | | |
| | | | | Taxes w/Current Exemptions: | $927.45 | | |
| | | | | Taxes w/o Exemptions: | $5,097.84 | | |
Improvement / Building
| Improvement #1: | RESIDENTIAL | State Code: | 11 | 1807.0 sqft | Value: | $329,500 |
| Exterior Wall: | SIDING | Heating/Cooling: | WARM & COOLED AIR | | Number of Bathrooms: | 2 | Number of Bedrooms: | 2 | | Plumbing: | 11 | Roof Covering: | GALVANIZED METAL |
|
| | Type | Description | Class CD | Sub Class CD | Year Built | Area |
| | MA | Main Area | 4 | 30 | 2019 | 1807.0 |
| | POLE | POLE UTILITY BUILDING | 1 | 30 | 2019 | 1152.0 |
| | ATG | Attached Garage | 4 | 30 | 2019 | 576.0 |
| | RPC | OPEN PORCH W/ROOF , CEILED | 4 | 30 | 2019 | 168.0 |
| | RPC | OPEN PORCH W/ROOF , CEILED | 4 | 30 | 2019 | 45.0 |
| | RPC | OPEN PORCH W/ROOF , CEILED | 4 | 30 | 2019 | 80.0 |
| | UPFL | Upper Floor (included in main area) | 4 | 30 | 2019 | 588.0 |
| | SI1 | SITE IMPROVEMENT | 4 | 30 | 2019 | 4.0 |
Sketch
Property Image
Land
| 1 | RES 1 | Converted: Residential | 0.9600 | 41817.60 | 0.00 | 0.00 | 1.00 | $144,000 | $0 |
Roll Value History
| 2026 | N/A | N/A | N/A | N/A | N/A |
| 2025 | $329,500 | $144,000 | $0 | $473,500 | $151,816 |
| 2024 | $329,500 | $144,000 | $0 | $473,500 | $151,816 |
| 2023 | $329,500 | $144,000 | $0 | $473,500 | $151,816 |
| 2022 | $329,500 | $144,000 | $0 | $473,500 | $151,816 |
| 2021 | $85,420 | $118,760 | $0 | $204,180 | $62,968 |
| 2020 | $63,460 | $72,000 | $0 | $135,460 | $54,184 |
| 2019 | $22,220 | $72,000 | $0 | $94,220 | $94,220 |
| 2018 | $77,620 | $72,000 | $0 | $149,620 | $149,620 |
| 2017 | $73,920 | $72,000 | $0 | $145,920 | $145,920 |
| 2016 | $36,960 | $72,000 | $0 | $108,960 | $108,960 |
| 2015 | $35,200 | $72,000 | $0 | $107,200 | $107,200 |
| 2014 | $35,200 | $72,000 | $0 | $107,200 | $107,200 |
| 2013 | $35,200 | $72,000 | $0 | $107,200 | $107,200 |
| 2012 | $35,200 | $72,000 | $0 | $0 | $0 |
| 2011 | $35,200 | $72,000 | $0 | $0 | $0 |
| 2010 | $35,200 | $72,000 | $0 | $0 | $0 |
| 2009 | $47,300 | $45,000 | $0 | $0 | $0 |
| 2008 | $38,900 | $45,000 | $0 | $0 | $0 |
| 2007 | $25,600 | $45,000 | $0 | $0 | $0 |
Deed and Sales History
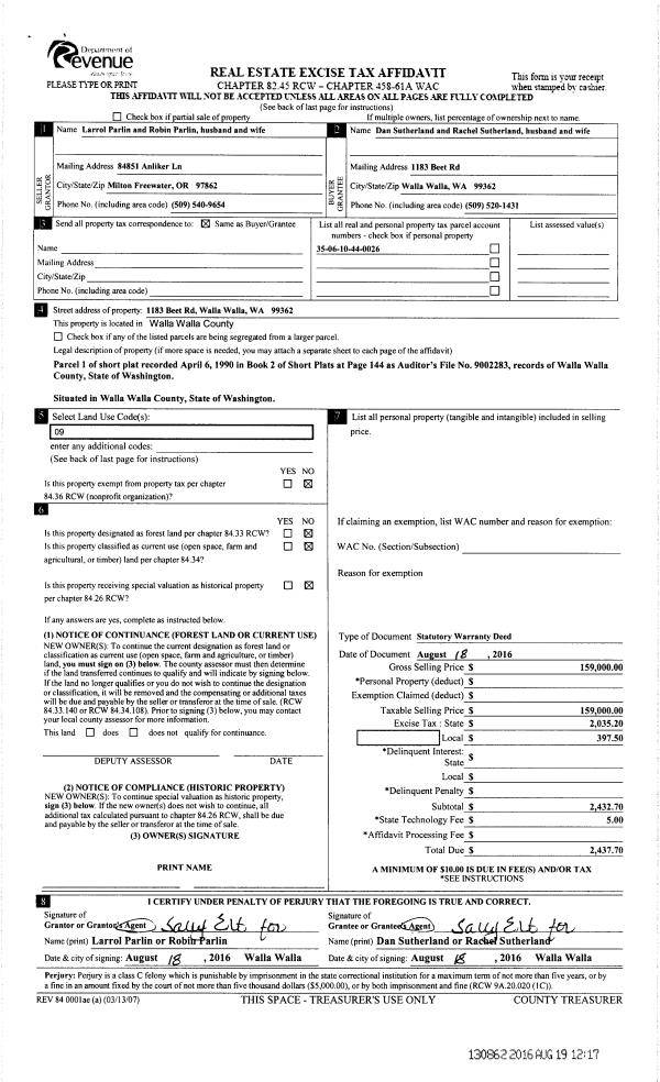
| 1 | 08/19/2016 | SWD | STATUTORY WARRANTY DEED | PARLIN LARROL & ROBIN | SUTHERLAND DAN & RACHEL | | | $159,000.00 | 130862 | 2016-06654 |
| 2 | 08/19/2016 | MH AFFIDAV | MOBILE HOME AFFIDAVIT | PARLIN LARROL & ROBIN | SUTHERLAND DAN & RACHEL | | | | 130863 | MHAFF-130863 |
| 3 | 05/09/2005 | WARRANTY D | WARRANTY DEED | SCHNEIDER, EDWARD & FLORENCE | PARLIN, LARROL & ROBIN | | | $90,000.00 | 107429 | 2005-05406 |
Payout Agreement
| No payout information available.. |