Property
Account |
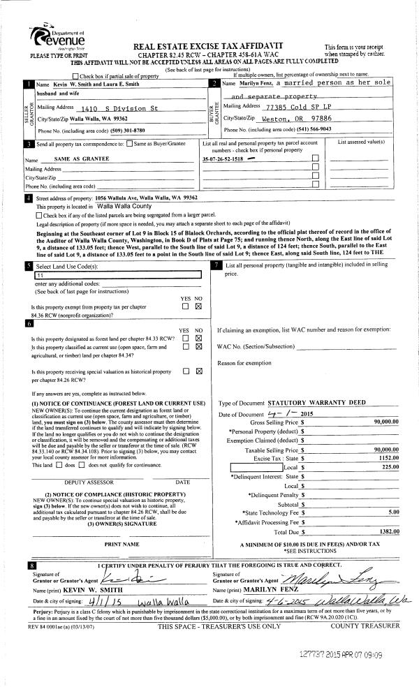
| Property ID: | 24044 | Abbreviated Legal Description: | BLALOCK ORCHARDS TAX 13 LOT 9 BLK 15 |
| Parcel Number: | 350726521518 | Agent Code: | |
| Type: | Real | | |
| Tax Area: | 311 - 250-4 | Land Use Code | 11 |
| Open Space: | N | DFL | N |
| Historic Property: | N | Remodel Property: | N |
| Multi-Family Redevelopment: | N | | |
| Township: | 7 | Section: | 26 |
| Range: | 35 |
Location |
| Address: | 1056 WALLULA AVE WA 99324 | Mapsco: | |
| Neighborhood: | MH A Rural/City Infl | Map ID: | |
| Neighborhood CD: | 313062 |
Owner |
| Name: | FENZ MARILYN | Owner ID: | 68840 |
| Mailing Address: | CLANCY M O HEFFERNAN 1056 WALLULA AVE WALLA WALLA, WA 99362 | % Ownership: | 100.0000000000% |
| | | Exemptions: | SNR/DSBL |
Taxes and Assessment Details
Values
| (+) Improvement Homesite Value: | + | $117,310 | |
| (+) Improvement Non-Homesite Value: | + | $0 | |
| (+) Land Homesite Value: | + | $80,670 | |
| (+) Land Non-Homesite Value: | + | $0 | |
| (+) Curr Use (HS): | + | $0 | $0 |
| (+) Curr Use (NHS): | + | $0 | $0 |
| | | -------------------------- | |
| (=) Market Value: | = | $197,980 | |
| (–) Productivity Loss: | – | $0 | |
| | | -------------------------- | |
| (=) Subtotal: | = | $197,980 | |
| (+) Senior Appraised Value: | + | $91,810 | |
| (+) Non-Senior Appraised Value: | + | $0 | |
| | | -------------------------- | |
| (=) Total Appraised Value: | = | $91,810 | |
| (–) Senior Exemption Loss: | – | $0 | |
| (–) Exemption Loss: | – | $0 | |
| | | -------------------------- | |
| (=) Taxable Value: | = | $91,810 | |
Taxing Jurisdiction
| Owner: | FENZ MARILYN | | |
| % Ownership: | 100.0000000000% | | |
| Total Value: | $197,980 | | |
| Tax Area: | 311 - 250-4 |
| CERFD | CURRENT EXPENSE REFUND 010 | 0.0000000000 | $197,980 | $91,810 | $0.00 | | |
| CURREXP | CURRENT EXPENSE 010 | 1.0175366760 | $197,980 | $91,810 | $93.42 | | |
| HUMNSERV | HUMAN SERVICES 119 | 0.0250000000 | $197,980 | $91,810 | $2.30 | | |
| SLDREL | SOLDIERS RELIEF 121 | 0.0155990005 | $197,980 | $91,810 | $1.43 | | |
| EMERGSER | EMS 147 | 0.3792580840 | $197,980 | $91,810 | $34.82 | | |
| EMSRFD | EMS REFUND 147 | 0.0000000000 | $197,980 | $91,810 | $0.00 | | |
| FD4EXP | FD #4 EXPENSE 686 | 0.8836993059 | $197,980 | $91,810 | $81.13 | | |
| RLBRFD | RURAL LIBRARY REFUND 623 | 0.0000000000 | $197,980 | $91,810 | $0.00 | | |
| RURALLIB | RURAL LIBRARY 623 | 0.3710609029 | $197,980 | $91,810 | $34.07 | | |
| PORTRFD | PORT REFUND 640 | 0.0000000000 | $197,980 | $91,810 | $0.00 | | |
| PORTWWGEN | PORT OF WW 640 | 0.2460186015 | $197,980 | $91,810 | $22.59 | | |
| SD250BOND | SD #250 BOND 773 | 0.0000000000 | $197,980 | $0 | $0.00 | | |
| SD250GEN | SD #250 GENERAL 770 | 0.0000000000 | $197,980 | $0 | $0.00 | | |
| ST2 | STATE SCHOOL PART 2 600 | 0.0000000000 | $197,980 | $0 | $0.00 | | |
| STATESCHL | STATE SCHOOL 600 | 1.5158548041 | $197,980 | $91,810 | $139.17 | | |
| STREFUND | STATE REFUND LEVY 603 | 0.0000000000 | $197,980 | $91,810 | $0.00 | | |
| COROAD | COUNTY ROAD 115 | 1.6549953990 | $197,980 | $91,810 | $151.95 | | |
| CRPRD | COUNTY ROAD REFUND 115 | 0.0000000000 | $197,980 | $91,810 | $0.00 | | |
| | Total Tax Rate: | 6.1090227739 | | | | | |
| | | | | Taxes w/Current Exemptions: | $560.88 | | |
| | | | | Taxes w/o Exemptions: | $2,131.52 | | |
Improvement / Building
| Improvement #1: | MANUFACTURED HOME | State Code: | 11 | 864.0 sqft | Value: | $117,310 |
| Exterior Wall: | HARDBOARD | Heating/Cooling: | FORCED AIR | | Number of Bathrooms: | 1 | Number of Bedrooms: | 2 | | Plumbing: | 6 | Roof Covering: | COMP SHINGLE |
|
| | Type | Description | Class CD | Sub Class CD | Year Built | Area |
| | MOBHOME | MANUFACTURD HOMES | 1 | 20 | 1993 | 864.0 |
| | MI1 | MH SET-UP COSTS | 1 | 20 | 0 | 1.0 |
| | WOD | Wood Deck | 1 | 20 | 1993 | 120.0 |
| | WOD | Wood Deck | 1 | 20 | 1993 | 44.0 |
| | UTST | Utility Storage Shed | 1 | 20 | 1993 | 64.0 |
| | TOOL | TOOL SHED | 1 | 20 | 1993 | 308.0 |
| | CPCD | CARPORT/DIRT FLOOR | 1 | 20 | 1993 | 308.0 |
Sketch
Property Image
Land
| 1 | RES 1 | Converted: Residential | 0.4000 | 17424.00 | 0.00 | 0.00 | 1.00 | $80,670 | $0 |
Roll Value History
| 2026 | N/A | N/A | N/A | N/A | N/A |
| 2025 | $152,510 | $80,670 | $0 | $233,180 | $91,810 |
| 2024 | $152,510 | $80,670 | $0 | $233,180 | $91,810 |
| 2023 | $117,310 | $80,670 | $0 | $197,980 | $91,810 |
| 2022 | $97,760 | $80,670 | $0 | $178,430 | $91,810 |
| 2021 | $72,980 | $53,400 | $0 | $126,380 | $91,810 |
| 2020 | $38,410 | $53,400 | $0 | $91,810 | $41,810 |
| 2019 | $35,680 | $53,400 | $0 | $89,080 | $89,080 |
| 2018 | $35,680 | $53,400 | $0 | $89,080 | $89,080 |
| 2017 | $35,680 | $53,400 | $0 | $89,080 | $89,080 |
| 2016 | $35,680 | $53,400 | $0 | $89,080 | $89,080 |
| 2015 | $37,000 | $53,400 | $0 | $90,400 | $90,400 |
| 2014 | $37,000 | $53,400 | $0 | $90,400 | $90,400 |
| 2013 | $37,000 | $53,400 | $0 | $90,400 | $90,400 |
| 2012 | $37,000 | $53,400 | $0 | $0 | $0 |
| 2011 | $37,000 | $53,400 | $0 | $0 | $0 |
| 2010 | $34,400 | $53,400 | $0 | $0 | $0 |
| 2009 | $66,300 | $31,300 | $0 | $0 | $0 |
| 2008 | $38,400 | $31,300 | $0 | $0 | $0 |
| 2007 | $38,400 | $31,300 | $0 | $0 | $0 |
Deed and Sales History
| 1 | 02/17/2021 | QCD | QUIT CLAIM DEED | FENZ MARILYN | FENZ MARILYN | | | $0.00 | 140923 | 2021-01903 |
| 2 | 04/07/2015 | SWD | STATUTORY WARRANTY DEED | SMITH KEVIN W & LAURA E | FENZ MARILYN | | | $90,000.00 | 127737 | 2015-02815 |
| 3 | 05/30/2007 | WARRANTY D | WARRANTY DEED | BROWN, ANDREW & REBECCA | SMITH, KEVIN W & LAURA E | | | $75,000.00 | 112926 | 2007-06093 |
| 4 | 05/30/2007 | WARRANTY D | WARRANTY DEED | BROWN, ROBERT E & REBECCA L | BROWN, ANDREW & REBECCA | | | $30,000.00 | 112925 | 2007-06092 |
Payout Agreement
| No payout information available.. |