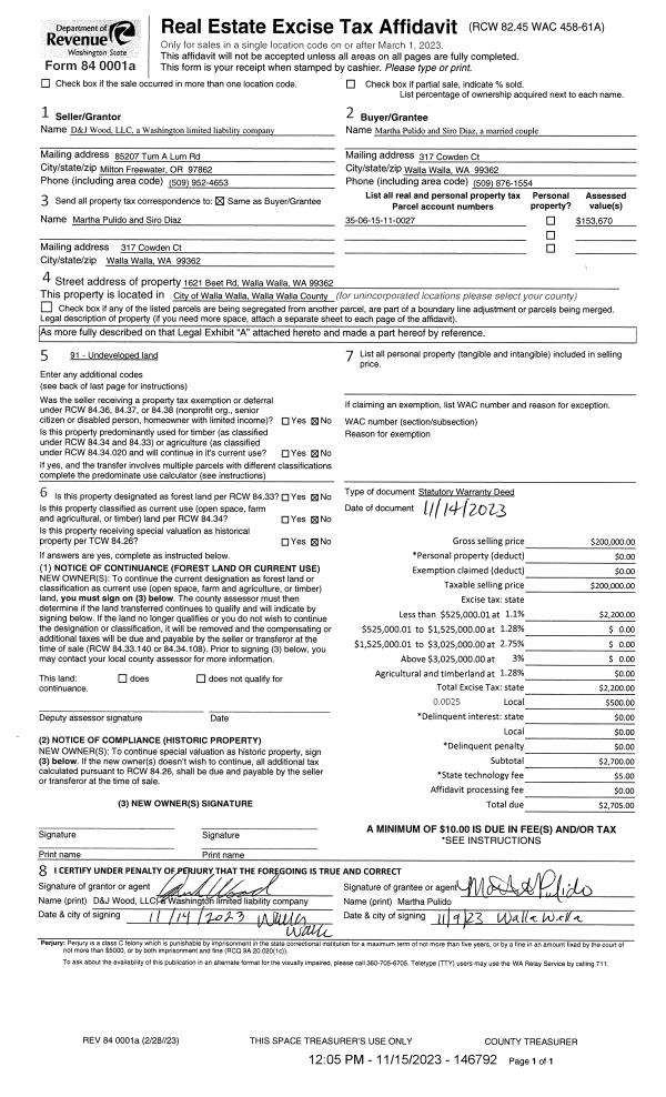
Property
Account |
| Property ID: | 24039 | Abbreviated Legal Description: | 15-6-35 LOT C3 OF S/P (ELY PTN TAX 6) |
| Parcel Number: | 350615110027 | Agent Code: | |
| Type: | Real | | |
| Tax Area: | 311 - 250-4 | Land Use Code | 91 |
| Open Space: | N | DFL | N |
| Historic Property: | N | Remodel Property: | N |
| Multi-Family Redevelopment: | N | | |
| Township: | 6 | Section: | 15 |
| Range: | 35 |
Location |
| Address: | 1621 BEET RD WA 99324 | Mapsco: | |
| Neighborhood: | MOBILE HOME RURAL | Map ID: | |
| Neighborhood CD: | 215063 |
Owner |
| Name: | D & J WOOD LLC | Owner ID: | 72072 |
| Mailing Address: | DEREK WOOD & JENNY WOOD 85207 TUM A LUM RD MILTON FREEWATER, OR 97862 | % Ownership: | 100.0000000000% |
| | | Exemptions: | |
Taxes and Assessment Details
Values
| (+) Improvement Homesite Value: | + | $0 | |
| (+) Improvement Non-Homesite Value: | + | $0 | |
| (+) Land Homesite Value: | + | $0 | |
| (+) Land Non-Homesite Value: | + | $153,670 | |
| (+) Curr Use (HS): | + | $0 | $0 |
| (+) Curr Use (NHS): | + | $0 | $0 |
| | | -------------------------- | |
| (=) Market Value: | = | $153,670 | |
| (–) Productivity Loss: | – | $0 | |
| | | -------------------------- | |
| (=) Subtotal: | = | $153,670 | |
| (+) Senior Appraised Value: | + | $0 | |
| (+) Non-Senior Appraised Value: | + | $153,670 | |
| | | -------------------------- | |
| (=) Total Appraised Value: | = | $153,670 | |
| (–) Senior Exemption Loss: | – | $0 | |
| (–) Exemption Loss: | – | $0 | |
| | | -------------------------- | |
| (=) Taxable Value: | = | $153,670 | |
Taxing Jurisdiction
| Owner: | D & J WOOD LLC | | |
| % Ownership: | 100.0000000000% | | |
| Total Value: | $153,670 | | |
| Tax Area: | 311 - 250-4 |
| CERFD | CURRENT EXPENSE REFUND 010 | 0.0000000000 | $153,670 | $153,670 | $0.00 | | |
| CURREXP | CURRENT EXPENSE 010 | 1.0175366760 | $153,670 | $153,670 | $156.36 | | |
| HUMNSERV | HUMAN SERVICES 119 | 0.0250000000 | $153,670 | $153,670 | $3.84 | | |
| SLDREL | SOLDIERS RELIEF 121 | 0.0155990005 | $153,670 | $153,670 | $2.40 | | |
| EMERGSER | EMS 147 | 0.3792580840 | $153,670 | $153,670 | $58.28 | | |
| EMSRFD | EMS REFUND 147 | 0.0000000000 | $153,670 | $153,670 | $0.00 | | |
| FD4EXP | FD #4 EXPENSE 686 | 0.8836993059 | $153,670 | $153,670 | $135.80 | | |
| RLBRFD | RURAL LIBRARY REFUND 623 | 0.0000000000 | $153,670 | $153,670 | $0.00 | | |
| RURALLIB | RURAL LIBRARY 623 | 0.3710609029 | $153,670 | $153,670 | $57.02 | | |
| PORTRFD | PORT REFUND 640 | 0.0000000000 | $153,670 | $153,670 | $0.00 | | |
| PORTWWGEN | PORT OF WW 640 | 0.2460186015 | $153,670 | $153,670 | $37.81 | | |
| SD250BOND | SD #250 BOND 773 | 1.4560608159 | $153,670 | $153,670 | $223.75 | | |
| SD250GEN | SD #250 GENERAL 770 | 2.3880724087 | $153,670 | $153,670 | $366.98 | | |
| ST2 | STATE SCHOOL PART 2 600 | 0.8131451643 | $153,670 | $153,670 | $124.96 | | |
| STATESCHL | STATE SCHOOL 600 | 1.5158548041 | $153,670 | $153,670 | $232.94 | | |
| STREFUND | STATE REFUND LEVY 603 | 0.0000000000 | $153,670 | $153,670 | $0.00 | | |
| COROAD | COUNTY ROAD 115 | 1.6549953990 | $153,670 | $153,670 | $254.32 | | |
| CRPRD | COUNTY ROAD REFUND 115 | 0.0000000000 | $153,670 | $153,670 | $0.00 | | |
| | Total Tax Rate: | 10.7663011628 | | | | | |
| | | | | Taxes w/Current Exemptions: | $1,654.46 | | |
| | | | | Taxes w/o Exemptions: | $1,654.46 | | |
Improvement / Building
Sketch
| No sketches available for this property. |
Property Image
Land
| 1 | RES 1 | Converted: Residential | 1.3300 | 0.00 | 0.00 | 0.00 | 1.00 | $153,670 | $0 |
Roll Value History
| 2026 | N/A | N/A | N/A | N/A | N/A |
| 2025 | $503,320 | $153,670 | $0 | $656,990 | $656,990 |
| 2024 | $503,320 | $153,670 | $0 | $656,990 | $656,990 |
| 2023 | $0 | $153,670 | $0 | $153,670 | $153,670 |
| 2022 | $0 | $153,670 | $0 | $153,670 | $153,670 |
| 2021 | $0 | $153,670 | $0 | $153,670 | $153,670 |
| 2020 | $0 | $76,700 | $0 | $76,700 | $76,700 |
| 2019 | $12,600 | $76,700 | $0 | $89,300 | $89,300 |
| 2018 | $12,600 | $76,700 | $0 | $89,300 | $89,300 |
| 2017 | $12,000 | $76,700 | $0 | $88,700 | $88,700 |
| 2016 | $54,080 | $76,700 | $0 | $130,780 | $130,780 |
| 2015 | $51,500 | $76,700 | $0 | $128,200 | $128,200 |
| 2014 | $51,500 | $76,700 | $0 | $128,200 | $128,200 |
| 2013 | $51,500 | $76,700 | $0 | $128,200 | $128,200 |
| 2012 | $51,500 | $76,700 | $0 | $0 | $0 |
| 2011 | $83,600 | $76,700 | $0 | $0 | $0 |
| 2010 | $83,600 | $76,700 | $0 | $0 | $0 |
| 2009 | $124,200 | $46,300 | $0 | $0 | $0 |
| 2008 | $63,700 | $46,300 | $0 | $0 | $0 |
| 2007 | $63,700 | $46,300 | $0 | $0 | $0 |
Deed and Sales History
| 1 | 11/15/2023 | SWD | STATUTORY WARRANTY DEED | D & J WOOD LLC | PULIDO MARTHA & SIRO DIAZ | | | $200,000.00 | 146792 | 2023-06676 |
| 2 | 05/19/2022 | MARD | US MARSHALL'S DEED | HARMAS LIVING TRUST | D & J WOOD LLC | | | $155,000.00 | 144322 | 2022-06073 |
| 3 | 01/04/2010 | QCD | QUIT CLAIM DEED | HARMAS LIVING TRUST | WOOD, DALE | | | $40,000.00 | 117848 | 2010-00012 |
Payout Agreement
| No payout information available.. |