Property
Account |
| Property ID: | 24010 | Abbreviated Legal Description: | LT 4 BLK 2 YELLOWHAWK CREEK SUBD, PHASE 1 |
| Parcel Number: | 360722610204 | Agent Code: | |
| Type: | Real | | |
| Tax Area: | 1 - OL-140-F | Land Use Code | 11 |
| Open Space: | N | DFL | N |
| Historic Property: | N | Remodel Property: | N |
| Multi-Family Redevelopment: | N | | |
| Township: | 7 | Section: | 22 |
| Range: | 36 |
Location |
| Address: | 215 MERRILL RD WA 99362 | Mapsco: | |
| Neighborhood: | A Superior MH | Map ID: | |
| Neighborhood CD: | 413261 |
Owner |
| Name: | CHURCH BRANDEN & TAYLOR OFFERDAHL-CHURCH | Owner ID: | 70560 |
| Mailing Address: | 215 MERRILL RD WALLA WALLA, WA 99362 | % Ownership: | 100.0000000000% |
| | | Exemptions: | |
Taxes and Assessment Details
Values
| (+) Improvement Homesite Value: | + | $0 | |
| (+) Improvement Non-Homesite Value: | + | $187,550 | |
| (+) Land Homesite Value: | + | $0 | |
| (+) Land Non-Homesite Value: | + | $80,000 | |
| (+) Curr Use (HS): | + | $0 | $0 |
| (+) Curr Use (NHS): | + | $0 | $0 |
| | | -------------------------- | |
| (=) Market Value: | = | $267,550 | |
| (–) Productivity Loss: | – | $0 | |
| | | -------------------------- | |
| (=) Subtotal: | = | $267,550 | |
| (+) Senior Appraised Value: | + | $0 | |
| (+) Non-Senior Appraised Value: | + | $267,550 | |
| | | -------------------------- | |
| (=) Total Appraised Value: | = | $267,550 | |
| (–) Senior Exemption Loss: | – | $0 | |
| (–) Exemption Loss: | – | $0 | |
| | | -------------------------- | |
| (=) Taxable Value: | = | $267,550 | |
Taxing Jurisdiction
| Owner: | CHURCH BRANDEN & TAYLOR OFFERDAHL-CHURCH | | |
| % Ownership: | 100.0000000000% | | |
| Total Value: | $267,550 | | |
| Tax Area: | 1 - OL-140-F |
| CERFD | CURRENT EXPENSE REFUND 010 | 0.0000000000 | $267,550 | $267,550 | $0.00 | | |
| CURREXP | CURRENT EXPENSE 010 | 1.0175366760 | $267,550 | $267,550 | $272.24 | | |
| HUMNSERV | HUMAN SERVICES 119 | 0.0250000000 | $267,550 | $267,550 | $6.69 | | |
| SLDREL | SOLDIERS RELIEF 121 | 0.0155990005 | $267,550 | $267,550 | $4.17 | | |
| EMERGSER | EMS 147 | 0.3792580840 | $267,550 | $267,550 | $101.47 | | |
| EMSRFD | EMS REFUND 147 | 0.0000000000 | $267,550 | $267,550 | $0.00 | | |
| PORTRFD | PORT REFUND 640 | 0.0000000000 | $267,550 | $267,550 | $0.00 | | |
| PORTWWGEN | PORT OF WW 640 | 0.2460186015 | $267,550 | $267,550 | $65.82 | | |
| SD140BOND | SD #140 BOND 764 | 0.8342371393 | $267,550 | $267,550 | $223.20 | | |
| SD140GEN | SD #140 GENERAL 760 | 2.0646500647 | $267,550 | $267,550 | $552.40 | | |
| ST2 | STATE SCHOOL PART 2 600 | 0.8131451643 | $267,550 | $267,550 | $217.56 | | |
| STATESCHL | STATE SCHOOL 600 | 1.5158548041 | $267,550 | $267,550 | $405.57 | | |
| STREFUND | STATE REFUND LEVY 603 | 0.0000000000 | $267,550 | $267,550 | $0.00 | | |
| CWWBOND | C OF WW BOND 643 | 0.2760494372 | $267,550 | $267,550 | $73.86 | | |
| CWWGEN | CITY OF WW 631 | 1.6100204973 | $267,550 | $267,550 | $430.76 | | |
| CWWRFD | CITY OF WALLA WALLA REFUND 631 | 0.0000000000 | $267,550 | $267,550 | $0.00 | | |
| | Total Tax Rate: | 8.7973694689 | | | | | |
| | | | | Taxes w/Current Exemptions: | $2,353.74 | | |
| | | | | Taxes w/o Exemptions: | $2,353.74 | | |
Improvement / Building
| Improvement #1: | MANUFACTURED HOME | State Code: | 11 | 1352.0 sqft | Value: | $187,550 |
| Exterior Wall: | VINYL | Heating/Cooling: | FORCED AIR | | Number of Bathrooms: | 2 | Number of Bedrooms: | 3 | | Plumbing: | 8 | Roof Covering: | COMP SHINGLE |
|
| | Type | Description | Class CD | Sub Class CD | Year Built | Area |
| | MOBHOME | MANUFACTURD HOMES | 1 | 40 | 1995 | 1352.0 |
| | MI1 | MH SET-UP COSTS | 1 | 40 | 0 | 1.0 |
| | ATG | Attached Garage | 1 | 40 | 1995 | 484.0 |
| | WOD | Wood Deck | 1 | 40 | 1995 | 256.0 |
Sketch
Property Image
Land
| 1 | RES 1 | Converted: Residential | 0.1700 | 7405.00 | 0.00 | 0.00 | 1.00 | $80,000 | $0 |
Roll Value History
| 2026 | N/A | N/A | N/A | N/A | N/A |
| 2025 | $262,570 | $80,000 | $0 | $342,570 | $342,570 |
| 2024 | $187,550 | $80,000 | $0 | $267,550 | $267,550 |
| 2023 | $187,550 | $80,000 | $0 | $267,550 | $267,550 |
| 2022 | $209,240 | $50,000 | $0 | $259,240 | $259,240 |
| 2021 | $167,390 | $50,000 | $0 | $217,390 | $217,390 |
| 2020 | $107,990 | $50,000 | $0 | $157,990 | $157,990 |
| 2019 | $107,990 | $50,000 | $0 | $157,990 | $157,990 |
| 2018 | $102,850 | $50,000 | $0 | $152,850 | $152,850 |
| 2017 | $102,850 | $50,000 | $0 | $152,850 | $152,850 |
| 2016 | $102,850 | $40,000 | $0 | $142,850 | $142,850 |
| 2015 | $102,850 | $40,000 | $0 | $142,850 | $142,850 |
| 2014 | $93,500 | $40,000 | $0 | $133,500 | $133,500 |
| 2013 | $93,500 | $40,000 | $0 | $133,500 | $133,500 |
| 2012 | $97,600 | $40,000 | $0 | $0 | $0 |
| 2011 | $103,600 | $40,000 | $0 | $0 | $0 |
| 2010 | $103,600 | $40,000 | $0 | $0 | $0 |
| 2009 | $119,500 | $40,000 | $0 | $0 | $0 |
| 2008 | $87,600 | $40,000 | $0 | $0 | $0 |
| 2007 | $87,600 | $40,000 | $0 | $0 | $0 |
Deed and Sales History
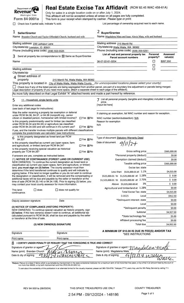
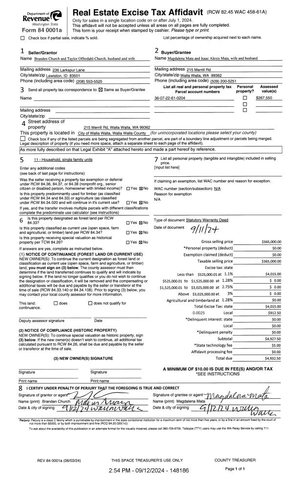
| 1 | 09/12/2024 | SWD | STATUTORY WARRANTY DEED | CHURCH BRANDEN & TAYLOR OFFERDAHL-CHURCH | MATA MAGDALENA & ISAAC ALEXIS | | | $365,000.00 | 148186 | 2024-05214 |
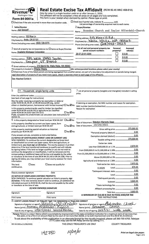
| 2 | 10/29/2021 | SWD | STATUTORY WARRANTY DEED | SOKOLOFF JOEL | CHURCH BRANDEN & TAYLOR OFFERDAHL-CHURCH | | | $270,000.00 | 142780 | 2021-13087 |
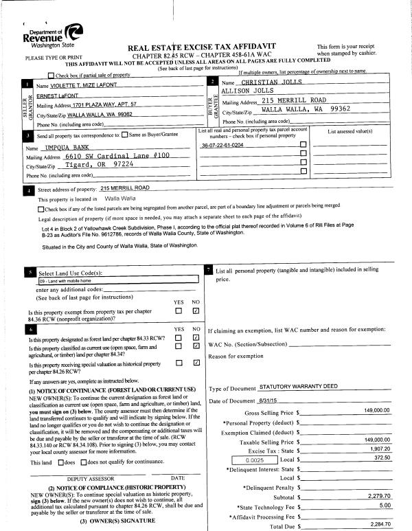
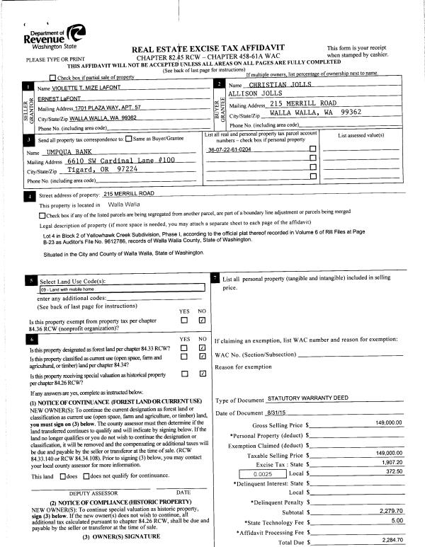
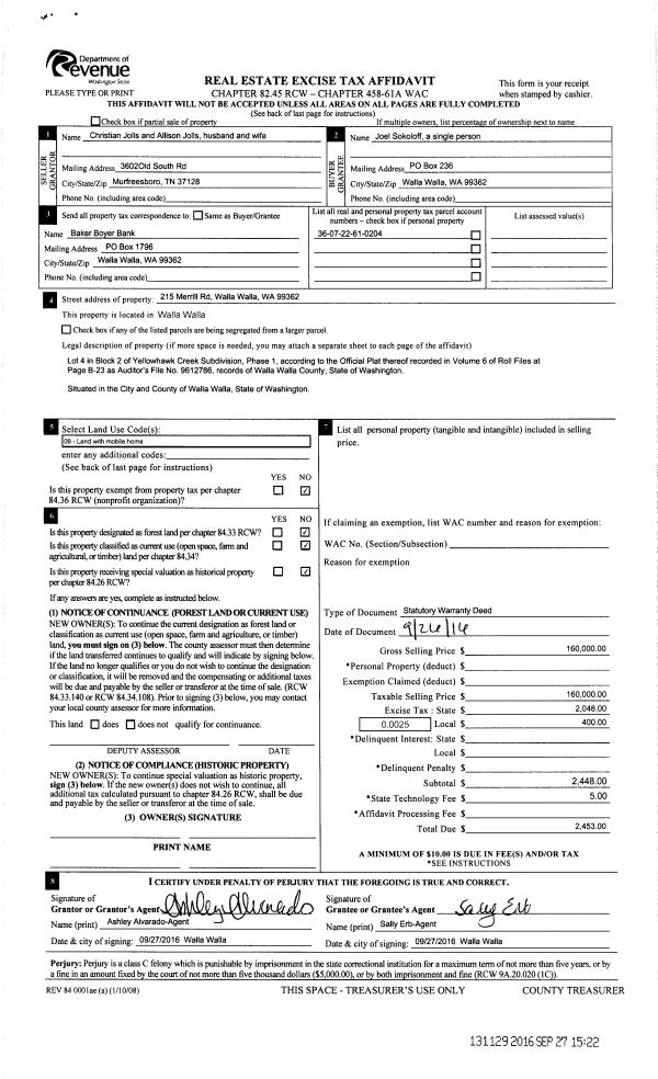
| 3 | 09/27/2016 | SWD | STATUTORY WARRANTY DEED | JOLLS CHRISTIAN & ALLISON | SOKOLOFF JOEL | | | $160,000.00 | 131129 | 2016-07935 |
| 4 | 09/17/2015 | SWD | STATUTORY WARRANTY DEED | MIZE VIOLETTE T | JOLLS CHRISTIAN & ALLISON | | | $149,000.00 | 128840 | 2015-08157 |
| 5 | 04/18/2003 | WARRANTY D | WARRANTY DEED | WATTS, TRACY CAROLINE | MIZE, VIOLETTE T | | | $119,900.00 | 101871 | 2003-05514 |
| 6 | 07/08/1998 | WARRANTY D | WARRANTY DEED | | | | | $20,000.00 | 90808 | 2699-807663 |
Payout Agreement
| No payout information available.. |