Property
Account |
| Property ID: | 2394 | Abbreviated Legal Description: | SEC 33 TWN 7 RNG 33 TAX 28 |
| Parcel Number: | 330733310023 | Agent Code: | |
| Type: | Real | | |
| Tax Area: | 318 - 300-6-TM | Land Use Code | 91 |
| Open Space: | N | DFL | N |
| Historic Property: | N | Remodel Property: | N |
| Multi-Family Redevelopment: | N | | |
| Township: | 7 | Section: | 33 |
| Range: | 33 |
Location |
| Address: | 270 BYRNES RD WA 99360 | Mapsco: | |
| Neighborhood: | A Touchet/Lowden SFR | Map ID: | |
| Neighborhood CD: | 213611 |
Owner |
| Name: | SALDANA SALVADOR | Owner ID: | 2599 |
| Mailing Address: | 270 BYRNES RD TOUCHET, WA 99360 | % Ownership: | 100.0000000000% |
| | | Exemptions: | |
Taxes and Assessment Details
Values
| (+) Improvement Homesite Value: | + | $0 | |
| (+) Improvement Non-Homesite Value: | + | $0 | |
| (+) Land Homesite Value: | + | $0 | |
| (+) Land Non-Homesite Value: | + | $79,790 | |
| (+) Curr Use (HS): | + | $0 | $0 |
| (+) Curr Use (NHS): | + | $0 | $0 |
| | | -------------------------- | |
| (=) Market Value: | = | $79,790 | |
| (–) Productivity Loss: | – | $0 | |
| | | -------------------------- | |
| (=) Subtotal: | = | $79,790 | |
| (+) Senior Appraised Value: | + | $0 | |
| (+) Non-Senior Appraised Value: | + | $79,790 | |
| | | -------------------------- | |
| (=) Total Appraised Value: | = | $79,790 | |
| (–) Senior Exemption Loss: | – | $0 | |
| (–) Exemption Loss: | – | $0 | |
| | | -------------------------- | |
| (=) Taxable Value: | = | $79,790 | |
Taxing Jurisdiction
| Owner: | SALDANA SALVADOR | | |
| % Ownership: | 100.0000000000% | | |
| Total Value: | $79,790 | | |
| Tax Area: | 318 - 300-6-TM |
| CERFD | CURRENT EXPENSE REFUND 010 | 0.0000000000 | $79,790 | $79,790 | $0.00 | | |
| CURREXP | CURRENT EXPENSE 010 | 1.0175366760 | $79,790 | $79,790 | $81.19 | | |
| HUMNSERV | HUMAN SERVICES 119 | 0.0250000000 | $79,790 | $79,790 | $1.99 | | |
| SLDREL | SOLDIERS RELIEF 121 | 0.0155990005 | $79,790 | $79,790 | $1.24 | | |
| EMERGSER | EMS 147 | 0.3792580840 | $79,790 | $79,790 | $30.26 | | |
| EMSRFD | EMS REFUND 147 | 0.0000000000 | $79,790 | $79,790 | $0.00 | | |
| FD6EXP | FD #6 EXPENSE 693 | 0.6692985746 | $79,790 | $79,790 | $53.40 | | |
| RLBRFD | RURAL LIBRARY REFUND 623 | 0.0000000000 | $79,790 | $79,790 | $0.00 | | |
| RURALLIB | RURAL LIBRARY 623 | 0.3710609029 | $79,790 | $79,790 | $29.61 | | |
| PORTRFD | PORT REFUND 640 | 0.0000000000 | $79,790 | $79,790 | $0.00 | | |
| PORTWWGEN | PORT OF WW 640 | 0.2460186015 | $79,790 | $79,790 | $19.63 | | |
| SD300BOND | SD #300 BOND 783 | 1.8964951620 | $79,790 | $79,790 | $151.32 | | |
| SD300GEN | SD #300 GENERAL 780 | 2.1198322866 | $79,790 | $79,790 | $169.14 | | |
| ST2 | STATE SCHOOL PART 2 600 | 0.8131451643 | $79,790 | $79,790 | $64.88 | | |
| STATESCHL | STATE SCHOOL 600 | 1.5158548041 | $79,790 | $79,790 | $120.95 | | |
| STREFUND | STATE REFUND LEVY 603 | 0.0000000000 | $79,790 | $79,790 | $0.00 | | |
| COROAD | COUNTY ROAD 115 | 1.6549953990 | $79,790 | $79,790 | $132.05 | | |
| CRPRD | COUNTY ROAD REFUND 115 | 0.0000000000 | $79,790 | $79,790 | $0.00 | | |
| | Total Tax Rate: | 10.7240946555 | | | | | |
| | | | | Taxes w/Current Exemptions: | $855.66 | | |
| | | | | Taxes w/o Exemptions: | $855.66 | | |
Improvement / Building
Sketch
| No sketches available for this property. |
Property Image
Land
| 1 | RES 1 | Converted: Residential | 6.6500 | 289674.00 | 0.00 | 0.00 | 1.00 | $79,790 | $0 |
Roll Value History
| 2026 | N/A | N/A | N/A | N/A | N/A |
| 2025 | $467,440 | $79,790 | $0 | $547,230 | $547,230 |
| 2024 | $0 | $79,790 | $0 | $79,790 | $79,790 |
| 2023 | $0 | $79,790 | $0 | $79,790 | $79,790 |
| 2022 | $0 | $79,960 | $0 | $79,960 | $79,960 |
| 2021 | $0 | $67,000 | $0 | $67,000 | $67,000 |
| 2020 | $0 | $2,010 | $0 | $2,010 | $2,010 |
| 2019 | $0 | $2,010 | $0 | $2,010 | $2,010 |
| 2018 | $0 | $2,010 | $0 | $2,010 | $2,010 |
| 2017 | $0 | $2,010 | $0 | $2,010 | $2,010 |
| 2016 | $0 | $670 | $0 | $670 | $670 |
| 2015 | $0 | $670 | $0 | $670 | $670 |
| 2014 | $0 | $670 | $0 | $670 | $670 |
| 2013 | $0 | $700 | $700 | $700 | $700 |
| 2012 | $0 | $700 | $0 | $0 | $0 |
| 2011 | $0 | $700 | $0 | $0 | $0 |
| 2010 | $0 | $700 | $0 | $0 | $0 |
| 2009 | $0 | $700 | $0 | $0 | $0 |
| 2008 | $0 | $700 | $0 | $0 | $0 |
| 2007 | $0 | $700 | $0 | $0 | $0 |
Deed and Sales History
| 1 | 11/03/2022 | SURVEY | SURVEY | | | 14 | 78 | | 0 | 2022-08906 |
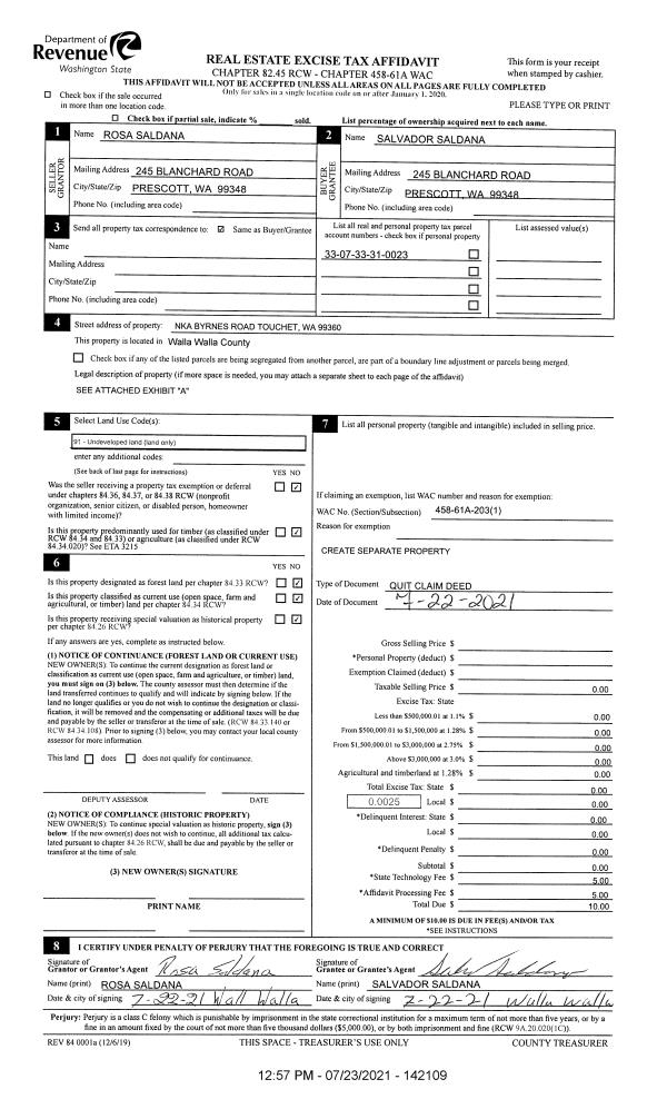
| 2 | 07/23/2021 | QCD | QUIT CLAIM DEED | SALDANA ROSA | SALDANA SALVADOR | | | | 142109 | 2021-09007 |
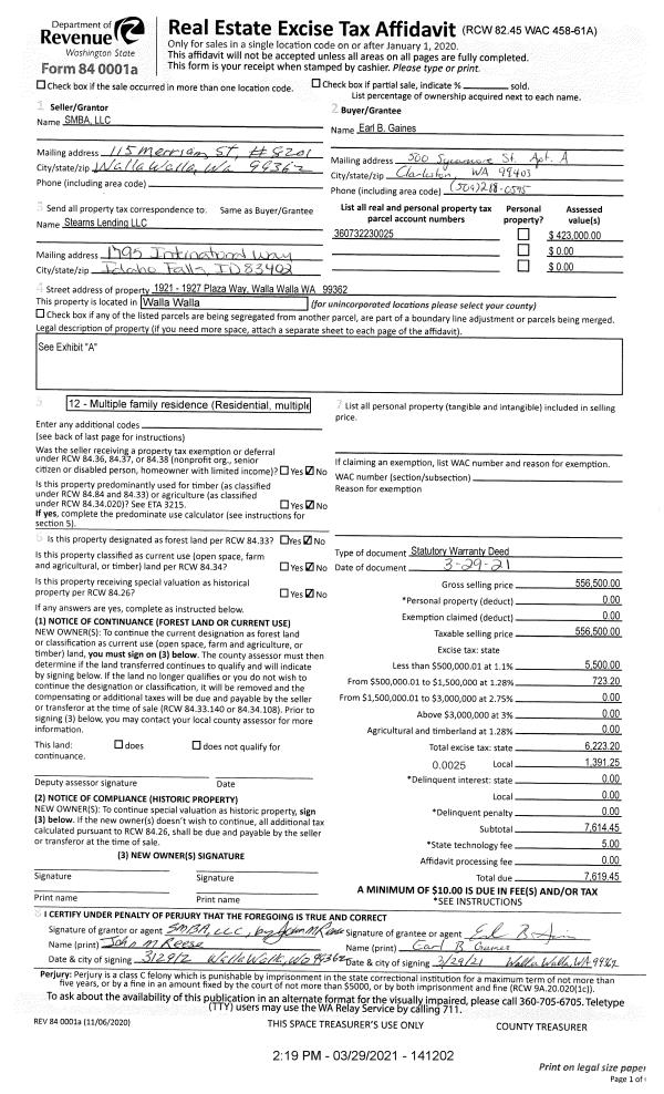
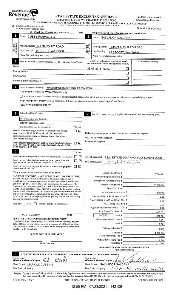
| 3 | 07/23/2021 | REAL ESTAT | REAL ESTATE CONTRACT | CUBBY FARMS LLC | SALDANA SALVADOR | | | $75,000.00 | 142108 | 2021-09006 |
| 4 | 11/24/2004 | WARRANTY D | WARRANTY DEED | "MC CUBBINS, GLENN M" | CUBBY FARMS LLC | | | | 106269 | 2004-13528 |
| 5 | 08/21/1978 | WARRANTY D | WARRANTY DEED | | | | | $2,500.00 | 0 | 8878-07375 |
Payout Agreement
| No payout information available.. |