Property
Account |
| Property ID: | 2382 | Abbreviated Legal Description: | SEC 30 TWN 7 RNG 33 W1/2, LESS HWY IN NW1/4 |
| Parcel Number: | 330730210002 | Agent Code: | |
| Type: | Real | | |
| Tax Area: | 318 - 300-6-TM | Land Use Code | 83 |
| Open Space: | Y | DFL | N |
| Historic Property: | N | Remodel Property: | N |
| Multi-Family Redevelopment: | N | | |
| Township: | 7 | Section: | 30 |
| Range: | 33 |
Location |
| Address: | WA 99360 | Mapsco: | |
| Neighborhood: | 0 Farm | Map ID: | |
| Neighborhood CD: | 2220 |
Owner |
| Name: | VFO WALLA WALLA LLC | Owner ID: | 63752 |
| Mailing Address: | 8930 SUVER RD MONMOUTH, OR 97361 | % Ownership: | 100.0000000000% |
| | | Exemptions: | |
Taxes and Assessment Details
Property Tax Information as of
02/21/2026
Click on "Statement Details" to expand or collapse a tax statement.
* Please enter a valid date ** Please enter a valid date *
Statement Details |
| | TOTAL: | $0.00 | $0.00 | $0.00 | $0.00 | $0.00 | $0.00 |
|
| | $0.00 | $0.00 | $0.00 | $0.00 | $0.00 | $0.00 |
Values
| (+) Improvement Homesite Value: | + | $0 | |
| (+) Improvement Non-Homesite Value: | + | $0 | |
| (+) Land Homesite Value: | + | $0 | |
| (+) Land Non-Homesite Value: | + | $0 | |
| (+) Curr Use (HS): | + | $0 | $0 |
| (+) Curr Use (NHS): | + | $2,424,130 | $533,580 |
| | | -------------------------- | |
| (=) Market Value: | = | $2,424,130 | |
| (–) Productivity Loss: | – | $1,890,540 | |
| | | -------------------------- | |
| (=) Subtotal: | = | $533,590 | |
| (+) Senior Appraised Value: | + | $0 | |
| (+) Non-Senior Appraised Value: | + | $533,580 | |
| | | -------------------------- | |
| (=) Total Appraised Value: | = | $533,580 | |
| (–) Senior Exemption Loss: | – | $0 | |
| (–) Exemption Loss: | – | $0 | |
| | | -------------------------- | |
| (=) Taxable Value: | = | $533,580 | |
Taxing Jurisdiction
| Owner: | VFO WALLA WALLA LLC | | |
| % Ownership: | 100.0000000000% | | |
| Total Value: | $2,424,130 | | |
| Tax Area: | 318 - 300-6-TM |
| CERFD | CURRENT EXPENSE REFUND 010 | 0.0000000000 | $533,580 | $533,580 | $0.00 | | |
| CURREXP | CURRENT EXPENSE 010 | 1.0175366760 | $533,580 | $533,580 | $542.94 | | |
| HUMNSERV | HUMAN SERVICES 119 | 0.0250000000 | $533,580 | $533,580 | $13.34 | | |
| SLDREL | SOLDIERS RELIEF 121 | 0.0155990005 | $533,580 | $533,580 | $8.32 | | |
| EMERGSER | EMS 147 | 0.3792580840 | $533,580 | $533,580 | $202.36 | | |
| EMSRFD | EMS REFUND 147 | 0.0000000000 | $533,580 | $533,580 | $0.00 | | |
| FD6EXP | FD #6 EXPENSE 693 | 0.6692985746 | $533,580 | $533,580 | $357.12 | | |
| RLBRFD | RURAL LIBRARY REFUND 623 | 0.0000000000 | $533,580 | $533,580 | $0.00 | | |
| RURALLIB | RURAL LIBRARY 623 | 0.3710609029 | $533,580 | $533,580 | $197.99 | | |
| PORTRFD | PORT REFUND 640 | 0.0000000000 | $533,580 | $533,580 | $0.00 | | |
| PORTWWGEN | PORT OF WW 640 | 0.2460186015 | $533,580 | $533,580 | $131.27 | | |
| SD300BOND | SD #300 BOND 783 | 1.8964951620 | $533,580 | $533,580 | $1,011.93 | | |
| SD300GEN | SD #300 GENERAL 780 | 2.1198322866 | $533,580 | $533,580 | $1,131.10 | | |
| ST2 | STATE SCHOOL PART 2 600 | 0.8131451643 | $533,580 | $533,580 | $433.88 | | |
| STATESCHL | STATE SCHOOL 600 | 1.5158548041 | $533,580 | $533,580 | $808.83 | | |
| STREFUND | STATE REFUND LEVY 603 | 0.0000000000 | $533,580 | $533,580 | $0.00 | | |
| COROAD | COUNTY ROAD 115 | 1.6549953990 | $533,580 | $533,580 | $883.07 | | |
| CRPRD | COUNTY ROAD REFUND 115 | 0.0000000000 | $533,580 | $533,580 | $0.00 | | |
| | Total Tax Rate: | 10.7240946555 | | | | | |
| | | | | Taxes w/Current Exemptions: | $5,722.15 | | |
| | | | | Taxes w/o Exemptions: | $5,722.15 | | |
Improvement / Building
Sketch
| No sketches available for this property. |
Property Image
Land
| 1 | WASTE | Waste | 5.0000 | 217800.00 | 0.00 | 0.00 | 1.00 | $0 | $0 |
| 2 | CC1-1 | Class 1 Circle Irrigation | 243.5000 | 0.00 | 0.00 | 0.00 | 1.00 | $2,386,300 | $527,910 |
| 3 | 50-C2 | Class 2 50 BU | 11.2500 | 490050.00 | 0.00 | 0.00 | 1.00 | $12,410 | $4,130 |
| 4 | DLP | Dry Land Pasture | 64.3500 | 2803086.00 | 0.00 | 0.00 | 1.00 | $25,420 | $1,540 |
Roll Value History
| 2024 | $0 | $2,473,130 | $536,460 | $536,460 | $536,460 |
| 2023 | $0 | $2,424,130 | $533,580 | $533,580 | $533,580 |
| 2022 | $0 | $2,225,160 | $513,150 | $513,150 | $513,150 |
| 2021 | $0 | $2,224,150 | $513,090 | $513,090 | $513,090 |
| 2020 | $0 | $1,976,680 | $501,800 | $501,800 | $501,800 |
| 2019 | $0 | $1,732,800 | $481,930 | $481,930 | $481,930 |
| 2018 | $0 | $1,182,200 | $430,260 | $430,260 | $430,260 |
| 2017 | $0 | $1,180,630 | $427,390 | $427,390 | $427,390 |
| 2016 | $0 | $815,380 | $427,390 | $427,390 | $427,390 |
| 2015 | $0 | $693,260 | $388,380 | $388,380 | $388,380 |
| 2014 | $0 | $693,260 | $388,380 | $388,380 | $388,380 |
| 2013 | $0 | $666,600 | $348,400 | $348,400 | $348,400 |
| 2012 | $0 | $336,300 | $0 | $0 | $0 |
| 2011 | $0 | $329,300 | $0 | $0 | $0 |
| 2010 | $0 | $318,800 | $0 | $0 | $0 |
| 2009 | $0 | $318,100 | $0 | $0 | $0 |
| 2008 | $0 | $302,900 | $0 | $0 | $0 |
| 2007 | $0 | $302,900 | $0 | $0 | $0 |
Deed and Sales History
| 1 | 02/17/2025 | SURVEY | SURVEY | | | 14 | 245 | | 0 | 2025-02052 |
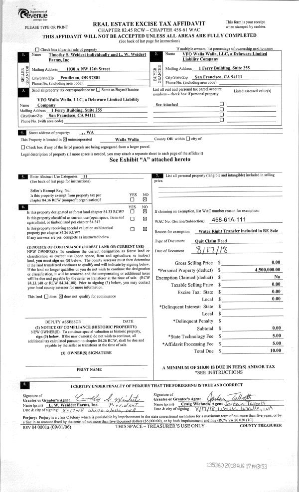
| 2 | 08/17/2018 | SWD | STATUTORY WARRANTY DEED | WEIDERT L W FARMS INC | VFO WALLA WALLA LLC | | 16-PARCELS | $14,880,000.00 | 135358 | 2018-06792 |
| 3 | 06/01/1966 | WARRANTY D | WARRANTY DEED | | | | | $190,000.00 | 0 | 3180-477507 |
Payout Agreement
| No payout information available.. |