Property
Account |
| Property ID: | 2366 | Abbreviated Legal Description: | SEC 27 TWN 7 RNG 33 TAX 20 (WITHIN SE1/4NW1/4) |
| Parcel Number: | 330727240020 | Agent Code: | |
| Type: | Real | | |
| Tax Area: | 318 - 300-6-TM | Land Use Code | 83 |
| Open Space: | Y | DFL | N |
| Historic Property: | N | Remodel Property: | N |
| Multi-Family Redevelopment: | N | | |
| Township: | 7 | Section: | 27 |
| Range: | 33 |
Location |
| Address: | 1666 CUMMINS RD WA 99360 | Mapsco: | |
| Neighborhood: | 0 Farm | Map ID: | |
| Neighborhood CD: | 2220 |
Owner |
| Name: | KRAFT GREGORY J & KAY L | Owner ID: | 55945 |
| Mailing Address: | 3205 128TH ST NE MARYSVILLE, WA 98271 | % Ownership: | 100.0000000000% |
| | | Exemptions: | |
Taxes and Assessment Details
Property Tax Information as of
02/21/2026
Click on "Statement Details" to expand or collapse a tax statement.
* Please enter a valid date ** Please enter a valid date *
Statement Details |
| | TOTAL: | $0.00 | $0.00 | $0.00 | $0.00 | $0.00 | $0.00 |
|
| | $0.00 | $0.00 | $0.00 | $0.00 | $0.00 | $0.00 |
Values
| (+) Improvement Homesite Value: | + | $0 | |
| (+) Improvement Non-Homesite Value: | + | $0 | |
| (+) Land Homesite Value: | + | $0 | |
| (+) Land Non-Homesite Value: | + | $0 | |
| (+) Curr Use (HS): | + | $0 | $0 |
| (+) Curr Use (NHS): | + | $85,310 | $18,300 |
| | | -------------------------- | |
| (=) Market Value: | = | $85,310 | |
| (–) Productivity Loss: | – | $67,010 | |
| | | -------------------------- | |
| (=) Subtotal: | = | $18,300 | |
| (+) Senior Appraised Value: | + | $0 | |
| (+) Non-Senior Appraised Value: | + | $18,300 | |
| | | -------------------------- | |
| (=) Total Appraised Value: | = | $18,300 | |
| (–) Senior Exemption Loss: | – | $0 | |
| (–) Exemption Loss: | – | $0 | |
| | | -------------------------- | |
| (=) Taxable Value: | = | $18,300 | |
Taxing Jurisdiction
| Owner: | KRAFT GREGORY J & KAY L | | |
| % Ownership: | 100.0000000000% | | |
| Total Value: | $85,310 | | |
| Tax Area: | 318 - 300-6-TM |
| CERFD | CURRENT EXPENSE REFUND 010 | 0.0000000000 | $18,300 | $18,300 | $0.00 | | |
| CURREXP | CURRENT EXPENSE 010 | 1.0175366760 | $18,300 | $18,300 | $18.62 | | |
| HUMNSERV | HUMAN SERVICES 119 | 0.0250000000 | $18,300 | $18,300 | $0.46 | | |
| SLDREL | SOLDIERS RELIEF 121 | 0.0155990005 | $18,300 | $18,300 | $0.29 | | |
| EMERGSER | EMS 147 | 0.3792580840 | $18,300 | $18,300 | $6.94 | | |
| EMSRFD | EMS REFUND 147 | 0.0000000000 | $18,300 | $18,300 | $0.00 | | |
| FD6EXP | FD #6 EXPENSE 693 | 0.6692985746 | $18,300 | $18,300 | $12.25 | | |
| RLBRFD | RURAL LIBRARY REFUND 623 | 0.0000000000 | $18,300 | $18,300 | $0.00 | | |
| RURALLIB | RURAL LIBRARY 623 | 0.3710609029 | $18,300 | $18,300 | $6.79 | | |
| PORTRFD | PORT REFUND 640 | 0.0000000000 | $18,300 | $18,300 | $0.00 | | |
| PORTWWGEN | PORT OF WW 640 | 0.2460186015 | $18,300 | $18,300 | $4.50 | | |
| SD300BOND | SD #300 BOND 783 | 1.8964951620 | $18,300 | $18,300 | $34.71 | | |
| SD300GEN | SD #300 GENERAL 780 | 2.1198322866 | $18,300 | $18,300 | $38.79 | | |
| ST2 | STATE SCHOOL PART 2 600 | 0.8131451643 | $18,300 | $18,300 | $14.88 | | |
| STATESCHL | STATE SCHOOL 600 | 1.5158548041 | $18,300 | $18,300 | $27.74 | | |
| STREFUND | STATE REFUND LEVY 603 | 0.0000000000 | $18,300 | $18,300 | $0.00 | | |
| COROAD | COUNTY ROAD 115 | 1.6549953990 | $18,300 | $18,300 | $30.29 | | |
| CRPRD | COUNTY ROAD REFUND 115 | 0.0000000000 | $18,300 | $18,300 | $0.00 | | |
| | Total Tax Rate: | 10.7240946555 | | | | | |
| | | | | Taxes w/Current Exemptions: | $196.26 | | |
| | | | | Taxes w/o Exemptions: | $196.26 | | |
Improvement / Building
Sketch
| No sketches available for this property. |
Property Image
Land
| 1 | C3-I | Class 3 Irrigated | 18.1500 | 0.00 | 0.00 | 0.00 | 1.00 | $85,310 | $18,300 |
Roll Value History
| 2026 | N/A | N/A | N/A | N/A | N/A |
| 2025 | $0 | $92,570 | $18,040 | $18,040 | $18,040 |
| 2024 | $0 | $88,940 | $18,390 | $18,390 | $18,390 |
| 2023 | $0 | $85,310 | $18,300 | $18,300 | $18,300 |
| 2022 | $0 | $78,050 | $17,640 | $17,640 | $17,640 |
| 2021 | $0 | $72,600 | $17,990 | $17,990 | $17,990 |
| 2020 | $0 | $58,080 | $18,370 | $18,370 | $18,370 |
| 2019 | $0 | $52,640 | $18,930 | $18,930 | $18,930 |
| 2018 | $0 | $50,820 | $19,290 | $19,290 | $19,290 |
| 2017 | $0 | $50,820 | $19,910 | $19,910 | $19,910 |
| 2016 | $0 | $50,820 | $19,980 | $19,980 | $19,980 |
| 2015 | $0 | $43,560 | $18,200 | $18,200 | $18,200 |
| 2014 | $0 | $43,560 | $18,200 | $18,200 | $18,200 |
| 2013 | $0 | $41,700 | $15,600 | $15,600 | $15,600 |
| 2012 | $0 | $12,400 | $0 | $0 | $0 |
| 2011 | $0 | $11,900 | $0 | $0 | $0 |
| 2010 | $0 | $12,300 | $0 | $0 | $0 |
| 2009 | $0 | $12,300 | $0 | $0 | $0 |
| 2008 | $0 | $15,500 | $0 | $0 | $0 |
| 2007 | $0 | $15,500 | $0 | $0 | $0 |
Deed and Sales History
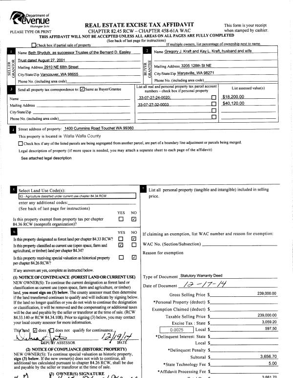
| 1 | 12/19/2014 | SWD | STATUTORY WARRANTY DEED | EASLEY BERNARD D TRUST | KRAFT GREGORY J & KAY L | | 2-PARCELS | $239,000.00 | 127140 | 2014-09246 |
|   | |
| 2 | 11/26/2014 | DPR | DEED OF PERSONAL REPRESENTATIVE | EASLEY BERNARD D ETUX TRUST | EASLEY BERNARD D TRUST | | | | 127138 | 2014-09244 |
| 3 | 07/02/1990 | WARRANTY D | WARRANTY DEED | | | | | $81,200.00 | 0 | 1839-004489 |
|   | |
Payout Agreement
| No payout information available.. |