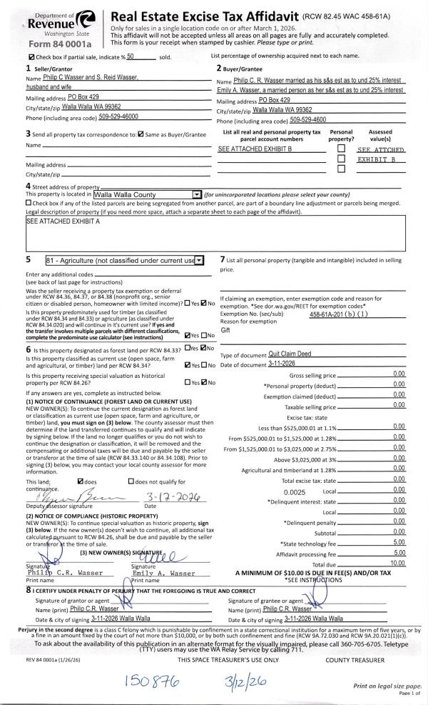
Property
Account |
| Property ID: | 23375 | Abbreviated Legal Description: | SEC 10 TWN 8 RNG 34 W1/2 LESS CO RD IN NW1/4 |
| Parcel Number: | 340810210002 | Agent Code: | |
| Type: | Real | | |
| Tax Area: | 123 - 140-7 | Land Use Code | 83 |
| Open Space: | Y | DFL | N |
| Historic Property: | N | Remodel Property: | N |
| Multi-Family Redevelopment: | N | | |
| Township: | 8 | Section: | 10 |
| Range: | 34 |
Location |
| Address: | WA 99362 | Mapsco: | |
| Neighborhood: | 0 Farm | Map ID: | |
| Neighborhood CD: | 2220 |
Owner |
| Name: | WI WALLA WALLA COUNTY WA LLC | Owner ID: | 54556 |
| Mailing Address: | C/O FARMERS NATIONAL COMPANY PO BOX 542016 FREEBURG, IL 68154 | % Ownership: | 100.0000000000% |
| | | Exemptions: | |
Taxes and Assessment Details
Values
| (+) Improvement Homesite Value: | + | N/A | |
| (+) Improvement Non-Homesite Value: | + | N/A | |
| (+) Land Homesite Value: | + | N/A | |
| (+) Land Non-Homesite Value: | + | N/A | Ag / Timber Use Value |
| (+) Curr Use (HS): | + | N/A | N/A |
| (+) Curr Use (NHS): | + | N/A | N/A |
| | | -------------------------- | |
| (=) Market Value: | = | N/A | |
| (–) Productivity Loss: | – | N/A | |
| | | -------------------------- | |
| (=) Subtotal: | = | N/A | |
| (+) Senior Appraised Value: | + | N/A | |
| (+) Non-Senior Appraised Value: | + | N/A | |
| | | -------------------------- | |
| (=) Total Appraised Value: | = | N/A | |
| (–) Senior Exemption Loss: | – | N/A | |
| (–) Exemption Loss: | – | N/A | |
| | | -------------------------- | |
| (=) Taxable Value: | = | N/A | |
Taxing Jurisdiction
| Owner: | WI WALLA WALLA COUNTY WA LLC | | |
| % Ownership: | 100.0000000000% | | |
| Total Value: | N/A | | |
| Tax Area: | 123 - 140-7 |
| CERFD | CURRENT EXPENSE REFUND 010 | N/A | N/A | N/A | N/A | | |
| CURREXP | CURRENT EXPENSE 010 | N/A | N/A | N/A | N/A | | |
| HUMNSERV | HUMAN SERVICES 119 | N/A | N/A | N/A | N/A | | |
| SLDREL | SOLDIERS RELIEF 121 | N/A | N/A | N/A | N/A | | |
| EMERGSER | EMS 147 | N/A | N/A | N/A | N/A | | |
| EMSRFD | EMS REFUND 147 | N/A | N/A | N/A | N/A | | |
| FD7EXP | FD #7 EXPENSE 695 | N/A | N/A | N/A | N/A | | |
| RLBRFD | RURAL LIBRARY REFUND 623 | N/A | N/A | N/A | N/A | | |
| RURALLIB | RURAL LIBRARY 623 | N/A | N/A | N/A | N/A | | |
| PORTRFD | PORT REFUND 640 | N/A | N/A | N/A | N/A | | |
| PORTWWGEN | PORT OF WW 640 | N/A | N/A | N/A | N/A | | |
| SD140BOND | SD #140 BOND 764 | N/A | N/A | N/A | N/A | | |
| SD140GEN | SD #140 GENERAL 760 | N/A | N/A | N/A | N/A | | |
| ST2 | STATE SCHOOL PART 2 600 | N/A | N/A | N/A | N/A | | |
| STATESCHL | STATE SCHOOL 600 | N/A | N/A | N/A | N/A | | |
| STREFUND | STATE REFUND LEVY 603 | N/A | N/A | N/A | N/A | | |
| COROAD | COUNTY ROAD 115 | N/A | N/A | N/A | N/A | | |
| CRPRD | COUNTY ROAD REFUND 115 | N/A | N/A | N/A | N/A | | |
| | Total Tax Rate: | N/A | | | | | |
| | | | | Taxes w/Current Exemptions: | N/A | | |
| | | | | Taxes w/o Exemptions: | N/A | | |
Improvement / Building
Sketch
| No sketches available for this property. |
Property Image
Land
| 1 | WASTE | Waste | 18.5000 | 0.00 | 0.00 | 0.00 | 1.00 | N/A | N/A |
| 2 | 45-C2 | Class 2 45 BU | 296.7000 | 0.00 | 0.00 | 0.00 | 1.00 | N/A | N/A |
Roll Value History
| 2026 | N/A | N/A | N/A | N/A | N/A |
| 2025 | $0 | $309,460 | $84,260 | $84,260 | $84,260 |
| 2024 | $0 | $296,400 | $91,090 | $91,090 | $91,090 |
| 2023 | $0 | $289,280 | $94,940 | $94,940 | $94,940 |
| 2022 | $0 | $257,240 | $91,380 | $91,380 | $91,380 |
| 2021 | $0 | $233,210 | $91,380 | $91,380 | $91,380 |
| 2020 | $0 | $215,700 | $93,760 | $93,760 | $93,760 |
| 2019 | $0 | $207,100 | $95,540 | $95,540 | $95,540 |
| 2018 | $0 | $205,910 | $109,480 | $109,480 | $109,480 |
| 2017 | $0 | $197,010 | $110,970 | $110,970 | $110,970 |
| 2016 | $0 | $197,010 | $111,260 | $111,260 | $111,260 |
| 2015 | $0 | $195,230 | $98,800 | $98,800 | $98,800 |
| 2014 | $0 | $195,230 | $99,100 | $99,100 | $99,100 |
| 2013 | $0 | $183,400 | $79,500 | $79,500 | $79,500 |
| 2012 | $0 | $52,200 | $0 | $0 | $0 |
| 2011 | $0 | $50,400 | $0 | $0 | $0 |
| 2010 | $0 | $46,600 | $0 | $0 | $0 |
| 2009 | $0 | $45,700 | $0 | $0 | $0 |
| 2008 | $0 | $40,100 | $0 | $0 | $0 |
| 2007 | $0 | $40,100 | $0 | $0 | $0 |
Deed and Sales History
| 1 | 01/30/2014 | WARRANTY D | WARRANTY DEED | WOODFIELD INVESTMENTS LLC | WI WALLA WALLA COUNTY WA LLC | | | $2,091,800.00 | 125310 | 2014-00705 |
|   | |
| 2 | 08/15/2008 | WARRANTY D | WARRANTY DEED | "WEBB, PAUL JR & KATHRYN T" | WOODFIELD INVESTMENTS LLC | | | | 115499 | 2008-08457 |
| 3 | 07/12/1976 | QCD | QUIT CLAIM DEED | | | | | $25,000.00 | 0 | 4405-55820 |
|   | |
Payout Agreement
| No payout information available.. |