Property
Account |
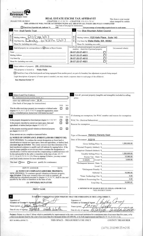
| Property ID: | 23366 | Abbreviated Legal Description: | CAINS TAX 5 BLK B |
| Parcel Number: | 360720574611 | Agent Code: | |
| Type: | Real | | |
| Tax Area: | 1 - OL-140-F | Land Use Code | 65 |
| Open Space: | N | DFL | N |
| Historic Property: | N | Remodel Property: | N |
| Multi-Family Redevelopment: | N | | |
| Township: | 7 | Section: | 20 |
| Range: | 36 |
Location |
| Address: | 8 E CHERRY ST WA 99362 | Mapsco: | |
| Neighborhood: | WW Downtown Core Area #2 | Map ID: | |
| Neighborhood CD: | 5342 |
Owner |
| Name: | BLUE MOUNTAIN ACTION COUNCIL | Owner ID: | 3783 |
| Mailing Address: | 8 E CHERRY ST WALLA WALLA, WA 99362 | % Ownership: | 100.0000000000% |
| | | Exemptions: | EX |
Taxes and Assessment Details
Values
| (+) Improvement Homesite Value: | + | $0 | |
| (+) Improvement Non-Homesite Value: | + | $1,645,300 | |
| (+) Land Homesite Value: | + | $0 | |
| (+) Land Non-Homesite Value: | + | $224,400 | |
| (+) Curr Use (HS): | + | $0 | $0 |
| (+) Curr Use (NHS): | + | $0 | $0 |
| | | -------------------------- | |
| (=) Market Value: | = | $1,869,700 | |
| (–) Productivity Loss: | – | $0 | |
| | | -------------------------- | |
| (=) Subtotal: | = | $1,869,700 | |
| (+) Senior Appraised Value: | + | $0 | |
| (+) Non-Senior Appraised Value: | + | $1,869,700 | |
| | | -------------------------- | |
| (=) Total Appraised Value: | = | $1,869,700 | |
| (–) Senior Exemption Loss: | – | $0 | |
| (–) Exemption Loss: | – | $1,869,700 | |
| | | -------------------------- | |
| (=) Taxable Value: | = | $0 | |
Taxing Jurisdiction
| Owner: | BLUE MOUNTAIN ACTION COUNCIL | | |
| % Ownership: | 100.0000000000% | | |
| Total Value: | $1,869,700 | | |
| Tax Area: | 1 - OL-140-F |
| CERFD | CURRENT EXPENSE REFUND 010 | 0.0000000000 | $1,869,700 | $0 | $0.00 | | |
| CURREXP | CURRENT EXPENSE 010 | 0.9851088983 | $1,869,700 | $0 | $0.00 | | |
| HUMNSERV | HUMAN SERVICES 119 | 0.0250000000 | $1,869,700 | $0 | $0.00 | | |
| SLDREL | SOLDIERS RELIEF 121 | 0.0155990000 | $1,869,700 | $0 | $0.00 | | |
| EMERGSER | EMS 147 | 0.3676811629 | $1,869,700 | $0 | $0.00 | | |
| EMSRFD | EMS REFUND 147 | 0.0000000000 | $1,869,700 | $0 | $0.00 | | |
| PORTRFD | PORT REFUND 640 | 0.0000000000 | $1,869,700 | $0 | $0.00 | | |
| PORTWWGEN | PORT OF WW 640 | 0.2344301070 | $1,869,700 | $0 | $0.00 | | |
| SD140BOND | SD #140 BOND 764 | 0.8032434458 | $1,869,700 | $0 | $0.00 | | |
| SD140CAP | SD #140 CAP 762 | 0.3840034221 | $1,869,700 | $0 | $0.00 | | |
| SD140GEN | SD #140 GENERAL 760 | 2.4999999996 | $1,869,700 | $0 | $0.00 | | |
| ST2 | STATE SCHOOL PART 2 600 | 0.8853714103 | $1,869,700 | $0 | $0.00 | | |
| STATESCHL | STATE SCHOOL 600 | 1.6424571473 | $1,869,700 | $0 | $0.00 | | |
| STREFUND | STATE REFUND LEVY 603 | 0.0000000000 | $1,869,700 | $0 | $0.00 | | |
| CWWBOND | C OF WW BOND 643 | 0.2642134255 | $1,869,700 | $0 | $0.00 | | |
| CWWGEN | CITY OF WW 631 | 1.6110494978 | $1,869,700 | $0 | $0.00 | | |
| CWWRFD | CITY OF WALLA WALLA REFUND 631 | 0.0000000000 | $1,869,700 | $0 | $0.00 | | |
| | Total Tax Rate: | 9.7181575166 | | | | | |
| | | | | Taxes w/Current Exemptions: | $0.00 | | |
| | | | | Taxes w/o Exemptions: | $18,170.03 | | |
Improvement / Building
| Improvement #1: | COMMERCIAL | State Code: | 65 | 10949.0 sqft | Value: | $1,645,300 |
| | Type | Description | Class CD | Sub Class CD | Year Built | Area |
| | MA | Main Area | D | * | 1946 | 10949.0 |
| | SI1 | SITE IMPROVEMENT | D | * | 1946 | 24.0 |
| | PRKSTLA | PARK STALL AVERAGE | D | * | 1946 | 8.0 |
Sketch
Property Image
Land
| 1 | COM 1 | Converted: Commercial | 0.4683 | 20400.00 | 0.00 | 0.00 | 1.00 | $224,400 | $0 |
Roll Value History
| 2026 | N/A | N/A | N/A | N/A | N/A |
| 2025 | $1,645,300 | $224,400 | $0 | $1,869,700 | $0 |
| 2024 | $1,627,500 | $224,400 | $0 | $1,851,900 | $0 |
| 2023 | $1,625,800 | $224,400 | $0 | $1,850,200 | $0 |
| 2022 | $1,625,800 | $224,400 | $0 | $1,850,200 | $0 |
| 2021 | $1,625,800 | $224,400 | $0 | $1,850,200 | $0 |
| 2020 | $1,089,300 | $224,400 | $0 | $1,313,700 | $0 |
| 2019 | $571,400 | $224,400 | $0 | $795,800 | $795,800 |
| 2018 | $571,400 | $224,400 | $0 | $795,800 | $795,800 |
| 2017 | $571,400 | $224,400 | $0 | $795,800 | $795,800 |
| 2016 | $571,400 | $224,400 | $0 | $795,800 | $795,800 |
| 2015 | $571,400 | $204,000 | $0 | $775,400 | $775,400 |
| 2014 | $568,900 | $204,000 | $0 | $772,900 | $772,900 |
| 2013 | $568,900 | $204,000 | $0 | $772,900 | $772,900 |
| 2012 | $630,100 | $142,800 | $0 | $0 | $0 |
| 2011 | $630,100 | $142,800 | $0 | $0 | $0 |
| 2010 | $630,100 | $142,800 | $0 | $0 | $0 |
| 2009 | $630,100 | $142,800 | $0 | $0 | $0 |
| 2008 | $630,100 | $142,800 | $0 | $0 | $0 |
| 2007 | $630,100 | $142,800 | $0 | $0 | $0 |
Deed and Sales History
| 1 | 05/25/2018 | SWD | STATUTORY WARRANTY DEED | THE KRULL FAMILY REVOCABLE TRUST | BLUE MOUNTAIN ACTION COUNCIL | | 4-PARCELS | $1,200,000.00 | 134791 | 2018-04144 |
|   | |
| 2 | 08/15/2008 | WARRANTY D | WARRANTY DEED | PEARCE-WOODFIELD DEV LLC | THE KRULL FAMILY REVOCABLE TRUST | | | $1,350,000.00 | 115500 | 2008-08466 |
|   | |
| 3 | 02/23/1999 | WARRANTY D | WARRANTY DEED | | | | | | 92228 | 2809-902276 |
Payout Agreement
| No payout information available.. |