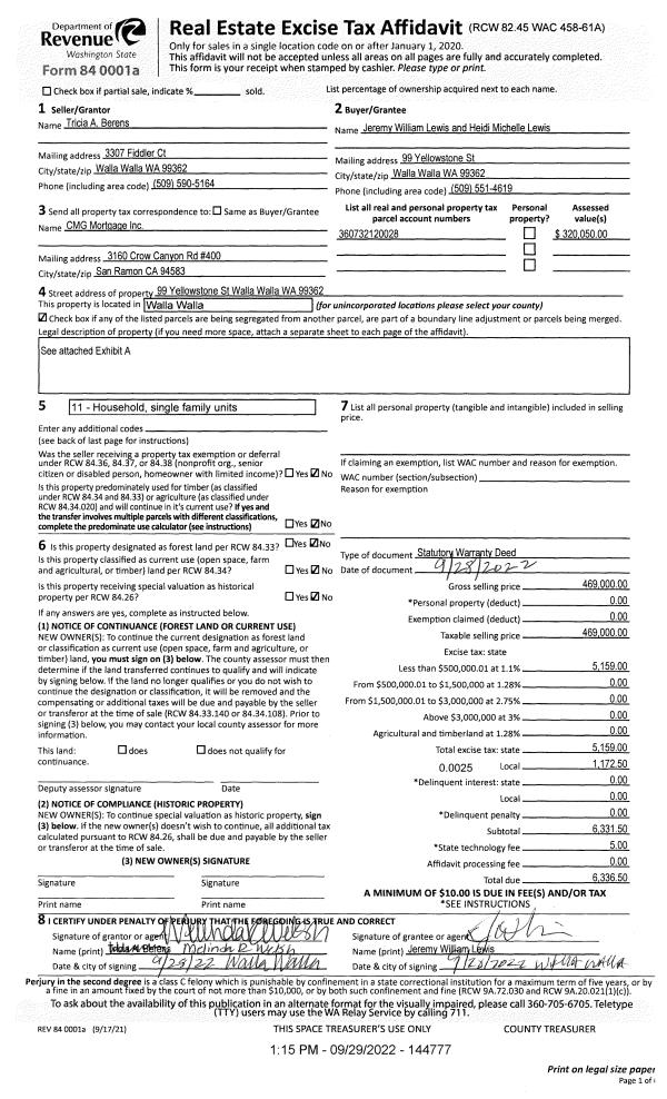
Property
Account |
| Property ID: | 23359 | Abbreviated Legal Description: | 32-7-36 WLY 105' + OR - OF TAX 27C IN THE NW1/4NE1/4 PLUS PTN OFN 6' STRIP IN LOT 1 BLOCK 6 OF MEADOW VIEW (TRACT A OF SURVEY) |
| Parcel Number: | 360732120028 | Agent Code: | |
| Type: | Real | | |
| Tax Area: | 1 - OL-140-F | Land Use Code | 11 |
| Open Space: | N | DFL | N |
| Historic Property: | N | Remodel Property: | N |
| Multi-Family Redevelopment: | N | | |
| Township: | 7 | Section: | 32 |
| Range: | 36 |
Location |
| Address: | 99 YELLOWSTONE ST WA 99362 | Mapsco: | |
| Neighborhood: | A Res | Map ID: | |
| Neighborhood CD: | 613011 |
Owner |
| Name: | LEWIS JEREMY WILLIAM & HEIDI MICHELLE | Owner ID: | 58737 |
| Mailing Address: | 99 YELLOWSTONE ST WALLA WALLA, WA 99362 | % Ownership: | 100.0000000000% |
| | | Exemptions: | |
Taxes and Assessment Details
Property Tax Information as of
02/21/2026
Click on "Statement Details" to expand or collapse a tax statement.
* Please enter a valid date ** Please enter a valid date *
Statement Details |
| | TOTAL: | $0.00 | $0.00 | $0.00 | $0.00 | $0.00 | $0.00 |
|
| | $0.00 | $0.00 | $0.00 | $0.00 | $0.00 | $0.00 |
Values
| (+) Improvement Homesite Value: | + | $0 | |
| (+) Improvement Non-Homesite Value: | + | $353,960 | |
| (+) Land Homesite Value: | + | $0 | |
| (+) Land Non-Homesite Value: | + | $92,450 | |
| (+) Curr Use (HS): | + | $0 | $0 |
| (+) Curr Use (NHS): | + | $0 | $0 |
| | | -------------------------- | |
| (=) Market Value: | = | $446,410 | |
| (–) Productivity Loss: | – | $0 | |
| | | -------------------------- | |
| (=) Subtotal: | = | $446,410 | |
| (+) Senior Appraised Value: | + | $0 | |
| (+) Non-Senior Appraised Value: | + | $446,410 | |
| | | -------------------------- | |
| (=) Total Appraised Value: | = | $446,410 | |
| (–) Senior Exemption Loss: | – | $0 | |
| (–) Exemption Loss: | – | $0 | |
| | | -------------------------- | |
| (=) Taxable Value: | = | $446,410 | |
Taxing Jurisdiction
| Owner: | LEWIS JEREMY WILLIAM & HEIDI MICHELLE | | |
| % Ownership: | 100.0000000000% | | |
| Total Value: | $446,410 | | |
| Tax Area: | 1 - OL-140-F |
| CERFD | CURRENT EXPENSE REFUND 010 | 0.0000000000 | $446,410 | $446,410 | $0.00 | | |
| CURREXP | CURRENT EXPENSE 010 | 1.0175366760 | $446,410 | $446,410 | $454.24 | | |
| HUMNSERV | HUMAN SERVICES 119 | 0.0250000000 | $446,410 | $446,410 | $11.16 | | |
| SLDREL | SOLDIERS RELIEF 121 | 0.0155990005 | $446,410 | $446,410 | $6.96 | | |
| EMERGSER | EMS 147 | 0.3792580840 | $446,410 | $446,410 | $169.30 | | |
| EMSRFD | EMS REFUND 147 | 0.0000000000 | $446,410 | $446,410 | $0.00 | | |
| PORTRFD | PORT REFUND 640 | 0.0000000000 | $446,410 | $446,410 | $0.00 | | |
| PORTWWGEN | PORT OF WW 640 | 0.2460186015 | $446,410 | $446,410 | $109.83 | | |
| SD140BOND | SD #140 BOND 764 | 0.8342371393 | $446,410 | $446,410 | $372.41 | | |
| SD140GEN | SD #140 GENERAL 760 | 2.0646500647 | $446,410 | $446,410 | $921.68 | | |
| ST2 | STATE SCHOOL PART 2 600 | 0.8131451643 | $446,410 | $446,410 | $363.00 | | |
| STATESCHL | STATE SCHOOL 600 | 1.5158548041 | $446,410 | $446,410 | $676.69 | | |
| STREFUND | STATE REFUND LEVY 603 | 0.0000000000 | $446,410 | $446,410 | $0.00 | | |
| CWWBOND | C OF WW BOND 643 | 0.2760494372 | $446,410 | $446,410 | $123.23 | | |
| CWWGEN | CITY OF WW 631 | 1.6100204973 | $446,410 | $446,410 | $718.73 | | |
| CWWRFD | CITY OF WALLA WALLA REFUND 631 | 0.0000000000 | $446,410 | $446,410 | $0.00 | | |
| | Total Tax Rate: | 8.7973694689 | | | | | |
| | | | | Taxes w/Current Exemptions: | $3,927.23 | | |
| | | | | Taxes w/o Exemptions: | $3,927.23 | | |
Improvement / Building
| Improvement #1: | RESIDENTIAL | State Code: | 11 | 1275.0 sqft | Value: | $353,960 |
| Exterior Wall: | VINYL | Heating/Cooling: | WARM & COOLED AIR | | Number of Bathrooms: | 2 | Number of Bedrooms: | 2 | | Plumbing: | 8 | Roof Covering: | COMP SHINGLE |
|
| | Type | Description | Class CD | Sub Class CD | Year Built | Area |
| | MA | Main Area | 1 | 30 | 1955 | 1275.0 |
| | SI1 | SITE IMPROVEMENT | 1 | 30 | 1955 | 2.0 |
| | BASE | BASEMENT | 1 | 30 | 1955 | 1080.0 |
| | BPF | BASEMENT -PARTITIONED FINISH | 1 | 30 | 1955 | 1080.0 |
| | S1F | Single One Story Fireplace | 1 | 30 | 1955 | 1.0 |
| | RPO | OPEN PORCH W/ROOF | 1 | 30 | 1955 | 70.0 |
| | GIF | GARAGE INTERIOR FINISH | 1 | 30 | 1955 | 306.0 |
| | ATG | Attached Garage | 1 | 30 | 1955 | 650.0 |
| | WDR | WOOD DECK W/ROOF | 1 | 30 | 2018 | 216.0 |
Sketch
Property Image
Land
| 1 | RES 1 | Converted: Residential | 0.3049 | 13283.00 | 0.00 | 0.00 | 1.00 | $92,450 | $0 |
Roll Value History
| 2026 | N/A | N/A | N/A | N/A | N/A |
| 2025 | $354,910 | $113,040 | $0 | $467,950 | $467,950 |
| 2024 | $353,960 | $92,450 | $0 | $446,410 | $446,410 |
| 2023 | $353,960 | $92,450 | $0 | $446,410 | $446,410 |
| 2022 | $294,970 | $74,250 | $0 | $369,220 | $369,220 |
| 2021 | $245,800 | $74,250 | $0 | $320,050 | $320,050 |
| 2020 | $189,080 | $74,250 | $0 | $263,330 | $263,330 |
| 2019 | $189,080 | $74,250 | $0 | $263,330 | $263,330 |
| 2018 | $189,310 | $49,900 | $0 | $239,210 | $239,210 |
| 2017 | $172,100 | $49,900 | $0 | $222,000 | $222,000 |
| 2016 | $156,450 | $49,900 | $0 | $206,350 | $206,350 |
| 2015 | $156,450 | $49,900 | $0 | $206,350 | $206,350 |
| 2014 | $149,000 | $49,900 | $0 | $198,900 | $198,900 |
| 2013 | $149,000 | $49,900 | $0 | $198,900 | $198,900 |
| 2012 | $166,100 | $49,900 | $0 | $0 | $0 |
| 2011 | $166,100 | $49,900 | $0 | $0 | $0 |
| 2010 | $155,800 | $49,900 | $0 | $0 | $0 |
| 2009 | $178,600 | $49,900 | $0 | $0 | $0 |
| 2008 | $178,600 | $49,900 | $0 | $0 | $0 |
| 2007 | $90,400 | $27,400 | $0 | $0 | $0 |
Deed and Sales History
| 1 | 09/29/2022 | SWD | STATUTORY WARRANTY DEED | BERENS TRICIA A | LEWIS JEREMY WILLIAM & HEIDI MICHELLE | | | $469,000.00 | 144777 | 2022-08089 |
| 2 | 04/24/2020 | QCD | QUIT CLAIM DEED | BERENS CHRISTOPHER A & TRICIA A | BERENS TRICIA A | | | $0.00 | 138972 | 2020-03508 |
| 3 | 03/10/2017 | SWD | STATUTORY WARRANTY DEED | ALLEN JEFFREY & KYLA | BERENS CHRISTOPHER A & TRICIA A | | | $243,000.00 | 132014 | 2017-01886 |
| 4 | 07/31/2008 | WARRANTY D | WARRANTY DEED | PERRY, DEDE L | ALLEN, JEFFREY & KYLA | | | $234,000.00 | 115416 | 2008-07926 |
| 5 | 12/26/2007 | QCD | QUIT CLAIM DEED | PERRY, STEVEN L | PERRY, DEDE L | | | | 114288 | 2007-04667 |
| 6 | 07/27/2006 | WARRANTY D | WARRANTY DEED | SIRMON, THAD CONSTRUCTION LLC | PERRY, STEVEN L & DEDE L | | | $229,000.00 | 110813 | 2006-08811 |
Payout Agreement
| No payout information available.. |