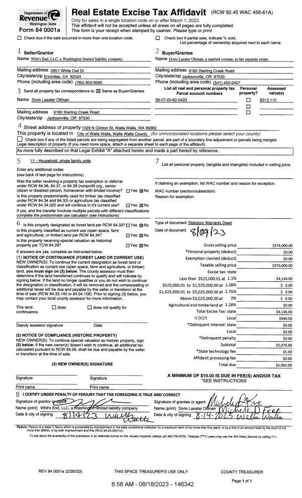
Property
Account |
| Property ID: | 23344 | Abbreviated Legal Description: | GREENS 1ST LOT 23 BLK 4 |
| Parcel Number: | 360720620423 | Agent Code: | |
| Type: | Real | | |
| Tax Area: | 1 - OL-140-F | Land Use Code | 11 |
| Open Space: | N | DFL | N |
| Historic Property: | N | Remodel Property: | N |
| Multi-Family Redevelopment: | N | | |
| Township: | 7 | Section: | 20 |
| Range: | 36 |
Location |
| Address: | 1029 N CLINTON ST WA 99362 | Mapsco: | |
| Neighborhood: | A-SFR | Map ID: | |
| Neighborhood CD: | 513011 |
Owner |
| Name: | OLTMAN DORIS LASATER | Owner ID: | 74099 |
| Mailing Address: | 9180 STERLING CREEK RD JACKSONVILLE, OR 97530 | % Ownership: | 100.0000000000% |
| | | Exemptions: | |
Taxes and Assessment Details
Property Tax Information as of
02/21/2026
Click on "Statement Details" to expand or collapse a tax statement.
* Please enter a valid date ** Please enter a valid date *
Statement Details |
| | TOTAL: | $0.00 | $0.00 | $0.00 | $0.00 | $0.00 | $0.00 |
|
| | $0.00 | $0.00 | $0.00 | $0.00 | $0.00 | $0.00 |
Values
| (+) Improvement Homesite Value: | + | $0 | |
| (+) Improvement Non-Homesite Value: | + | $275,610 | |
| (+) Land Homesite Value: | + | $0 | |
| (+) Land Non-Homesite Value: | + | $37,500 | |
| (+) Curr Use (HS): | + | $0 | $0 |
| (+) Curr Use (NHS): | + | $0 | $0 |
| | | -------------------------- | |
| (=) Market Value: | = | $313,110 | |
| (–) Productivity Loss: | – | $0 | |
| | | -------------------------- | |
| (=) Subtotal: | = | $313,110 | |
| (+) Senior Appraised Value: | + | $0 | |
| (+) Non-Senior Appraised Value: | + | $313,110 | |
| | | -------------------------- | |
| (=) Total Appraised Value: | = | $313,110 | |
| (–) Senior Exemption Loss: | – | $0 | |
| (–) Exemption Loss: | – | $0 | |
| | | -------------------------- | |
| (=) Taxable Value: | = | $313,110 | |
Taxing Jurisdiction
| Owner: | OLTMAN DORIS LASATER | | |
| % Ownership: | 100.0000000000% | | |
| Total Value: | $313,110 | | |
| Tax Area: | 1 - OL-140-F |
| CERFD | CURRENT EXPENSE REFUND 010 | 0.0000000000 | $313,110 | $313,110 | $0.00 | | |
| CURREXP | CURRENT EXPENSE 010 | 1.0175366760 | $313,110 | $313,110 | $318.60 | | |
| HUMNSERV | HUMAN SERVICES 119 | 0.0250000000 | $313,110 | $313,110 | $7.83 | | |
| SLDREL | SOLDIERS RELIEF 121 | 0.0155990005 | $313,110 | $313,110 | $4.88 | | |
| EMERGSER | EMS 147 | 0.3792580840 | $313,110 | $313,110 | $118.75 | | |
| EMSRFD | EMS REFUND 147 | 0.0000000000 | $313,110 | $313,110 | $0.00 | | |
| PORTRFD | PORT REFUND 640 | 0.0000000000 | $313,110 | $313,110 | $0.00 | | |
| PORTWWGEN | PORT OF WW 640 | 0.2460186015 | $313,110 | $313,110 | $77.03 | | |
| SD140BOND | SD #140 BOND 764 | 0.8342371393 | $313,110 | $313,110 | $261.21 | | |
| SD140GEN | SD #140 GENERAL 760 | 2.0646500647 | $313,110 | $313,110 | $646.46 | | |
| ST2 | STATE SCHOOL PART 2 600 | 0.8131451643 | $313,110 | $313,110 | $254.60 | | |
| STATESCHL | STATE SCHOOL 600 | 1.5158548041 | $313,110 | $313,110 | $474.63 | | |
| STREFUND | STATE REFUND LEVY 603 | 0.0000000000 | $313,110 | $313,110 | $0.00 | | |
| CWWBOND | C OF WW BOND 643 | 0.2760494372 | $313,110 | $313,110 | $86.43 | | |
| CWWGEN | CITY OF WW 631 | 1.6100204973 | $313,110 | $313,110 | $504.11 | | |
| CWWRFD | CITY OF WALLA WALLA REFUND 631 | 0.0000000000 | $313,110 | $313,110 | $0.00 | | |
| | Total Tax Rate: | 8.7973694689 | | | | | |
| | | | | Taxes w/Current Exemptions: | $2,754.53 | | |
| | | | | Taxes w/o Exemptions: | $2,754.53 | | |
Improvement / Building
| Improvement #1: | RESIDENTIAL | State Code: | 11 | 1016.0 sqft | Value: | $275,610 |
| Exterior Wall: | SIDING | Heating/Cooling: | WARM & COOLED AIR | | Number of Bathrooms: | 2 | Number of Bedrooms: | 2 | | Plumbing: | 9 | Roof Covering: | COMP SHINGLE |
|
| | Type | Description | Class CD | Sub Class CD | Year Built | Area |
| | MA | Main Area | 1 | 30 | 1938 | 1016.0 |
| | SI1 | SITE IMPROVEMENT | 1 | 30 | 1938 | 1.0 |
| | BASE | BASEMENT | 1 | 30 | 1938 | 884.0 |
| | BPF | BASEMENT -PARTITIONED FINISH | 1 | 30 | 1938 | 884.0 |
| | OSP | Open | 1 | 30 | 1938 | 95.0 |
| | SWP | Solid Wall Porch | 1 | 30 | 1938 | 202.0 |
| | S1F | Single One Story Fireplace | 1 | 30 | 1938 | 1.0 |
| | CPC | COVERED CARPORT/PATIO | 1 | 30 | 1938 | 196.0 |
| | DTG | Detached Garage | 1 | 30 | 1938 | 216.0 |
Sketch
Property Image
Land
| 1 | RES 1 | Converted: Residential | 0.1377 | 6000.00 | 0.00 | 0.00 | 1.00 | $37,500 | $0 |
Roll Value History
| 2026 | N/A | N/A | N/A | N/A | N/A |
| 2025 | $286,260 | $60,000 | $0 | $346,260 | $346,260 |
| 2024 | $286,260 | $60,000 | $0 | $346,260 | $346,260 |
| 2023 | $275,610 | $37,500 | $0 | $313,110 | $313,110 |
| 2022 | $275,610 | $37,500 | $0 | $313,110 | $313,110 |
| 2021 | $204,150 | $37,500 | $0 | $241,650 | $241,650 |
| 2020 | $157,040 | $37,500 | $0 | $194,540 | $194,540 |
| 2019 | $157,040 | $37,500 | $0 | $194,540 | $194,540 |
| 2018 | $120,800 | $37,500 | $0 | $158,300 | $158,300 |
| 2017 | $134,330 | $24,000 | $0 | $158,330 | $158,330 |
| 2016 | $122,120 | $24,000 | $0 | $146,120 | $146,120 |
| 2015 | $122,120 | $24,000 | $0 | $146,120 | $146,120 |
| 2014 | $116,300 | $24,000 | $0 | $140,300 | $140,300 |
| 2013 | $116,300 | $24,000 | $0 | $140,300 | $140,300 |
| 2012 | $116,300 | $24,000 | $0 | $0 | $0 |
| 2011 | $116,300 | $24,000 | $0 | $0 | $0 |
| 2010 | $116,300 | $24,000 | $0 | $0 | $0 |
| 2009 | $152,500 | $24,000 | $0 | $0 | $0 |
| 2008 | $117,200 | $24,000 | $0 | $0 | $0 |
| 2007 | $117,200 | $24,000 | $0 | $0 | $0 |
Deed and Sales History
| 1 | 08/18/2023 | QCD | QUIT CLAIM DEED | TODD WILLIAM HOWARD | OLTMAN DORIS LASATER | | | | 146343 | 2023-04783 |
| 2 | 08/18/2023 | SWD | STATUTORY WARRANTY DEED | WHIT'S END LLC | OLTMAN DORIS LASATER | | | $376,000.00 | 146342 | 2023-04782 |
| 3 | 02/01/2019 | SWD | STATUTORY WARRANTY DEED | BLOCH BENJAMIN I | WHIT'S END LLC | | | $198,500.00 | 136346 | 2019-00716 |
| 4 | 02/27/2009 | WARRANTY D | WARRANTY DEED | FEDERAL HOME LOAN MORTGAGE COR | BLOCH, BENJAMIN I | | | $143,500.00 | 116395 | 2009-01936 |
| 5 | 08/18/2008 | WARRANTY D | WARRANTY DEED | NORTHWEST TRUSTEE SERVICES INC | FEDERAL HOME LOAN MORTGAGE COR | | | $143,005.00 | 115503 | 2008-08523 |
| 6 | 10/18/2007 | WARRANTY D | WARRANTY DEED | O'NEIL, ANNE P | CIMINI, DONALD B | | | $179,900.00 | 113903 | 2007-12120 |
| 7 | 04/09/2001 | WARRANTY D | WARRANTY DEED | | | | | $111,500.00 | 96907 | 3110-103394 |
Payout Agreement
| No payout information available.. |