Property
Account |
| Property ID: | 23322 | Abbreviated Legal Description: | VINEYARD HILL ESTATE LOT 5 |
| Parcel Number: | 360727660005 | Agent Code: | |
| Type: | Real | | |
| Tax Area: | 101 - 140-4 | Land Use Code | 11 |
| Open Space: | N | DFL | N |
| Historic Property: | N | Remodel Property: | N |
| Multi-Family Redevelopment: | N | | |
| Township: | 7 | Section: | 27 |
| Range: | 36 |
Location |
| Address: | 130 VINEHILL DR WA 99362 | Mapsco: | |
| Neighborhood: | CYCLE 4 EXCELLENT (A) | Map ID: | |
| Neighborhood CD: | 416012 |
Owner |
| Name: | MADSEN THOMAS C & SANDRA K REVOCABLE LIVING TRUST | Owner ID: | 63501 |
| Mailing Address: | 130 VINEHILL DR WALLLA WALLA, WA 99362 | % Ownership: | 100.0000000000% |
| | | Exemptions: | |
Taxes and Assessment Details
Values
| (+) Improvement Homesite Value: | + | $0 | |
| (+) Improvement Non-Homesite Value: | + | $1,085,070 | |
| (+) Land Homesite Value: | + | $0 | |
| (+) Land Non-Homesite Value: | + | $202,770 | |
| (+) Curr Use (HS): | + | $0 | $0 |
| (+) Curr Use (NHS): | + | $0 | $0 |
| | | -------------------------- | |
| (=) Market Value: | = | $1,287,840 | |
| (–) Productivity Loss: | – | $0 | |
| | | -------------------------- | |
| (=) Subtotal: | = | $1,287,840 | |
| (+) Senior Appraised Value: | + | $0 | |
| (+) Non-Senior Appraised Value: | + | $1,287,840 | |
| | | -------------------------- | |
| (=) Total Appraised Value: | = | $1,287,840 | |
| (–) Senior Exemption Loss: | – | $0 | |
| (–) Exemption Loss: | – | $0 | |
| | | -------------------------- | |
| (=) Taxable Value: | = | $1,287,840 | |
Taxing Jurisdiction
| Owner: | MADSEN THOMAS C & SANDRA K REVOCABLE LIVING TRUST | | |
| % Ownership: | 100.0000000000% | | |
| Total Value: | $1,287,840 | | |
| Tax Area: | 101 - 140-4 |
| CERFD | CURRENT EXPENSE REFUND 010 | 0.0000000000 | $1,287,840 | $1,287,840 | $0.00 | | |
| CURREXP | CURRENT EXPENSE 010 | 1.0175366760 | $1,287,840 | $1,287,840 | $1,310.42 | | |
| HUMNSERV | HUMAN SERVICES 119 | 0.0250000000 | $1,287,840 | $1,287,840 | $32.20 | | |
| SLDREL | SOLDIERS RELIEF 121 | 0.0155990005 | $1,287,840 | $1,287,840 | $20.09 | | |
| EMERGSER | EMS 147 | 0.3792580840 | $1,287,840 | $1,287,840 | $488.42 | | |
| EMSRFD | EMS REFUND 147 | 0.0000000000 | $1,287,840 | $1,287,840 | $0.00 | | |
| FD4EXP | FD #4 EXPENSE 686 | 0.8836993059 | $1,287,840 | $1,287,840 | $1,138.06 | | |
| RLBRFD | RURAL LIBRARY REFUND 623 | 0.0000000000 | $1,287,840 | $1,287,840 | $0.00 | | |
| RURALLIB | RURAL LIBRARY 623 | 0.3710609029 | $1,287,840 | $1,287,840 | $477.87 | | |
| PORTRFD | PORT REFUND 640 | 0.0000000000 | $1,287,840 | $1,287,840 | $0.00 | | |
| PORTWWGEN | PORT OF WW 640 | 0.2460186015 | $1,287,840 | $1,287,840 | $316.83 | | |
| SD140BOND | SD #140 BOND 764 | 0.8342371393 | $1,287,840 | $1,287,840 | $1,074.36 | | |
| SD140GEN | SD #140 GENERAL 760 | 2.0646500647 | $1,287,840 | $1,287,840 | $2,658.94 | | |
| ST2 | STATE SCHOOL PART 2 600 | 0.8131451643 | $1,287,840 | $1,287,840 | $1,047.20 | | |
| STATESCHL | STATE SCHOOL 600 | 1.5158548041 | $1,287,840 | $1,287,840 | $1,952.18 | | |
| STREFUND | STATE REFUND LEVY 603 | 0.0000000000 | $1,287,840 | $1,287,840 | $0.00 | | |
| COROAD | COUNTY ROAD 115 | 1.6549953990 | $1,287,840 | $1,287,840 | $2,131.37 | | |
| CRPRD | COUNTY ROAD REFUND 115 | 0.0000000000 | $1,287,840 | $1,287,840 | $0.00 | | |
| | Total Tax Rate: | 9.8210551422 | | | | | |
| | | | | Taxes w/Current Exemptions: | $12,647.94 | | |
| | | | | Taxes w/o Exemptions: | $12,647.94 | | |
Improvement / Building
| Improvement #1: | RESIDENTIAL | State Code: | 11 | 4757.0 sqft | Value: | $1,085,070 |
| Exterior Wall: | STUCCO | Heating/Cooling: | WARM & COOLED AIR | | Number of Bathrooms: | 5.5 | Number of Bedrooms: | 4 | | Plumbing: | 23 | Roof Covering: | CONCRETE TILE |
|
| | Type | Description | Class CD | Sub Class CD | Year Built | Area |
| | MA | Main Area | 4 | 60 | 2012 | 4757.0 |
| | RCD | WOOD DECK W/ROOF, CEILED | 4 | 60 | 2012 | 596.0 |
| | RPC | OPEN PORCH W/ROOF , CEILED | 4 | 60 | 2012 | 55.0 |
| | RPC | OPEN PORCH W/ROOF , CEILED | 4 | 60 | 2012 | 362.0 |
| | SI1 | SITE IMPROVEMENT | 4 | 60 | 2012 | 6.5 |
| | BASE | BASEMENT | 4 | 60 | 2012 | 1431.0 |
| | BPF | BASEMENT -PARTITIONED FINISH | 4 | 60 | 2012 | 1431.0 |
| | BIG | Built In Garage | 4 | 60 | 2012 | 876.0 |
| | S2F | Single 2S Fireplace | 4 | 60 | 2012 | 1.0 |
| | UPFL | Upper Floor (included in main area) | 4 | 60 | 2012 | 1591.0 |
| | ATG | Attached Garage | 4 | 60 | 2012 | 1345.0 |
Sketch
Property Image
Land
| 1 | RES 1 | Converted: Residential | 1.2200 | 0.00 | 0.00 | 0.00 | 1.00 | $202,770 | $0 |
Roll Value History
| 2026 | N/A | N/A | N/A | N/A | N/A |
| 2025 | $1,247,830 | $202,770 | $0 | $1,450,600 | $1,450,600 |
| 2024 | $1,247,830 | $202,770 | $0 | $1,450,600 | $1,450,600 |
| 2023 | $1,085,070 | $202,770 | $0 | $1,287,840 | $1,287,840 |
| 2022 | $1,033,400 | $151,800 | $0 | $1,185,200 | $1,185,200 |
| 2021 | $861,170 | $151,800 | $0 | $1,012,970 | $1,012,970 |
| 2020 | $820,160 | $151,800 | $0 | $971,960 | $971,960 |
| 2019 | $820,160 | $151,800 | $0 | $971,960 | $971,960 |
| 2018 | $820,160 | $151,800 | $0 | $971,960 | $971,960 |
| 2017 | $820,160 | $151,800 | $0 | $971,960 | $971,960 |
| 2016 | $724,230 | $151,800 | $0 | $876,030 | $876,030 |
| 2015 | $724,230 | $151,800 | $0 | $876,030 | $876,030 |
| 2014 | $557,100 | $151,800 | $0 | $708,900 | $708,900 |
| 2013 | $557,100 | $151,800 | $0 | $708,900 | $708,900 |
| 2012 | $0 | $151,800 | $0 | $0 | $0 |
| 2011 | $0 | $151,800 | $0 | $0 | $0 |
| 2010 | $0 | $151,800 | $0 | $0 | $0 |
| 2009 | $0 | $151,800 | $0 | $0 | $0 |
| 2008 | $0 | $151,800 | $0 | $0 | $0 |
| 2007 | $0 | $99,300 | $0 | $0 | $0 |
Deed and Sales History
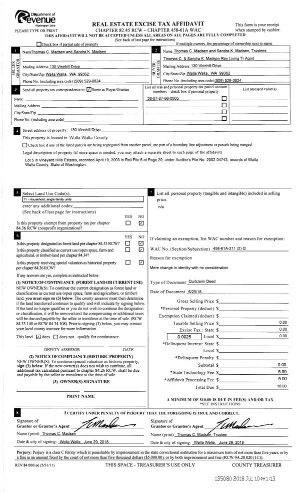
| 1 | 06/29/2018 | QCD | QUIT CLAIM DEED | MADSEN THOMAS C & SANDRA KAY | MADSEN THOMAS C & SANDRA K REVOCABLE LIVING TRUST | | | $0.00 | 135080 | 2018-05538 |
| 2 | 08/04/2008 | WARRANTY D | WARRANTY DEED | COLEMAN, DONALD & DEBBIE J | MADSEN, THOMAS C & SANDRA KAY | | | $300,000.00 | 115439 | 2008-08021 |
| 3 | 09/11/2002 | WARRANTY D | WARRANTY DEED | BELLA TERRA LLC | COLEMAN, DONALD & DEBBIE J | | | $90,000.00 | 100355 | 2002-10176 |
Payout Agreement
| No payout information available.. |