Property
Account |
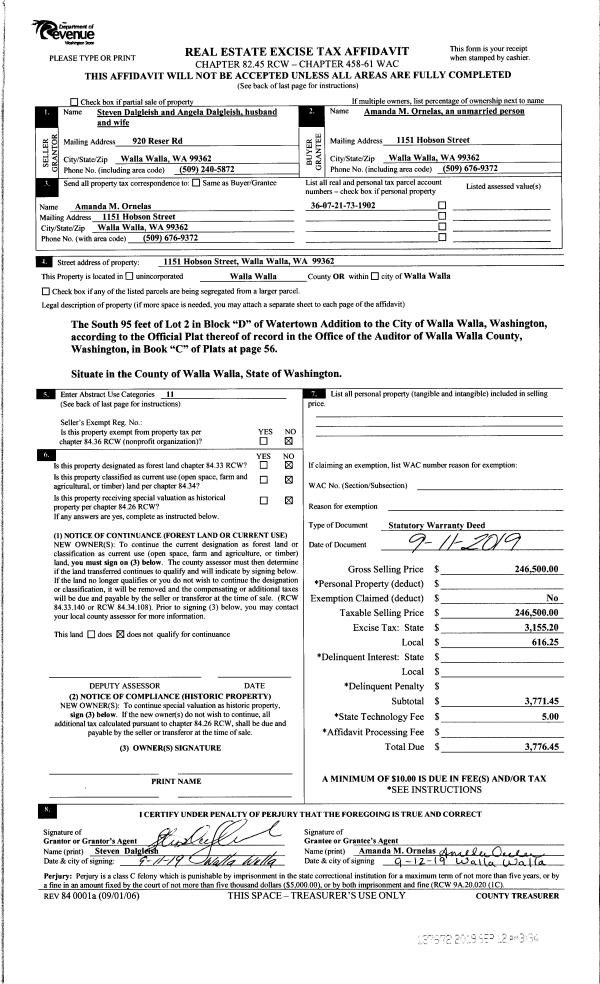
| Property ID: | 23270 | Abbreviated Legal Description: | WATERTOWN SLY 95' OF LOT 2 BLK 19 (D) |
| Parcel Number: | 360721731902 | Agent Code: | |
| Type: | Real | | |
| Tax Area: | 1 - OL-140-F | Land Use Code | 11 |
| Open Space: | N | DFL | N |
| Historic Property: | N | Remodel Property: | N |
| Multi-Family Redevelopment: | N | | |
| Township: | 7 | Section: | 21 |
| Range: | 36 |
Location |
| Address: | 1151 HOBSON ST WA 99362 | Mapsco: | |
| Neighborhood: | A-SFR | Map ID: | |
| Neighborhood CD: | 513011 |
Owner |
| Name: | ORNELAS AMANDA M | Owner ID: | 65890 |
| Mailing Address: | 1151 HOBSON ST WALLA WALLA, WA 99362 | % Ownership: | 100.0000000000% |
| | | Exemptions: | |
Taxes and Assessment Details
Property Tax Information as of
02/21/2026
Click on "Statement Details" to expand or collapse a tax statement.
* Please enter a valid date ** Please enter a valid date *
Statement Details |
| | TOTAL: | $0.00 | $0.00 | $0.00 | $0.00 | $0.00 | $0.00 |
|
| | $0.00 | $0.00 | $0.00 | $0.00 | $0.00 | $0.00 |
Values
| (+) Improvement Homesite Value: | + | $0 | |
| (+) Improvement Non-Homesite Value: | + | $267,200 | |
| (+) Land Homesite Value: | + | $0 | |
| (+) Land Non-Homesite Value: | + | $36,220 | |
| (+) Curr Use (HS): | + | $0 | $0 |
| (+) Curr Use (NHS): | + | $0 | $0 |
| | | -------------------------- | |
| (=) Market Value: | = | $303,420 | |
| (–) Productivity Loss: | – | $0 | |
| | | -------------------------- | |
| (=) Subtotal: | = | $303,420 | |
| (+) Senior Appraised Value: | + | $0 | |
| (+) Non-Senior Appraised Value: | + | $303,420 | |
| | | -------------------------- | |
| (=) Total Appraised Value: | = | $303,420 | |
| (–) Senior Exemption Loss: | – | $0 | |
| (–) Exemption Loss: | – | $0 | |
| | | -------------------------- | |
| (=) Taxable Value: | = | $303,420 | |
Taxing Jurisdiction
| Owner: | ORNELAS AMANDA M | | |
| % Ownership: | 100.0000000000% | | |
| Total Value: | $303,420 | | |
| Tax Area: | 1 - OL-140-F |
| CERFD | CURRENT EXPENSE REFUND 010 | 0.0000000000 | $303,420 | $303,420 | $0.00 | | |
| CURREXP | CURRENT EXPENSE 010 | 1.0175366760 | $303,420 | $303,420 | $308.74 | | |
| HUMNSERV | HUMAN SERVICES 119 | 0.0250000000 | $303,420 | $303,420 | $7.59 | | |
| SLDREL | SOLDIERS RELIEF 121 | 0.0155990005 | $303,420 | $303,420 | $4.73 | | |
| EMERGSER | EMS 147 | 0.3792580840 | $303,420 | $303,420 | $115.07 | | |
| EMSRFD | EMS REFUND 147 | 0.0000000000 | $303,420 | $303,420 | $0.00 | | |
| PORTRFD | PORT REFUND 640 | 0.0000000000 | $303,420 | $303,420 | $0.00 | | |
| PORTWWGEN | PORT OF WW 640 | 0.2460186015 | $303,420 | $303,420 | $74.65 | | |
| SD140BOND | SD #140 BOND 764 | 0.8342371393 | $303,420 | $303,420 | $253.12 | | |
| SD140GEN | SD #140 GENERAL 760 | 2.0646500647 | $303,420 | $303,420 | $626.46 | | |
| ST2 | STATE SCHOOL PART 2 600 | 0.8131451643 | $303,420 | $303,420 | $246.72 | | |
| STATESCHL | STATE SCHOOL 600 | 1.5158548041 | $303,420 | $303,420 | $459.94 | | |
| STREFUND | STATE REFUND LEVY 603 | 0.0000000000 | $303,420 | $303,420 | $0.00 | | |
| CWWBOND | C OF WW BOND 643 | 0.2760494372 | $303,420 | $303,420 | $83.76 | | |
| CWWGEN | CITY OF WW 631 | 1.6100204973 | $303,420 | $303,420 | $488.51 | | |
| CWWRFD | CITY OF WALLA WALLA REFUND 631 | 0.0000000000 | $303,420 | $303,420 | $0.00 | | |
| | Total Tax Rate: | 8.7973694689 | | | | | |
| | | | | Taxes w/Current Exemptions: | $2,669.29 | | |
| | | | | Taxes w/o Exemptions: | $2,669.29 | | |
Improvement / Building
| Improvement #1: | RESIDENTIAL | State Code: | 11 | 1079.0 sqft | Value: | $267,200 |
| Exterior Wall: | SIDING | Heating/Cooling: | HEAT PUMP | | Number of Bathrooms: | 2 | Number of Bedrooms: | 3 | | Plumbing: | 12 | Roof Covering: | COMP SHINGLE |
|
| | Type | Description | Class CD | Sub Class CD | Year Built | Area |
| | MA | Main Area | 1 | 35 | 1957 | 1079.0 |
| | SI1 | SITE IMPROVEMENT | 1 | 35 | 1957 | 2.0 |
| | BASE | BASEMENT | 1 | 35 | 1957 | 1079.0 |
| | BPF | BASEMENT -PARTITIONED FINISH | 1 | 35 | 1957 | 1079.0 |
| | ATG | Attached Garage | 1 | 35 | 1957 | 330.0 |
| | RPS | PORCH W/STEPS,ROOF | 1 | 35 | 1957 | 25.0 |
| | RPO | OPEN PORCH W/ROOF | 1 | 35 | 1957 | 64.0 |
| | S1F | Single One Story Fireplace | 1 | 35 | 1957 | 1.0 |
| | WOD | Wood Deck | 1 | 35 | 2011 | 243.0 |
Sketch
Property Image
Land
| 1 | RES 1 | Converted: Residential | 0.1330 | 5795.00 | 0.00 | 0.00 | 1.00 | $36,220 | $0 |
Roll Value History
| 2026 | N/A | N/A | N/A | N/A | N/A |
| 2025 | $289,560 | $57,950 | $0 | $347,510 | $347,510 |
| 2024 | $241,300 | $57,950 | $0 | $299,250 | $299,250 |
| 2023 | $267,200 | $36,220 | $0 | $303,420 | $303,420 |
| 2022 | $254,480 | $36,220 | $0 | $290,700 | $290,700 |
| 2021 | $212,060 | $36,220 | $0 | $248,280 | $248,280 |
| 2020 | $169,650 | $36,220 | $0 | $205,870 | $205,870 |
| 2019 | $169,650 | $36,220 | $0 | $205,870 | $205,870 |
| 2018 | $169,650 | $36,220 | $0 | $205,870 | $205,870 |
| 2017 | $128,310 | $23,200 | $0 | $151,510 | $151,510 |
| 2016 | $122,200 | $23,200 | $0 | $145,400 | $145,400 |
| 2015 | $122,200 | $23,200 | $0 | $145,400 | $145,400 |
| 2014 | $122,200 | $23,200 | $0 | $145,400 | $145,400 |
| 2013 | $122,200 | $23,200 | $0 | $145,400 | $145,400 |
| 2012 | $116,900 | $23,200 | $0 | $0 | $0 |
| 2011 | $114,100 | $23,200 | $0 | $0 | $0 |
| 2010 | $107,600 | $23,200 | $0 | $0 | $0 |
| 2009 | $122,100 | $23,200 | $0 | $0 | $0 |
| 2008 | $122,100 | $23,200 | $0 | $0 | $0 |
| 2007 | $122,100 | $23,200 | $0 | $0 | $0 |
Deed and Sales History
| 1 | 09/12/2019 | SWD | STATUTORY WARRANTY DEED | DALGLEISH STEVEN & ANGELA | ORNELAS AMANDA M | | | $246,500.00 | 137672 | 2019-07102 |
| 2 | 07/08/2008 | WARRANTY D | WARRANTY DEED | HANSON, MARY L ESTATE OF | DALGLEISH, STEVEN & ANGELA | | | $165,000.00 | 115298 | 2008-06990 |
| 3 | 06/05/1970 | QCD | QUIT CLAIM DEED | | | | | $17,500.00 | 0 | 1498-502653 |
Payout Agreement
| No payout information available.. |