| 1 | 06/11/2019 | SWD | STATUTORY WARRANTY DEED | COLEMAN JOHN RICHARD & GERALDINE ANN | FRANTUM MICHAEL & DEANNA | | | $369,000.00 | 137048 | 2019-04044 |
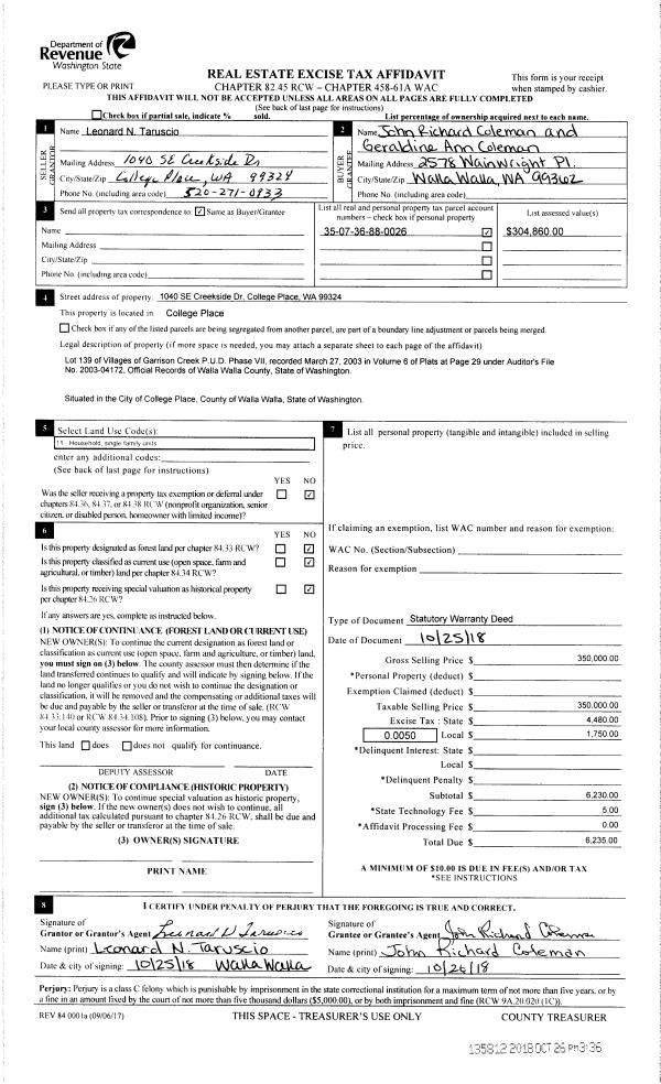
| 2 | 10/26/2018 | SWD | STATUTORY WARRANTY DEED | TARUSCIO LEONARD N | COLEMAN JOHN RICHARD & GERALDINE ANN | | | $350,000.00 | 135812 | 2018-08886 |
| 3 | 04/29/2015 | SWD | STATUTORY WARRANTY DEED | CORRIEA SUSAN J LIVING TRUST | TARUSCIO LEONARD N | | | $284,500.00 | 127868 | 2015-03574 |
| 4 | 04/29/2015 | BARGAIN & | BARGAIN & SALE DEED | | CORRIEA SUSAN J LIVING TRUST | | | | 127867 | 2015-03573 |
| 5 | 03/04/2015 | COURT CASE | COURT CASE | CORRIEA SUSAN J | CORRIEA SUSAN J LIVING TRUST | | | $0.00 | 127662 | CC- 87520 |
| 6 | 11/14/2007 | QCD | QUIT CLAIM DEED | CORRIEA, SUSAN J TRUSTEE OF TH | CORRIEA, SUSAN J | | | | 114085 | 2007-13148 |
| 7 | 11/10/2005 | QCD | QUIT CLAIM DEED | CORRIEA, SUSAN J | CORRIEA, SUSAN J TRUSTEE OF TH | | | | 109000 | 2005-14222 |
| 8 | 08/24/2004 | WARRANTY D | WARRANTY DEED | PHASE FIVE DEVELOPMENT LLC | CORRIEA, SUSAN J | | | $269,900.00 | 105561 | 2004-09766 |