Property
Account |
| Property ID: | 23242 | Abbreviated Legal Description: | AMENDED CALABRIA PLACE SUBDIVISION LOT 38 |
| Parcel Number: | 350726770038 | Agent Code: | |
| Type: | Real | | |
| Tax Area: | 74 - CP-250-FB | Land Use Code | 11 |
| Open Space: | N | DFL | N |
| Historic Property: | N | Remodel Property: | N |
| Multi-Family Redevelopment: | N | | |
| Township: | 7 | Section: | 26 |
| Range: | 35 |
Location |
| Address: | 151 BLALOCK DR WA 99324 | Mapsco: | |
| Neighborhood: | A-SFR | Map ID: | |
| Neighborhood CD: | 313011 |
Owner |
| Name: | JAQUE JENNY LIVING TRUST | Owner ID: | 56076 |
| Mailing Address: | 18480 KRAMERIA AVE RIVERSIDE, CA 92508 | % Ownership: | 100.0000000000% |
| | | Exemptions: | |
Taxes and Assessment Details
Property Tax Information as of
02/21/2026
Click on "Statement Details" to expand or collapse a tax statement.
* Please enter a valid date ** Please enter a valid date *
Statement Details |
| | TOTAL: | $0.00 | $0.00 | $0.00 | $0.00 | $0.00 | $0.00 |
|
| | $0.00 | $0.00 | $0.00 | $0.00 | $0.00 | $0.00 |
Values
| (+) Improvement Homesite Value: | + | $0 | |
| (+) Improvement Non-Homesite Value: | + | $314,530 | |
| (+) Land Homesite Value: | + | $0 | |
| (+) Land Non-Homesite Value: | + | $90,000 | |
| (+) Curr Use (HS): | + | $0 | $0 |
| (+) Curr Use (NHS): | + | $0 | $0 |
| | | -------------------------- | |
| (=) Market Value: | = | $404,530 | |
| (–) Productivity Loss: | – | $0 | |
| | | -------------------------- | |
| (=) Subtotal: | = | $404,530 | |
| (+) Senior Appraised Value: | + | $0 | |
| (+) Non-Senior Appraised Value: | + | $404,530 | |
| | | -------------------------- | |
| (=) Total Appraised Value: | = | $404,530 | |
| (–) Senior Exemption Loss: | – | $0 | |
| (–) Exemption Loss: | – | $0 | |
| | | -------------------------- | |
| (=) Taxable Value: | = | $404,530 | |
Taxing Jurisdiction
| Owner: | JAQUE JENNY LIVING TRUST | | |
| % Ownership: | 100.0000000000% | | |
| Total Value: | $404,530 | | |
| Tax Area: | 74 - CP-250-FB |
| CERFD | CURRENT EXPENSE REFUND 010 | 0.0000000000 | $404,530 | $404,530 | $0.00 | | |
| CURREXP | CURRENT EXPENSE 010 | 1.0175366760 | $404,530 | $404,530 | $411.62 | | |
| HUMNSERV | HUMAN SERVICES 119 | 0.0250000000 | $404,530 | $404,530 | $10.11 | | |
| SLDREL | SOLDIERS RELIEF 121 | 0.0155990005 | $404,530 | $404,530 | $6.31 | | |
| COLLPLBOND | C OF CP BOND 644 | 0.4374241808 | $404,530 | $404,530 | $176.95 | | |
| COLLPLGEN | CITY OF CP 632 | 1.4453819216 | $404,530 | $404,530 | $584.70 | | |
| EMERGSER | EMS 147 | 0.3792580840 | $404,530 | $404,530 | $153.42 | | |
| EMSRFD | EMS REFUND 147 | 0.0000000000 | $404,530 | $404,530 | $0.00 | | |
| RURALLIB | RURAL LIBRARY 623 | 0.3710609029 | $404,530 | $404,530 | $150.11 | | |
| PORTRFD | PORT REFUND 640 | 0.0000000000 | $404,530 | $404,530 | $0.00 | | |
| PORTWWGEN | PORT OF WW 640 | 0.2460186015 | $404,530 | $404,530 | $99.52 | | |
| SD250BOND | SD #250 BOND 773 | 1.4560608159 | $404,530 | $404,530 | $589.02 | | |
| SD250GEN | SD #250 GENERAL 770 | 2.3880724087 | $404,530 | $404,530 | $966.05 | | |
| ST2 | STATE SCHOOL PART 2 600 | 0.8131451643 | $404,530 | $404,530 | $328.94 | | |
| STATESCHL | STATE SCHOOL 600 | 1.5158548041 | $404,530 | $404,530 | $613.21 | | |
| STREFUND | STATE REFUND LEVY 603 | 0.0000000000 | $404,530 | $404,530 | $0.00 | | |
| | Total Tax Rate: | 10.1104125603 | | | | | |
| | | | | Taxes w/Current Exemptions: | $4,089.96 | | |
| | | | | Taxes w/o Exemptions: | $4,089.96 | | |
Improvement / Building
| Improvement #1: | RESIDENTIAL | State Code: | 11 | 1543.0 sqft | Value: | $314,530 |
| Exterior Wall: | HARDBOARD | Heating/Cooling: | WARM & COOLED AIR | | Number of Bathrooms: | 2 | Number of Bedrooms: | 3 | | Plumbing: | 11 | Roof Covering: | COMP SHINGLE |
|
| | Type | Description | Class CD | Sub Class CD | Year Built | Area |
| | MA | Main Area | 1 | 35 | 2014 | 1543.0 |
| | ATG | Attached Garage | 1 | 35 | 2014 | 444.0 |
| | RPC | OPEN PORCH W/ROOF , CEILED | 1 | 35 | 2014 | 58.0 |
| | GFP | GAS FIREPLACE | 1 | 35 | 2014 | 1.0 |
| | SI1 | SITE IMPROVEMENT | 1 | 35 | 2014 | 2.0 |
Sketch
Property Image
Land
| 1 | RES 1 | Converted: Residential | 0.1568 | 6831.00 | 0.00 | 0.00 | 1.00 | $90,000 | $0 |
Roll Value History
| 2026 | N/A | N/A | N/A | N/A | N/A |
| 2025 | $345,990 | $90,000 | $0 | $435,990 | $435,990 |
| 2024 | $345,990 | $90,000 | $0 | $435,990 | $435,990 |
| 2023 | $314,530 | $90,000 | $0 | $404,530 | $404,530 |
| 2022 | $285,940 | $90,000 | $0 | $375,940 | $375,940 |
| 2021 | $263,690 | $40,000 | $0 | $303,690 | $303,690 |
| 2020 | $251,130 | $40,000 | $0 | $291,130 | $291,130 |
| 2019 | $251,130 | $40,000 | $0 | $291,130 | $291,130 |
| 2018 | $193,180 | $40,000 | $0 | $233,180 | $233,180 |
| 2017 | $193,180 | $40,000 | $0 | $233,180 | $233,180 |
| 2016 | $160,980 | $40,000 | $0 | $200,980 | $200,980 |
| 2015 | $160,200 | $40,000 | $0 | $200,200 | $200,200 |
| 2014 | $160,200 | $40,000 | $0 | $200,200 | $200,200 |
| 2013 | $0 | $40,000 | $0 | $40,000 | $40,000 |
| 2012 | $0 | $54,000 | $0 | $0 | $0 |
| 2011 | $0 | $55,000 | $0 | $0 | $0 |
| 2010 | $0 | $55,000 | $0 | $0 | $0 |
| 2009 | $0 | $60,000 | $0 | $0 | $0 |
| 2008 | $0 | $1,600 | $0 | $0 | $0 |
| 2007 | $0 | $40,000 | $0 | $0 | $0 |
Deed and Sales History
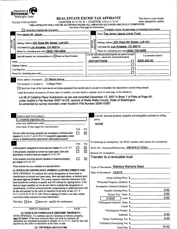
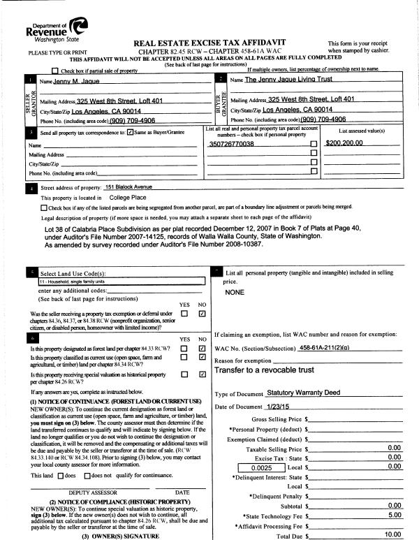
| 1 | 01/23/2015 | SWD | STATUTORY WARRANTY DEED | JAQUE JENNY M | JAQUE JENNY LIVING TRUST | | | $0.00 | 127361 | 2015-00898 |
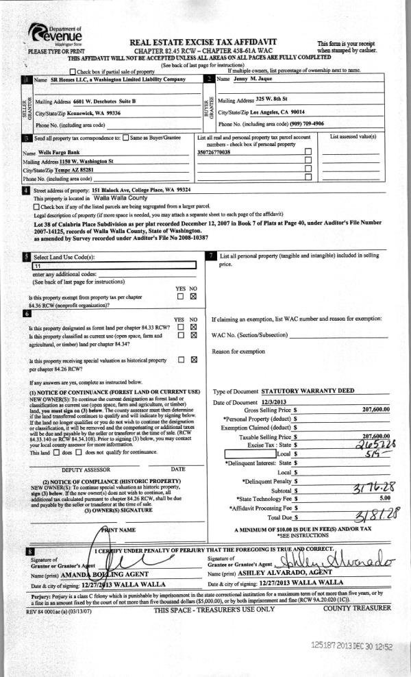
| 2 | 12/30/2013 | WARRANTY D | WARRANTY DEED | SR HOMES LLC | JAQUE JENNY M | | | $207,600.00 | 125187 | 2013-12324 |
| 3 | 06/25/2013 | WARRANTY D | WARRANTY DEED | LOCATI, MICHAEL F | SR HOMES LLC | | | $41,500.00 | 124185 | 2013-06437 |
| 4 | 11/13/2012 | QCD | QUIT CLAIM DEED | LOCATI, AMBROSE J JR | LOCATI, MICHAEL F | | | $0.00 | 122981 | 2012-10030 |
Payout Agreement
| No payout information available.. |