Property
Account |
| Property ID: | 23239 | Abbreviated Legal Description: | AMENDED CALABRIA PLACE SUBDIVISION LOT 32 |
| Parcel Number: | 350726770032 | Agent Code: | |
| Type: | Real | | |
| Tax Area: | 74 - CP-250-FB | Land Use Code | 11 |
| Open Space: | N | DFL | N |
| Historic Property: | N | Remodel Property: | N |
| Multi-Family Redevelopment: | N | | |
| Township: | 7 | Section: | 26 |
| Range: | 35 |
Location |
| Address: | 154 NW MARIA ST WA 99324 | Mapsco: | |
| Neighborhood: | A-SFR | Map ID: | |
| Neighborhood CD: | 313011 |
Owner |
| Name: | TOELKE LANA | Owner ID: | 58120 |
| Mailing Address: | HEATHER A WIMER 154 NW MARIA ST COLLEGE PLACE, WA 99324 | % Ownership: | 100.0000000000% |
| | | Exemptions: | |
Taxes and Assessment Details
Property Tax Information as of
02/21/2026
Click on "Statement Details" to expand or collapse a tax statement.
* Please enter a valid date ** Please enter a valid date *
Statement Details |
| | TOTAL: | $0.00 | $0.00 | $0.00 | $0.00 | $0.00 | $0.00 |
|
| | $0.00 | $0.00 | $0.00 | $0.00 | $0.00 | $0.00 |
Values
| (+) Improvement Homesite Value: | + | $0 | |
| (+) Improvement Non-Homesite Value: | + | $352,450 | |
| (+) Land Homesite Value: | + | $0 | |
| (+) Land Non-Homesite Value: | + | $90,000 | |
| (+) Curr Use (HS): | + | $0 | $0 |
| (+) Curr Use (NHS): | + | $0 | $0 |
| | | -------------------------- | |
| (=) Market Value: | = | $442,450 | |
| (–) Productivity Loss: | – | $0 | |
| | | -------------------------- | |
| (=) Subtotal: | = | $442,450 | |
| (+) Senior Appraised Value: | + | $0 | |
| (+) Non-Senior Appraised Value: | + | $442,450 | |
| | | -------------------------- | |
| (=) Total Appraised Value: | = | $442,450 | |
| (–) Senior Exemption Loss: | – | $0 | |
| (–) Exemption Loss: | – | $0 | |
| | | -------------------------- | |
| (=) Taxable Value: | = | $442,450 | |
Taxing Jurisdiction
| Owner: | TOELKE LANA | | |
| % Ownership: | 100.0000000000% | | |
| Total Value: | $442,450 | | |
| Tax Area: | 74 - CP-250-FB |
| CERFD | CURRENT EXPENSE REFUND 010 | 0.0000000000 | $442,450 | $442,450 | $0.00 | | |
| CURREXP | CURRENT EXPENSE 010 | 0.9851088983 | $442,450 | $442,450 | $435.86 | | |
| HUMNSERV | HUMAN SERVICES 119 | 0.0250000000 | $442,450 | $442,450 | $11.06 | | |
| SLDREL | SOLDIERS RELIEF 121 | 0.0155990000 | $442,450 | $442,450 | $6.90 | | |
| COLLPLBOND | C OF CP BOND 644 | 0.3846009312 | $442,450 | $442,450 | $170.17 | | |
| COLLPLGEN | CITY OF CP 632 | 1.4193088888 | $442,450 | $442,450 | $627.97 | | |
| EMERGSER | EMS 147 | 0.3676811629 | $442,450 | $442,450 | $162.68 | | |
| EMSRFD | EMS REFUND 147 | 0.0000000000 | $442,450 | $442,450 | $0.00 | | |
| RLBRFD | RURAL LIBRARY REFUND 623 | 0.0000000000 | $442,450 | $0 | $0.00 | | |
| RURALLIB | RURAL LIBRARY 623 | 0.0000000000 | $442,450 | $0 | $0.00 | | |
| PORTRFD | PORT REFUND 640 | 0.0000000000 | $442,450 | $442,450 | $0.00 | | |
| PORTWWGEN | PORT OF WW 640 | 0.2344301070 | $442,450 | $442,450 | $103.72 | | |
| SD250BOND | SD #250 BOND 773 | 1.3740031235 | $442,450 | $442,450 | $607.93 | | |
| SD250GEN | SD #250 GENERAL 770 | 2.4999999988 | $442,450 | $442,450 | $1,106.12 | | |
| ST2 | STATE SCHOOL PART 2 600 | 0.8853714103 | $442,450 | $442,450 | $391.73 | | |
| STATESCHL | STATE SCHOOL 600 | 1.6424571473 | $442,450 | $442,450 | $726.71 | | |
| STREFUND | STATE REFUND LEVY 603 | 0.0000000000 | $442,450 | $442,450 | $0.00 | | |
| | Total Tax Rate: | 9.8335606681 | | | | | |
| | | | | Taxes w/Current Exemptions: | $4,350.85 | | |
| | | | | Taxes w/o Exemptions: | $4,350.85 | | |
Improvement / Building
| Improvement #1: | RESIDENTIAL | State Code: | 11 | 1637.0 sqft | Value: | $352,450 |
| Exterior Wall: | STUCCO | Heating/Cooling: | WARM & COOLED AIR | | Number of Bathrooms: | 2 | Number of Bedrooms: | 3 | | Plumbing: | 11 | Roof Covering: | COMP SHINGLE |
|
| | Type | Description | Class CD | Sub Class CD | Year Built | Area |
| | MA | Main Area | 1 | 35 | 2015 | 1637.0 |
| | ATG | Attached Garage | 1 | 35 | 2015 | 484.0 |
| | RPC | OPEN PORCH W/ROOF , CEILED | 1 | 35 | 2015 | 77.0 |
| | RPC | OPEN PORCH W/ROOF , CEILED | 1 | 35 | 2015 | 208.0 |
| | SI1 | SITE IMPROVEMENT | 1 | 35 | 2015 | 2.0 |
Sketch
Property Image
Land
| 1 | RES 1 | Converted: Residential | 0.1420 | 6185.00 | 0.00 | 0.00 | 1.00 | $90,000 | $0 |
Roll Value History
| 2026 | N/A | N/A | N/A | N/A | N/A |
| 2025 | $352,450 | $90,000 | $0 | $442,450 | $442,450 |
| 2024 | $352,450 | $90,000 | $0 | $442,450 | $442,450 |
| 2023 | $320,410 | $90,000 | $0 | $410,410 | $410,410 |
| 2022 | $291,280 | $90,000 | $0 | $381,280 | $381,280 |
| 2021 | $278,770 | $40,000 | $0 | $318,770 | $318,770 |
| 2020 | $265,490 | $40,000 | $0 | $305,490 | $305,490 |
| 2019 | $265,490 | $40,000 | $0 | $305,490 | $305,490 |
| 2018 | $204,230 | $40,000 | $0 | $244,230 | $244,230 |
| 2017 | $204,230 | $40,000 | $0 | $244,230 | $244,230 |
| 2016 | $194,500 | $40,000 | $0 | $234,500 | $234,500 |
| 2015 | $0 | $40,000 | $0 | $40,000 | $40,000 |
| 2014 | $0 | $40,000 | $0 | $40,000 | $40,000 |
| 2013 | $0 | $40,000 | $0 | $40,000 | $40,000 |
| 2012 | $0 | $54,000 | $0 | $0 | $0 |
| 2011 | $0 | $55,000 | $0 | $0 | $0 |
| 2010 | $0 | $55,000 | $0 | $0 | $0 |
| 2009 | $0 | $60,000 | $0 | $0 | $0 |
| 2008 | $0 | $1,500 | $0 | $0 | $0 |
| 2007 | $0 | $40,000 | $0 | $0 | $0 |
Deed and Sales History
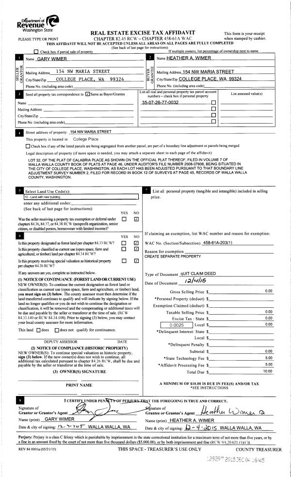
| 1 | 12/04/2015 | QCD | QUIT CLAIM DEED | WIMER GARY | WIMER HEATHER A | | | | 129297 | 2015-10415 |
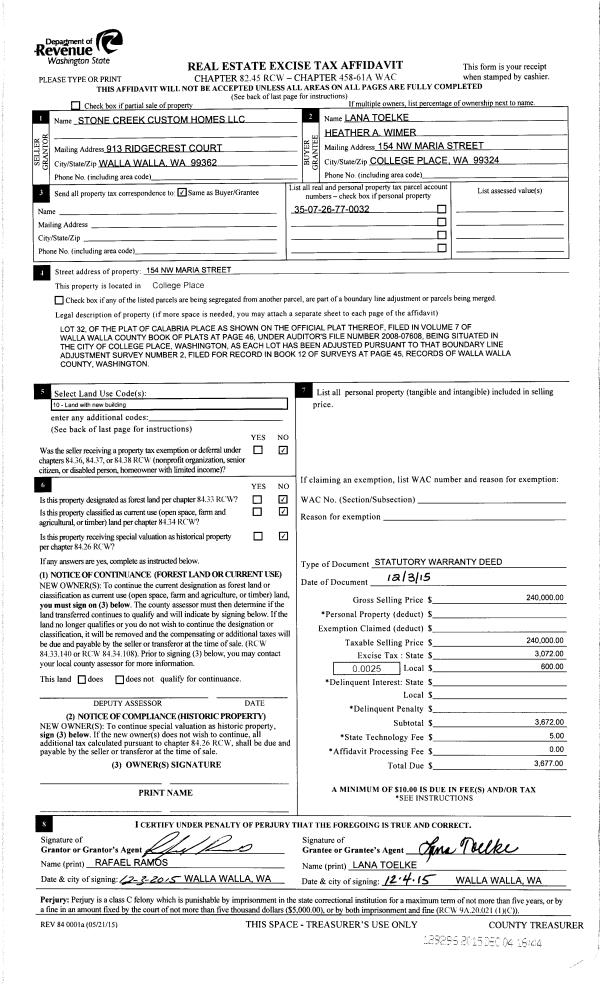
| 2 | 12/04/2015 | SWD | STATUTORY WARRANTY DEED | STONE CREEK CUSTOM HOMES LLC | TOELKE LANA | | | $240,000.00 | 129296 | 2015-10414 |
| 3 | 12/07/2015 | FUL | FULFILLMENT DEED | LOCATI AMBROSE J JR & | STONE CREEK CUSTOM HOMES LLC | | | | 0 | 2015-10460 |
| 4 | 07/01/2015 | REAL ESTAT | REAL ESTATE CONTRACT | LOCATI AMBROSE J JR & | STONE CREEK CUSTOM HOMES LLC | | 3-PARCELS | $98,000.00 | 128306 | 2015-05650 |
|   | |
Payout Agreement
| No payout information available.. |