Property
Account |
| Property ID: | 23236 | Abbreviated Legal Description: | AMENDED CALABRIA PLACE SUBDIVISION LOT 28 |
| Parcel Number: | 350726770028 | Agent Code: | |
| Type: | Real | | |
| Tax Area: | 74 - CP-250-FB | Land Use Code | 11 |
| Open Space: | N | DFL | N |
| Historic Property: | N | Remodel Property: | N |
| Multi-Family Redevelopment: | N | | |
| Township: | 7 | Section: | 26 |
| Range: | 35 |
Location |
| Address: | 114 NW MARIA ST WA 99324 | Mapsco: | |
| Neighborhood: | A-SFR | Map ID: | |
| Neighborhood CD: | 313011 |
Owner |
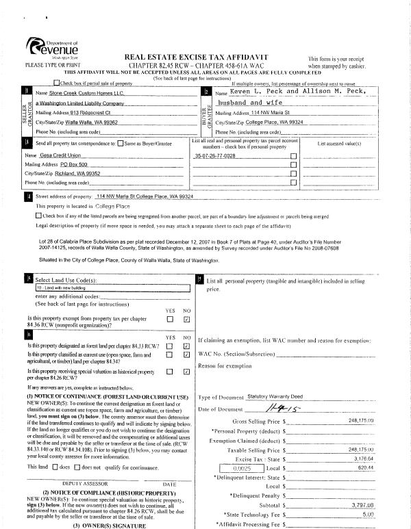
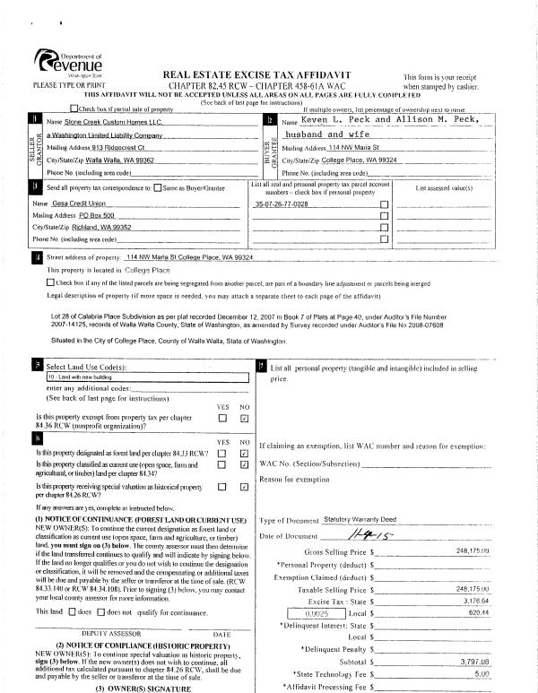
| Name: | PECK KEVEN L & ALLISON M | Owner ID: | 5771 |
| Mailing Address: | 114 NW MARIA ST COLLEGE PLACE, WA 99324 | % Ownership: | 100.0000000000% |
| | | Exemptions: | |
Taxes and Assessment Details
Values
| (+) Improvement Homesite Value: | + | $0 | |
| (+) Improvement Non-Homesite Value: | + | $327,940 | |
| (+) Land Homesite Value: | + | $0 | |
| (+) Land Non-Homesite Value: | + | $90,000 | |
| (+) Curr Use (HS): | + | $0 | $0 |
| (+) Curr Use (NHS): | + | $0 | $0 |
| | | -------------------------- | |
| (=) Market Value: | = | $417,940 | |
| (–) Productivity Loss: | – | $0 | |
| | | -------------------------- | |
| (=) Subtotal: | = | $417,940 | |
| (+) Senior Appraised Value: | + | $0 | |
| (+) Non-Senior Appraised Value: | + | $417,940 | |
| | | -------------------------- | |
| (=) Total Appraised Value: | = | $417,940 | |
| (–) Senior Exemption Loss: | – | $0 | |
| (–) Exemption Loss: | – | $0 | |
| | | -------------------------- | |
| (=) Taxable Value: | = | $417,940 | |
Taxing Jurisdiction
| Owner: | PECK KEVEN L & ALLISON M | | |
| % Ownership: | 100.0000000000% | | |
| Total Value: | $417,940 | | |
| Tax Area: | 74 - CP-250-FB |
| CERFD | CURRENT EXPENSE REFUND 010 | 0.0000000000 | $417,940 | $417,940 | $0.00 | | |
| CURREXP | CURRENT EXPENSE 010 | 1.0175366760 | $417,940 | $417,940 | $425.27 | | |
| HUMNSERV | HUMAN SERVICES 119 | 0.0250000000 | $417,940 | $417,940 | $10.45 | | |
| SLDREL | SOLDIERS RELIEF 121 | 0.0155990005 | $417,940 | $417,940 | $6.52 | | |
| COLLPLBOND | C OF CP BOND 644 | 0.4374241808 | $417,940 | $417,940 | $182.82 | | |
| COLLPLGEN | CITY OF CP 632 | 1.4453819216 | $417,940 | $417,940 | $604.08 | | |
| EMERGSER | EMS 147 | 0.3792580840 | $417,940 | $417,940 | $158.51 | | |
| EMSRFD | EMS REFUND 147 | 0.0000000000 | $417,940 | $417,940 | $0.00 | | |
| RURALLIB | RURAL LIBRARY 623 | 0.3710609029 | $417,940 | $417,940 | $155.08 | | |
| PORTRFD | PORT REFUND 640 | 0.0000000000 | $417,940 | $417,940 | $0.00 | | |
| PORTWWGEN | PORT OF WW 640 | 0.2460186015 | $417,940 | $417,940 | $102.82 | | |
| SD250BOND | SD #250 BOND 773 | 1.4560608159 | $417,940 | $417,940 | $608.55 | | |
| SD250GEN | SD #250 GENERAL 770 | 2.3880724087 | $417,940 | $417,940 | $998.07 | | |
| ST2 | STATE SCHOOL PART 2 600 | 0.8131451643 | $417,940 | $417,940 | $339.85 | | |
| STATESCHL | STATE SCHOOL 600 | 1.5158548041 | $417,940 | $417,940 | $633.54 | | |
| STREFUND | STATE REFUND LEVY 603 | 0.0000000000 | $417,940 | $417,940 | $0.00 | | |
| | Total Tax Rate: | 10.1104125603 | | | | | |
| | | | | Taxes w/Current Exemptions: | $4,225.56 | | |
| | | | | Taxes w/o Exemptions: | $4,225.56 | | |
Improvement / Building
| Improvement #1: | RESIDENTIAL | State Code: | 11 | 1707.0 sqft | Value: | $327,940 |
| Exterior Wall: | STUCCO | Heating/Cooling: | WARM & COOLED AIR | | Number of Bathrooms: | 2 | Number of Bedrooms: | 3 | | Plumbing: | 11 | Roof Covering: | COMP SHINGLE |
|
| | Type | Description | Class CD | Sub Class CD | Year Built | Area |
| | MA | Main Area | 1 | 35 | 2015 | 1707.0 |
| | ATG | Attached Garage | 1 | 35 | 2015 | 494.0 |
| | RPC | OPEN PORCH W/ROOF , CEILED | 1 | 35 | 2015 | 38.0 |
| | RPC | OPEN PORCH W/ROOF , CEILED | 1 | 35 | 2015 | 90.0 |
| | SI1 | SITE IMPROVEMENT | 1 | 35 | 2015 | 2.5 |
Sketch
Property Image
Land
| 1 | RES 1 | Converted: Residential | 0.1377 | 6000.00 | 0.00 | 0.00 | 1.00 | $90,000 | $0 |
Roll Value History
| 2026 | N/A | N/A | N/A | N/A | N/A |
| 2025 | $360,740 | $90,000 | $0 | $450,740 | $450,740 |
| 2024 | $360,740 | $90,000 | $0 | $450,740 | $450,740 |
| 2023 | $327,940 | $90,000 | $0 | $417,940 | $417,940 |
| 2022 | $298,130 | $90,000 | $0 | $388,130 | $388,130 |
| 2021 | $292,330 | $35,000 | $0 | $327,330 | $327,330 |
| 2020 | $270,680 | $35,000 | $0 | $305,680 | $305,680 |
| 2019 | $270,680 | $35,000 | $0 | $305,680 | $305,680 |
| 2018 | $208,220 | $35,000 | $0 | $243,220 | $243,220 |
| 2017 | $208,220 | $35,000 | $0 | $243,220 | $243,220 |
| 2016 | $198,300 | $35,000 | $0 | $233,300 | $233,300 |
| 2015 | $0 | $35,000 | $0 | $35,000 | $35,000 |
| 2014 | $0 | $35,000 | $0 | $35,000 | $35,000 |
| 2013 | $0 | $35,000 | $0 | $35,000 | $35,000 |
| 2012 | $0 | $49,500 | $0 | $0 | $0 |
| 2011 | $0 | $55,000 | $0 | $0 | $0 |
| 2010 | $0 | $55,000 | $0 | $0 | $0 |
| 2009 | $0 | $60,000 | $0 | $0 | $0 |
| 2008 | $0 | $1,500 | $0 | $0 | $0 |
| 2007 | $0 | $35,000 | $0 | $0 | $0 |
Deed and Sales History
| 1 | 11/06/2015 | SWD | STATUTORY WARRANTY DEED | STONE CREEK CUSTOM HOMES LLC | PECK KEVEN L & ALLISON M | | | $248,175.00 | 129153 | 2015-09699 |
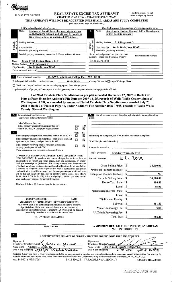
| 2 | 06/23/2015 | SWD | STATUTORY WARRANTY DEED | LOCATI AMBROSE J JR & | STONE CREEK CUSTOM HOMES LLC | | | $38,000.00 | 128226 | 2015-05248 |
Payout Agreement
| No payout information available.. |