Property
Account |
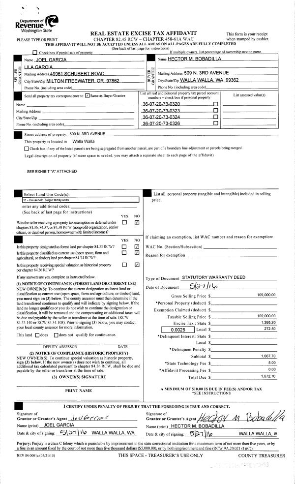
| Property ID: | 23196 | Abbreviated Legal Description: | SHEILS SLY 1/2 OF LOT 3 BLK 3 (PARCEL 20) |
| Parcel Number: | 360720730320 | Agent Code: | |
| Type: | Real | | |
| Tax Area: | 1 - OL-140-F | Land Use Code | 11 |
| Open Space: | N | DFL | N |
| Historic Property: | N | Remodel Property: | N |
| Multi-Family Redevelopment: | N | | |
| Township: | 7 | Section: | 20 |
| Range: | 36 |
Location |
| Address: | 509 N 3RD AVE WA 99362 | Mapsco: | |
| Neighborhood: | F SFR Contig | Map ID: | |
| Neighborhood CD: | 512097 |
Owner |
| Name: | BOBADILLA HECTOR M | Owner ID: | 58903 |
| Mailing Address: | 509 N 3RD AVE WALLA WALLA, WA 99362 | % Ownership: | 100.0000000000% |
| | | Exemptions: | |
Taxes and Assessment Details
Values
| (+) Improvement Homesite Value: | + | $0 | |
| (+) Improvement Non-Homesite Value: | + | $0 | |
| (+) Land Homesite Value: | + | $0 | |
| (+) Land Non-Homesite Value: | + | $19,700 | |
| (+) Curr Use (HS): | + | $0 | $0 |
| (+) Curr Use (NHS): | + | $0 | $0 |
| | | -------------------------- | |
| (=) Market Value: | = | $19,700 | |
| (–) Productivity Loss: | – | $0 | |
| | | -------------------------- | |
| (=) Subtotal: | = | $19,700 | |
| (+) Senior Appraised Value: | + | $0 | |
| (+) Non-Senior Appraised Value: | + | $19,700 | |
| | | -------------------------- | |
| (=) Total Appraised Value: | = | $19,700 | |
| (–) Senior Exemption Loss: | – | $0 | |
| (–) Exemption Loss: | – | $0 | |
| | | -------------------------- | |
| (=) Taxable Value: | = | $19,700 | |
Taxing Jurisdiction
| Owner: | BOBADILLA HECTOR M | | |
| % Ownership: | 100.0000000000% | | |
| Total Value: | $19,700 | | |
| Tax Area: | 1 - OL-140-F |
| CERFD | CURRENT EXPENSE REFUND 010 | 0.0000000000 | $19,700 | $19,700 | $0.00 | | |
| CURREXP | CURRENT EXPENSE 010 | 0.9851088983 | $19,700 | $19,700 | $19.41 | | |
| HUMNSERV | HUMAN SERVICES 119 | 0.0250000000 | $19,700 | $19,700 | $0.49 | | |
| SLDREL | SOLDIERS RELIEF 121 | 0.0155990000 | $19,700 | $19,700 | $0.31 | | |
| EMERGSER | EMS 147 | 0.3676811629 | $19,700 | $19,700 | $7.24 | | |
| EMSRFD | EMS REFUND 147 | 0.0000000000 | $19,700 | $19,700 | $0.00 | | |
| PORTRFD | PORT REFUND 640 | 0.0000000000 | $19,700 | $19,700 | $0.00 | | |
| PORTWWGEN | PORT OF WW 640 | 0.2344301070 | $19,700 | $19,700 | $4.62 | | |
| SD140BOND | SD #140 BOND 764 | 0.8032434458 | $19,700 | $19,700 | $15.82 | | |
| SD140CAP | SD #140 CAP 762 | 0.3840034221 | $19,700 | $19,700 | $7.56 | | |
| SD140GEN | SD #140 GENERAL 760 | 2.4999999996 | $19,700 | $19,700 | $49.25 | | |
| ST2 | STATE SCHOOL PART 2 600 | 0.8853714103 | $19,700 | $19,700 | $17.44 | | |
| STATESCHL | STATE SCHOOL 600 | 1.6424571473 | $19,700 | $19,700 | $32.36 | | |
| STREFUND | STATE REFUND LEVY 603 | 0.0000000000 | $19,700 | $19,700 | $0.00 | | |
| CWWBOND | C OF WW BOND 643 | 0.2642134255 | $19,700 | $19,700 | $5.21 | | |
| CWWGEN | CITY OF WW 631 | 1.6110494978 | $19,700 | $19,700 | $31.74 | | |
| CWWRFD | CITY OF WALLA WALLA REFUND 631 | 0.0000000000 | $19,700 | $19,700 | $0.00 | | |
| | Total Tax Rate: | 9.7181575166 | | | | | |
| | | | | Taxes w/Current Exemptions: | $191.45 | | |
| | | | | Taxes w/o Exemptions: | $191.45 | | |
Improvement / Building
Sketch
| No sketches available for this property. |
Property Image
Land
| 1 | RES 1 | Converted: Residential | 0.0826 | 3600.00 | 0.00 | 0.00 | 1.00 | $19,700 | $0 |
Roll Value History
| 2026 | N/A | N/A | N/A | N/A | N/A |
| 2025 | $0 | $19,700 | $0 | $19,700 | $19,700 |
| 2024 | $0 | $19,700 | $0 | $19,700 | $19,700 |
| 2023 | $0 | $16,080 | $0 | $16,080 | $16,080 |
| 2022 | $0 | $16,080 | $0 | $16,080 | $16,080 |
| 2021 | $0 | $16,080 | $0 | $16,080 | $16,080 |
| 2020 | $0 | $16,080 | $0 | $16,080 | $16,080 |
| 2019 | $0 | $16,080 | $0 | $16,080 | $16,080 |
| 2018 | $0 | $16,080 | $0 | $16,080 | $16,080 |
| 2017 | $0 | $5,100 | $0 | $5,100 | $5,100 |
| 2016 | $0 | $5,100 | $0 | $5,100 | $5,100 |
| 2015 | $0 | $5,100 | $0 | $5,100 | $5,100 |
| 2014 | $0 | $5,100 | $0 | $5,100 | $5,100 |
| 2013 | $0 | $5,100 | $0 | $5,100 | $5,100 |
| 2012 | $0 | $4,500 | $0 | $0 | $0 |
| 2011 | $0 | $4,500 | $0 | $0 | $0 |
| 2010 | $0 | $4,500 | $0 | $0 | $0 |
| 2009 | $0 | $4,500 | $0 | $0 | $0 |
| 2008 | $0 | $4,500 | $0 | $0 | $0 |
| 2007 | $0 | $4,500 | $0 | $0 | $0 |
Deed and Sales History
| 1 | 05/31/2016 | SWD | STATUTORY WARRANTY DEED | GARCIA JOEL & LILA | BOBADILLA HECTOR M | | 4-PARCELS | $109,000.00 | 130300 | 2016-04082 |
|   | |
| 2 | 06/30/2008 | QCD | QUIT CLAIM DEED | GARCIA, JOEL | GARCIA JOEL & LILA | | | | 115272 | 2008-06753 |
| 3 | 04/07/2003 | WARRANTY D | WARRANTY DEED | FARMER DARREN & PATRICIA | GARCIA JOEL | | | | 101785 | 2003-04903 |
| 4 | 04/07/2003 | WARRANTY D | WARRANTY DEED | GARCIA JOEL | GARCIA JOEL | | | | 101786 | 2003-04904 |
| 5 | 08/28/1998 | WARRANTY D | WARRANTY DEED | | | | | | 91137 | 2729-809926 |
Payout Agreement
| No payout information available.. |