Property
Account |
| Property ID: | 23171 | Abbreviated Legal Description: | PLEASANT ST LOTS 13 AND 14 BLK 2 |
| Parcel Number: | 360727570213 | Agent Code: | |
| Type: | Real | | |
| Tax Area: | 105 - 140-F-4 | Land Use Code | 11 |
| Open Space: | N | DFL | N |
| Historic Property: | N | Remodel Property: | N |
| Multi-Family Redevelopment: | N | | |
| Township: | 7 | Section: | 27 |
| Range: | 36 |
Location |
| Address: | 821 S WILBUR AVE WA 99362 | Mapsco: | |
| Neighborhood: | A Res | Map ID: | |
| Neighborhood CD: | 613011 |
Owner |
| Name: | SWEPPY WILLIAM HENRY IV | Owner ID: | 69491 |
| Mailing Address: | LEANNE RAYE WALLING 821 S WILBUR AVE WALLA WALLA, WA 99362 | % Ownership: | 100.0000000000% |
| | | Exemptions: | |
Taxes and Assessment Details
Property Tax Information as of
02/21/2026
Click on "Statement Details" to expand or collapse a tax statement.
* Please enter a valid date ** Please enter a valid date *
Statement Details |
| | TOTAL: | $0.00 | $0.00 | $0.00 | $0.00 | $0.00 | $0.00 |
|
| | $0.00 | $0.00 | $0.00 | $0.00 | $0.00 | $0.00 |
Values
| (+) Improvement Homesite Value: | + | $0 | |
| (+) Improvement Non-Homesite Value: | + | $243,810 | |
| (+) Land Homesite Value: | + | $0 | |
| (+) Land Non-Homesite Value: | + | $92,620 | |
| (+) Curr Use (HS): | + | $0 | $0 |
| (+) Curr Use (NHS): | + | $0 | $0 |
| | | -------------------------- | |
| (=) Market Value: | = | $336,430 | |
| (–) Productivity Loss: | – | $0 | |
| | | -------------------------- | |
| (=) Subtotal: | = | $336,430 | |
| (+) Senior Appraised Value: | + | $0 | |
| (+) Non-Senior Appraised Value: | + | $336,430 | |
| | | -------------------------- | |
| (=) Total Appraised Value: | = | $336,430 | |
| (–) Senior Exemption Loss: | – | $0 | |
| (–) Exemption Loss: | – | $0 | |
| | | -------------------------- | |
| (=) Taxable Value: | = | $336,430 | |
Taxing Jurisdiction
| Owner: | SWEPPY WILLIAM HENRY IV | | |
| % Ownership: | 100.0000000000% | | |
| Total Value: | $336,430 | | |
| Tax Area: | 105 - 140-F-4 |
| CERFD | CURRENT EXPENSE REFUND 010 | 0.0000000000 | $336,430 | $336,430 | $0.00 | | |
| CURREXP | CURRENT EXPENSE 010 | 1.0175366760 | $336,430 | $336,430 | $342.33 | | |
| HUMNSERV | HUMAN SERVICES 119 | 0.0250000000 | $336,430 | $336,430 | $8.41 | | |
| SLDREL | SOLDIERS RELIEF 121 | 0.0155990005 | $336,430 | $336,430 | $5.25 | | |
| EMERGSER | EMS 147 | 0.3792580840 | $336,430 | $336,430 | $127.59 | | |
| EMSRFD | EMS REFUND 147 | 0.0000000000 | $336,430 | $336,430 | $0.00 | | |
| FD4EXP | FD #4 EXPENSE 686 | 0.8836993059 | $336,430 | $336,430 | $297.30 | | |
| RLBRFD | RURAL LIBRARY REFUND 623 | 0.0000000000 | $336,430 | $336,430 | $0.00 | | |
| RURALLIB | RURAL LIBRARY 623 | 0.3710609029 | $336,430 | $336,430 | $124.84 | | |
| PORTRFD | PORT REFUND 640 | 0.0000000000 | $336,430 | $336,430 | $0.00 | | |
| PORTWWGEN | PORT OF WW 640 | 0.2460186015 | $336,430 | $336,430 | $82.77 | | |
| SD140BOND | SD #140 BOND 764 | 0.8342371393 | $336,430 | $336,430 | $280.66 | | |
| SD140GEN | SD #140 GENERAL 760 | 2.0646500647 | $336,430 | $336,430 | $694.61 | | |
| ST2 | STATE SCHOOL PART 2 600 | 0.8131451643 | $336,430 | $336,430 | $273.57 | | |
| STATESCHL | STATE SCHOOL 600 | 1.5158548041 | $336,430 | $336,430 | $509.98 | | |
| STREFUND | STATE REFUND LEVY 603 | 0.0000000000 | $336,430 | $336,430 | $0.00 | | |
| COROAD | COUNTY ROAD 115 | 1.6549953990 | $336,430 | $336,430 | $556.79 | | |
| CRPRD | COUNTY ROAD REFUND 115 | 0.0000000000 | $336,430 | $336,430 | $0.00 | | |
| | Total Tax Rate: | 9.8210551422 | | | | | |
| | | | | Taxes w/Current Exemptions: | $3,304.10 | | |
| | | | | Taxes w/o Exemptions: | $3,304.10 | | |
Improvement / Building
| Improvement #1: | RESIDENTIAL | State Code: | 11 | 983.0 sqft | Value: | $243,810 |
| Exterior Wall: | STUCCO | Heating/Cooling: | WARM & COOLED AIR | | Number of Bathrooms: | 2 | Number of Bedrooms: | 2 | | Plumbing: | 9 | Roof Covering: | COMP SHINGLE |
|
| | Type | Description | Class CD | Sub Class CD | Year Built | Area |
| | MA | Main Area | 1 | 30 | 1940 | 983.0 |
| | SI1 | SITE IMPROVEMENT | 1 | 30 | 1940 | 1.5 |
| | BASE | BASEMENT | 1 | 30 | 1940 | 983.0 |
| | BRF | BASEMENT - REC FINISH | 1 | 30 | 1940 | 747.0 |
| | RPS | PORCH W/STEPS,ROOF | 1 | 30 | 1940 | 24.0 |
| | CPC | COVERED CARPORT/PATIO | 1 | 30 | 1940 | 132.0 |
| | DTG | Detached Garage | 1 | 30 | 1940 | 462.0 |
Sketch
Property Image
Land
| 1 | RES 1 | Converted: Residential | 0.3090 | 13462.00 | 0.00 | 0.00 | 1.00 | $92,620 | $0 |
Roll Value History
| 2026 | N/A | N/A | N/A | N/A | N/A |
| 2025 | $240,340 | $113,080 | $0 | $353,420 | $353,420 |
| 2024 | $243,810 | $92,620 | $0 | $336,430 | $336,430 |
| 2023 | $243,810 | $92,620 | $0 | $336,430 | $336,430 |
| 2022 | $243,810 | $74,310 | $0 | $318,120 | $318,120 |
| 2021 | $168,140 | $74,310 | $0 | $242,450 | $242,450 |
| 2020 | $129,340 | $74,310 | $0 | $203,650 | $203,650 |
| 2019 | $129,340 | $74,310 | $0 | $203,650 | $203,650 |
| 2018 | $131,760 | $50,100 | $0 | $181,860 | $181,860 |
| 2017 | $122,000 | $50,100 | $0 | $172,100 | $172,100 |
| 2016 | $97,600 | $50,100 | $0 | $147,700 | $147,700 |
| 2015 | $97,600 | $50,100 | $0 | $147,700 | $147,700 |
| 2014 | $97,600 | $50,100 | $0 | $147,700 | $147,700 |
| 2013 | $97,600 | $50,100 | $0 | $147,700 | $147,700 |
| 2012 | $105,900 | $50,100 | $0 | $0 | $0 |
| 2011 | $105,900 | $50,100 | $0 | $0 | $0 |
| 2010 | $98,500 | $50,100 | $0 | $0 | $0 |
| 2009 | $115,000 | $50,100 | $0 | $0 | $0 |
| 2008 | $115,000 | $50,100 | $0 | $0 | $0 |
| 2007 | $68,800 | $27,600 | $0 | $0 | $0 |
Deed and Sales History
| 1 | 05/28/2021 | SWD | STATUTORY WARRANTY DEED | BUSHKOVSKIY VLADIMIR & LUISA | SWEPPY WILLIAM HENRY IV | | | $340,000.00 | 141673 | 2021-06583 |
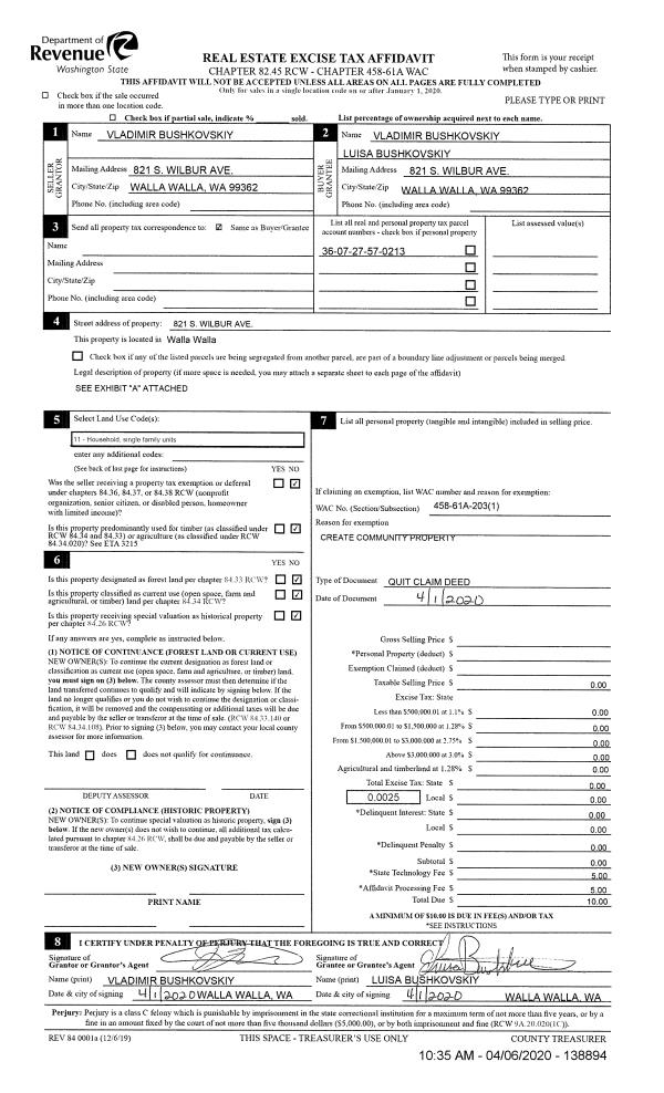
| 2 | 04/01/2020 | QCD | QUIT CLAIM DEED | BUSHKOVSKIY VLADIMIR | BUSHKOVSKIY VLADIMIR & LUISA | | | $0.00 | 138894 | 2020-02967 |
| 3 | 12/03/2013 | WARRANTY D | WARRANTY DEED | FILAN LEON D LIFE ESTATE | BUSHKOVSKIY VLADIMIR | | | $145,000.00 | 125049 | 2013-11682 |
| 4 | 07/11/2008 | QCD | QUIT CLAIM DEED | FILAN, LEON D & JANICE S | FILAN, LEON D & JANICE S LIFE | | | | 115327 | 2008-07136 |
| 5 | 06/09/1983 | WARRANTY D | WARRANTY DEED | | | | | $59,500.00 | 0 | 1388-304011 |
Payout Agreement
| No payout information available.. |