Property
Account |
| Property ID: | 23130 | Abbreviated Legal Description: | SUNSET LODGE ADDITION LOT 39 |
| Parcel Number: | 360732820039 | Agent Code: | |
| Type: | Real | | |
| Tax Area: | 1 - OL-140-F | Land Use Code | 11 |
| Open Space: | N | DFL | N |
| Historic Property: | N | Remodel Property: | N |
| Multi-Family Redevelopment: | N | | |
| Township: | 7 | Section: | 32 |
| Range: | 36 |
Location |
| Address: | 1910 STEVENS ST WA 99362 | Mapsco: | |
| Neighborhood: | G Res Rural/City Inf | Map ID: | |
| Neighborhood CD: | 614012 |
Owner |
| Name: | ROSS KATHERINE A | Owner ID: | 43800 |
| Mailing Address: | 1910 STEVENS ST WALLA WALLA, WA 99362 | % Ownership: | 100.0000000000% |
| | | Exemptions: | |
Taxes and Assessment Details
Values
| (+) Improvement Homesite Value: | + | $0 | |
| (+) Improvement Non-Homesite Value: | + | $377,790 | |
| (+) Land Homesite Value: | + | $0 | |
| (+) Land Non-Homesite Value: | + | $75,000 | |
| (+) Curr Use (HS): | + | $0 | $0 |
| (+) Curr Use (NHS): | + | $0 | $0 |
| | | -------------------------- | |
| (=) Market Value: | = | $452,790 | |
| (–) Productivity Loss: | – | $0 | |
| | | -------------------------- | |
| (=) Subtotal: | = | $452,790 | |
| (+) Senior Appraised Value: | + | $0 | |
| (+) Non-Senior Appraised Value: | + | $452,790 | |
| | | -------------------------- | |
| (=) Total Appraised Value: | = | $452,790 | |
| (–) Senior Exemption Loss: | – | $0 | |
| (–) Exemption Loss: | – | $0 | |
| | | -------------------------- | |
| (=) Taxable Value: | = | $452,790 | |
Taxing Jurisdiction
| Owner: | ROSS KATHERINE A | | |
| % Ownership: | 100.0000000000% | | |
| Total Value: | $452,790 | | |
| Tax Area: | 1 - OL-140-F |
| CERFD | CURRENT EXPENSE REFUND 010 | 0.0000000000 | $452,790 | $452,790 | $0.00 | | |
| CURREXP | CURRENT EXPENSE 010 | 1.0175366760 | $452,790 | $452,790 | $460.73 | | |
| HUMNSERV | HUMAN SERVICES 119 | 0.0250000000 | $452,790 | $452,790 | $11.32 | | |
| SLDREL | SOLDIERS RELIEF 121 | 0.0155990005 | $452,790 | $452,790 | $7.06 | | |
| EMERGSER | EMS 147 | 0.3792580840 | $452,790 | $452,790 | $171.72 | | |
| EMSRFD | EMS REFUND 147 | 0.0000000000 | $452,790 | $452,790 | $0.00 | | |
| PORTRFD | PORT REFUND 640 | 0.0000000000 | $452,790 | $452,790 | $0.00 | | |
| PORTWWGEN | PORT OF WW 640 | 0.2460186015 | $452,790 | $452,790 | $111.39 | | |
| SD140BOND | SD #140 BOND 764 | 0.8342371393 | $452,790 | $452,790 | $377.73 | | |
| SD140GEN | SD #140 GENERAL 760 | 2.0646500647 | $452,790 | $452,790 | $934.85 | | |
| ST2 | STATE SCHOOL PART 2 600 | 0.8131451643 | $452,790 | $452,790 | $368.18 | | |
| STATESCHL | STATE SCHOOL 600 | 1.5158548041 | $452,790 | $452,790 | $686.36 | | |
| STREFUND | STATE REFUND LEVY 603 | 0.0000000000 | $452,790 | $452,790 | $0.00 | | |
| CWWBOND | C OF WW BOND 643 | 0.2760494372 | $452,790 | $452,790 | $124.99 | | |
| CWWGEN | CITY OF WW 631 | 1.6100204973 | $452,790 | $452,790 | $729.00 | | |
| CWWRFD | CITY OF WALLA WALLA REFUND 631 | 0.0000000000 | $452,790 | $452,790 | $0.00 | | |
| | Total Tax Rate: | 8.7973694689 | | | | | |
| | | | | Taxes w/Current Exemptions: | $3,983.33 | | |
| | | | | Taxes w/o Exemptions: | $3,983.33 | | |
Improvement / Building
| Improvement #1: | RESIDENTIAL | State Code: | 11 | 1644.0 sqft | Value: | $377,790 |
| Exterior Wall: | PLYWOOD | Heating/Cooling: | WARM & COOLED AIR | | Number of Bathrooms: | 2 | Number of Bedrooms: | 3 | | Plumbing: | 11 | Roof Covering: | COMP SHINGLE |
|
| | Type | Description | Class CD | Sub Class CD | Year Built | Area |
| | MA | Main Area | 1 | 35 | 2008 | 1644.0 |
| | SI1 | SITE IMPROVEMENT | 1 | 35 | 2008 | 3.0 |
| | ATG | Attached Garage | 1 | 35 | 2008 | 440.0 |
| | GFP | GAS FIREPLACE | 1 | 35 | 2008 | 1.0 |
| | RPO | OPEN PORCH W/ROOF | 1 | 35 | 2008 | 120.0 |
| | OSP | Open | 1 | 35 | 2008 | 151.0 |
Sketch
Property Image
Land
| 1 | RES 1 | Converted: Residential | 0.1414 | 6160.00 | 0.00 | 0.00 | 1.00 | $75,000 | $0 |
Roll Value History
| 2026 | N/A | N/A | N/A | N/A | N/A |
| 2025 | $303,000 | $125,000 | $0 | $428,000 | $428,000 |
| 2024 | $377,790 | $75,000 | $0 | $452,790 | $452,790 |
| 2023 | $377,790 | $75,000 | $0 | $452,790 | $452,790 |
| 2022 | $343,450 | $44,700 | $0 | $388,150 | $388,150 |
| 2021 | $298,650 | $44,700 | $0 | $343,350 | $343,350 |
| 2020 | $199,100 | $44,700 | $0 | $243,800 | $243,800 |
| 2019 | $199,100 | $44,700 | $0 | $243,800 | $243,800 |
| 2018 | $192,020 | $37,000 | $0 | $229,020 | $229,020 |
| 2017 | $192,020 | $37,000 | $0 | $229,020 | $229,020 |
| 2016 | $160,020 | $37,000 | $0 | $197,020 | $197,020 |
| 2015 | $160,020 | $37,000 | $0 | $197,020 | $197,020 |
| 2014 | $152,400 | $37,000 | $0 | $189,400 | $189,400 |
| 2013 | $152,400 | $37,000 | $0 | $189,400 | $189,400 |
| 2012 | $134,500 | $60,000 | $0 | $0 | $0 |
| 2011 | $137,500 | $60,000 | $0 | $0 | $0 |
| 2010 | $111,200 | $60,000 | $0 | $0 | $0 |
| 2009 | $70,600 | $60,000 | $0 | $0 | $0 |
| 2008 | $152,400 | $37,000 | $0 | $0 | $0 |
Deed and Sales History
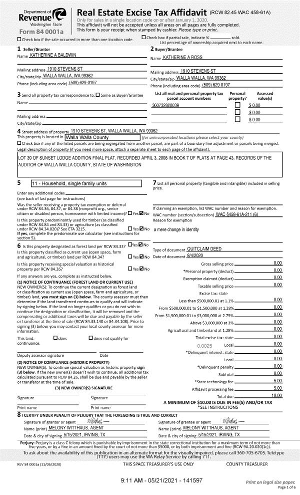
| 1 | 08/04/2020 | QCD | QUIT CLAIM DEED | BALDWIN KATHERINE A | ROSS KATHERINE A | | | $0.00 | 141648 | 2021-06407 |
| 2 | 04/08/2020 | TAX AFF | TAX AFFIDAVIT | | | | | | 141597 | |
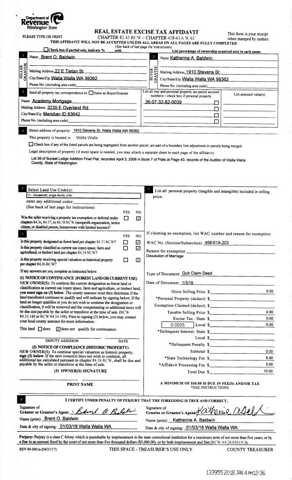
| 3 | 01/04/2018 | QCD | QUIT CLAIM DEED | BALDWIN BRENT O | BALDWIN KATHERINE A | | | | 133955 | 2018-00125 |
| 4 | 01/04/2018 | SWD | STATUTORY WARRANTY DEED | NEAL RYAN C | BALDWIN KATHERINE A | | | $239,000.00 | 133954 | 2018-00124 |
| 5 | 06/18/2010 | WARRANTY D | WARRANTY DEED | MAJERUS, DOUGLAS | NEAL, RYAN C | | | $203,000.00 | 118637 | 2010-04715 |
Payout Agreement
| No payout information available.. |