Property
Account |
| Property ID: | 23129 | Abbreviated Legal Description: | SUNSET LODGE ADDITION LOT 36 |
| Parcel Number: | 360732820036 | Agent Code: | |
| Type: | Real | | |
| Tax Area: | 1 - OL-140-F | Land Use Code | 11 |
| Open Space: | N | DFL | N |
| Historic Property: | N | Remodel Property: | N |
| Multi-Family Redevelopment: | N | | |
| Township: | 7 | Section: | 32 |
| Range: | 36 |
Location |
| Address: | 1916 STEVENS ST WA 99362 | Mapsco: | |
| Neighborhood: | G Res Rural/City Inf | Map ID: | |
| Neighborhood CD: | 614012 |
Owner |
| Name: | LUTCHER MARK | Owner ID: | 68877 |
| Mailing Address: | LORI DENISE SCHELL 1916 STEVENS ST WALLA WALLA, WA 99362 | % Ownership: | 100.0000000000% |
| | | Exemptions: | |
Taxes and Assessment Details
Values
| (+) Improvement Homesite Value: | + | $0 | |
| (+) Improvement Non-Homesite Value: | + | $369,630 | |
| (+) Land Homesite Value: | + | $0 | |
| (+) Land Non-Homesite Value: | + | $75,000 | |
| (+) Curr Use (HS): | + | $0 | $0 |
| (+) Curr Use (NHS): | + | $0 | $0 |
| | | -------------------------- | |
| (=) Market Value: | = | $444,630 | |
| (–) Productivity Loss: | – | $0 | |
| | | -------------------------- | |
| (=) Subtotal: | = | $444,630 | |
| (+) Senior Appraised Value: | + | $0 | |
| (+) Non-Senior Appraised Value: | + | $444,630 | |
| | | -------------------------- | |
| (=) Total Appraised Value: | = | $444,630 | |
| (–) Senior Exemption Loss: | – | $0 | |
| (–) Exemption Loss: | – | $0 | |
| | | -------------------------- | |
| (=) Taxable Value: | = | $444,630 | |
Taxing Jurisdiction
| Owner: | LUTCHER MARK | | |
| % Ownership: | 100.0000000000% | | |
| Total Value: | $444,630 | | |
| Tax Area: | 1 - OL-140-F |
| CERFD | CURRENT EXPENSE REFUND 010 | 0.0000000000 | $444,630 | $444,630 | $0.00 | | |
| CURREXP | CURRENT EXPENSE 010 | 1.0175366760 | $444,630 | $444,630 | $452.43 | | |
| HUMNSERV | HUMAN SERVICES 119 | 0.0250000000 | $444,630 | $444,630 | $11.12 | | |
| SLDREL | SOLDIERS RELIEF 121 | 0.0155990005 | $444,630 | $444,630 | $6.94 | | |
| EMERGSER | EMS 147 | 0.3792580840 | $444,630 | $444,630 | $168.63 | | |
| EMSRFD | EMS REFUND 147 | 0.0000000000 | $444,630 | $444,630 | $0.00 | | |
| PORTRFD | PORT REFUND 640 | 0.0000000000 | $444,630 | $444,630 | $0.00 | | |
| PORTWWGEN | PORT OF WW 640 | 0.2460186015 | $444,630 | $444,630 | $109.39 | | |
| SD140BOND | SD #140 BOND 764 | 0.8342371393 | $444,630 | $444,630 | $370.93 | | |
| SD140GEN | SD #140 GENERAL 760 | 2.0646500647 | $444,630 | $444,630 | $918.01 | | |
| ST2 | STATE SCHOOL PART 2 600 | 0.8131451643 | $444,630 | $444,630 | $361.55 | | |
| STATESCHL | STATE SCHOOL 600 | 1.5158548041 | $444,630 | $444,630 | $673.99 | | |
| STREFUND | STATE REFUND LEVY 603 | 0.0000000000 | $444,630 | $444,630 | $0.00 | | |
| CWWBOND | C OF WW BOND 643 | 0.2760494372 | $444,630 | $444,630 | $122.74 | | |
| CWWGEN | CITY OF WW 631 | 1.6100204973 | $444,630 | $444,630 | $715.86 | | |
| CWWRFD | CITY OF WALLA WALLA REFUND 631 | 0.0000000000 | $444,630 | $444,630 | $0.00 | | |
| | Total Tax Rate: | 8.7973694689 | | | | | |
| | | | | Taxes w/Current Exemptions: | $3,911.59 | | |
| | | | | Taxes w/o Exemptions: | $3,911.59 | | |
Improvement / Building
| Improvement #1: | RESIDENTIAL | State Code: | 11 | 1644.0 sqft | Value: | $369,630 |
| Exterior Wall: | PLYWOOD | Heating/Cooling: | WARM & COOLED AIR | | Number of Bathrooms: | 2 | Number of Bedrooms: | 3 | | Plumbing: | 12 | Roof Covering: | COMP SHINGLE |
|
| | Type | Description | Class CD | Sub Class CD | Year Built | Area |
| | MA | Main Area | 1 | 35 | 2008 | 1644.0 |
| | SI1 | SITE IMPROVEMENT | 1 | 35 | 2008 | 3.0 |
| | ATG | Attached Garage | 1 | 35 | 2008 | 440.0 |
| | GFP | GAS FIREPLACE | 1 | 35 | 2008 | 1.0 |
| | RPC | OPEN PORCH W/ROOF , CEILED | 1 | 35 | 2008 | 120.0 |
| | OSP | Open | 1 | 35 | 2008 | 196.0 |
Sketch
Property Image
Land
| 1 | RES 1 | Converted: Residential | 0.1417 | 6173.00 | 0.00 | 0.00 | 1.00 | $75,000 | $0 |
Roll Value History
| 2026 | N/A | N/A | N/A | N/A | N/A |
| 2025 | $305,300 | $125,000 | $0 | $430,300 | $430,300 |
| 2024 | $369,630 | $75,000 | $0 | $444,630 | $444,630 |
| 2023 | $369,630 | $75,000 | $0 | $444,630 | $444,630 |
| 2022 | $336,030 | $44,800 | $0 | $380,830 | $380,830 |
| 2021 | $292,200 | $44,800 | $0 | $337,000 | $337,000 |
| 2020 | $194,800 | $44,800 | $0 | $239,600 | $239,600 |
| 2019 | $194,800 | $44,800 | $0 | $239,600 | $239,600 |
| 2018 | $179,200 | $37,000 | $0 | $216,200 | $216,200 |
| 2017 | $170,670 | $37,000 | $0 | $207,670 | $207,670 |
| 2016 | $142,220 | $37,000 | $0 | $179,220 | $179,220 |
| 2015 | $135,450 | $37,000 | $0 | $172,450 | $172,450 |
| 2014 | $129,000 | $37,000 | $0 | $166,000 | $166,000 |
| 2013 | $129,000 | $37,000 | $0 | $166,000 | $166,000 |
| 2012 | $134,500 | $60,000 | $0 | $0 | $0 |
| 2011 | $136,500 | $60,000 | $0 | $0 | $0 |
| 2010 | $97,000 | $60,000 | $0 | $0 | $0 |
| 2009 | $71,200 | $60,000 | $0 | $0 | $0 |
| 2008 | $129,000 | $37,000 | $0 | $0 | $0 |
Deed and Sales History
| 1 | 02/17/2021 | QCD | QUIT CLAIM DEED | LUTCHER MARK | LUTCHER MARK | | | $0.00 | 140939 | 2021-01983 |
| 2 | 10/21/2019 | QCD | QUIT CLAIM DEED | SCHELL LORI | LUTCHER MARK | | | $0.00 | 137964 | 2019-08725 |
| 3 | 09/19/2011 | WARRANTY D | WARRANTY DEED | RUZICKA, JULIE | LUTCHER, MARK | | | $166,000.00 | 120712 | 2011-07313 |
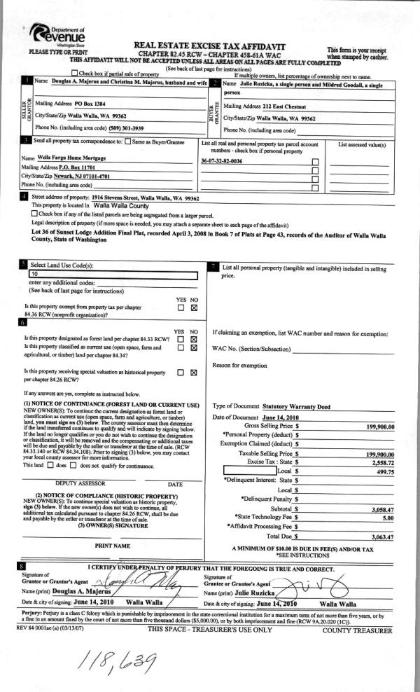
| 4 | 06/18/2010 | WARRANTY D | WARRANTY DEED | MAJERUS, DOUGLAS | RUZICKA, JULIE | | | $199,900.00 | 118639 | 2010-04719 |
Payout Agreement
| No payout information available.. |