Property
Account |
| Property ID: | 23128 | Abbreviated Legal Description: | BRAYMAR 4TH ADDITION LOT 34 |
| Parcel Number: | 360727680009 | Agent Code: | |
| Type: | Real | | |
| Tax Area: | 1 - OL-140-F | Land Use Code | 11 |
| Open Space: | N | DFL | N |
| Historic Property: | N | Remodel Property: | N |
| Multi-Family Redevelopment: | N | | |
| Township: | 7 | Section: | 27 |
| Range: | 36 |
Location |
| Address: | 1851 WOODMERE LOOP WA 99362 | Mapsco: | |
| Neighborhood: | G+ Res | Map ID: | |
| Neighborhood CD: | 414211 |
Owner |
| Name: | HOFFER DAVID M & ESTHER M | Owner ID: | 56043 |
| Mailing Address: | 1851 WOODMERE LOOP WALLA WALLA, WA 99362 | % Ownership: | 100.0000000000% |
| | | Exemptions: | |
Taxes and Assessment Details
Values
| (+) Improvement Homesite Value: | + | $0 | |
| (+) Improvement Non-Homesite Value: | + | $470,950 | |
| (+) Land Homesite Value: | + | $0 | |
| (+) Land Non-Homesite Value: | + | $90,000 | |
| (+) Curr Use (HS): | + | $0 | $0 |
| (+) Curr Use (NHS): | + | $0 | $0 |
| | | -------------------------- | |
| (=) Market Value: | = | $560,950 | |
| (–) Productivity Loss: | – | $0 | |
| | | -------------------------- | |
| (=) Subtotal: | = | $560,950 | |
| (+) Senior Appraised Value: | + | $0 | |
| (+) Non-Senior Appraised Value: | + | $560,950 | |
| | | -------------------------- | |
| (=) Total Appraised Value: | = | $560,950 | |
| (–) Senior Exemption Loss: | – | $0 | |
| (–) Exemption Loss: | – | $0 | |
| | | -------------------------- | |
| (=) Taxable Value: | = | $560,950 | |
Taxing Jurisdiction
| Owner: | HOFFER DAVID M & ESTHER M | | |
| % Ownership: | 100.0000000000% | | |
| Total Value: | $560,950 | | |
| Tax Area: | 1 - OL-140-F |
| CERFD | CURRENT EXPENSE REFUND 010 | 0.0000000000 | $560,950 | $560,950 | $0.00 | | |
| CURREXP | CURRENT EXPENSE 010 | 1.0175366760 | $560,950 | $560,950 | $570.79 | | |
| HUMNSERV | HUMAN SERVICES 119 | 0.0250000000 | $560,950 | $560,950 | $14.02 | | |
| SLDREL | SOLDIERS RELIEF 121 | 0.0155990005 | $560,950 | $560,950 | $8.75 | | |
| EMERGSER | EMS 147 | 0.3792580840 | $560,950 | $560,950 | $212.74 | | |
| EMSRFD | EMS REFUND 147 | 0.0000000000 | $560,950 | $560,950 | $0.00 | | |
| PORTRFD | PORT REFUND 640 | 0.0000000000 | $560,950 | $560,950 | $0.00 | | |
| PORTWWGEN | PORT OF WW 640 | 0.2460186015 | $560,950 | $560,950 | $138.00 | | |
| SD140BOND | SD #140 BOND 764 | 0.8342371393 | $560,950 | $560,950 | $467.97 | | |
| SD140GEN | SD #140 GENERAL 760 | 2.0646500647 | $560,950 | $560,950 | $1,158.17 | | |
| ST2 | STATE SCHOOL PART 2 600 | 0.8131451643 | $560,950 | $560,950 | $456.13 | | |
| STATESCHL | STATE SCHOOL 600 | 1.5158548041 | $560,950 | $560,950 | $850.32 | | |
| STREFUND | STATE REFUND LEVY 603 | 0.0000000000 | $560,950 | $560,950 | $0.00 | | |
| CWWBOND | C OF WW BOND 643 | 0.2760494372 | $560,950 | $560,950 | $154.85 | | |
| CWWGEN | CITY OF WW 631 | 1.6100204973 | $560,950 | $560,950 | $903.14 | | |
| CWWRFD | CITY OF WALLA WALLA REFUND 631 | 0.0000000000 | $560,950 | $560,950 | $0.00 | | |
| | Total Tax Rate: | 8.7973694689 | | | | | |
| | | | | Taxes w/Current Exemptions: | $4,934.88 | | |
| | | | | Taxes w/o Exemptions: | $4,934.88 | | |
Improvement / Building
| Improvement #1: | RESIDENTIAL | State Code: | 11 | 1999.0 sqft | Value: | $470,950 |
| Exterior Wall: | HARDBOARD | Heating/Cooling: | WARM & COOLED AIR | | Number of Bathrooms: | 2 | Number of Bedrooms: | 3 | | Plumbing: | 11 | Roof Covering: | COMP SHINGLE |
|
| | Type | Description | Class CD | Sub Class CD | Year Built | Area |
| | MA | Main Area | 1 | 40 | 2009 | 1999.0 |
| | GFP | GAS FIREPLACE | 1 | 40 | 0 | 1.0 |
| | RCD | WOOD DECK W/ROOF, CEILED | 1 | 40 | 0 | 82.0 |
| | RPC | OPEN PORCH W/ROOF , CEILED | 1 | 40 | 0 | 88.0 |
| | SI1 | SITE IMPROVEMENT | 1 | 40 | 0 | 5.5 |
| | BASE | BASEMENT | 1 | 40 | 2009 | 1232.0 |
| | BRF | BASEMENT - REC FINISH | 1 | 40 | 2009 | 1232.0 |
| | ATG | Attached Garage | 1 | 40 | 2009 | 504.0 |
Sketch
Property Image
Land
| 1 | RES 1 | Converted: Residential | 0.1654 | 7207.00 | 0.00 | 0.00 | 1.00 | $90,000 | $0 |
Roll Value History
| 2026 | N/A | N/A | N/A | N/A | N/A |
| 2025 | $518,050 | $90,000 | $0 | $608,050 | $608,050 |
| 2024 | $470,950 | $90,000 | $0 | $560,950 | $560,950 |
| 2023 | $470,950 | $90,000 | $0 | $560,950 | $560,950 |
| 2022 | $463,460 | $60,000 | $0 | $523,460 | $523,460 |
| 2021 | $331,040 | $60,000 | $0 | $391,040 | $391,040 |
| 2020 | $315,280 | $60,000 | $0 | $375,280 | $375,280 |
| 2019 | $315,280 | $60,000 | $0 | $375,280 | $375,280 |
| 2018 | $286,620 | $60,000 | $0 | $346,620 | $346,620 |
| 2017 | $272,970 | $60,000 | $0 | $332,970 | $332,970 |
| 2016 | $272,970 | $60,000 | $0 | $332,970 | $332,970 |
| 2015 | $272,970 | $60,000 | $0 | $332,970 | $332,970 |
| 2014 | $202,200 | $60,000 | $0 | $262,200 | $262,200 |
| 2013 | $202,200 | $60,000 | $0 | $262,200 | $262,200 |
| 2012 | $241,400 | $60,000 | $0 | $0 | $0 |
| 2011 | $248,500 | $60,000 | $0 | $0 | $0 |
| 2010 | $248,500 | $60,000 | $0 | $0 | $0 |
| 2009 | $0 | $60,000 | $0 | $0 | $0 |
| 2008 | $202,200 | $60,000 | $0 | $0 | $0 |
Deed and Sales History
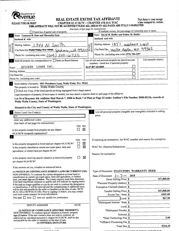
| 1 | 01/13/2015 | SWD | STATUTORY WARRANTY DEED | SIMS CAMERON R & MARANATHA | HOFFER DAVID M & ESTHER M | | | $347,000.00 | 127265 | 2015-00299 |
| 2 | 12/04/2008 | QCD | QUIT CLAIM DEED | ALDERWOOD CUSTOM HOMES INC | JERON PROPERTIES LLC | | | $60,000.00 | 116042 | 2008-11991 |
| 3 | 12/04/2008 | WARRANTY D | WARRANTY DEED | JERON PROPERTIES LLC | SIMS, CAMERON R & MARANATHA | | | $310,000.00 | 116043 | 2008-11992 |
| 4 | 05/15/2008 | WARRANTY D | WARRANTY DEED | "WATTS, GERALD A & SHARON~L" | ALDERWOOD CUSTOM HOMES INC | | | | 115020 | 2008-04931 |
Payout Agreement
| No payout information available.. |