Property
Account |
| Property ID: | 23110 | Abbreviated Legal Description: | VALLEY ACRES LOT 67 |
| Parcel Number: | 350601560067 | Agent Code: | |
| Type: | Real | | |
| Tax Area: | 2 - OL-250 | Land Use Code | 11 |
| Open Space: | N | DFL | N |
| Historic Property: | N | Remodel Property: | N |
| Multi-Family Redevelopment: | N | | |
| Township: | 6 | Section: | 1 |
| Range: | 35 |
Location |
| Address: | 148 WILSHIRE ST WA 99324 | Mapsco: | |
| Neighborhood: | G SFR | Map ID: | |
| Neighborhood CD: | 114011 |
Owner |
| Name: | THOMPSON MICHAEL CARR & KIMBERLY L | Owner ID: | 65623 |
| Mailing Address: | 148 WILSHIRE ST WALLA WALLA, WA 99362 | % Ownership: | 100.0000000000% |
| | | Exemptions: | |
Taxes and Assessment Details
Property Tax Information as of
02/21/2026
Click on "Statement Details" to expand or collapse a tax statement.
* Please enter a valid date ** Please enter a valid date *
Statement Details |
| | TOTAL: | $0.00 | $0.00 | $0.00 | $0.00 | $0.00 | $0.00 |
|
| | $0.00 | $0.00 | $0.00 | $0.00 | $0.00 | $0.00 |
Values
| (+) Improvement Homesite Value: | + | $0 | |
| (+) Improvement Non-Homesite Value: | + | $358,110 | |
| (+) Land Homesite Value: | + | $0 | |
| (+) Land Non-Homesite Value: | + | $75,000 | |
| (+) Curr Use (HS): | + | $0 | $0 |
| (+) Curr Use (NHS): | + | $0 | $0 |
| | | -------------------------- | |
| (=) Market Value: | = | $433,110 | |
| (–) Productivity Loss: | – | $0 | |
| | | -------------------------- | |
| (=) Subtotal: | = | $433,110 | |
| (+) Senior Appraised Value: | + | $0 | |
| (+) Non-Senior Appraised Value: | + | $433,110 | |
| | | -------------------------- | |
| (=) Total Appraised Value: | = | $433,110 | |
| (–) Senior Exemption Loss: | – | $0 | |
| (–) Exemption Loss: | – | $0 | |
| | | -------------------------- | |
| (=) Taxable Value: | = | $433,110 | |
Taxing Jurisdiction
| Owner: | THOMPSON MICHAEL CARR & KIMBERLY L | | |
| % Ownership: | 100.0000000000% | | |
| Total Value: | $433,110 | | |
| Tax Area: | 2 - OL-250 |
| CERFD | CURRENT EXPENSE REFUND 010 | 0.0000000000 | $433,110 | $433,110 | $0.00 | | |
| CURREXP | CURRENT EXPENSE 010 | 1.0175366760 | $433,110 | $433,110 | $440.71 | | |
| HUMNSERV | HUMAN SERVICES 119 | 0.0250000000 | $433,110 | $433,110 | $10.83 | | |
| SLDREL | SOLDIERS RELIEF 121 | 0.0155990005 | $433,110 | $433,110 | $6.76 | | |
| EMERGSER | EMS 147 | 0.3792580840 | $433,110 | $433,110 | $164.26 | | |
| EMSRFD | EMS REFUND 147 | 0.0000000000 | $433,110 | $433,110 | $0.00 | | |
| PORTRFD | PORT REFUND 640 | 0.0000000000 | $433,110 | $433,110 | $0.00 | | |
| PORTWWGEN | PORT OF WW 640 | 0.2460186015 | $433,110 | $433,110 | $106.55 | | |
| SD250BOND | SD #250 BOND 773 | 1.4560608159 | $433,110 | $433,110 | $630.63 | | |
| SD250GEN | SD #250 GENERAL 770 | 2.3880724087 | $433,110 | $433,110 | $1,034.30 | | |
| ST2 | STATE SCHOOL PART 2 600 | 0.8131451643 | $433,110 | $433,110 | $352.18 | | |
| STATESCHL | STATE SCHOOL 600 | 1.5158548041 | $433,110 | $433,110 | $656.53 | | |
| STREFUND | STATE REFUND LEVY 603 | 0.0000000000 | $433,110 | $433,110 | $0.00 | | |
| CWWBOND | C OF WW BOND 643 | 0.2760494372 | $433,110 | $433,110 | $119.56 | | |
| CWWGEN | CITY OF WW 631 | 1.6100204973 | $433,110 | $433,110 | $697.32 | | |
| CWWRFD | CITY OF WALLA WALLA REFUND 631 | 0.0000000000 | $433,110 | $433,110 | $0.00 | | |
| | Total Tax Rate: | 9.7426154895 | | | | | |
| | | | | Taxes w/Current Exemptions: | $4,219.63 | | |
| | | | | Taxes w/o Exemptions: | $4,219.63 | | |
Improvement / Building
| Improvement #1: | RESIDENTIAL | State Code: | 11 | 1635.0 sqft | Value: | $358,110 |
| Exterior Wall: | HARDBOARD | Heating/Cooling: | WARM & COOLED AIR | | Number of Bathrooms: | 2 | Number of Bedrooms: | 3 | | Plumbing: | 11 | Roof Covering: | COMP SHINGLE |
|
| | Type | Description | Class CD | Sub Class CD | Year Built | Area |
| | MA | Main Area | 1 | 35 | 2015 | 1635.0 |
| | ATG | Attached Garage | 1 | 35 | 2015 | 675.0 |
| | PRC | PORCH W STEPS, ROOF,CEILED | 1 | 35 | 2015 | 45.0 |
| | RPC | OPEN PORCH W/ROOF , CEILED | 1 | 35 | 2015 | 527.0 |
| | SI1 | SITE IMPROVEMENT | 1 | 35 | 2015 | 2.5 |
| | GFP | GAS FIREPLACE | 1 | 35 | 2015 | 1.0 |
Sketch
Property Image
Land
| 1 | RES 1 | Converted: Residential | 0.2204 | 9601.00 | 0.00 | 0.00 | 1.00 | $75,000 | $0 |
Roll Value History
| 2026 | N/A | N/A | N/A | N/A | N/A |
| 2025 | $374,230 | $135,000 | $0 | $509,230 | $509,230 |
| 2024 | $393,920 | $75,000 | $0 | $468,920 | $468,920 |
| 2023 | $358,110 | $75,000 | $0 | $433,110 | $433,110 |
| 2022 | $298,430 | $75,000 | $0 | $373,430 | $373,430 |
| 2021 | $284,220 | $75,000 | $0 | $359,220 | $359,220 |
| 2020 | $196,010 | $75,000 | $0 | $271,010 | $271,010 |
| 2019 | $206,010 | $65,000 | $0 | $271,010 | $271,010 |
| 2018 | $206,010 | $65,000 | $0 | $271,010 | $271,010 |
| 2017 | $206,010 | $65,000 | $0 | $271,010 | $271,010 |
| 2016 | $196,200 | $65,000 | $0 | $261,200 | $261,200 |
| 2015 | $196,200 | $65,000 | $0 | $261,200 | $261,200 |
| 2014 | $0 | $65,000 | $0 | $65,000 | $65,000 |
| 2013 | $0 | $65,000 | $0 | $65,000 | $65,000 |
| 2012 | $0 | $65,000 | $0 | $0 | $0 |
| 2011 | $0 | $65,000 | $0 | $0 | $0 |
| 2010 | $0 | $65,000 | $0 | $0 | $0 |
| 2009 | $0 | $65,000 | $0 | $0 | $0 |
| 2008 | $0 | $1,800 | $0 | $0 | $0 |
| 2007 | $0 | $65,000 | $0 | $0 | $0 |
Deed and Sales History
| 1 | 06/24/2019 | SWD | STATUTORY WARRANTY DEED | COCHRAN MICHAEL S & TERRI A | THOMPSON MICHAEL CARR & KIMBERLY L | | | $346,000.00 | 137339 | 2019-05391 |
| 2 | 05/18/2015 | QCD | QUIT CLAIM DEED | COCHRAN MICHAEL S & TERRI A | COCHRAN MICHAEL S & TERRI A | | | | 128022 | 2015-04315 |
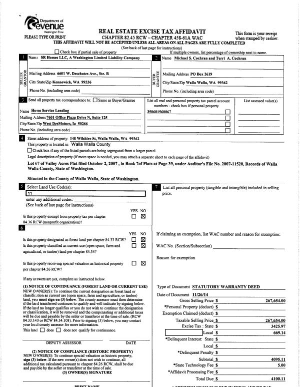
| 3 | 12/04/2014 | SWD | STATUTORY WARRANTY DEED | S R HOMES LLC | COCHRAN MICHAEL S & TERRI A | | | $267,654.00 | 127045 | 2014-08754 |
Payout Agreement
| No payout information available.. |