Property
Account |
| Property ID: | 23109 | Abbreviated Legal Description: | VALLEY ACRES LOT 64 |
| Parcel Number: | 350601560064 | Agent Code: | |
| Type: | Real | | |
| Tax Area: | 2 - OL-250 | Land Use Code | 11 |
| Open Space: | N | DFL | N |
| Historic Property: | N | Remodel Property: | N |
| Multi-Family Redevelopment: | N | | |
| Township: | 6 | Section: | 1 |
| Range: | 35 |
Location |
| Address: | 90 WILSHIRE ST WA 99324 | Mapsco: | |
| Neighborhood: | G SFR | Map ID: | |
| Neighborhood CD: | 114011 |
Owner |
| Name: | LEINBACH LARRY & EVELYN | Owner ID: | 54993 |
| Mailing Address: | 90 WILSHIRE ST WALLA WALLA, WA 99362 | % Ownership: | 100.0000000000% |
| | | Exemptions: | |
Taxes and Assessment Details
Property Tax Information as of
02/21/2026
Click on "Statement Details" to expand or collapse a tax statement.
* Please enter a valid date ** Please enter a valid date *
Statement Details |
| | TOTAL: | $0.00 | $0.00 | $0.00 | $0.00 | $0.00 | $0.00 |
|
| | $0.00 | $0.00 | $0.00 | $0.00 | $0.00 | $0.00 |
Values
| (+) Improvement Homesite Value: | + | $0 | |
| (+) Improvement Non-Homesite Value: | + | $371,330 | |
| (+) Land Homesite Value: | + | $0 | |
| (+) Land Non-Homesite Value: | + | $75,000 | |
| (+) Curr Use (HS): | + | $0 | $0 |
| (+) Curr Use (NHS): | + | $0 | $0 |
| | | -------------------------- | |
| (=) Market Value: | = | $446,330 | |
| (–) Productivity Loss: | – | $0 | |
| | | -------------------------- | |
| (=) Subtotal: | = | $446,330 | |
| (+) Senior Appraised Value: | + | $0 | |
| (+) Non-Senior Appraised Value: | + | $446,330 | |
| | | -------------------------- | |
| (=) Total Appraised Value: | = | $446,330 | |
| (–) Senior Exemption Loss: | – | $0 | |
| (–) Exemption Loss: | – | $0 | |
| | | -------------------------- | |
| (=) Taxable Value: | = | $446,330 | |
Taxing Jurisdiction
| Owner: | LEINBACH LARRY & EVELYN | | |
| % Ownership: | 100.0000000000% | | |
| Total Value: | $446,330 | | |
| Tax Area: | 2 - OL-250 |
| CERFD | CURRENT EXPENSE REFUND 010 | 0.0000000000 | $446,330 | $446,330 | $0.00 | | |
| CURREXP | CURRENT EXPENSE 010 | 1.0175366760 | $446,330 | $446,330 | $454.16 | | |
| HUMNSERV | HUMAN SERVICES 119 | 0.0250000000 | $446,330 | $446,330 | $11.16 | | |
| SLDREL | SOLDIERS RELIEF 121 | 0.0155990005 | $446,330 | $446,330 | $6.96 | | |
| EMERGSER | EMS 147 | 0.3792580840 | $446,330 | $446,330 | $169.27 | | |
| EMSRFD | EMS REFUND 147 | 0.0000000000 | $446,330 | $446,330 | $0.00 | | |
| PORTRFD | PORT REFUND 640 | 0.0000000000 | $446,330 | $446,330 | $0.00 | | |
| PORTWWGEN | PORT OF WW 640 | 0.2460186015 | $446,330 | $446,330 | $109.81 | | |
| SD250BOND | SD #250 BOND 773 | 1.4560608159 | $446,330 | $446,330 | $649.88 | | |
| SD250GEN | SD #250 GENERAL 770 | 2.3880724087 | $446,330 | $446,330 | $1,065.87 | | |
| ST2 | STATE SCHOOL PART 2 600 | 0.8131451643 | $446,330 | $446,330 | $362.93 | | |
| STATESCHL | STATE SCHOOL 600 | 1.5158548041 | $446,330 | $446,330 | $676.57 | | |
| STREFUND | STATE REFUND LEVY 603 | 0.0000000000 | $446,330 | $446,330 | $0.00 | | |
| CWWBOND | C OF WW BOND 643 | 0.2760494372 | $446,330 | $446,330 | $123.21 | | |
| CWWGEN | CITY OF WW 631 | 1.6100204973 | $446,330 | $446,330 | $718.60 | | |
| CWWRFD | CITY OF WALLA WALLA REFUND 631 | 0.0000000000 | $446,330 | $446,330 | $0.00 | | |
| | Total Tax Rate: | 9.7426154895 | | | | | |
| | | | | Taxes w/Current Exemptions: | $4,348.42 | | |
| | | | | Taxes w/o Exemptions: | $4,348.42 | | |
Improvement / Building
| Improvement #1: | RESIDENTIAL | State Code: | 11 | 1801.0 sqft | Value: | $371,330 |
| Exterior Wall: | HARDBOARD | Heating/Cooling: | WARM & COOLED AIR | | Number of Bathrooms: | 2 | Number of Bedrooms: | 3 | | Plumbing: | 12 | Roof Covering: | COMP SHINGLE |
|
| | Type | Description | Class CD | Sub Class CD | Year Built | Area |
| | MA | Main Area | 1 | 35 | 2014 | 1801.0 |
| | ATG | Attached Garage | 1 | 35 | 2014 | 712.0 |
| | RPC | OPEN PORCH W/ROOF , CEILED | 1 | 35 | 2014 | 25.0 |
| | RPO | OPEN PORCH W/ROOF | 1 | 35 | 2014 | 117.0 |
| | SI1 | SITE IMPROVEMENT | 1 | 35 | 2014 | 2.5 |
| | GFP | GAS FIREPLACE | 1 | 35 | 2014 | 1.0 |
Sketch
Property Image
Land
| 1 | RES 1 | Converted: Residential | 0.2310 | 10061.00 | 0.00 | 0.00 | 1.00 | $75,000 | $0 |
Roll Value History
| 2026 | N/A | N/A | N/A | N/A | N/A |
| 2025 | $377,450 | $135,000 | $0 | $512,450 | $512,450 |
| 2024 | $397,320 | $75,000 | $0 | $472,320 | $472,320 |
| 2023 | $371,330 | $75,000 | $0 | $446,330 | $446,330 |
| 2022 | $309,440 | $75,000 | $0 | $384,440 | $384,440 |
| 2021 | $309,440 | $75,000 | $0 | $384,440 | $384,440 |
| 2020 | $247,550 | $75,000 | $0 | $322,550 | $322,550 |
| 2019 | $257,550 | $65,000 | $0 | $322,550 | $322,550 |
| 2018 | $214,620 | $65,000 | $0 | $279,620 | $279,620 |
| 2017 | $204,400 | $65,000 | $0 | $269,400 | $269,400 |
| 2016 | $194,670 | $65,000 | $0 | $259,670 | $259,670 |
| 2015 | $185,400 | $65,000 | $0 | $250,400 | $250,400 |
| 2014 | $185,400 | $65,000 | $0 | $250,400 | $250,400 |
| 2013 | $0 | $65,000 | $0 | $65,000 | $65,000 |
| 2012 | $0 | $65,000 | $0 | $0 | $0 |
| 2011 | $0 | $65,000 | $0 | $0 | $0 |
| 2010 | $0 | $65,000 | $0 | $0 | $0 |
| 2009 | $0 | $65,000 | $0 | $0 | $0 |
| 2008 | $0 | $1,800 | $0 | $0 | $0 |
| 2007 | $0 | $65,000 | $0 | $0 | $0 |
Deed and Sales History
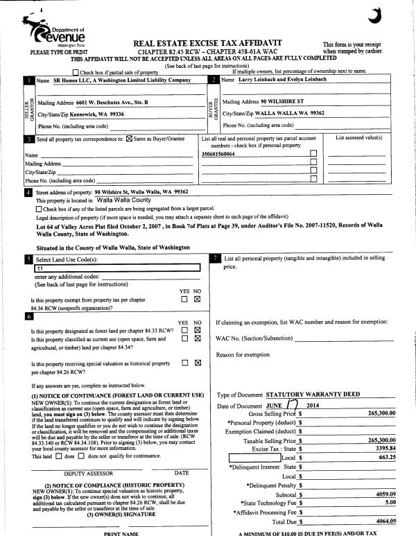
| 1 | 06/20/2014 | SWD | STATUTORY WARRANTY DEED | S R HOMES LLC | LEINBACH LARRY & EVELYN | | | $265,300.00 | 126104 | 2014-04249 |
Payout Agreement
| No payout information available.. |