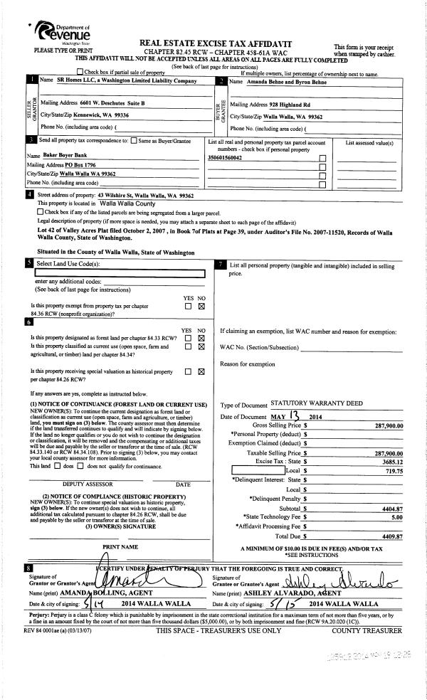
Property
Account |
| Property ID: | 23100 | Abbreviated Legal Description: | VALLEY ACRES LOT 42 |
| Parcel Number: | 350601560042 | Agent Code: | |
| Type: | Real | | |
| Tax Area: | 5 - OL-140 | Land Use Code | 11 |
| Open Space: | N | DFL | N |
| Historic Property: | N | Remodel Property: | N |
| Multi-Family Redevelopment: | N | | |
| Township: | 6 | Section: | 1 |
| Range: | 35 |
Location |
| Address: | 43 WILSHIRE ST WA 99362 | Mapsco: | |
| Neighborhood: | G SFR | Map ID: | |
| Neighborhood CD: | 114011 |
Owner |
| Name: | BEHNE BYRON & AMANDA | Owner ID: | 54959 |
| Mailing Address: | 43 WILSHIRE ST WALLA WALLA, WA 99362 | % Ownership: | 100.0000000000% |
| | | Exemptions: | |
Taxes and Assessment Details
Values
| (+) Improvement Homesite Value: | + | $0 | |
| (+) Improvement Non-Homesite Value: | + | $420,010 | |
| (+) Land Homesite Value: | + | $0 | |
| (+) Land Non-Homesite Value: | + | $75,000 | |
| (+) Curr Use (HS): | + | $0 | $0 |
| (+) Curr Use (NHS): | + | $0 | $0 |
| | | -------------------------- | |
| (=) Market Value: | = | $495,010 | |
| (–) Productivity Loss: | – | $0 | |
| | | -------------------------- | |
| (=) Subtotal: | = | $495,010 | |
| (+) Senior Appraised Value: | + | $0 | |
| (+) Non-Senior Appraised Value: | + | $495,010 | |
| | | -------------------------- | |
| (=) Total Appraised Value: | = | $495,010 | |
| (–) Senior Exemption Loss: | – | $0 | |
| (–) Exemption Loss: | – | $0 | |
| | | -------------------------- | |
| (=) Taxable Value: | = | $495,010 | |
Taxing Jurisdiction
| Owner: | BEHNE BYRON & AMANDA | | |
| % Ownership: | 100.0000000000% | | |
| Total Value: | $495,010 | | |
| Tax Area: | 5 - OL-140 |
| CERFD | CURRENT EXPENSE REFUND 010 | 0.0000000000 | $495,010 | $495,010 | $0.00 | | |
| CURREXP | CURRENT EXPENSE 010 | 1.0175366760 | $495,010 | $495,010 | $503.69 | | |
| HUMNSERV | HUMAN SERVICES 119 | 0.0250000000 | $495,010 | $495,010 | $12.38 | | |
| SLDREL | SOLDIERS RELIEF 121 | 0.0155990005 | $495,010 | $495,010 | $7.72 | | |
| EMERGSER | EMS 147 | 0.3792580840 | $495,010 | $495,010 | $187.74 | | |
| EMSRFD | EMS REFUND 147 | 0.0000000000 | $495,010 | $495,010 | $0.00 | | |
| PORTRFD | PORT REFUND 640 | 0.0000000000 | $495,010 | $495,010 | $0.00 | | |
| PORTWWGEN | PORT OF WW 640 | 0.2460186015 | $495,010 | $495,010 | $121.78 | | |
| SD140BOND | SD #140 BOND 764 | 0.8342371393 | $495,010 | $495,010 | $412.96 | | |
| SD140GEN | SD #140 GENERAL 760 | 2.0646500647 | $495,010 | $495,010 | $1,022.02 | | |
| ST2 | STATE SCHOOL PART 2 600 | 0.8131451643 | $495,010 | $495,010 | $402.51 | | |
| STATESCHL | STATE SCHOOL 600 | 1.5158548041 | $495,010 | $495,010 | $750.36 | | |
| STREFUND | STATE REFUND LEVY 603 | 0.0000000000 | $495,010 | $495,010 | $0.00 | | |
| CWWBOND | C OF WW BOND 643 | 0.2760494372 | $495,010 | $495,010 | $136.65 | | |
| CWWGEN | CITY OF WW 631 | 1.6100204973 | $495,010 | $495,010 | $796.98 | | |
| CWWRFD | CITY OF WALLA WALLA REFUND 631 | 0.0000000000 | $495,010 | $495,010 | $0.00 | | |
| | Total Tax Rate: | 8.7973694689 | | | | | |
| | | | | Taxes w/Current Exemptions: | $4,354.79 | | |
| | | | | Taxes w/o Exemptions: | $4,354.79 | | |
Improvement / Building
| Improvement #1: | RESIDENTIAL | State Code: | 11 | 2269.0 sqft | Value: | $420,010 |
| Exterior Wall: | HARDBOARD | Heating/Cooling: | WARM & COOLED AIR | | Number of Bathrooms: | 2.5 | Number of Bedrooms: | 4 | | Plumbing: | 14 | Roof Covering: | COMP SHINGLE |
|
| | Type | Description | Class CD | Sub Class CD | Year Built | Area |
| | MA | Main Area | 4 | 35 | 2013 | 2269.0 |
| | UPFL | Upper Floor (included in main area) | 4 | 35 | 2013 | 1097.0 |
| | ATG | Attached Garage | 4 | 35 | 2013 | 1023.0 |
| | WOD | Wood Deck | 4 | 35 | 2013 | 120.0 |
| | WOD | Wood Deck | 4 | 35 | 2013 | 80.0 |
| | GFP | GAS FIREPLACE | 4 | 35 | 2013 | 1.0 |
| | SI1 | SITE IMPROVEMENT | 4 | 35 | 2013 | 3.0 |
Sketch
Property Image
Land
| 1 | RES 1 | Converted: Residential | 0.2245 | 9781.00 | 0.00 | 0.00 | 1.00 | $75,000 | $0 |
Roll Value History
| 2026 | N/A | N/A | N/A | N/A | N/A |
| 2025 | $378,010 | $135,000 | $0 | $513,010 | $513,010 |
| 2024 | $420,010 | $75,000 | $0 | $495,010 | $495,010 |
| 2023 | $420,010 | $75,000 | $0 | $495,010 | $495,010 |
| 2022 | $336,010 | $75,000 | $0 | $411,010 | $411,010 |
| 2021 | $305,460 | $75,000 | $0 | $380,460 | $380,460 |
| 2020 | $265,620 | $75,000 | $0 | $340,620 | $340,620 |
| 2019 | $275,620 | $65,000 | $0 | $340,620 | $340,620 |
| 2018 | $229,680 | $65,000 | $0 | $294,680 | $294,680 |
| 2017 | $208,800 | $65,000 | $0 | $273,800 | $273,800 |
| 2016 | $208,800 | $65,000 | $0 | $273,800 | $273,800 |
| 2015 | $208,800 | $65,000 | $0 | $273,800 | $273,800 |
| 2014 | $208,800 | $65,000 | $0 | $273,800 | $273,800 |
| 2013 | $175,900 | $65,000 | $0 | $240,900 | $240,900 |
| 2012 | $0 | $65,000 | $0 | $0 | $0 |
| 2011 | $0 | $65,000 | $0 | $0 | $0 |
| 2010 | $0 | $65,000 | $0 | $0 | $0 |
| 2009 | $0 | $65,000 | $0 | $0 | $0 |
| 2008 | $0 | $1,800 | $0 | $0 | $0 |
| 2007 | $175,900 | $65,000 | $0 | $0 | $0 |
Deed and Sales History
| 1 | 05/19/2014 | SWD | STATUTORY WARRANTY DEED | S R HOMES LLC | BEHNE BYRON & AMANDA | | | $287,900.00 | 125912 | 2014-03386 |
Payout Agreement
| No payout information available.. |