Property
Account |
| Property ID: | 23091 | Abbreviated Legal Description: | VALLEY ACRES LOT 15 |
| Parcel Number: | 350601560015 | Agent Code: | |
| Type: | Real | | |
| Tax Area: | 2 - OL-250 | Land Use Code | 11 |
| Open Space: | N | DFL | N |
| Historic Property: | N | Remodel Property: | N |
| Multi-Family Redevelopment: | N | | |
| Township: | 6 | Section: | 1 |
| Range: | 35 |
Location |
| Address: | 16 DRESDEN CT WA 99324 | Mapsco: | |
| Neighborhood: | G SFR | Map ID: | |
| Neighborhood CD: | 114011 |
Owner |
| Name: | THOMAS ROBIN A | Owner ID: | 67381 |
| Mailing Address: | 16 DRESDEN CT WALLA WALLA, WA 99362 | % Ownership: | 100.0000000000% |
| | | Exemptions: | |
Taxes and Assessment Details
Values
| (+) Improvement Homesite Value: | + | $0 | |
| (+) Improvement Non-Homesite Value: | + | $353,700 | |
| (+) Land Homesite Value: | + | $0 | |
| (+) Land Non-Homesite Value: | + | $75,000 | |
| (+) Curr Use (HS): | + | $0 | $0 |
| (+) Curr Use (NHS): | + | $0 | $0 |
| | | -------------------------- | |
| (=) Market Value: | = | $428,700 | |
| (–) Productivity Loss: | – | $0 | |
| | | -------------------------- | |
| (=) Subtotal: | = | $428,700 | |
| (+) Senior Appraised Value: | + | $0 | |
| (+) Non-Senior Appraised Value: | + | $428,700 | |
| | | -------------------------- | |
| (=) Total Appraised Value: | = | $428,700 | |
| (–) Senior Exemption Loss: | – | $0 | |
| (–) Exemption Loss: | – | $0 | |
| | | -------------------------- | |
| (=) Taxable Value: | = | $428,700 | |
Taxing Jurisdiction
| Owner: | THOMAS ROBIN A | | |
| % Ownership: | 100.0000000000% | | |
| Total Value: | $428,700 | | |
| Tax Area: | 2 - OL-250 |
| CERFD | CURRENT EXPENSE REFUND 010 | 0.0000000000 | $428,700 | $428,700 | $0.00 | | |
| CURREXP | CURRENT EXPENSE 010 | 1.0175366760 | $428,700 | $428,700 | $436.22 | | |
| HUMNSERV | HUMAN SERVICES 119 | 0.0250000000 | $428,700 | $428,700 | $10.72 | | |
| SLDREL | SOLDIERS RELIEF 121 | 0.0155990005 | $428,700 | $428,700 | $6.69 | | |
| EMERGSER | EMS 147 | 0.3792580840 | $428,700 | $428,700 | $162.59 | | |
| EMSRFD | EMS REFUND 147 | 0.0000000000 | $428,700 | $428,700 | $0.00 | | |
| PORTRFD | PORT REFUND 640 | 0.0000000000 | $428,700 | $428,700 | $0.00 | | |
| PORTWWGEN | PORT OF WW 640 | 0.2460186015 | $428,700 | $428,700 | $105.47 | | |
| SD250BOND | SD #250 BOND 773 | 1.4560608159 | $428,700 | $428,700 | $624.21 | | |
| SD250GEN | SD #250 GENERAL 770 | 2.3880724087 | $428,700 | $428,700 | $1,023.77 | | |
| ST2 | STATE SCHOOL PART 2 600 | 0.8131451643 | $428,700 | $428,700 | $348.60 | | |
| STATESCHL | STATE SCHOOL 600 | 1.5158548041 | $428,700 | $428,700 | $649.85 | | |
| STREFUND | STATE REFUND LEVY 603 | 0.0000000000 | $428,700 | $428,700 | $0.00 | | |
| CWWBOND | C OF WW BOND 643 | 0.2760494372 | $428,700 | $428,700 | $118.34 | | |
| CWWGEN | CITY OF WW 631 | 1.6100204973 | $428,700 | $428,700 | $690.22 | | |
| CWWRFD | CITY OF WALLA WALLA REFUND 631 | 0.0000000000 | $428,700 | $428,700 | $0.00 | | |
| | Total Tax Rate: | 9.7426154895 | | | | | |
| | | | | Taxes w/Current Exemptions: | $4,176.68 | | |
| | | | | Taxes w/o Exemptions: | $4,176.68 | | |
Improvement / Building
| Improvement #1: | RESIDENTIAL | State Code: | 11 | 1550.5 sqft | Value: | $353,700 |
| Exterior Wall: | HARDBOARD | Heating/Cooling: | WARM & COOLED AIR | | Number of Bathrooms: | 2 | Number of Bedrooms: | 3 | | Plumbing: | 11 | Roof Covering: | COMP SHINGLE |
|
| | Type | Description | Class CD | Sub Class CD | Year Built | Area |
| | MA | Main Area | 1 | 35 | 2015 | 1550.5 |
| | ATG | Attached Garage | 1 | 35 | 2015 | 628.0 |
| | BONU | BONUS ROOM W/FINISH | 1 | 35 | 2015 | 360.0 |
| | RPC | OPEN PORCH W/ROOF , CEILED | 1 | 35 | 2015 | 15.0 |
| | RPC | OPEN PORCH W/ROOF , CEILED | 1 | 35 | 2015 | 93.0 |
| | UTST | Utility Storage Shed | 1 | 30 | 2015 | 180.0 |
| | GFP | GAS FIREPLACE | 1 | 35 | 2015 | 1.0 |
| | SI1 | SITE IMPROVEMENT | 1 | 35 | 2015 | 2.5 |
Sketch
Property Image
Land
| 1 | RES 1 | Converted: Residential | 0.2417 | 10529.00 | 0.00 | 0.00 | 1.00 | $75,000 | $0 |
Roll Value History
| 2026 | N/A | N/A | N/A | N/A | N/A |
| 2025 | $369,620 | $135,000 | $0 | $504,620 | $504,620 |
| 2024 | $389,070 | $75,000 | $0 | $464,070 | $464,070 |
| 2023 | $353,700 | $75,000 | $0 | $428,700 | $428,700 |
| 2022 | $307,570 | $75,000 | $0 | $382,570 | $382,570 |
| 2021 | $292,920 | $75,000 | $0 | $367,920 | $367,920 |
| 2020 | $195,280 | $75,000 | $0 | $270,280 | $270,280 |
| 2019 | $205,280 | $65,000 | $0 | $270,280 | $270,280 |
| 2018 | $205,280 | $65,000 | $0 | $270,280 | $270,280 |
| 2017 | $205,280 | $65,000 | $0 | $270,280 | $270,280 |
| 2016 | $195,500 | $65,000 | $0 | $260,500 | $260,500 |
| 2015 | $195,500 | $65,000 | $0 | $260,500 | $260,500 |
| 2014 | $0 | $65,000 | $0 | $65,000 | $65,000 |
| 2013 | $0 | $65,000 | $0 | $65,000 | $65,000 |
| 2012 | $0 | $65,000 | $0 | $0 | $0 |
| 2011 | $0 | $65,000 | $0 | $0 | $0 |
| 2010 | $0 | $65,000 | $0 | $0 | $0 |
| 2009 | $0 | $65,000 | $0 | $0 | $0 |
| 2008 | $0 | $1,900 | $0 | $0 | $0 |
| 2007 | $0 | $65,000 | $0 | $0 | $0 |
Deed and Sales History
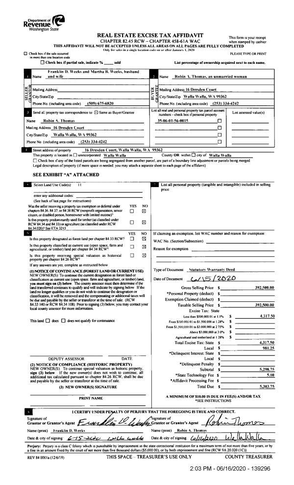
| 1 | 06/16/2020 | SWD | STATUTORY WARRANTY DEED | WEEKS FRANKLIN D & MARTHA B | THOMAS ROBIN A | | | $392,500.00 | 139296 | 2020-05482 |
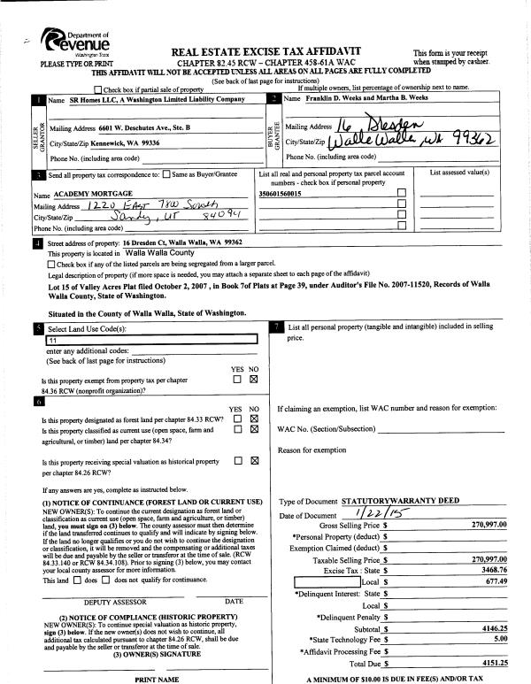
| 2 | 02/06/2015 | SWD | STATUTORY WARRANTY DEED | S R HOMES LLC | WEEKS FRANKLIN D & MARTHA B | | | $270,997.00 | 127406 | 2015-01255 |
Payout Agreement
| No payout information available.. |