Property
Account |
| Property ID: | 23085 | Abbreviated Legal Description: | LA MONTAGNE ESTATES LOT 8 |
| Parcel Number: | 350734510008 | Agent Code: | |
| Type: | Real | | |
| Tax Area: | 311 - 250-4 | Land Use Code | 91 |
| Open Space: | N | DFL | N |
| Historic Property: | N | Remodel Property: | N |
| Multi-Family Redevelopment: | N | | |
| Township: | 7 | Section: | 34 |
| Range: | 35 |
Location |
| Address: | 2423 PALISADES LN WA 99324 | Mapsco: | |
| Neighborhood: | La Montagne | Map ID: | |
| Neighborhood CD: | 117092 |
Owner |
| Name: | SORENSEN KHALID LIEF & TIFFANEY ESTELLE | Owner ID: | 67484 |
| Mailing Address: | 1057 BRICKNER RD COLLEGE PLACE, WA 99324 | % Ownership: | 100.0000000000% |
| | | Exemptions: | |
Taxes and Assessment Details
Values
| (+) Improvement Homesite Value: | + | $0 | |
| (+) Improvement Non-Homesite Value: | + | $0 | |
| (+) Land Homesite Value: | + | $0 | |
| (+) Land Non-Homesite Value: | + | $200,000 | |
| (+) Curr Use (HS): | + | $0 | $0 |
| (+) Curr Use (NHS): | + | $0 | $0 |
| | | -------------------------- | |
| (=) Market Value: | = | $200,000 | |
| (–) Productivity Loss: | – | $0 | |
| | | -------------------------- | |
| (=) Subtotal: | = | $200,000 | |
| (+) Senior Appraised Value: | + | $0 | |
| (+) Non-Senior Appraised Value: | + | $200,000 | |
| | | -------------------------- | |
| (=) Total Appraised Value: | = | $200,000 | |
| (–) Senior Exemption Loss: | – | $0 | |
| (–) Exemption Loss: | – | $0 | |
| | | -------------------------- | |
| (=) Taxable Value: | = | $200,000 | |
Taxing Jurisdiction
| Owner: | SORENSEN KHALID LIEF & TIFFANEY ESTELLE | | |
| % Ownership: | 100.0000000000% | | |
| Total Value: | $200,000 | | |
| Tax Area: | 311 - 250-4 |
| CERFD | CURRENT EXPENSE REFUND 010 | 0.0000000000 | $200,000 | $200,000 | $0.00 | | |
| CURREXP | CURRENT EXPENSE 010 | 1.0175366760 | $200,000 | $200,000 | $203.51 | | |
| HUMNSERV | HUMAN SERVICES 119 | 0.0250000000 | $200,000 | $200,000 | $5.00 | | |
| SLDREL | SOLDIERS RELIEF 121 | 0.0155990005 | $200,000 | $200,000 | $3.12 | | |
| EMERGSER | EMS 147 | 0.3792580840 | $200,000 | $200,000 | $75.85 | | |
| EMSRFD | EMS REFUND 147 | 0.0000000000 | $200,000 | $200,000 | $0.00 | | |
| FD4EXP | FD #4 EXPENSE 686 | 0.8836993059 | $200,000 | $200,000 | $176.74 | | |
| RLBRFD | RURAL LIBRARY REFUND 623 | 0.0000000000 | $200,000 | $200,000 | $0.00 | | |
| RURALLIB | RURAL LIBRARY 623 | 0.3710609029 | $200,000 | $200,000 | $74.21 | | |
| PORTRFD | PORT REFUND 640 | 0.0000000000 | $200,000 | $200,000 | $0.00 | | |
| PORTWWGEN | PORT OF WW 640 | 0.2460186015 | $200,000 | $200,000 | $49.20 | | |
| SD250BOND | SD #250 BOND 773 | 1.4560608159 | $200,000 | $200,000 | $291.21 | | |
| SD250GEN | SD #250 GENERAL 770 | 2.3880724087 | $200,000 | $200,000 | $477.61 | | |
| ST2 | STATE SCHOOL PART 2 600 | 0.8131451643 | $200,000 | $200,000 | $162.63 | | |
| STATESCHL | STATE SCHOOL 600 | 1.5158548041 | $200,000 | $200,000 | $303.17 | | |
| STREFUND | STATE REFUND LEVY 603 | 0.0000000000 | $200,000 | $200,000 | $0.00 | | |
| COROAD | COUNTY ROAD 115 | 1.6549953990 | $200,000 | $200,000 | $331.00 | | |
| CRPRD | COUNTY ROAD REFUND 115 | 0.0000000000 | $200,000 | $200,000 | $0.00 | | |
| | Total Tax Rate: | 10.7663011628 | | | | | |
| | | | | Taxes w/Current Exemptions: | $2,153.25 | | |
| | | | | Taxes w/o Exemptions: | $2,153.25 | | |
Improvement / Building
Sketch
| No sketches available for this property. |
Property Image
Land
| 1 | RES 1 | Converted: Residential | 1.8400 | 80150.40 | 0.00 | 0.00 | 1.00 | $200,000 | $0 |
Roll Value History
| 2026 | N/A | N/A | N/A | N/A | N/A |
| 2025 | $0 | $265,000 | $0 | $265,000 | $265,000 |
| 2024 | $0 | $200,000 | $0 | $200,000 | $200,000 |
| 2023 | $0 | $200,000 | $0 | $200,000 | $200,000 |
| 2022 | $0 | $200,000 | $0 | $200,000 | $200,000 |
| 2021 | $0 | $200,000 | $0 | $200,000 | $200,000 |
| 2020 | $0 | $200,000 | $0 | $200,000 | $200,000 |
| 2019 | $0 | $100,000 | $0 | $100,000 | $100,000 |
| 2018 | $0 | $100,000 | $0 | $100,000 | $100,000 |
| 2017 | $0 | $100,000 | $0 | $100,000 | $100,000 |
| 2016 | $0 | $100,000 | $0 | $100,000 | $100,000 |
| 2015 | $0 | $100,000 | $0 | $100,000 | $100,000 |
| 2014 | $0 | $100,000 | $0 | $100,000 | $100,000 |
| 2013 | $0 | $160,000 | $0 | $160,000 | $160,000 |
| 2012 | $0 | $160,000 | $0 | $0 | $0 |
| 2011 | $0 | $245,000 | $0 | $0 | $0 |
| 2010 | $0 | $245,000 | $0 | $0 | $0 |
| 2009 | $0 | $245,000 | $0 | $0 | $0 |
| 2008 | $0 | $4,200 | $0 | $0 | $0 |
| 2007 | $0 | $2,100 | $0 | $0 | $0 |
Deed and Sales History
| 1 | 07/07/2020 | SWD | STATUTORY WARRANTY DEED | GOD WINK PROPERTIES LLC | SORENSEN KHALID LIEF & TIFFANEY ESTELLE | | | $265,000.00 | 139430 | 2020-06332 |
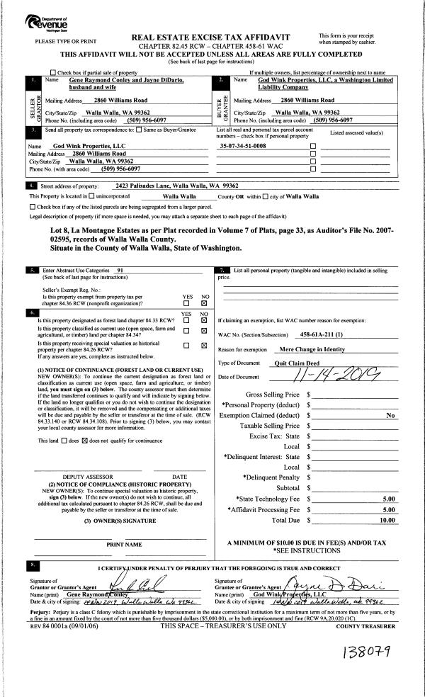
| 2 | 11/14/2019 | QCD | QUIT CLAIM DEED | CONLEY GENE RAYMOND | GOD WINK PROPERTIES LLC | | | $0.00 | 138079 | 2019-09395 |
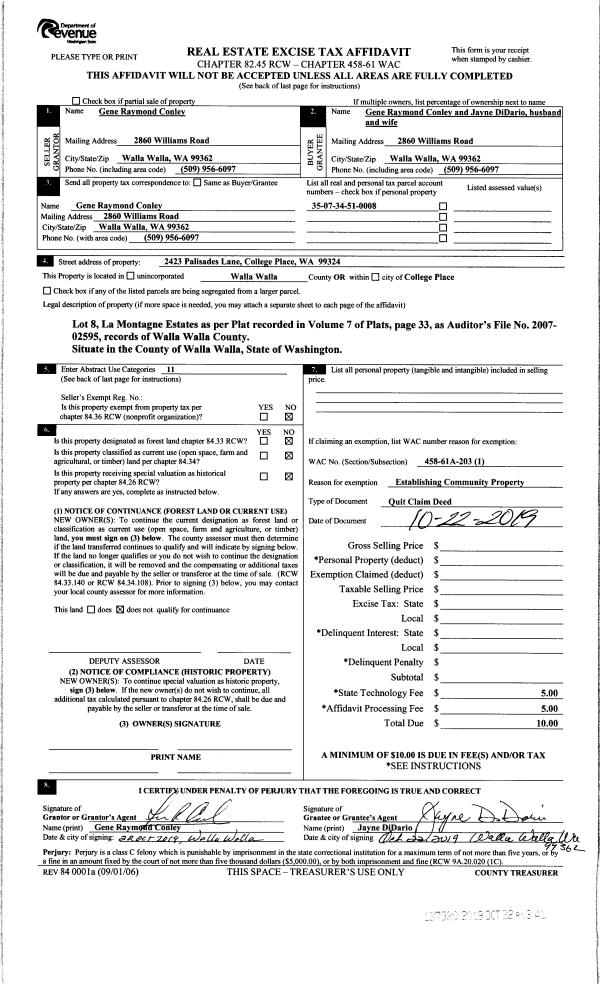
| 3 | 10/22/2019 | QCD | QUIT CLAIM DEED | CONLEY GENE RAYMOND | CONLEY GENE RAYMOND | | | $0.00 | 137920 | 2019-08491 |
| 4 | 10/01/2018 | SWD | STATUTORY WARRANTY DEED | MC NICHOLS THOMAS & GLENDA | CONLEY GENE RAYMOND | | | $0.00 | 135665 | 2018-08183 |
| 5 | 05/24/2018 | SWD | STATUTORY WARRANTY DEED | MC NICHOLS THOMAS & GLENDA | CONLEY GENE RAYMOND | | | $200,000.00 | 134771 | 2018-04080 |
| 6 | 12/04/2008 | WARRANTY D | WARRANTY DEED | BANK OF WHITMAN | MC NICHOLS, THOMAS & GLENDA | | | $218,000.00 | 116040 | 2008-11989 |
| 7 | 10/14/2008 | WARRANTY D | WARRANTY DEED | FISHER, DARRYL EUGENE & CAROL | BANK OF WHITMAN | | | $0.00 | 0 | 2008-10453 |
| 8 | 08/29/2007 | WARRANTY D | WARRANTY DEED | CENTURY PLACE LLC | FISHER, DARRYL EUGENE & CAROL | | | $270,000.00 | 113615 | 2007-10185 |
| 9 | 08/28/2007 | WARRANTY D | WARRANTY DEED | RIETZ CENTURY PLACE LLC | CENTURY PLACE LLC | | | | 113602 | 2007-10126 |
Payout Agreement
| No payout information available.. |