Property
Account |
| Property ID: | 23075 | Abbreviated Legal Description: | GRAND RIDGE SUBDIVISION LOT 6 |
| Parcel Number: | 340603510006 | Agent Code: | |
| Type: | Real | | |
| Tax Area: | 113 - 140-6 | Land Use Code | 11 |
| Open Space: | N | DFL | N |
| Historic Property: | N | Remodel Property: | N |
| Multi-Family Redevelopment: | N | | |
| Township: | 6 | Section: | 3 |
| Range: | 34 |
Location |
| Address: | 155 MORNINGSTAR LN WA 99362 | Mapsco: | |
| Neighborhood: | G TOUCHET/LOWDEN SFR RURAL | Map ID: | |
| Neighborhood CD: | 214613 |
Owner |
| Name: | BUTTICE CHRISTOPHER & DODIE | Owner ID: | 49801 |
| Mailing Address: | 155 MORNINGSTAR LN TOUCHET, WA 99360 | % Ownership: | 100.0000000000% |
| | | Exemptions: | |
Taxes and Assessment Details
Values
| (+) Improvement Homesite Value: | + | N/A | |
| (+) Improvement Non-Homesite Value: | + | N/A | |
| (+) Land Homesite Value: | + | N/A | |
| (+) Land Non-Homesite Value: | + | N/A | Ag / Timber Use Value |
| (+) Curr Use (HS): | + | N/A | N/A |
| (+) Curr Use (NHS): | + | N/A | N/A |
| | | -------------------------- | |
| (=) Market Value: | = | N/A | |
| (–) Productivity Loss: | – | N/A | |
| | | -------------------------- | |
| (=) Subtotal: | = | N/A | |
| (+) Senior Appraised Value: | + | N/A | |
| (+) Non-Senior Appraised Value: | + | N/A | |
| | | -------------------------- | |
| (=) Total Appraised Value: | = | N/A | |
| (–) Senior Exemption Loss: | – | N/A | |
| (–) Exemption Loss: | – | N/A | |
| | | -------------------------- | |
| (=) Taxable Value: | = | N/A | |
Taxing Jurisdiction
| Owner: | BUTTICE CHRISTOPHER & DODIE | | |
| % Ownership: | 100.0000000000% | | |
| Total Value: | N/A | | |
| Tax Area: | 113 - 140-6 |
| CERFD | CURRENT EXPENSE REFUND 010 | N/A | N/A | N/A | N/A | | |
| CURREXP | CURRENT EXPENSE 010 | N/A | N/A | N/A | N/A | | |
| HUMNSERV | HUMAN SERVICES 119 | N/A | N/A | N/A | N/A | | |
| SLDREL | SOLDIERS RELIEF 121 | N/A | N/A | N/A | N/A | | |
| EMERGSER | EMS 147 | N/A | N/A | N/A | N/A | | |
| EMSRFD | EMS REFUND 147 | N/A | N/A | N/A | N/A | | |
| FD6EXP | FD #6 EXPENSE 693 | N/A | N/A | N/A | N/A | | |
| RLBRFD | RURAL LIBRARY REFUND 623 | N/A | N/A | N/A | N/A | | |
| RURALLIB | RURAL LIBRARY 623 | N/A | N/A | N/A | N/A | | |
| PORTRFD | PORT REFUND 640 | N/A | N/A | N/A | N/A | | |
| PORTWWGEN | PORT OF WW 640 | N/A | N/A | N/A | N/A | | |
| SD140BOND | SD #140 BOND 764 | N/A | N/A | N/A | N/A | | |
| SD140GEN | SD #140 GENERAL 760 | N/A | N/A | N/A | N/A | | |
| ST2 | STATE SCHOOL PART 2 600 | N/A | N/A | N/A | N/A | | |
| STATESCHL | STATE SCHOOL 600 | N/A | N/A | N/A | N/A | | |
| STREFUND | STATE REFUND LEVY 603 | N/A | N/A | N/A | N/A | | |
| COROAD | COUNTY ROAD 115 | N/A | N/A | N/A | N/A | | |
| CRPRD | COUNTY ROAD REFUND 115 | N/A | N/A | N/A | N/A | | |
| | Total Tax Rate: | N/A | | | | | |
| | | | | Taxes w/Current Exemptions: | N/A | | |
| | | | | Taxes w/o Exemptions: | N/A | | |
Improvement / Building
| Improvement #1: | RESIDENTIAL | State Code: | 11 | 2982.0 sqft | Value: | N/A |
| Exterior Wall: | CEMENT FIBER | Heating/Cooling: | HEAT PUMP | | Number of Bathrooms: | 3 | Number of Bedrooms: | 4 | | Plumbing: | 15 | Roof Covering: | COMP SHINGLE |
|
| | Type | Description | Class CD | Sub Class CD | Year Built | Area |
| | MA | Main Area | 1 | 45 | 2018 | 2982.0 |
| | ATG | Attached Garage | 1 | 45 | 2018 | 1481.0 |
| | BON1 | BONUS RM ATT/MIN OR NO FINISH | 1 | 45 | 2018 | 514.0 |
| | PRC | PORCH W STEPS, ROOF,CEILED | 1 | 45 | 2018 | 54.0 |
| | RPC | OPEN PORCH W/ROOF , CEILED | 1 | 45 | 2018 | 378.0 |
| | SI1 | SITE IMPROVEMENT | 1 | 45 | 2018 | 4.0 |
| | GFP | GAS FIREPLACE | 1 | 45 | 2018 | 1.0 |
| | ATIC | ATTIC ROOM | 1 | 45 | 2018 | 396.0 |
| | POL2 | POLE BUILDING-CONCRETE | 1 | 30 | 2018 | 2160.0 |
Sketch
Property Image
Land
| 1 | RES 1 | Converted: Residential | 1.5500 | 67518.00 | 0.00 | 0.00 | 1.00 | N/A | N/A |
Roll Value History
| 2026 | N/A | N/A | N/A | N/A | N/A |
| 2025 | $790,940 | $93,070 | $0 | $884,010 | $884,010 |
| 2024 | $719,040 | $93,070 | $0 | $812,110 | $812,110 |
| 2023 | $719,040 | $93,070 | $0 | $812,110 | $812,110 |
| 2022 | $656,400 | $93,070 | $0 | $749,470 | $749,470 |
| 2021 | $547,000 | $93,070 | $0 | $640,070 | $640,070 |
| 2020 | $556,120 | $55,000 | $0 | $611,120 | $611,120 |
| 2019 | $556,120 | $55,000 | $0 | $611,120 | $611,120 |
| 2018 | $505,560 | $55,000 | $0 | $560,560 | $560,560 |
| 2017 | $0 | $55,000 | $0 | $55,000 | $55,000 |
| 2016 | $0 | $55,000 | $0 | $55,000 | $55,000 |
| 2015 | $0 | $55,000 | $0 | $55,000 | $55,000 |
| 2014 | $0 | $55,000 | $0 | $55,000 | $55,000 |
| 2013 | $0 | $55,000 | $0 | $55,000 | $55,000 |
| 2012 | $0 | $95,000 | $0 | $0 | $0 |
| 2011 | $0 | $95,000 | $0 | $0 | $0 |
| 2010 | $0 | $150,000 | $0 | $0 | $0 |
| 2009 | $0 | $150,000 | $0 | $0 | $0 |
| 2008 | $0 | $2,000 | $0 | $0 | $0 |
| 2007 | $0 | $55,000 | $0 | $0 | $0 |
Deed and Sales History
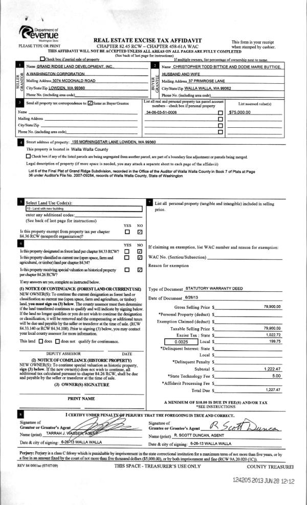
| 1 | 06/28/2013 | WARRANTY D | WARRANTY DEED | GRAND RIDGE LAND DEVELOPMENT I | BUTTICE, CHRISTOPHER & DODIE | | | $79,900.00 | 124205 | 2013-06519 |
| 2 | 10/09/2007 | WARRANTY D | WARRANTY DEED | CLEARVIEW FARM INC | GRAND RIDGE LAND DEVELOPMENT INC | | | $750,000.00 | 113855 | 2007-11768 |
|   | |
Payout Agreement
| No payout information available.. |